Информационная система
«Ёшкин Кот»

Скачать базу одним архивом
Скачать обновления
История создания базы
Карта сайта

Скачать Типовой проект 810-1-30.88 Альбом 5. Газоснабжение. Холодоснабжение. Внутренние водопровод и канализация

Дата актуализации: 10.08.2017

Типовой проект 810-1-30.88

Альбом 5. Газоснабжение. Холодоснабжение. Внутренние водопровод и канализация

Обозначение: Типовой проект 810-1-30.88
Обозначение англ: 810-1-30.88
Статус:не определен законодательством
Название рус.:Альбом 5. Газоснабжение. Холодоснабжение. Внутренние водопровод и канализация
Дата добавления в базу:01.09.2013
Дата актуализации:05.05.2017
Дата введения:07.12.1988
Оглавление:ТП 810-1-30.88 Содержание альбома
ТП 810-1-30.88 ГСВ Газоснабжение внутреннее ГСВ
ТП 810-1-30.88 ГСВ Общие данные
ТП 810-1-30.88 ГСВ План на отм. 0.000 разводки газопроводов к универсальным генераторам СО2УГ6.0. Фрагмент 1. Разрез 1-1
ТП 810-1-30.88 ГСВ Схема газопровода. Разрезы 2-2,3-3
ТП 810-1-30.88 ГСВН Эскизные чертежи общих видов нетиповых конструкций систем газоснабжения ГСВН
ТП 810-1-30.88 ХС Холодоснабжение ХС
ТП 810-1-30.88 ХС Общие данные (начало)
ТП 810-1-30.88 ХС Общие данные (окончание)
ТП 810-1-30.88 ХС План на отм. 0.000 с размещением холодильного оборудования
ТП 810-1-30.88 ХС Разрезы 1-1,2-2. Сечение 3-3
ТП 810-1-30.88 ХС Монтажные схемы разводок трубопроводов холодильных машин 1,2. Схема отвода конденсата от воздухоохладителей. Экспликация холодильного оборудования
ТП 810-1-30.88 ХС Принципиальная схема холодильной машины 1МК89-1-2
ТП 810-1-30.88 ВК1 Внутренние водопровод и канализация ВК1
ТП 810-1-30.88 ВК1 Общие данные
ТП 810-1-30.88 ВК1 План систем В10,Я на отм. 0.000 между осями И1-И28 и 1-59
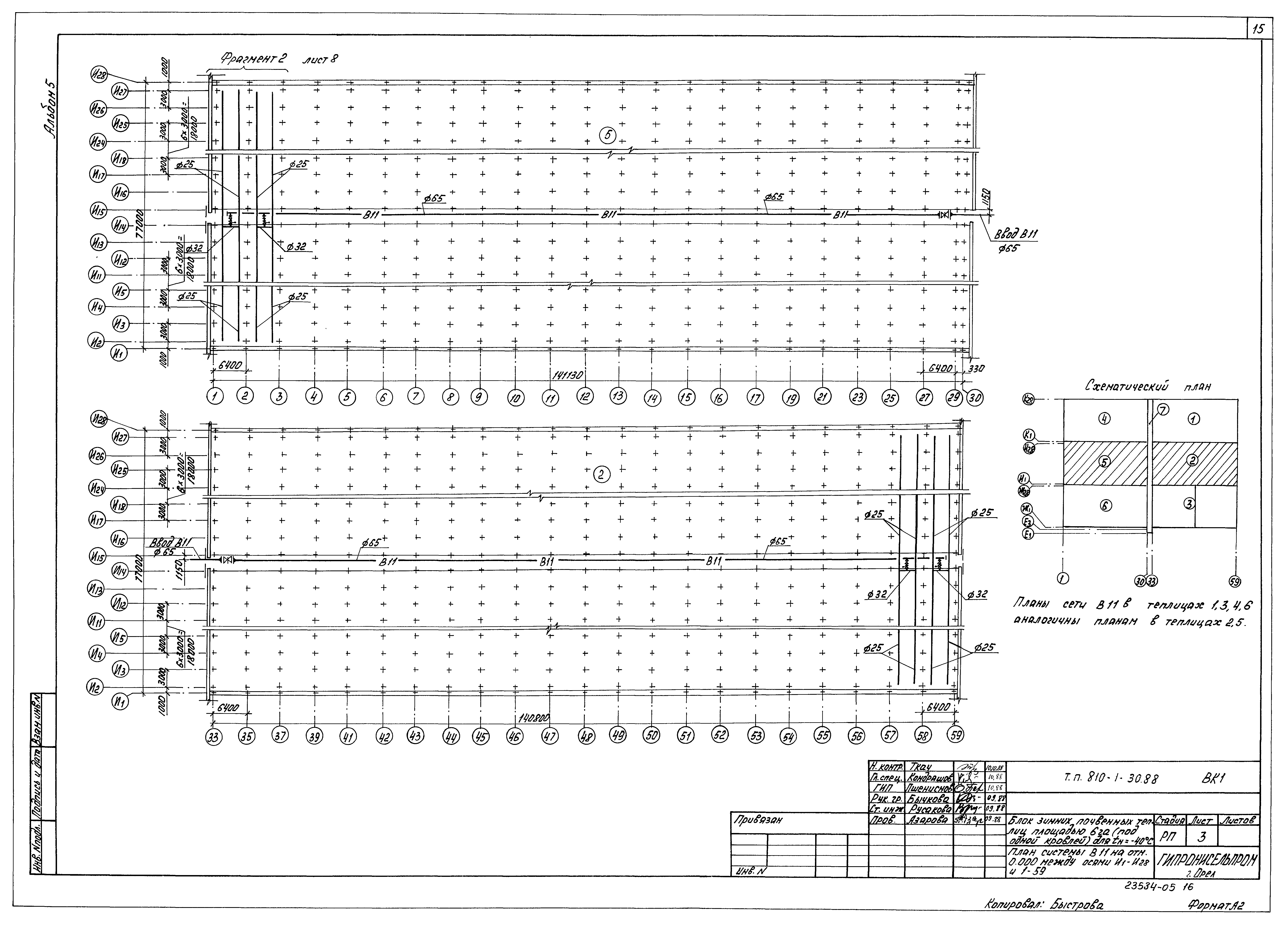
ТП 810-1-30.88 ВК1 План системы В11 на отм. 0.000 между осями И1-И28 и 1-59
ТП 810-1-30.88 ВК1 План систем К2,К13 на отм. 0.000 между осями И1-И28 и 1-30. Соединение дренажных труб
ТП 810-1-30.88 ВК1 План систем К2,К13 на отм. 0.000 между осями И1-И28 и 33-59
ТП 810-1-30.88 ВК1 План систем В1,В10,В11,Я,К3 на отм. 0.000 между осями Е1-К28 и 30-33. Разрез 1-1. Схема систем В1,К3
ТП 810-1-30.88 ВК1 Фрагмент 1. Узел 1
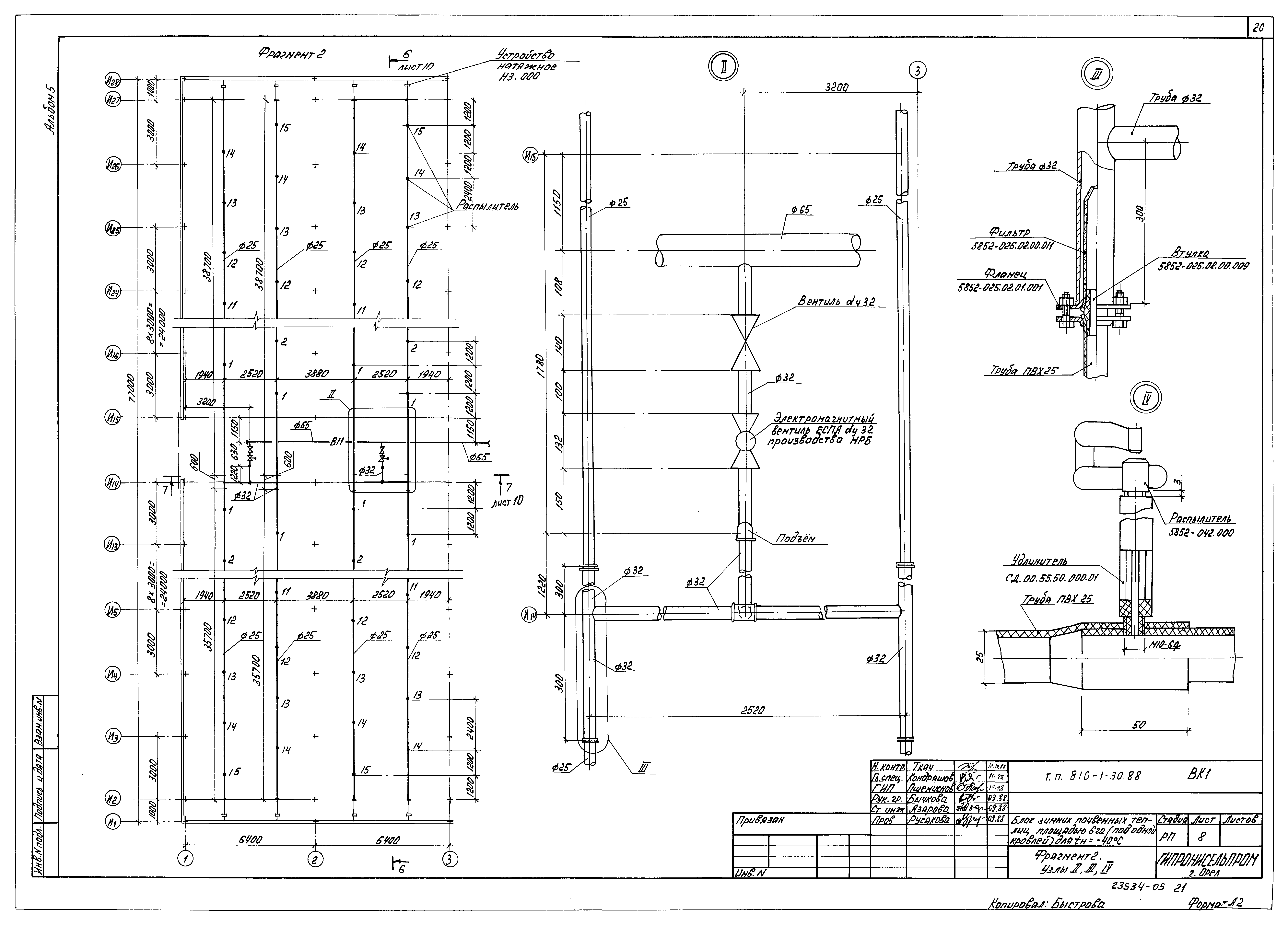
ТП 810-1-30.88 ВК1 Фрагмент 2. Узлы 2,3,4
ТП 810-1-30.88 ВК1 Разрезы 202,3-3. Сечения 4-4,5-5. Узел 5
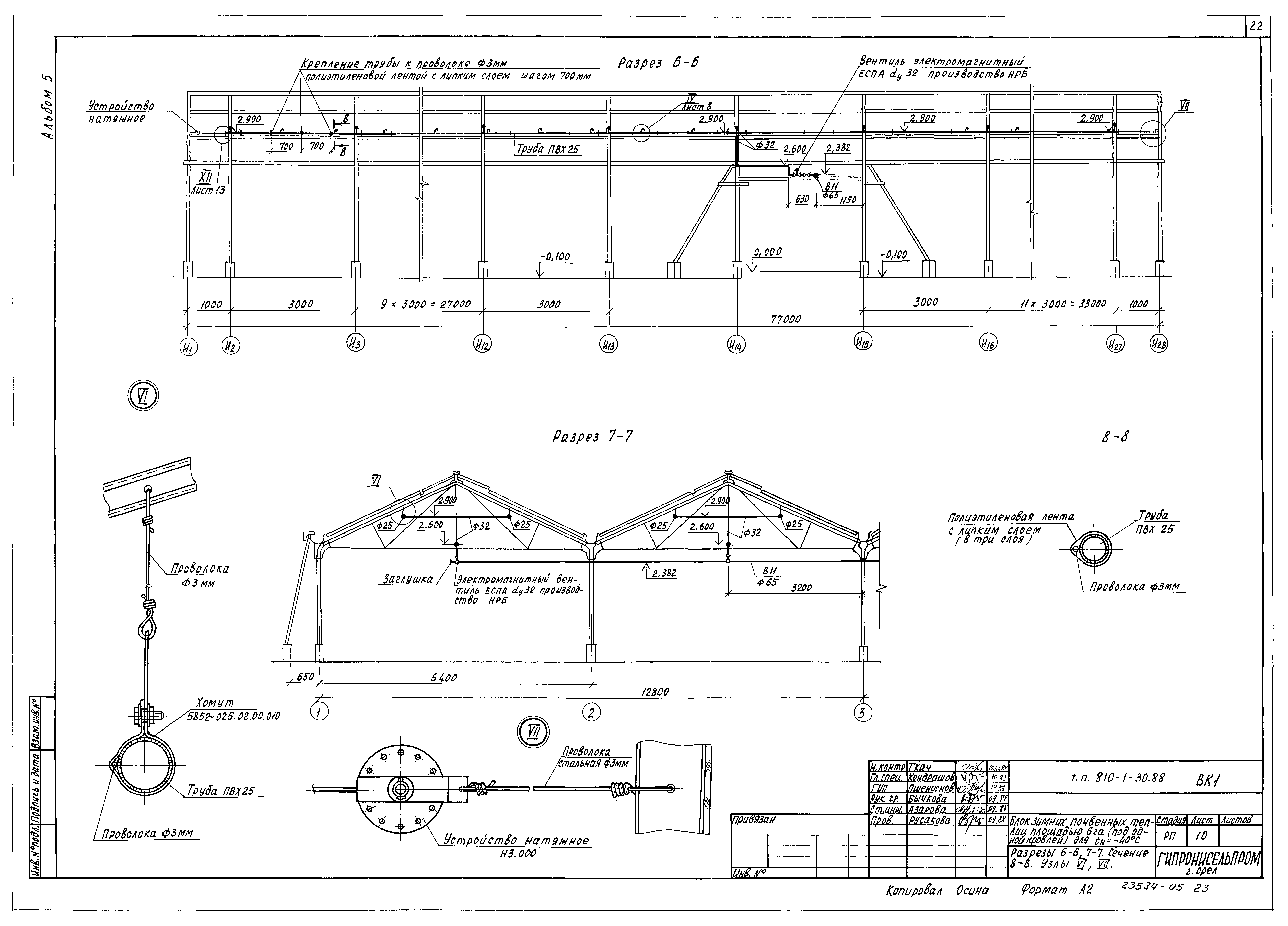
ТП 810-1-30.88 ВК1 Разрезы 6-6,7-7. Сечение 8-8. Узлы 6,8
ТП 810-1-30.88 ВК1 Разрезы 9-9,10-10. Узлы 8,9,10
ТП 810-1-30.88 ВК1 Схема системы В10. Узел 11
ТП 810-1-30.88 ВК1 Схема системы В11. Узлы 12,13
ТП 810-1-30.88 ВК1 Схема системы Я. Узлы 14,15,16
ТП 810-1-30.88 ВК1 Схема системы К13. Узел 17. Дренажные колодцы. Эскиз
ТП 810-1-30.88 ВК2 Внутренние водопровод и канализация ВК2
ТП 810-1-30.88 ВК2 Общие данные (начало)
ТП 810-1-30.88 ВК2 Общие данные (окончание)
ТП 810-1-30.88 ВК2 План на отм. 0.000 между осями А-Д и 18-32
ТП 810-1-30.88 ВК2 План на отм. 0.000 между осями А-Д и 32-40. Схемы систем К2,К3
ТП 810-1-30.88 ВК2 Схемы систем В1,Т3,В3. Водомерные узлы УВЧ,УВ26
ТП 810-1-30.88 ВК2 Схемы систем К1,К2
ТП 810-1-30.88 ВК2 Фрагмент1
ТП 810-1-30.88 ВК2 Фрагмент2. Фрагмент плана кровли на отм. 3.700. Разрез 1-1. Схемы систем В4,В5
ТП 810-1-30.88 ВК2 Разрезы 2-2,3-3,4-4. Схема системы К7
ТП 810-1-30.88 ВК2 Схемы систем В10,В11,МУ,Я,В
Разработан: Гипронисельпром Госагропрома СССР
Утверждён:06.12.1988 Госагропром СССР (USSR Gosagroprom 805-42/153)
Расположен в:Техническая документация Строительство Справочные документы Типовые строительные конструкции, изделия и узлы Общероссийский строительный каталог Сельскохозяйственные предприятия, здания и сооружения Тепличные комбинаты, теплицы и парники Тепличные комбинаты и теплицы
Типовой проект 810-1-30.88Типовой проект 810-1-30.88Типовой проект 810-1-30.88Типовой проект 810-1-30.88Типовой проект 810-1-30.88Типовой проект 810-1-30.88Типовой проект 810-1-30.88Типовой проект 810-1-30.88Типовой проект 810-1-30.88Типовой проект 810-1-30.88Типовой проект 810-1-30.88Типовой проект 810-1-30.88Типовой проект 810-1-30.88Типовой проект 810-1-30.88Типовой проект 810-1-30.88Типовой проект 810-1-30.88Типовой проект 810-1-30.88Типовой проект 810-1-30.88Типовой проект 810-1-30.88Типовой проект 810-1-30.88Типовой проект 810-1-30.88Типовой проект 810-1-30.88Типовой проект 810-1-30.88Типовой проект 810-1-30.88Типовой проект 810-1-30.88Типовой проект 810-1-30.88Типовой проект 810-1-30.88Типовой проект 810-1-30.88Типовой проект 810-1-30.88Типовой проект 810-1-30.88Типовой проект 810-1-30.88Типовой проект 810-1-30.88Типовой проект 810-1-30.88Типовой проект 810-1-30.88Типовой проект 810-1-30.88Типовой проект 810-1-30.88Типовой проект 810-1-30.88Типовой проект 810-1-30.88

© 2013 Ёшкин Кот :-) Карта сайта