Информационная система
«Ёшкин Кот»

Скачать базу одним архивом
Скачать обновления
История создания базы
Карта сайта

Скачать Типовой проект 810-1-30.88 Альбом 3. Конструкции металлические

Дата актуализации: 10.08.2017

Типовой проект 810-1-30.88

Альбом 3. Конструкции металлические

Обозначение: Типовой проект 810-1-30.88
Обозначение англ: 810-1-30.88
Статус:не определен законодательством
Название рус.:Альбом 3. Конструкции металлические
Дата добавления в базу:01.09.2013
Дата актуализации:05.05.2017
Дата введения:07.12.1988
Оглавление:ТП 810-1-30.88 Содержание альбома
ТП 810-1-30.88-КМ1 Конструкции металлические КМ1
ТП 810-1-30.88-КМ1 Общие данные (начало)
ТП 810-1-30.88-КМ1 Общие данные (продолжение)
ТП 810-1-30.88-КМ1 Общие данные (окончание)
ТП 810-1-30.88-КМ1 Схема расположения стоек, ригелей, прогонов и лотков конденсата теплицы 1,2
ТП 810-1-30.88-КМ1 Схема расположения стоек, ригелей, прогонов и лотков конденсата теплицы 3
ТП 810-1-30.88-КМ1 Схема расположения стоек, ригелей, прогонов и лотков конденсата теплиц 4...6
ТП 810-1-30.88-КМ1 Разрезы 1-1,2-2,3-3
ТП 810-1-30.88-КМ1 Разрезы 4-4,5-5,6-6
ТП 810-1-30.88-КМ1 Схема расположения затяжек, подвесок и связей теплиц 4...6
ТП 810-1-30.88-КМ1 Схема расположения затяжек, подвесок и связей теплиц 1,2
ТП 810-1-30.88-КМ1 Схема расположения затяжек, подвесок и связей теплицы 3
ТП 810-1-30.88-КМ1 Схема расположения связей покрытия теплиц 4...6. Разрезы 7-7,8-8,9-9
ТП 810-1-30.88-КМ1 Схема расположения связей покрытия теплиц 1...3. Разрезы 10-10,11-11,12-12
ТП 810-1-30.88-КМ1 Схема расположения лотков, форточек и шпросов покрытия теплиц 1,2
ТП 810-1-30.88-КМ1 Схема расположения лотков, форточек и шпросов покрытия теплиц 3
ТП 810-1-30.88-КМ1 Схема расположения лотков, форточек и шпросов покрытия в теплицах 4...6
ТП 810-1-30.88-КМ1 Разрезы 13-13...15-15
ТП 810-1-30.88-КМ1 Схема расположения элементов по осям Ж1,К28,Ж2,И2...И27,К2...К27
ТП 810-1-30.88-КМ1 Схема расположения элементов по осям И1,К1,1,59
ТП 810-1-30.88-КМ1 Схема расположения элементов по осям 48,30,33
ТП 810-1-30.88-КМ1 Схема расположения элементов по осям Ж28,И28
ТП 810-1-30.88-КМ1 Фрагмент 1
ТП 810-1-30.88-КМ1 Фрагмент 2
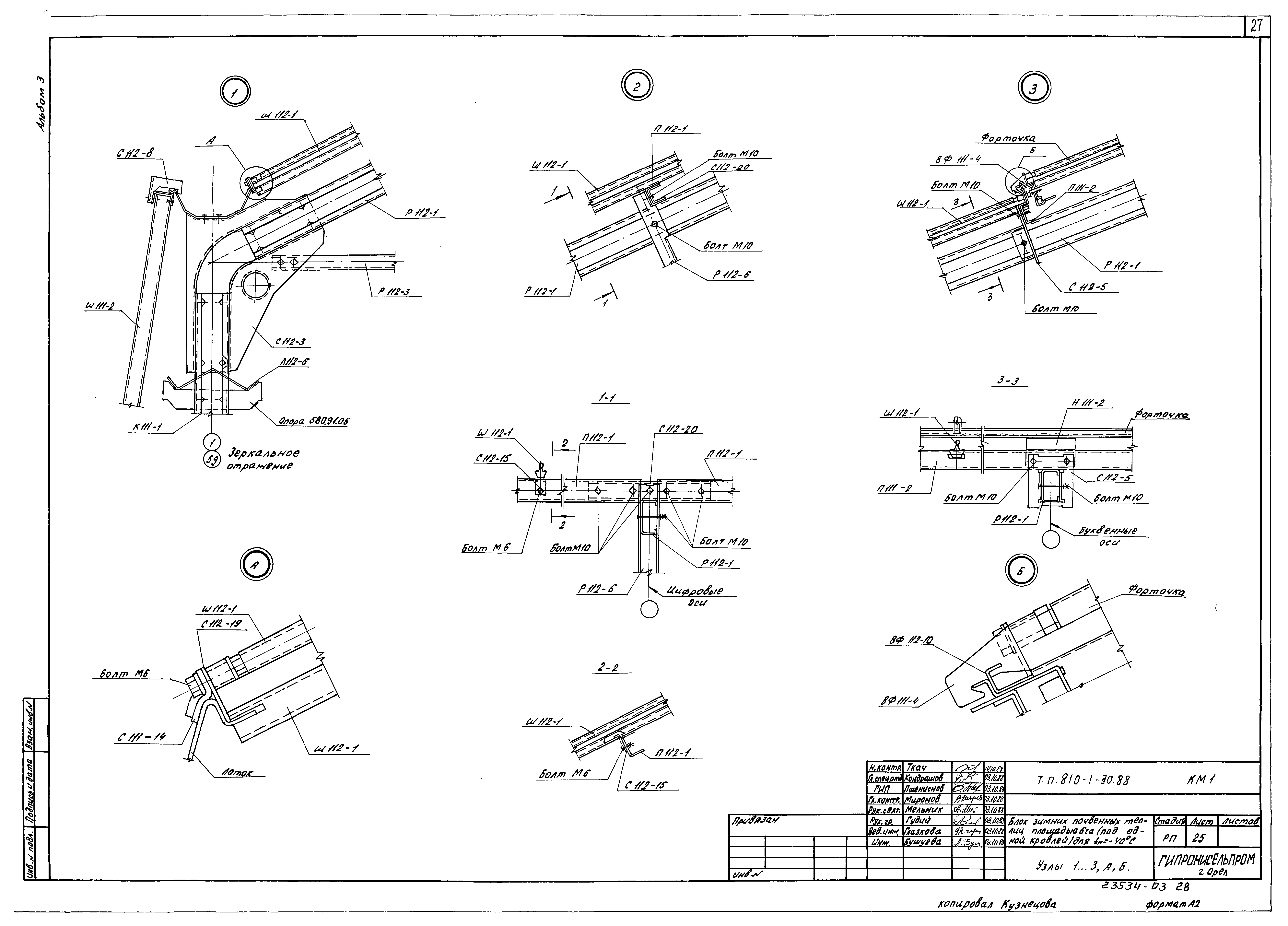
ТП 810-1-30.88-КМ1 Узлы 1...3,А,Б
ТП 810-1-30.88-КМ1 Узлы 4...11
ТП 810-1-30.88-КМ1 Узлы 12...17
ТП 810-1-30.88-КМ1 Узлы 18...24
ТП 810-1-30.88-КМ1 Узлы 25...27
ТП 810-1-30.88-КМ1 Узлы 28...32
ТП 810-1-30.88-КМ1 Узлы 33...38
ТП 810-1-30.88-КМ1 Узлы 39...41
ТП 810-1-30.88-КМ1 Узлы 42,43
ТП 810-1-30.88-КМ1 Узлы 44...47
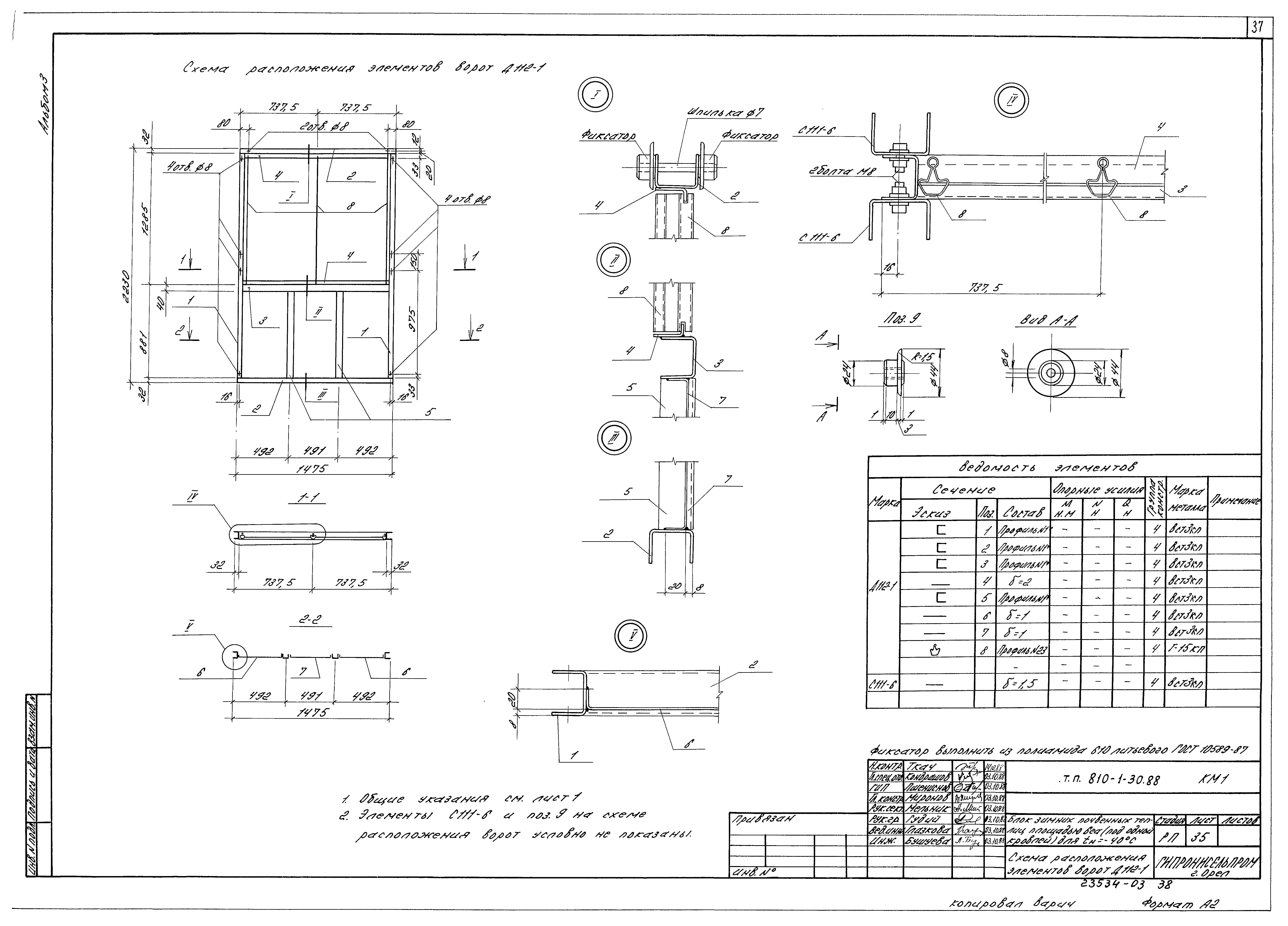
ТП 810-1-30.88-КМ1 Схема расположения элементов ворот Д112-1
ТП 810-1-30.88-КМ1 Форточка ВФС1...ВФС3
ТП 810-1-30.88-КМ1 Схема расположения опор в теплицах 1,2,4...6
ТП 810-1-30.88-КМ1 Схема расположения опор в теплице 3
ТП 810-1-30.88-КМ1 Схема расположения опор в соединительном коридоре. Опора ОП1
ТП 810-1-30.88-КМ1 Опоры ОП2...ОП5
ТП 810-1-30.88-КМ1 Опоры ОП6...ОП10
ТП 810-1-30.88-КМ1 Опоры ОП11...ОП14
ТП 810-1-30.88-КМ1 Опоры ОП15...ОП17
ТП 810-1-30.88-КМ1 Элементы В112-1...В112-4,Ш112-10
ТП 810-1-30.88-КМ1 Прогоны П112-1-,П111-2-1,П111-3-3,П111-4-1. Связь ВС 112-5. Верхний и нижний пояса форточки ВФ111-2-1,ВФ111-1-1. Прогоны ОВ112-4,ОВ112-5
ТП 810-1-30.88-КМ1 Прогон П112-6. Связи С112-22,С112-23. Кляммеры КЛ1,КЛ2,КЛ2-01,КЛ2-02,КЛ3,КЛ3-01. ВФ112-10,С112-19,ОВ112-5
ТП 810-1-30.88-КМ1 Лотки Л112-4...112-6. Доработка лотка Л112-6. Связи С112-24...С112-29. Фланец С112-13
ТП 810-1-30.88-КМ2 Конструкции металлические КМ2
ТП 810-1-30.88-КМ2 Общие данные (начало)
ТП 810-1-30.88-КМ2 Общие данные (окончание)
ТП 810-1-30.88-КМ2 Схема расположения подвесного кранового пути. Схема расположения элементов переходной площадки. Стремянка
Разработан: Гипронисельпром Госагропрома СССР
Утверждён:06.12.1988 Госагропром СССР (USSR Gosagroprom 805-42/153)
Расположен в:Техническая документация Строительство Справочные документы Типовые строительные конструкции, изделия и узлы Общероссийский строительный каталог Сельскохозяйственные предприятия, здания и сооружения Тепличные комбинаты, теплицы и парники Тепличные комбинаты и теплицы
Типовой проект 810-1-30.88Типовой проект 810-1-30.88Типовой проект 810-1-30.88Типовой проект 810-1-30.88Типовой проект 810-1-30.88Типовой проект 810-1-30.88Типовой проект 810-1-30.88Типовой проект 810-1-30.88Типовой проект 810-1-30.88Типовой проект 810-1-30.88Типовой проект 810-1-30.88Типовой проект 810-1-30.88Типовой проект 810-1-30.88Типовой проект 810-1-30.88Типовой проект 810-1-30.88Типовой проект 810-1-30.88Типовой проект 810-1-30.88Типовой проект 810-1-30.88Типовой проект 810-1-30.88Типовой проект 810-1-30.88Типовой проект 810-1-30.88Типовой проект 810-1-30.88Типовой проект 810-1-30.88Типовой проект 810-1-30.88Типовой проект 810-1-30.88Типовой проект 810-1-30.88Типовой проект 810-1-30.88Типовой проект 810-1-30.88Типовой проект 810-1-30.88Типовой проект 810-1-30.88Типовой проект 810-1-30.88Типовой проект 810-1-30.88Типовой проект 810-1-30.88Типовой проект 810-1-30.88Типовой проект 810-1-30.88Типовой проект 810-1-30.88Типовой проект 810-1-30.88Типовой проект 810-1-30.88Типовой проект 810-1-30.88Типовой проект 810-1-30.88Типовой проект 810-1-30.88Типовой проект 810-1-30.88Типовой проект 810-1-30.88Типовой проект 810-1-30.88Типовой проект 810-1-30.88Типовой проект 810-1-30.88Типовой проект 810-1-30.88Типовой проект 810-1-30.88Типовой проект 810-1-30.88Типовой проект 810-1-30.88Типовой проект 810-1-30.88Типовой проект 810-1-30.88Типовой проект 810-1-30.88

© 2013 Ёшкин Кот :-) Карта сайта