Информационная система
«Ёшкин Кот»

Скачать базу одним архивом
Скачать обновления
История создания базы
Карта сайта

Скачать Типовой проект 810-1-29.88 Альбом 6. Часть 1. Механизм подъема регистров надпочвенного обогрева. Тележка для сбора овощей. Система подвески монорельсов. Устройство для обслуживания кровли

Дата актуализации: 10.08.2017

Типовой проект 810-1-29.88

Альбом 6. Часть 1. Механизм подъема регистров надпочвенного обогрева. Тележка для сбора овощей. Система подвески монорельсов. Устройство для обслуживания кровли

Обозначение: Типовой проект 810-1-29.88
Обозначение англ: 810-1-29.88
Статус:не определен законодательством
Название рус.:Альбом 6. Часть 1. Механизм подъема регистров надпочвенного обогрева. Тележка для сбора овощей. Система подвески монорельсов. Устройство для обслуживания кровли
Дата добавления в базу:01.09.2013
Дата актуализации:05.05.2017
Дата введения:18.10.1988
Оглавление:ТП 810-1-29.88 Содержание альбома
ТП 810-1-29.88 ПР01-00.000 ИЭ Механизм подъема регистров надпочвенного обогрева ангарной теплицы пролетом 24 м. Инструкция по эксплуатации
ТП 810-1-29.88 ПР01-00.000 ИЭ Механизм подъема регистров надпочвенного обогрева зимних теплиц пролетом 24 м пл 32а. Расположение комплекта механизма
ТП 810-1-29.88 ПР01-00.000 СБ Механизм регистров надпочвенного обогрева блока зимних теплиц пролетом 24 м пл.32а
ТП 810-1-29.88 ПР01-00.000 СБ Механизм регистров надпочвенного обогрева овощной теплицы. Расположение комплекта механизма
ТП 810-1-29.88 ПР01-01.000 СБ Механизм подъема регистров надпочвенного обогрева овощной теплицы. Расположение комплекта механизма. Сборочный чертеж
ТП 810-1-29.88 ПР01-02.000 СБ Механизм подъема регистров надпочвенного обогрева овощной теплицы. Расположение комплекта механизма. Сборочный чертеж
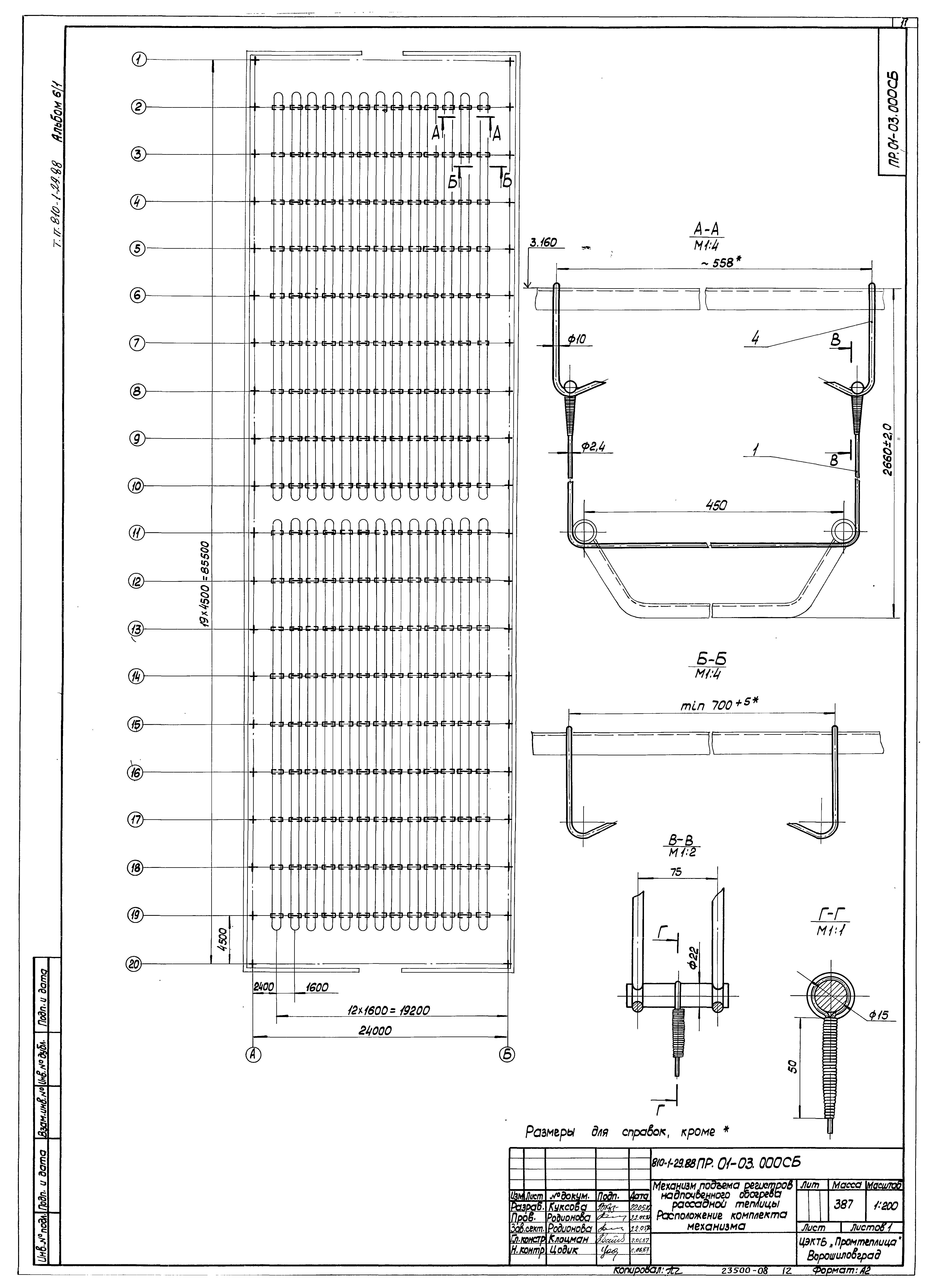
ТП 810-1-29.88 ПР01-03.000 СБ Механизм подъема регистров надпочвенного обогрева рассадной теплицы. Расположение комплекта механизма. Сборочный чертеж
Инструкция по эксплуатации
ТП 810-1-29.88 5837-030.01.00.000 Лебедка. Спецификация
ТП 810-1-29.88 5837-030.01.01.000 Привод. Спецификация
ТП 810-1-29.88 5837-030.01.01.000 Кронштейн. Спецификация
ТП 810-1-29.88 5837-030.01.00.000 СБ Лебедка. Сборочный чертеж
ТП 810-1-29.88 5837-030.01.01.000 СБ Привод. Сборочный чертеж
ТП 810-1-29.88 5837-030.01.01.01.000 СБ Кронштейн. Сборочный чертеж
ТП 810-1-29.88 5837-030.01.01.01.001 Ось
ТП 810-1-29.88 5837-030.01.01.01.002 Планка
ТП 810-1-29.88 5837-030.01.01.01.003 Банка
ТП 810-1-29.88 5837-030.01.01.010 Рукоятка
ТП 810-1-29.88 5837-030.01.02.000 Барабан в сборе. Спецификация
ТП 810-1-29.88 5837-030.01.02.000 СБ Барабан в сборе. Сборочный чертеж
ТП 810-1-29.88 5837-030.02.00.000 Толкатель. Спецификация
ТП 810-1-29.88 5837-030.01.00.000 СБ Толкатель. Сборочный чертеж
ТП 810-1-29.88 5837-030.02.00.001 Валик
ТП 810-1-29.88 5837-030.02.00.002 Труба
ТП 810-1-29.88 5837-030.02.00.003 Крюк
ТП 810-1-29.88 5837-030.02.00.004 Планка
ТП 810-1-29.88 5837-030.03.00.000 Подвеска. Спецификация
ТП 810-1-29.88 5837-030.03.00.001 Ось
ТП 810-1-29.88 5837-030.03.00.000 СБ Подвеска. Сборочный чертеж
ТП 810-1-29.88 5837-030.00.00.001 Траверса
ТП 810-1-29.88 5837-030.00.00.002 Крюк
ТП 810-1-29.88 5837-030.01.01.02.000 Скоба. Спецификация
ТП 810-1-29.88 5837-030.01.01.02.000 СБ Скоба. Сборочный чертеж
ТП 810-1-29.88 5837-030.01.01.02.001 Скоба
ТП 810-1-29.88 5837-030.01.01.02.002 Скоба
ТП 810-1-29.88 5837-030.01.01.03.000 Собачка. Спецификация
ТП 810-1-29.88 5837-030.01.01.03.000 СБ Собачка. Сборочный чертеж
ТП 810-1-29.88 5837-030.01.01.03.001 Кронштейн
ТП 810-1-29.88 5837-030.01.01.03.002 Клин
ТП 810-1-29.88 5837-030.01.01.001 Кронштейн
ТП 810-1-29.88 5837-030.01.01.002 Ось
ТП 810-1-29.88 5837-030.01.01.007 Втулка
ТП 810-1-29.88 5837-030.01.01.003 Корпус
ТП 810-1-29.88 5837-030.01.01.004 Вал
ТП 810-1-29.88 5837-030.01.01.005 Храповик
ТП 810-1-29.88 5837-030.01.01.006 Звездочка
ТП 810-1-29.88 5837-030.01.01.008 Втулка
ТП 810-1-29.88 5837-030.01.01.009 Втулка
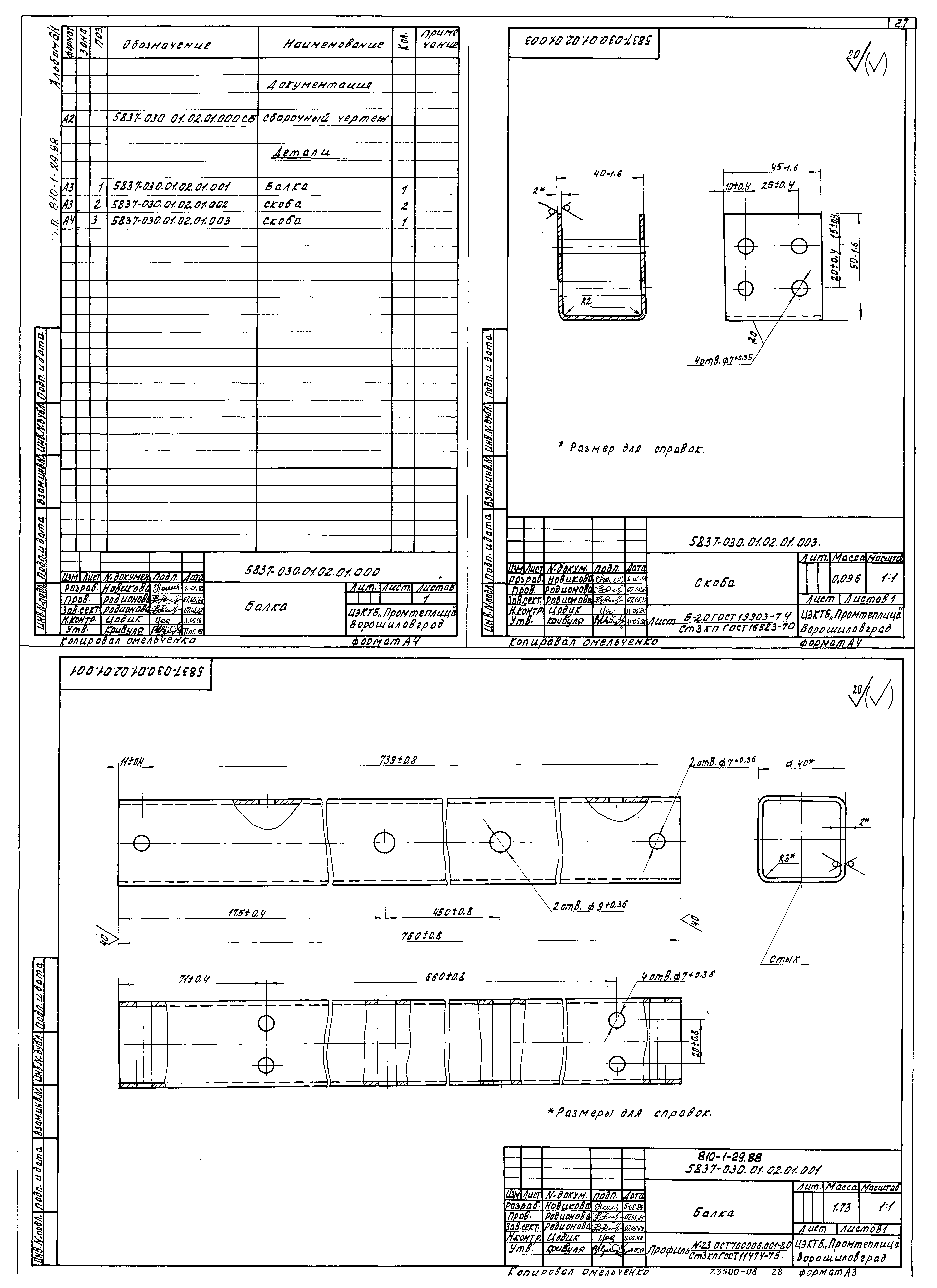
ТП 810-1-29.88 5837-030.01.02.01.000 Балка. Спецификация
ТП 810-1-29.88 5837-030.01.02.01.003 Скоба
ТП 810-1-29.88 5837-030.01.02.01.001 Балка
ТП 810-1-29.88 5837-030.01.02.01.000СБ Балка. Сборочный чертеж
ТП 810-1-29.88 5837-030.01.02.01.002 Скоба
ТП 810-1-29.88 5837-030.01.02.02.000 Барабан. Спецификация
ТП 810-1-29.88 5837-030.01.02.02.001 Труба
ТП 810-1-29.88 5837-030.01.02.02.000 СБ Барабан. Сборочный чертеж
ТП 810-1-29.88 5837-030.01.02.02.002 Ось
ТП 810-1-29.88 5837-030.01.02.02.003 Ось
ТП 810-1-29.88 5837-030.01.02.02.004 Диск
ТП 810-1-29.88 5837-030.01.02.002 Крышка
ТП 810-1-29.88 5837-030.01.02.001 Корпус подшипника
ТП 810-1-29.88 5837-030.01.02.003 Кронштейн
ТП 810-1-29.88 5837-030.01.02.004 Канатоукладчик
ТП 810-1-29.88 5837-030.01.02.005 Крюк
ТП 810-1-29.88 5837-030.01.02.006 Захват
ТП 810-1-29.88 5837-030.01.02.007 Планка
ТП 810-1-29.88 5837-030.01.02.008 Кольцо
ТП 810-1-29.88 5837-030.01.02.009 Прокладка
ТП 810-1-29.88 5837-030.01.02.010 Прокладка
ТП 810-1-29.88 5826-011.00.000 Тележка для сбора овощей. Спецификация
ТП 810-1-29.88 5826-011.01.000 Рама. Спецификация
ТП 810-1-29.88 5826-011.00.000 СБ Тележка для сбора овощей. Сборочный чертеж
ТП 810-1-29.88 5826-011.02.000 СБ Тормоз. Сборочный чертеж
ТП 810-1-29.88 5826-011.00.000 ИЭ Тележка для сбора овощей. Инструкция по эксплуатации
ТП 810-1-29.88 5826-011.01.000 СБ Рама. Сборочный чертеж
ТП 810-1-29.88 5826-011.00.001 Перекладина
ТП 810-1-29.88 5826-011.00.002 Ролик
ТП 810-1-29.88 5826-011.00.003 Ручка
ТП 810-1-29.88 5826-011.00.004 Винт
ТП 810-1-29.88 5826-011.00.005 Пластина
ТП 810-1-29.88 5826-011.00.006 Ось
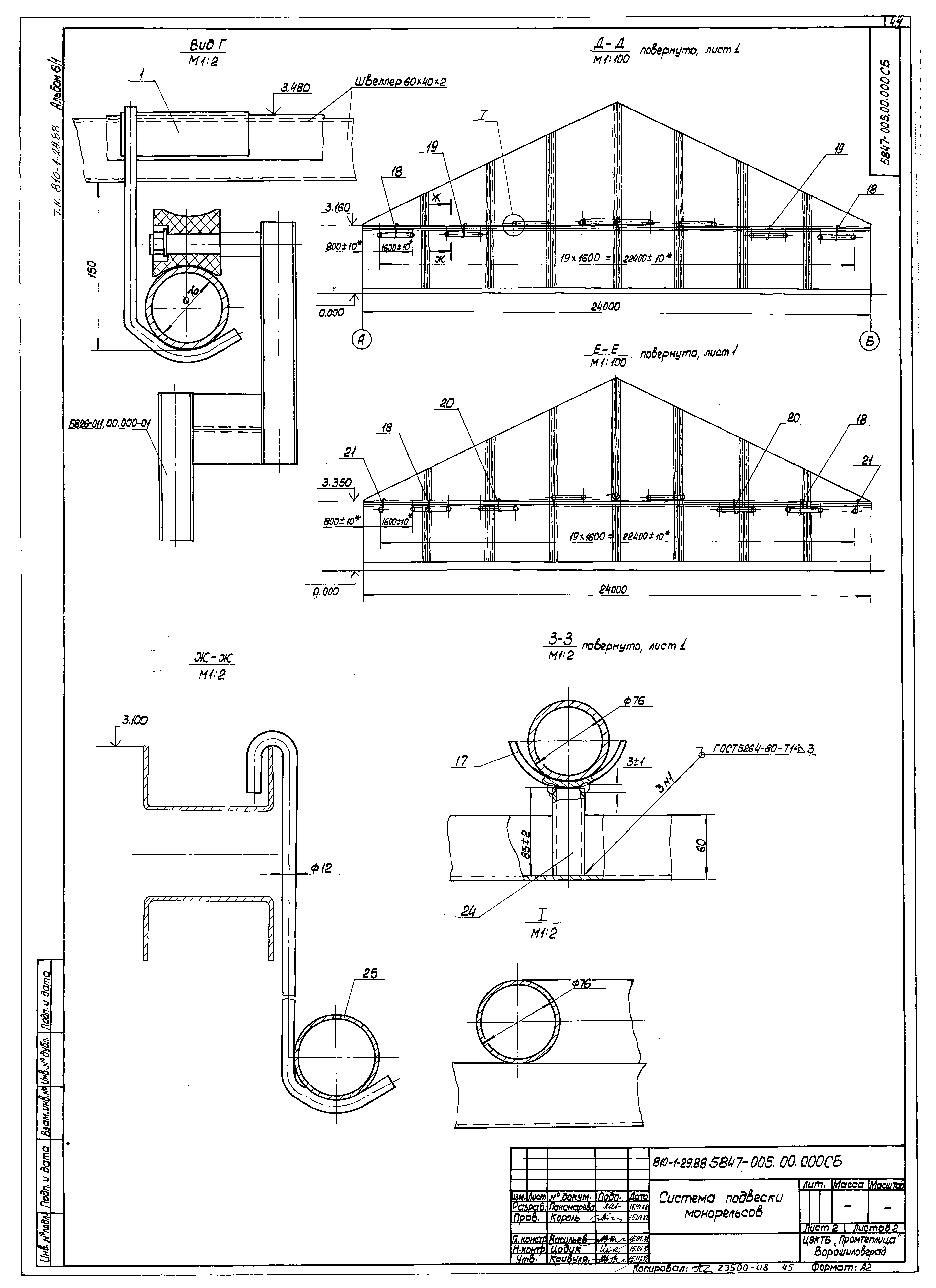
ТП 810-1-29.88 5847-005.00.000 Система подвески монорельсов. Спецификация
ТП 810-1-29.88 5847-005.00.000 СБ Система подвески монорельсов. Сборочный чертеж
ТП 810-1-29.88 5847-005.00.000.01 СБ Система подвески монорельсов. Сборочный чертеж
ТП 810-1-29.88 5847-005.01.000 СБ Подвеска. Сборочный чертеж
ТП 810-1-29.88 5847-005.02.000 СБ Подвеска. Сборочный чертеж
ТП 810-1-29.88 5847-005.00.003 Крюк
ТП 810-1-29.88 5847-005.00.002 Крюк
ТП 810-1-29.88 5847-005.001 Опора
ТП 810-1-29.88 0267-02.00.00.00 Устройство для обслуживания кровли ангарных теплиц пролетом 24 м. Спецификация
ТП 810-1-29.88 0267-02.01.00.00 Секция нижняя. Спецификация
ТП 810-1-29.88 0267-02.00.00.00 СБ Устройство для обслуживания кровли ангарных теплиц пролетом 24 м. Сборочный чертеж
ТП 810-1-29.88 0267-02.00.00.00 ВС Устройство для обслуживания кровли ангарных теплиц пролетом 24 м. Ведомость спецификаций
ТП 810-1-29.88 0267-02.00.00.00 ВП Устройство для обслуживания кровли ангарных теплиц пролетом 24 м. Ведомость покупных изделий
ТП 810-1-29.88 0267-02.00.00.00 РЭ Устройство для обслуживания кровли ангарных теплиц пролетом 24 м. Руководство по эксплуатации
ТП 810-1-29.88 0267-02.01.00.00 СБ Секция нижняя. Сборочный чертеж
ТП 810-1-29.88 0267-02.02.00.00 Секция верхняя. Сборочный чертеж
ТП 810-1-29.88 0267-02.03.00.00 Платформа. Спецификация
ТП 810-1-29.88 0267-02.04.00.00 Лестница вертикальная. Спецификация
ТП 810-1-29.88 0267-02.02.00.00 СБ Секция верхняя. Сборочный чертеж
ТП 810-1-29.88 0267-02.03.00.00 СБ Платформа. Сборочный чертеж
ТП 810-1-29.88 0267-02.04.00.00 СБ Лестница вертикальная. Сборочный чертеж
ТП 810-1-29.88 0267-02.05.00.00 Опора. Спецификация
ТП 810-1-29.88 0267-02.20.00.00 Кассета. Спецификация
ТП 810-1-29.88 0267-02.05.00.00 СБ Опора. Сборочный чертеж
ТП 810-1-29.88 0267-02.20.00.00 СБ Кассета. Сборочный чертеж
ТП 810-1-29.88 0267-02.00.00.01 Пластина
ТП 810-1-29.88 0267-02.00.00.02 Палец
ТП 810-1-29.88 0267-02.01.00.04 Подкос
ТП 810-1-29.88 0267-02.00.00.04 Пластина
Разработан: ЦЭКТБ Промтеплица Госагропрома СССР
Утверждён:15.07.1987 Госагропром СССР (USSR Gosagroprom 549)
Расположен в:Техническая документация Строительство Справочные документы Типовые строительные конструкции, изделия и узлы Общероссийский строительный каталог Сельскохозяйственные предприятия, здания и сооружения Тепличные комбинаты, теплицы и парники Тепличные комбинаты и теплицы
Типовой проект 810-1-29.88Типовой проект 810-1-29.88Типовой проект 810-1-29.88Типовой проект 810-1-29.88Типовой проект 810-1-29.88Типовой проект 810-1-29.88Типовой проект 810-1-29.88Типовой проект 810-1-29.88Типовой проект 810-1-29.88Типовой проект 810-1-29.88Типовой проект 810-1-29.88Типовой проект 810-1-29.88Типовой проект 810-1-29.88Типовой проект 810-1-29.88Типовой проект 810-1-29.88Типовой проект 810-1-29.88Типовой проект 810-1-29.88Типовой проект 810-1-29.88Типовой проект 810-1-29.88Типовой проект 810-1-29.88Типовой проект 810-1-29.88Типовой проект 810-1-29.88Типовой проект 810-1-29.88Типовой проект 810-1-29.88Типовой проект 810-1-29.88Типовой проект 810-1-29.88Типовой проект 810-1-29.88Типовой проект 810-1-29.88Типовой проект 810-1-29.88Типовой проект 810-1-29.88Типовой проект 810-1-29.88Типовой проект 810-1-29.88Типовой проект 810-1-29.88Типовой проект 810-1-29.88Типовой проект 810-1-29.88Типовой проект 810-1-29.88Типовой проект 810-1-29.88Типовой проект 810-1-29.88Типовой проект 810-1-29.88Типовой проект 810-1-29.88Типовой проект 810-1-29.88Типовой проект 810-1-29.88Типовой проект 810-1-29.88Типовой проект 810-1-29.88Типовой проект 810-1-29.88Типовой проект 810-1-29.88Типовой проект 810-1-29.88Типовой проект 810-1-29.88Типовой проект 810-1-29.88Типовой проект 810-1-29.88Типовой проект 810-1-29.88Типовой проект 810-1-29.88Типовой проект 810-1-29.88Типовой проект 810-1-29.88Типовой проект 810-1-29.88Типовой проект 810-1-29.88Типовой проект 810-1-29.88Типовой проект 810-1-29.88Типовой проект 810-1-29.88Типовой проект 810-1-29.88Типовой проект 810-1-29.88Типовой проект 810-1-29.88Типовой проект 810-1-29.88Типовой проект 810-1-29.88Типовой проект 810-1-29.88Типовой проект 810-1-29.88Типовой проект 810-1-29.88Типовой проект 810-1-29.88Типовой проект 810-1-29.88

© 2013 Ёшкин Кот :-) Карта сайта