Информационная система
«Ёшкин Кот»

Скачать базу одним архивом
Скачать обновления
История создания базы
Карта сайта

Скачать Типовой проект 810-1-29.88 Альбом 3. Часть 3. Автоматизация технологических процессов

Дата актуализации: 10.08.2017

Типовой проект 810-1-29.88

Альбом 3. Часть 3. Автоматизация технологических процессов

Обозначение: Типовой проект 810-1-29.88
Обозначение англ: 810-1-29.88
Статус:не определен законодательством
Название рус.:Альбом 3. Часть 3. Автоматизация технологических процессов
Дата добавления в базу:01.09.2013
Дата актуализации:05.05.2017
Дата введения:18.10.1988
Оглавление:ТП 810-1-29.88 АТХ Общие данные (начало)
ТП 810-1-29.88 АТХ Общие данные (продолжение)
ТП 810-1-29.88 АТХ Общие данные (окончание)
ТП 810-1-29.88 АТХ Регулирование температуры воздуха в теплице 16. Схема автоматизации (начало)
ТП 810-1-29.88 АТХ Регулирование температуры воздуха в теплице 16. Схема автоматизации (продолжение)
ТП 810-1-29.88 АТХ Регулирование температуры воздуха в теплице 16. Схема автоматизации (окончание)
ТП 810-1-29.88 АТХ Управление капельным поливом, испарительным охлаждением генераторами СО2 в теплице 16. Метеомачта. Схема автоматизации
ТП 810-1-29.88 АТХ Управление подпочвенным обогревом. Схема автоматизации
ТП 810-1-29.88 АТХ Приготовление воды для капельного полива. Схема автоматизации
ТП 810-1-29.88 АТХ Приготовление воды для испарительного охлаждения. Схема автоматизации
ТП 810-1-29.88 АТХ Панель 1. Схема автоматизации
ТП 810-1-29.88 АТХ Приготовление раствора капельного полива. Схема автоматизации (начало)
ТП 810-1-29.88 АТХ Приготовление раствора капельного полива. Схема автоматизации (продолжение)
ТП 810-1-29.88 АТХ Приготовление раствора капельного полива. Схема автоматизации (окончание)
ТП 810-1-29.88 АТХ Управление микроклиматом в теплице 16. Схема электрическая принципиальная (начало)
ТП 810-1-29.88 АТХ Управление микроклиматом в теплице 16. Схема электрическая принципиальная (окончание)
ТП 810-1-29.88 АТХ Приготовление воды для подпочвенного обогрева. Схема электрическая принципиальная
ТП 810-1-29.88 АТХ Приготовление воды для капельного полива. Схема электрическая принципиальная
ТП 810-1-29.88 АТХ Приготовление воды для испарительного охлаждения. Схема электрическая принципиальная
ТП 810-1-29.88 АТХ Панель 1. Схема электрическая принципиальная
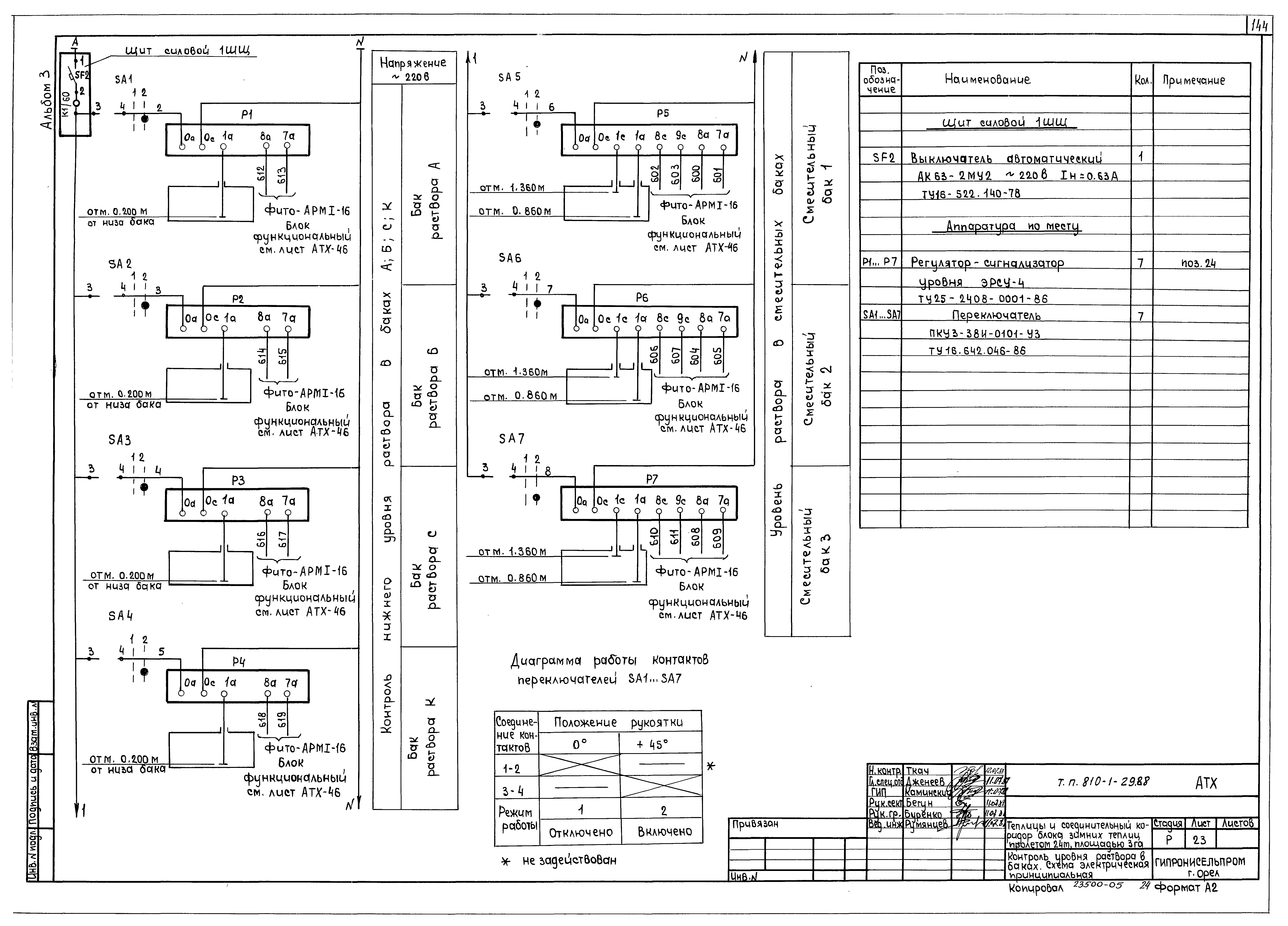
ТП 810-1-29.88 АТХ Контроль уровня раствора в банках. Схема электрическая принципиальная
ТП 810-1-29.88 АТХ Контроль работы насосов. Схема электрическая принципиальная
ТП 810-1-29.88 АТХ Панель. Общий вид. Цепи питания. Схема электрическая принципиальная
ТП 810-1-29.88 АТХ Датчики температурного воздуха в теплице 16. Схема соединений внешних проводок
ТП 810-1-29.88 АТХ Датчик температуры теплоносителя для теплицы 16. Схема соединений внешних проводок
ТП 810-1-29.88 АТХ Датчик положения форточек в теплице 16. Схема соединений внешних проводок
ТП 810-1-29.88 АТХ Датчик влажности воздуха в теплице 16. Схема соединений внешних проводок
ТП 810-1-29.88 АТХ Контроль положения форточек и шпорного экрана в теплице 16. Схема соединений внешних проводок (начало)
ТП 810-1-29.88 АТХ Контроль положения форточек и шпорного экрана в теплице 16. Схема соединений внешних проводок (окончание)
ТП 810-1-29.88 АТХ Управление воздушным обогревом в теплице 16. Схема соединений внешних проводок (начало)
ТП 810-1-29.88 АТХ Управление воздушным обогревом в теплице 16. Схема соединений внешних проводок (окончание)
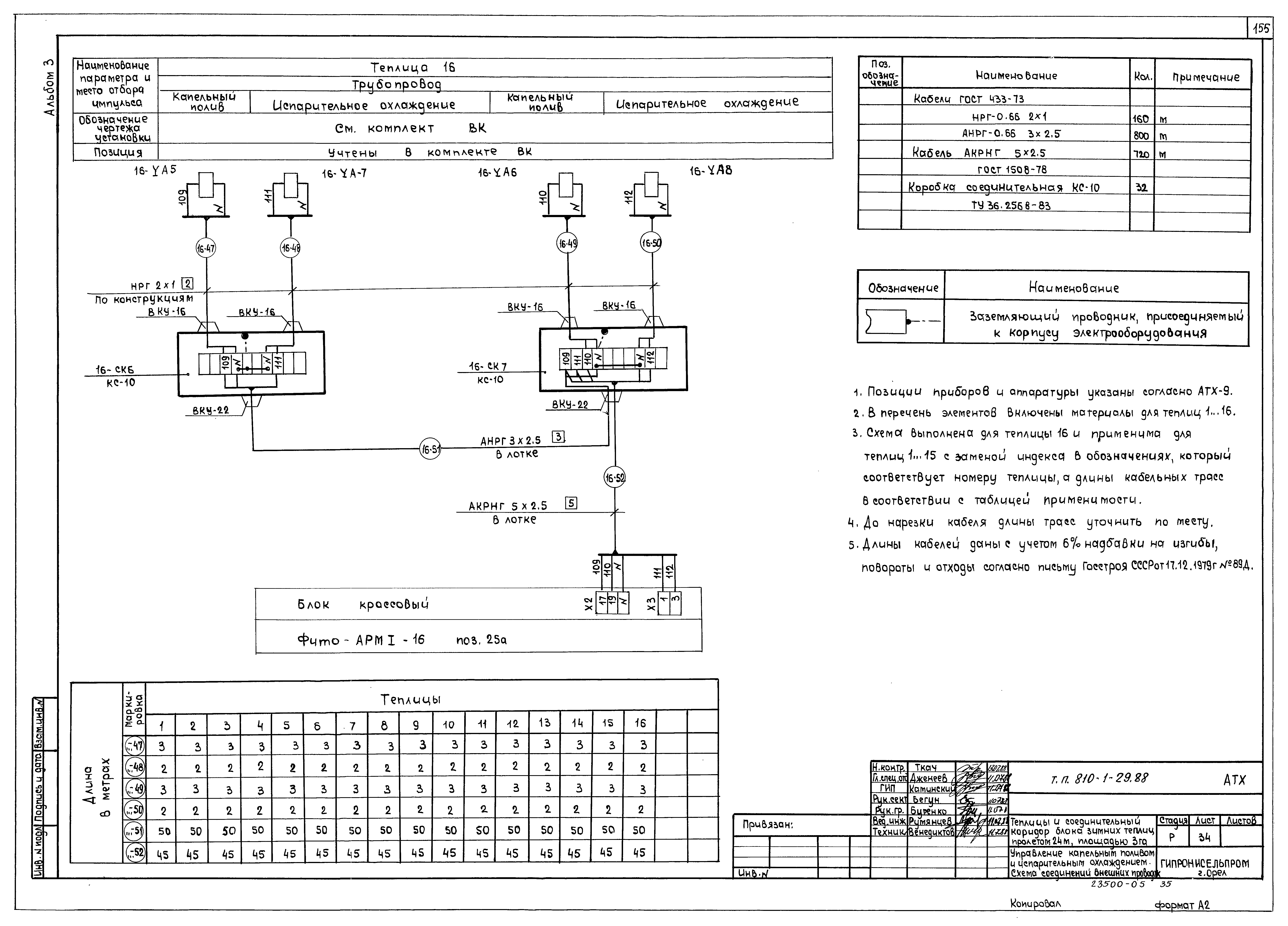
ТП 810-1-29.88 АТХ Управление капельным поливом и испарительным охлаждением. Схема соединений внешних проводок
ТП 810-1-29.88 АТХ Управление генераторами СО2 в теплице 16. Схема соединений внешних проводок
ТП 810-1-29.88 АТХ Метеомачта. Тепловой ввод. Схема соединений внешних проводок
ТП 810-1-29.88 АТХ Управление подпочвенным обогревом. Схема соединений внешних проводок (начало)
ТП 810-1-29.88 АТХ Управление подпочвенным обогревом. Схема соединений внешних проводок (окончание)
ТП 810-1-29.88 АТХ Приготовление воды для капельного полива. Схема соединений внешних проводок (начало)
ТП 810-1-29.88 АТХ Приготовление воды для капельного полива. Схема соединений внешних проводок (окончание)
ТП 810-1-29.88 АТХ Приготовление воды для испарительного охлаждения. Схема соединений внешних проводок (начало)
ТП 810-1-29.88 АТХ Приготовление воды для испарительного охлаждения. Схема соединений внешних проводок (окончание)
ТП 810-1-29.88 АТХ Контроль концентрации раствора в баках. Схема соединений внешних проводок
ТП 810-1-29.88 АТХ Контроль уровня концентрации раствора в баках. Схема соединений внешних проводок (начало)
ТП 810-1-29.88 АТХ Контроль уровня концентрации раствора в баках. Схема соединений внешних проводок (продолжение)
ТП 810-1-29.88 АТХ Контроль уровня концентрации раствора в баках. Схема соединений внешних проводок (окончание)
ТП 810-1-29.88 АТХ Контроль работы насосов. Схема соединений внешних проводок
ТП 810-1-29.88 АТХ Контроль расхода раствора в трубопроводах. Схема соединений внешних проводок
ТП 810-1-29.88 АТХ Панель 1. Общий вид. Схема соединений внешних проводок (начало)
ТП 810-1-29.88 АТХ Панель 1. Схема соединений внешних проводок (окончание)
ТП 810-1-29.88 АТХ Фито-АРМI-16. Силовой щит ШР16. Схема соединений внешних проводок
ТП 810-1-29.88 АТХ Фито-АРМI-16. Щиты силовые 1ШЩ;2ШЩ;3ШЩ. Схема соединений внешних проводок
ТП 810-1-29.88 АТХ Регулирование перепада давления теплоносителя на вводе в теплицу 16. Схема соединений внешних проводок
ТП 810-1-29.88 АТХ Контрольно-измерительные приборы в теплице 16. Схема соединений внешних проводок
ТП 810-1-29.88 АТХ Теплица 13. План расположения
ТП 810-1-29.88 АТХ Теплица 14. План расположения
ТП 810-1-29.88 АТХ Теплица 15. План расположения
ТП 810-1-29.88 АТХ Теплица 16. План расположения
ТП 810-1-29.88 АТХ Управление генераторами СО2 в теплице 15. План расположения
ТП 810-1-29.88 АТХ Управление генераторами СО2 в теплице 16. План расположения
ТП 810-1-29.88 АТХ Соединительный коридор. План расположения
ТП 810-1-29.88 АТХ Панель 1. Панель 2. План расположения
ТП 810-1-29.88 АТХ Тепловой пункт. План расположения
ТП 810-1-29.88 АТХ Растворный узел минеральных удобрений. План расположения
ТП 810-1-29.88 АТХ Регулятор РД-3М. План расположения
ТП 810-1-29.88 АТХ Световод. План расположения
ТП 810-1-29.88 АТХ Короба. Световод. План расположения
Разработан: Гипронисельпром Госагропрома СССР
Утверждён:15.07.1987 Госагропром СССР (USSR Gosagroprom 549)
Расположен в:Техническая документация Строительство Справочные документы Типовые строительные конструкции, изделия и узлы Общероссийский строительный каталог Сельскохозяйственные предприятия, здания и сооружения Тепличные комбинаты, теплицы и парники Тепличные комбинаты и теплицы
Типовой проект 810-1-29.88Типовой проект 810-1-29.88Типовой проект 810-1-29.88Типовой проект 810-1-29.88Типовой проект 810-1-29.88Типовой проект 810-1-29.88Типовой проект 810-1-29.88Типовой проект 810-1-29.88Типовой проект 810-1-29.88Типовой проект 810-1-29.88Типовой проект 810-1-29.88Типовой проект 810-1-29.88Типовой проект 810-1-29.88Типовой проект 810-1-29.88Типовой проект 810-1-29.88Типовой проект 810-1-29.88Типовой проект 810-1-29.88Типовой проект 810-1-29.88Типовой проект 810-1-29.88Типовой проект 810-1-29.88Типовой проект 810-1-29.88Типовой проект 810-1-29.88Типовой проект 810-1-29.88Типовой проект 810-1-29.88Типовой проект 810-1-29.88Типовой проект 810-1-29.88Типовой проект 810-1-29.88Типовой проект 810-1-29.88Типовой проект 810-1-29.88Типовой проект 810-1-29.88Типовой проект 810-1-29.88Типовой проект 810-1-29.88Типовой проект 810-1-29.88Типовой проект 810-1-29.88Типовой проект 810-1-29.88Типовой проект 810-1-29.88Типовой проект 810-1-29.88Типовой проект 810-1-29.88Типовой проект 810-1-29.88Типовой проект 810-1-29.88Типовой проект 810-1-29.88Типовой проект 810-1-29.88Типовой проект 810-1-29.88Типовой проект 810-1-29.88Типовой проект 810-1-29.88Типовой проект 810-1-29.88Типовой проект 810-1-29.88Типовой проект 810-1-29.88Типовой проект 810-1-29.88Типовой проект 810-1-29.88Типовой проект 810-1-29.88Типовой проект 810-1-29.88Типовой проект 810-1-29.88Типовой проект 810-1-29.88Типовой проект 810-1-29.88Типовой проект 810-1-29.88Типовой проект 810-1-29.88Типовой проект 810-1-29.88Типовой проект 810-1-29.88Типовой проект 810-1-29.88Типовой проект 810-1-29.88Типовой проект 810-1-29.88Типовой проект 810-1-29.88Типовой проект 810-1-29.88Типовой проект 810-1-29.88Типовой проект 810-1-29.88Типовой проект 810-1-29.88Типовой проект 810-1-29.88

© 2013 Ёшкин Кот :-) Карта сайта