Информационная система
«Ёшкин Кот»

Скачать базу одним архивом
Скачать обновления
История создания базы
Карта сайта

Скачать Типовой проект 810-1-12.86 Альбом X. Производственно-вспомогательные и бытовые помещения. Строительные изделия

Дата актуализации: 10.08.2017

Типовой проект 810-1-12.86

Альбом X. Производственно-вспомогательные и бытовые помещения. Строительные изделия

Обозначение: Типовой проект 810-1-12.86
Обозначение англ: 810-1-12.86
Статус:не определен законодательством
Название рус.:Альбом X. Производственно-вспомогательные и бытовые помещения. Строительные изделия
Дата добавления в базу:01.09.2013
Дата актуализации:05.05.2017
Дата введения:01.08.1986
Оглавление:ТП 810-1-12.86 Содержание альбома
ТП 810-1-12.86 АРЦ-01.00 Изделие закладное МН1
ТП 810-1-12.86 АРЦ-02.00 Изделие закладное (МН2;МН3)
ТП 810-1-12.86 АРЦ-03.00 Изделие закладное (МН4;МН5)
ТП 810-1-12.86 АРЦ-04.00 Изделие закладное МН6
ТП 810-1-12.86 АРЦ-05.00 Наддверная вставка (ДВ1,ДВ2)
ТП 810-1-12.86 АРЦ-06.00 Решетка РП1
ТП 810-1-12.86 АРЦ-07.00 Перегородка щитовая УД6
ТП 810-1-12.86 КЖИ-01.00 Перемычка ЗПР41-44,38.44-а
ТП 810-1-12.86 КЖИ-02.00 Подставка под коллекторы ППК1
ТП 810-1-12.86 КЖИ-02.00 СБ Подставка под коллекторы ППК1. Сборочный чертеж
ТП 810-1-12.86 КЖИ-03.00 Опора под водоподогреватель ОПВ1
ТП 810-1-12.86 КЖИ-03.00 СБ Опора под водоподогреватель ОПВ1. Сборочный чертеж
ТП 810-1-12.86 КЖИ-04.00 Опора под водоподогреватель ОПВ2
ТП 810-1-12.86 КЖИ-04.00 СБ Опора под водоподогреватель ОПВ2. Сборочный чертеж
ТП 810-1-12.86 КЖИ-05.00 Стремянка СТ1
ТП 810-1-12.86 КЖИ-06.00 Изделие закладное МН1
ТП 810-1-12.86 КЖИ-07.00 Изделие закладное МН2
ТП 810-1-12.86 КЖИ-08.00 Изделие соединительное МС2;МС3
ТП 810-1-12.86 КЖИ-09.00 Болт анкерный А2
ТП 810-1-12.86 КЖИ-10.00 Балка (Б2;Б3)
ТП 810-1-12.86 КЖИ-11.00 Решетка стальная РС1,РС2
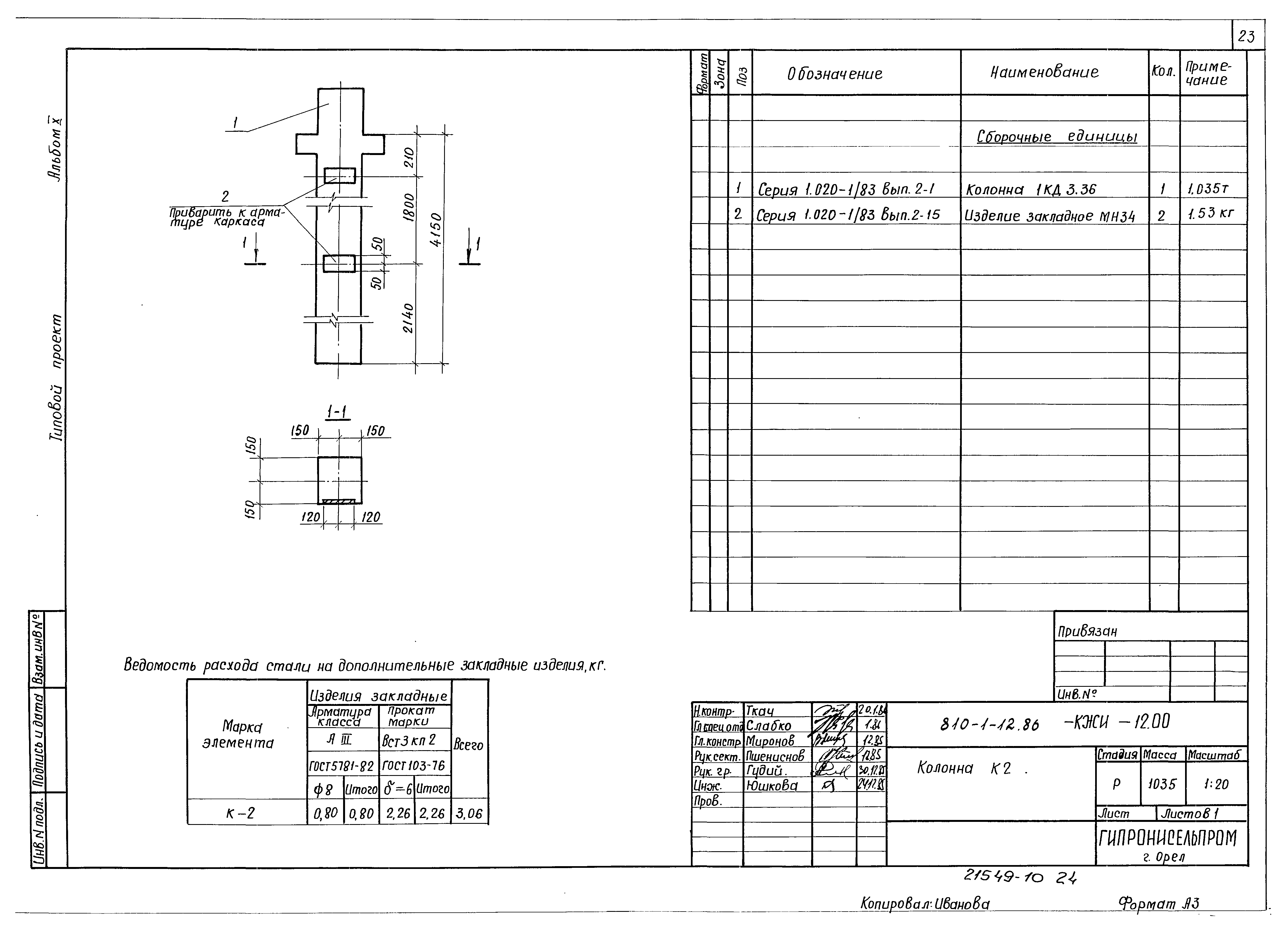
ТП 810-1-12.86 КЖИ-12.00 Колонна К2
ТП 810-1-12.86 КЖИ-13.00 Колонна К3
ТП 810-1-12.86 КЖИ-14.00 Колонна К4
ТП 810-1-12.86 КЖИ-15.00 Колонна К5
ТП 810-1-12.86 КЖИ-16.00 Изделие соединительное МС4
ТП 810-1-12.86 КЖИ-17.00 Изделие соединительное МС5
ТП 810-1-12.86 КЖИ-18.00.00 Плита покрытия (П6-П8;П10)
ТП 810-1-12.86 КЖИ-18.01.00 Сетка арматурная (СА1;СА2)
ТП 810-1-12.86 КЖИ-19.00 Плита покрытия П9
ТП 810-1-12.86 КЖИ-20.00 Балочная клетка БК1
ТП 810-1-12.86 КЖИ-21.00 Балочная клетка БК2
ТП 810-1-12.86 КЖИ-22.00 Изделие закладное МН3
ТП 810-1-12.86 КЖИ-23.00 Балка Б1
ТП 810-1-12.86 КЖИ-24.00 Панель стеновая ПС1
ТП 810-1-12.86 КЖИ-25.00 Панель стеновая ПС2
ТП 810-1-12.86 КЖИ-26.00 Панель стеновая ПС3
ТП 810-1-12.86 КЖИ-27.00 Панель стеновая ПС4
ТП 810-1-12.86 КЖИ-28.00 Панель стеновая ПС5
ТП 810-1-12.86 КЖИ-29.00 Панель стеновая ПС6
ТП 810-1-12.86 КЖИ-30.00 Панель стеновая ПС7
ТП 810-1-12.86 КЖИ-31.00 Панель стеновая ПС8
ТП 810-1-12.86 КЖИ-32.00 Панель стеновая ПС9
ТП 810-1-12.86 КЖИ-33.00 Панель стеновая ПС10
ТП 810-1-12.86 КЖИ-34.00 Панель стеновая ПС11
ТП 810-1-12.86 КЖИ-35.00 Панель стеновая ПС12
ТП 810-1-12.86 КЖИ-36.00 Ножка Н-2
ТП 810-1-12.86 КЖИ-36.01 Уголок
ТП 810-1-12.86 КЖИ-37.00 Винт В-2
ТП 810-1-12.86 КЖИ-38.00 Втулка ВТ-4
ТП 810-1-12.86 КЖИ-39.00 Накладка НМ-1
ТП 810-1-12.86 КЖИ-40.00 Щит деревянный ЩД-4
ТП 810-1-12.86 КЖИ-41.00 Площадка П-8
ТП 810-1-12.86 КЖИ-42.00 Площадка П-10
Разработан: Гипронисельпром Минплодоовощхоза СССР
Утверждён:16.11.1984 Минплодоовощхоз СССР (03-7-52/6210)
Расположен в:Техническая документация Строительство Справочные документы Типовые строительные конструкции, изделия и узлы Общероссийский строительный каталог Сельскохозяйственные предприятия, здания и сооружения Тепличные комбинаты, теплицы и парники Тепличные комбинаты и теплицы
Типовой проект 810-1-12.86Типовой проект 810-1-12.86Типовой проект 810-1-12.86Типовой проект 810-1-12.86Типовой проект 810-1-12.86Типовой проект 810-1-12.86Типовой проект 810-1-12.86Типовой проект 810-1-12.86Типовой проект 810-1-12.86Типовой проект 810-1-12.86Типовой проект 810-1-12.86Типовой проект 810-1-12.86Типовой проект 810-1-12.86Типовой проект 810-1-12.86Типовой проект 810-1-12.86Типовой проект 810-1-12.86Типовой проект 810-1-12.86Типовой проект 810-1-12.86Типовой проект 810-1-12.86Типовой проект 810-1-12.86Типовой проект 810-1-12.86Типовой проект 810-1-12.86Типовой проект 810-1-12.86Типовой проект 810-1-12.86Типовой проект 810-1-12.86Типовой проект 810-1-12.86Типовой проект 810-1-12.86Типовой проект 810-1-12.86Типовой проект 810-1-12.86Типовой проект 810-1-12.86Типовой проект 810-1-12.86Типовой проект 810-1-12.86Типовой проект 810-1-12.86Типовой проект 810-1-12.86Типовой проект 810-1-12.86Типовой проект 810-1-12.86Типовой проект 810-1-12.86Типовой проект 810-1-12.86Типовой проект 810-1-12.86Типовой проект 810-1-12.86Типовой проект 810-1-12.86Типовой проект 810-1-12.86Типовой проект 810-1-12.86Типовой проект 810-1-12.86Типовой проект 810-1-12.86Типовой проект 810-1-12.86Типовой проект 810-1-12.86Типовой проект 810-1-12.86Типовой проект 810-1-12.86Типовой проект 810-1-12.86Типовой проект 810-1-12.86Типовой проект 810-1-12.86

© 2013 Ёшкин Кот :-) Карта сайта