Скачать Типовой проект 810-1-12.86 Альбом III. Блочные теплицы и соединительный коридор. Чертежи по водопроводу, канализации и технологическим трубопроводам. Электротехнические чертежиДата актуализации: 10.08.2017 Типовой проект 810-1-12.86
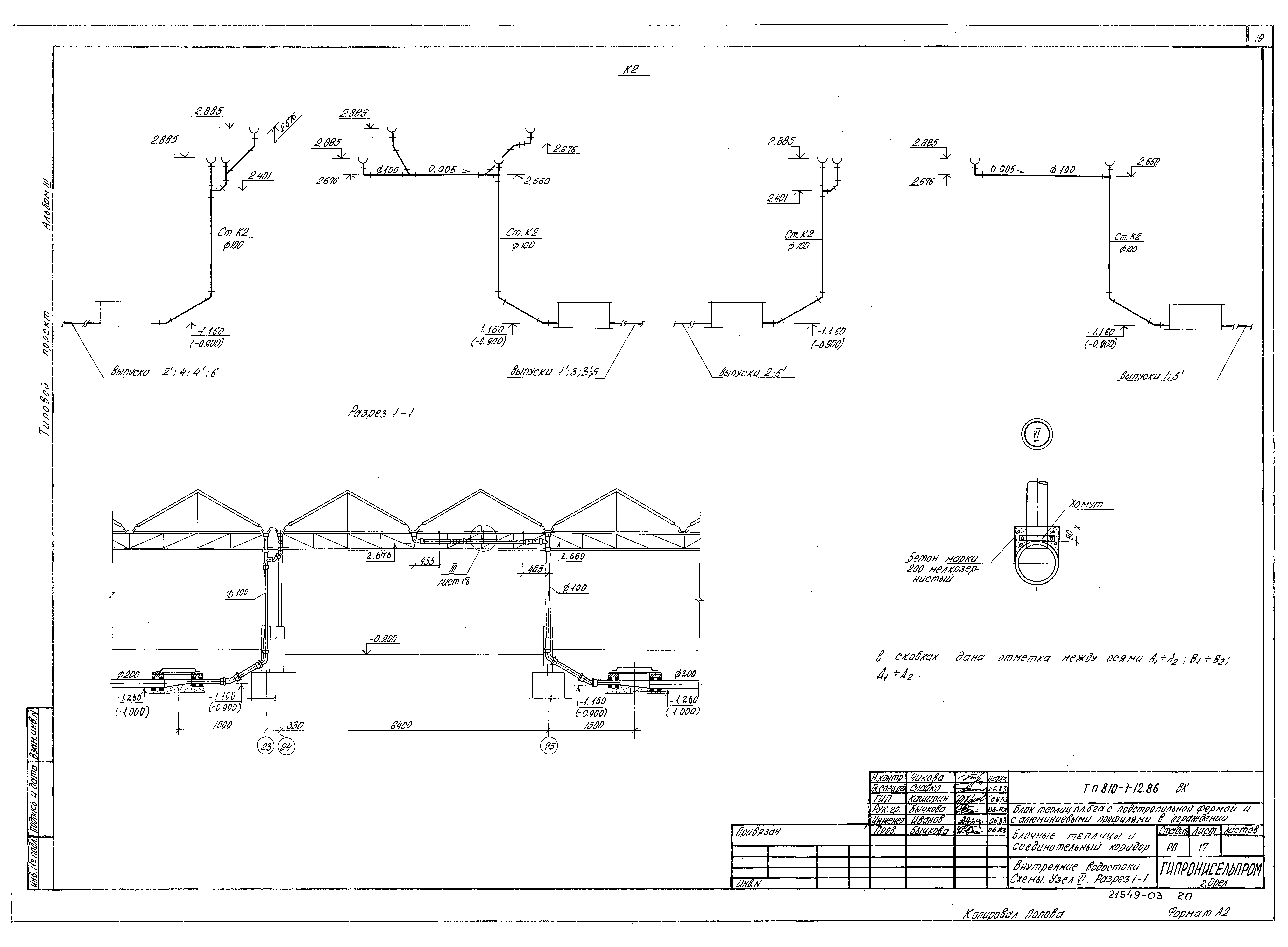
Альбом III. Блочные теплицы и соединительный коридор. Чертежи по водопроводу, канализации и технологическим трубопроводам. Электротехнические чертежиОбозначение: | Типовой проект 810-1-12.86 | Обозначение англ: | 810-1-12.86 | Статус: | не определен законодательством | Название рус.: | Альбом III. Блочные теплицы и соединительный коридор. Чертежи по водопроводу, канализации и технологическим трубопроводам. Электротехнические чертежи | Дата добавления в базу: | 01.09.2013 | Дата актуализации: | 05.05.2017 | Дата введения: | 01.08.1986 | Оглавление: | ТП 810-1-12.86 Содержание альбома ТП 810-1-12.86 ВК-1 Общие данные (начало) ТП 810-1-12.86 ВК-2 Общие данные (продолжение) ТП 810-1-12.86 ВК-3 Общие данные (продолжение) ТП 810-1-12.86 ВК-4 Общие данные (продолжение) ТП 810-1-12.86 ВК-5 Общие данные (окончание) ТП 810-1-12.86 ВК-6 Поливочный водопровод. План теплиц с трубопроводами поливочной воды и ядохимикатов ТП 810-1-12.86 ВК-7 Поливочный водопровод. Фрагменты 1,2. Узлы 1,2 ТП 810-1-12.86 ВК-8 Поливочный водопровод. Разрезы 1-1;2-2;3-3;4-4;А-А. Узел 3 ТП 810-1-12.86 ВК-9 Поливочный водопровод. Разрез 5-5. Монтажная схема оросителя. Эскиз. Узел 4 ТП 810-1-12.86 ВК-10 Поливочный водопровод. Узлы 5,6. Разрезы Б-Б;В-В;Г-Г;Д-Д ТП 810-1-12.86 ВК-11 Поливочный водопровод. Схема системы В10 ТП 810-1-12.86 ВК-12 Система растворов ядохимикатов. Разрезы 6-6;7-7;8-8. Узел 7 ТП 810-1-12.86 ВК-13 Дренаж. План теплиц 3,4 ТП 810-1-12.86 ВК-14 Дренаж. Схемы дренажа теплиц. Узел 1. Разрез 1-1 ТП 810-1-12.86 ВК-15 Дренаж. Детали соединения труб. Дренажные колодцы. Таблица колодцев ТП 810-1-12.86 ВК-16 Внутренние водостоки. План теплиц 3,4. Узлы 1,2 ТП 810-1-12.86 ВК-17 Внутренние водостоки. Схемы. Узел 6. Разрез 1-1 ТП 810-1-12.86 ВК-18 Внутренние водостоки. Разрезы 2-2;3-3;4-4;А-А;Б-Б;В-В. Узлы 3,4 ТП 810-1-12.86 ВК-19 Внутренние водостоки. Водосточные колодцы. Узел 5. Разрезы 5-5;Г-Г;Д-Д ТП 810-1-12.86 ВК-20 Внутренние водостоки. Продольные профили выпусков 1-6;1´-6´ ТП 810-1-12.86 ВК-21 Соединительный коридор. Производственная канализация. План. Разрез 1-1 ТП 810-1-12.86 ГС-1 Общие данные ТП 810-1-12.86 ГС-2 План разводки газопроводов к универсальным генераторам СО2-УГ.Б на отм. 0.000. Разрез 1-1 ТП 810-1-12.86 ГС-3 Схема газопроводов блока теплиц. Разрез 2-2 ТП 810-1-12.86 ЭМ-1 Общие данные (начало) ТП 810-1-12.86 ЭМ-2 Общие данные (окончание) ТП 810-1-12.86 ЭМ-3 План сети электрического освещения теплиц 1-2 ТП 810-1-12.86 ЭМ-4 План сети электрического освещения теплиц 3-4 ТП 810-1-12.86 ЭМ-5 План сети электрического освещения теплиц 5-6 ТП 810-1-12.86 ЭМ-6 План сети электрического освещения соединительного коридора ТП 810-1-12.86 ЭМ-7 Расчетная схема сети электрического освещения ТП 810-1-12.86 ЭМ-8 План силовой электрической сети теплиц 1-2 ТП 810-1-12.86 ЭМ-9 План силовой электрической сети теплиц 3-4 ТП 810-1-12.86 ЭМ-10 План силовой электрической сети теплиц 5-6 ТП 810-1-12.86 ЭМ-11 Расчетная схема силового распределительного шкафа 1ШР,2ШР,3ШР ТП 810-1-12.86 ЭМ-12 План силовой электрической сети соединительного коридора ТП 810-1-12.86 ЭМ-13 Фрагменты 1 (для 3 и 5 световой зоны) ТП 810-1-12.86 ЭМ-14 План сети электродосвечивания в осях В1-В13,36-47 для 3 световой зоны ТП 810-1-12.86 ЭМ-15 План сети электродосвечивания в осях В14-В26,36-47 для 3 световой зоны ТП 810-1-12.86 ЭМ-16 План сети электродосвечивания в осях В1-В13,36-47 для 5 световой зоны ТП 810-1-12.86 ЭМ-17 План сети электродосвечивания в осях В14-В26, 36-47 для 5 световой зоны ТП 810-1-12.86 ЭМ-18 Расчетная схема сети электродосвечивания для 3 световой зоны ТП 810-1-12.86 ЭМ-19 Расчетная схема сети электродосвечивания для 5 световой зоны ТП 810-1-12.86 ЭМ-20 Разрезы 1-1;2-2;3-3 ТП 810-1-12.86 ЭМ-21 Принципиальная схема распределительного устройства системы управления специальными источниками света (РУ-1М) ТП 810-1-12.86 ЭМН.1 Узел крепления магнитного пускателя ПМЕ-31 ТП 810-1-12.86 ЭМН.2 Узел крепления ящика ЯВШ-3-25-Т ТП 810-1-12.86 ЭМН.3 Узел крепления магнитного пускателя ПМЕ-134 и кнопочного паста ПКЕ-222-2 ТП 810-1-12.86 ЭМН.4 Узел крепления переключателя ПКП 22-44-13-У2 ТП 810-1-12.86 ЭМН.5 Узел крепления коробки КОР-73 ТП 810-1-12.86 ЭМН.6 Узел крепления ответвительной коробки КР-63-7У5 ТП 810-1-12.86 ЭМН.7 Узел крепления светильника ТП 810-1-12.86 ЭМН.8 Узел крепления светильника ТП 810-1-12.86 ЭМН.9 Узел крепления подвески лотка ТП 810-1-12.86 ЭМН.10 Узел подвески облучателя ОТ-400 ТП 810-1-12.86 ЭМН.11 Узел крепления автоматического выключателя АП-50-3МТ | Разработан: | Гипронисельпром Минплодоовощхоза СССР
| Утверждён: | 16.11.1984 Минплодоовощхоз СССР (03-7-52/6210)
| Расположен в: |
|
                                                  
|