Информационная система
«Ёшкин Кот»

Скачать базу одним архивом
Скачать обновления
История создания базы
Карта сайта

Скачать Типовой проект 810-1-12.86 Альбом I. Пояснительная записка. Блочные теплицы и соединительный коридор. Технологические и архитектурно-строительные чертежи

Дата актуализации: 10.08.2017

Типовой проект 810-1-12.86

Альбом I. Пояснительная записка. Блочные теплицы и соединительный коридор. Технологические и архитектурно-строительные чертежи

Обозначение: Типовой проект 810-1-12.86
Обозначение англ: 810-1-12.86
Статус:не определен законодательством
Название рус.:Альбом I. Пояснительная записка. Блочные теплицы и соединительный коридор. Технологические и архитектурно-строительные чертежи
Дата добавления в базу:01.09.2013
Дата актуализации:05.05.2017
Дата введения:01.08.1986
Оглавление:ТП 810-1-12.86 Содержание альбома (начало)
ТП 810-1-12.86 Содержание альбома (окончание)
ТП 810-1-12.86 ПЗ-1 Пояснительная записка (начало)
ТП 810-1-12.86 ПЗ-2 Пояснительная записка (продолжение)
ТП 810-1-12.86 ПЗ-3 Пояснительная записка (продолжение)
ТП 810-1-12.86 ПЗ-4 Пояснительная записка (продолжение)
ТП 810-1-12.86 ПЗ-5 Пояснительная записка (окончание)
ТП 810-1-12.86 СК-1 Схема компоновки блока теплиц
ТП 810-1-12.86 ТХ Технологические чертежи
ТП 810-1-12.86 ТХ-1 Общие данные (начало)
ТП 810-1-12.86 ТХ-2 Общие данные (продолжение)
ТП 810-1-12.86 ТХ-3 Общие данные (продолжение)
ТП 810-1-12.86 ТХ-4 Общие данные (продолжение)
ТП 810-1-12.86 ТХ-5 Общие данные (окончание)
ТП 810-1-12.86 ТХ-6 Схема стерилизации почвы паром. Разрезы. Вид
ТП 810-1-12.86 ТХ-7 План расположения универсальных генераторов УГ-6. Разрез. Таблица площадей
ТП 810-1-12.86 ТХ-8 Схемы размещения рядов растений и шпалерных опор
ТП 810-1-12.86 ТХН-1 Узел подвески генератора УГ-6
ТП 810-1-12.86 ТХН-2 Труба парораспределительная
ТП 810-1-12.86 АР Архитектурно-строительные чертежи
ТП 810-1-12.86 АР-1 Общие данные
ТП 810-1-12.86 АР-2 План на отм. 0.000
ТП 810-1-12.86 АР-3 Фасады. Разрезы
ТП 810-1-12.86 АР-4 Фрагменты 1;2
ТП 810-1-12.86 АР-5 Фрагменты 3-5. Узлы 1;2
ТП 810-1-12.86 АР-6 Узлы 3;4
ТП 810-1-12.86 АР-7 Узлы 5;10
ТП 810-1-12.86 АР-8 Узлы 11;15
ТП 810-1-12.86 АР-9 Схема расположения изделий соединительных
ТП 810-1-12.86 АРИ-01.00 Изделие соединительное ИС1
ТП 810-1-12.86 АРИ-02.00 Изделие соединительное ИС2
ТП 810-1-12.86 АРИ-03.00 Изделие соединительное ИС3
ТП 810-1-12.86 АРИ-04.00 Изделие соединительное ИС4
ТП 810-1-12.86 АРИ-05.00 Изделие соединительное ИС5
ТП 810-1-12.86 АРИ-06.00 Изделие соединительное ИС6
ТП 810-1-12.86 АРИ-07.00 Изделие соединительное ИС7
ТП 810-1-12.86 АРИ-08.00 Изделие соединительное ИС8
ТП 810-1-12.86 АРИ-09.00 Изделие соединительное ИС9
ТП 810-1-12.86 АРИ-10.00 Изделие соединительное ИС10
ТП 810-1-12.86 АРИ-11.00 Изделие соединительное ИС11
ТП 810-1-12.86 АРИ-12.00 Изделие соединительное ИС12
ТП 810-1-12.86 АРИ-13.00 Изделие соединительное ИС13
ТП 810-1-12.86 АРИ-14.00 Изделие соединительное ИС14
ТП 810-1-12.86 АРИ-15.00 Изделие соединительное ИС15
ТП 810-1-12.86 АРИ-16.00 Изделие соединительное ИС16
ТП 810-1-12.86 КЖ-1 Общие данные (начало)
ТП 810-1-12.86 КЖ-2 Общие данные (окончание)
ТП 810-1-12.86 КЖ-3 Схема расположения фундаментов и цокольных плит теплиц I и V
ТП 810-1-12.86 КЖ-4 Схема расположения фундаментов и цокольных плит теплиц II;IV и VI
ТП 810-1-12.86 КЖ-5 Схема расположения фундаментов и цокольных плит теплицы III
ТП 810-1-12.86 КЖ-6 Схема расположения фундаментов и цокольных плит соединительного коридора
ТП 810-1-12.86 КЖ-7 Спецификации к схемам расположения фундаментов и цокольных плит теплиц I-VI и соединительного коридора
ТП 810-1-12.86 КЖ-8 Монолитные фундаменты ФМ1-ФМ9
ТП 810-1-12.86 КЖ-9 Фундаменты ФМ10;ФМ11;ФС4;ФС4ª;ФС8;ФС8ª. Участок монолитный УМ1
ТП 810-1-12.86 КЖ-10 Спецификация элементов монолитной конструкции (начало)
ТП 810-1-12.86 КЖ-11 Спецификация элементов монолитной конструкции (окончание)
ТП 810-1-12.86 КЖ-12 Узлы 1-6
ТП 810-1-12.86 КЖ-13 Узлы 7-11
ТП 810-1-12.86 КЖ-14 Узлы 12-15
ТП 810-1-12.86 КЖ-15 Узлы 16-19
ТП 810-1-12.86 КЖ-16 Узлы 20-23
ТП 810-1-12.86 КЖ-17 Узлы 24-27
ТП 810-1-12.86 КЖ-18 Узлы 28-31. Детали устройства деформационных швов. Узел 6
ТП 810-1-12.86 КЖ-19 Узлы 32-34. Детали устройства опоры на фундамент ФС
ТП 810-1-12.86 КЖИ-17.00 СБ Плита цокольная ПЦ1. Сборочный чертеж
ТП 810-1-12.86 КЖИ-17.00 Плита цокольная ПЦ1
ТП 810-1-12.86 КЖИ-18.00 Изделие соединительное МН1
ТП 810-1-12.86 КЖИ-17.10 СБ Каркас пространственный (КР1;КР2). Сборочный чертеж
ТП 810-1-12.86 КЖИ-17.10 Каркас пространственный (КР1;КР2)
ТП 810-1-12.86 КЖИ-17.20 СБ Сетка арматурная (С2;С3). Сборочный чертеж
ТП 810-1-12.86 КЖИ-17.20 Сетка арматурная (С2;С3)
ТП 810-1-12.86 КЖИ-19.00 СБ Столбик СФ1. Сборочный чертеж
ТП 810-1-12.86 КЖИ-19.00 Столбик СФ1
ТП 810-1-12.86 КЖИ-19.10 Сетка арматурная С1
ТП 810-1-12.86 КЖИ-19.20 Изделие закладное МН2
ТП 810-1-12.86 КЖИ-20.00 Изделие закладное МН3(МН5)
ТП 810-1-12.86 КЖИ-21.00 Изделие закладное МН4
ТП 810-1-12.86 КЖИ-22.00 Сетка арматурная С4
ТП 810-1-12.86 КЖИ-23.00 СБ Фундаментальные блоки ФБС9.4.Б-т-А, ФБС12.4.6-т-А. Сборочный чертеж
ТП 810-1-12.86 КЖИ-23.00 Фундаментальные блоки ФБС9.4.Б-т-А, ФБС12.4.6-т-А
ТП 810-1-12.86 КЖИ-24.00 СБ Фундаментальные блоки ФБС24.4.Б-т-А, ФБС24.5.6-т-А. Сборочный чертеж
ТП 810-1-12.86 КЖИ-24.00 Фундаментальные блоки ФБС24.4.Б-т-А, ФБС24.5.6-т-А
ТП 810-1-12.86 КЖИ-25.00 СБ Фундаментальный блок ФБС24.5.6-т-А. Сборочный чертеж
ТП 810-1-12.86 КЖИ-25.00 Фундаментальный блок ФБС24.5.6-т-А
ТП 810-1-12.86 КЖИ-24.10 СБ Сетка арматурная (С5;С6). Сборочный чертеж
ТП 810-1-12.86 КЖИ-24.10 Сетка арматурная (С5;С6)
ТП 810-1-12.86 КМ-1 Общие данные (начало)
ТП 810-1-12.86 КМ-2 Общие данные (продолжение)
ТП 810-1-12.86 КМ-3 Общие данные (продолжение)
ТП 810-1-12.86 КМ-4 Общие данные (окончание)
ТП 810-1-12.86 КМ-5 Схема расположения стоек, ферм, связей и подкосов для теплиц I и V
ТП 810-1-12.86 КМ-6 Схема расположения стоек, ферм, связей и подкосов для теплицы III
ТП 810-1-12.86 КМ-7 Схема расположения стоек, ферм, связей и подкосов для теплиц II;IV и VI
ТП 810-1-12.86 КМ-8 Разрезы. Узлы
ТП 810-1-12.86 КМ-9 Схемы расположения стоек, ферм, связей, лотков, шпросов покрытия, форточек соединительного коридора в осях Г1-Г6;Б1-Б4
ТП 810-1-12.86 КМ-10 Схема расположения лотков, шпросов покрытия, форточек и коньковых элементов
ТП 810-1-12.86 КМ-11 Виды 1-1;2-2
ТП 810-1-12.86 КМ-12 Схема расположения элементов по осям 1;36
ТП 810-1-12.86 КМ-13 Схема расположения элементов по осям А1;А26;В1;В26;Д1;Д26. Разрезы
ТП 810-1-12.86 КМ-14 Схема расположения элементов по осям 24
ТП 810-1-12.86 КМ-15 Схема расположения элементов по осям 25
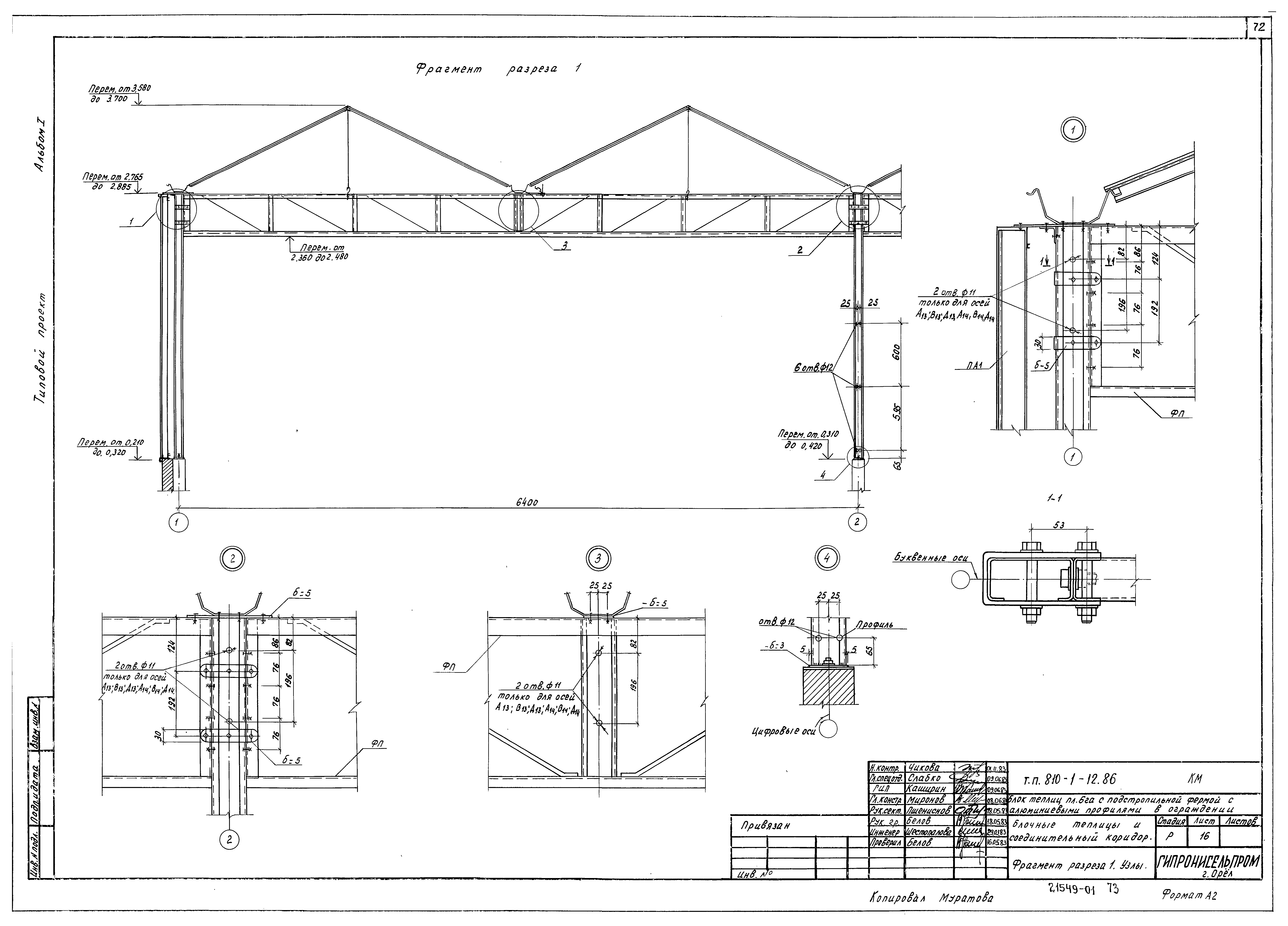
ТП 810-1-12.86 КМ-16 Фрагмент разреза 1. Узлы
ТП 810-1-12.86 КМ-17 Фрагмент плана покрытия
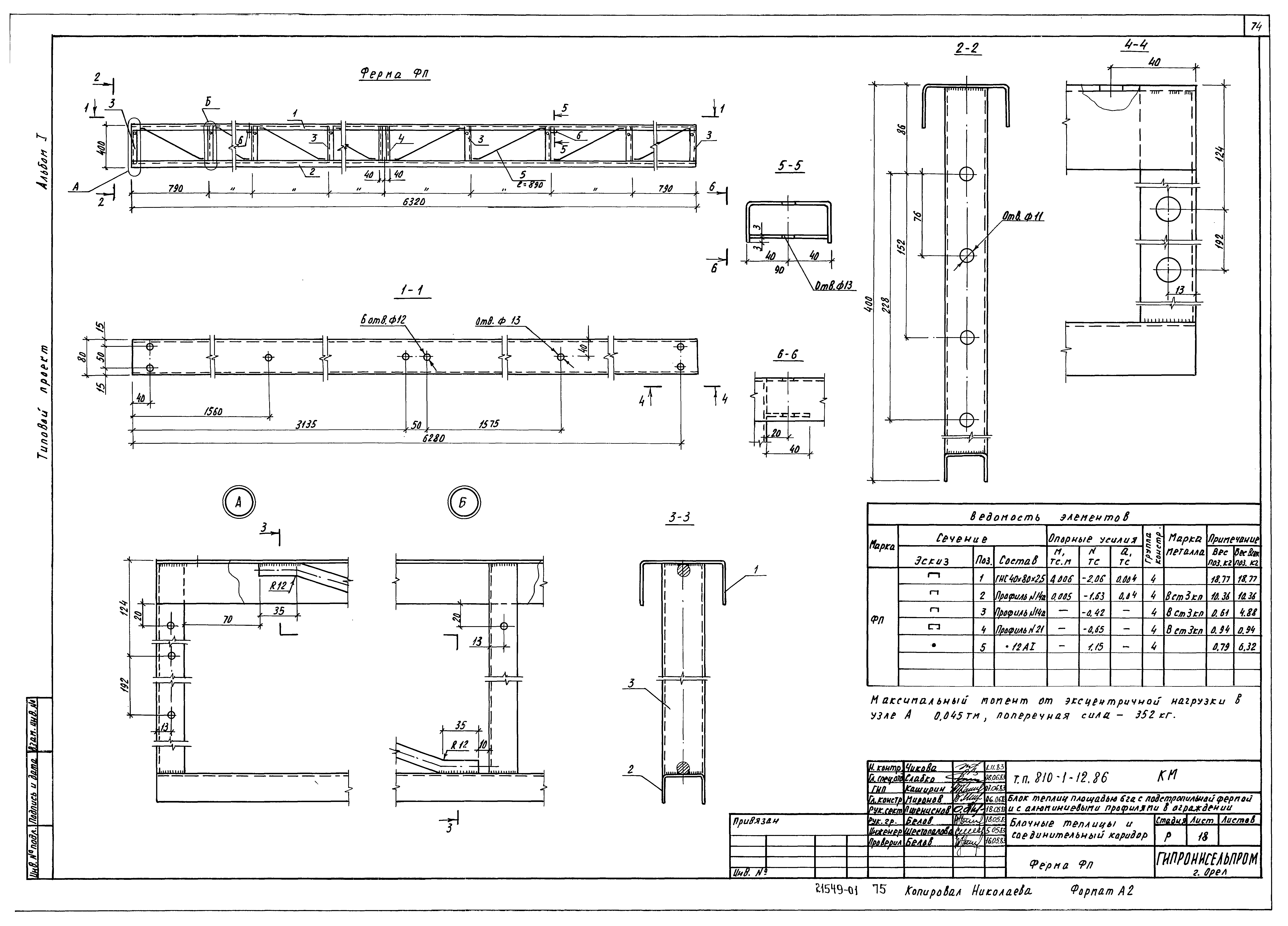
ТП 810-1-12.86 КМ-18 Ферма ФП
ТП 810-1-12.86 КМ-19 Форточка ФР1
ТП 810-1-12.86 КМ-20 Форточки ТФ-1;ТФ-1а;ТФ-2;ТФ-3;ТФ-4
ТП 810-1-12.86 КМ-21 Форточки. Позиции 1-3. Позиции 5-8
ТП 810-1-12.86 КМ-22 Распашные ворота В-1;В-2
ТП 810-1-12.86 КМ-23 Узлы 1;2
ТП 810-1-12.86 КМ-24 Узлы 3-6
ТП 810-1-12.86 КМ-25 Узлы 7-12
ТП 810-1-12.86 КМ-26 Узлы 13-16
ТП 810-1-12.86 КМ-27 Узлы 17-20
ТП 810-1-12.86 КМ-28 Узлы 21-24
ТП 810-1-12.86 КМ-29 Узлы 25-28
ТП 810-1-12.86 КМ-30 Узлы 29-33
ТП 810-1-12.86 КМ-31 Узлы 34-36
ТП 810-1-12.86 КМ-32 Узлы 37-39. Камеры Кл-Кл9
ТП 810-1-12.86 КМ-33 Узлы 40-41. Расстановка дополнительных отверстий в стойках для крепления трубопроводов отопления
ТП 810-1-12.86 КМ-34 Алюминиевые профили ПА1-ПА12
Разработан: Гипронисельпром Минплодоовощхоза СССР
Утверждён:16.11.1984 Минплодоовощхоз СССР (03-7-52/6210)
Расположен в:Техническая документация Строительство Справочные документы Типовые строительные конструкции, изделия и узлы Общероссийский строительный каталог Сельскохозяйственные предприятия, здания и сооружения Тепличные комбинаты, теплицы и парники Тепличные комбинаты и теплицы
Типовой проект 810-1-12.86Типовой проект 810-1-12.86Типовой проект 810-1-12.86Типовой проект 810-1-12.86Типовой проект 810-1-12.86Типовой проект 810-1-12.86Типовой проект 810-1-12.86Типовой проект 810-1-12.86Типовой проект 810-1-12.86Типовой проект 810-1-12.86Типовой проект 810-1-12.86Типовой проект 810-1-12.86Типовой проект 810-1-12.86Типовой проект 810-1-12.86Типовой проект 810-1-12.86Типовой проект 810-1-12.86Типовой проект 810-1-12.86Типовой проект 810-1-12.86Типовой проект 810-1-12.86Типовой проект 810-1-12.86Типовой проект 810-1-12.86Типовой проект 810-1-12.86Типовой проект 810-1-12.86Типовой проект 810-1-12.86Типовой проект 810-1-12.86Типовой проект 810-1-12.86Типовой проект 810-1-12.86Типовой проект 810-1-12.86Типовой проект 810-1-12.86Типовой проект 810-1-12.86Типовой проект 810-1-12.86Типовой проект 810-1-12.86Типовой проект 810-1-12.86Типовой проект 810-1-12.86Типовой проект 810-1-12.86Типовой проект 810-1-12.86Типовой проект 810-1-12.86Типовой проект 810-1-12.86Типовой проект 810-1-12.86Типовой проект 810-1-12.86Типовой проект 810-1-12.86Типовой проект 810-1-12.86Типовой проект 810-1-12.86Типовой проект 810-1-12.86Типовой проект 810-1-12.86Типовой проект 810-1-12.86Типовой проект 810-1-12.86Типовой проект 810-1-12.86Типовой проект 810-1-12.86Типовой проект 810-1-12.86Типовой проект 810-1-12.86Типовой проект 810-1-12.86Типовой проект 810-1-12.86Типовой проект 810-1-12.86Типовой проект 810-1-12.86Типовой проект 810-1-12.86Типовой проект 810-1-12.86Типовой проект 810-1-12.86Типовой проект 810-1-12.86Типовой проект 810-1-12.86Типовой проект 810-1-12.86Типовой проект 810-1-12.86Типовой проект 810-1-12.86Типовой проект 810-1-12.86Типовой проект 810-1-12.86Типовой проект 810-1-12.86Типовой проект 810-1-12.86Типовой проект 810-1-12.86Типовой проект 810-1-12.86Типовой проект 810-1-12.86Типовой проект 810-1-12.86Типовой проект 810-1-12.86Типовой проект 810-1-12.86Типовой проект 810-1-12.86Типовой проект 810-1-12.86Типовой проект 810-1-12.86Типовой проект 810-1-12.86Типовой проект 810-1-12.86Типовой проект 810-1-12.86Типовой проект 810-1-12.86Типовой проект 810-1-12.86Типовой проект 810-1-12.86Типовой проект 810-1-12.86Типовой проект 810-1-12.86Типовой проект 810-1-12.86Типовой проект 810-1-12.86Типовой проект 810-1-12.86Типовой проект 810-1-12.86Типовой проект 810-1-12.86Типовой проект 810-1-12.86Типовой проект 810-1-12.86

© 2013 Ёшкин Кот :-) Карта сайта