| ||||||||||||||||||||||||||
Скачать Шифр М8.5/08 Выпуск 3. Подвесные потолки на стальном каркасе. Материалы для проектирования и рабочие чертежи узловДата актуализации: 10.08.2017
|
| Обозначение: | Шифр М8.5/08 |
| Обозначение англ: | М8.5/08 |
| Статус: | не определен законодательством |
| Название рус.: | Выпуск 3. Подвесные потолки на стальном каркасе. Материалы для проектирования и рабочие чертежи узлов |
| Дата добавления в базу: | 01.09.2013 |
| Дата актуализации: | 05.05.2017 |
| Дата введения: | 01.01.2008 |
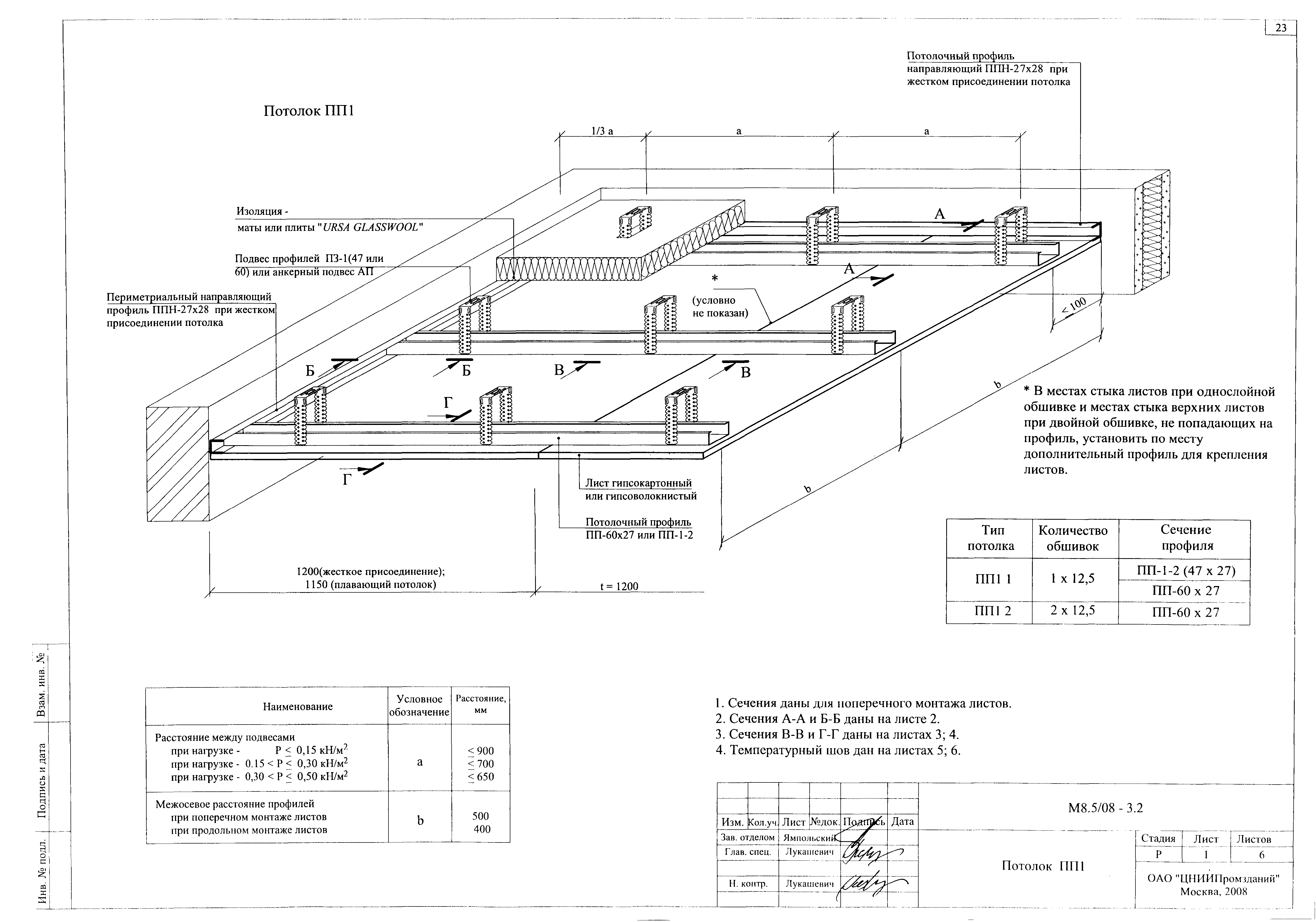
| Оглавление: | М 8.5/08-3ПЗ Пояснительная записка М 8.5/08-3ПЗ 1. Общие положения М 8.5/08-3ПЗ 2. Область применения М 8.5/08-3ПЗ 3. Типы подвесных потолков М 8.5/08-3ПЗ 4. Основные элементы подвесных потолков М 8.5/08-3ПЗ 4.1. Гипсокартонные листы М 8.5/08-3ПЗ 4.2. Гипсоволокнистые листы М 8.5/08-3ПЗ 4.3. Элементы стального каркаса М 8.5/08-3ПЗ 4.4. Тепло- и звукоизоляционные материалы "URSA GLASSWOOL" М 8.5/08-3ПЗ 4.5. Крепежные изделия М 8.5/08-3ПЗ 4.6. Шпаклевки и заделка швов М 8.5/08-3ПЗ 5. Конструктивное решение подвесных потолков М 8.5/08-3ПЗ 6. Конструкции потолков сложной конфигурации и криволинейной формы М 8.5/08-3ПЗ 7. Особенности конструкции потолков влажных помещений М 8.5/08-3ПЗ 8. Сопряжение подвесных потолков с коммуникациями М 8.5/08-3ПЗ 9. Крепление навесного оборудования и различных предметов на подвесном потолке М 8.5/08-3ПЗ 10. Отделка поверхности конструкции М 8.5/08-3ПЗ 11. Основные правила техники безопасности при производстве работ М 8.5/08-3ПЗ 12. Транспортирование и хранение материалов и изделии М 8.5/08-3ПЗ 13. Указания по монтажу потолков М 8.5/08-3ПЗ 14. Приемка смонтированных потолков М 8.5/08-3.1 Монтаж листов. Схемы расположения М 8.5/08-3.2 Потолок ПП1 М 8.5/08-3.3 Потолок ПП21 М 8.5/08-3.4 Потолок ПП22 М 8.5/08-3.5 Потолки сложной конфигурации. Примеры М 8.5/08-3.6 Потолки криволинейной формы. Примеры М 8.5/08-3.7 Размещение различного оборудования в конструкциях потолка М 8.5/08-3.8 Спецификация стальных и крепежных элементов |
| Разработан: | ОАО ЦНИИпромзданий ОАО Урса Евразия |
| Утверждён: | 01.01.2008 ЦНИИ промзданий (TsNII promzdaniy ) |
| Расположен в: |
































































