| ||||||||||||||||||||||||||
Скачать Шифр М8.5/08 Выпуск 2. Внутренняя облицовка стен по стальному каркасу. Огнезащитная облицовка колонн и балок. Материалы для проектирования и рабочие чертежиДата актуализации: 10.08.2017
|
| Обозначение: | Шифр М8.5/08 |
| Обозначение англ: | М8.5/08 |
| Статус: | не определен законодательством |
| Название рус.: | Выпуск 2. Внутренняя облицовка стен по стальному каркасу. Огнезащитная облицовка колонн и балок. Материалы для проектирования и рабочие чертежи |
| Дата добавления в базу: | 01.09.2013 |
| Дата актуализации: | 05.05.2017 |
| Дата введения: | 01.01.2008 |
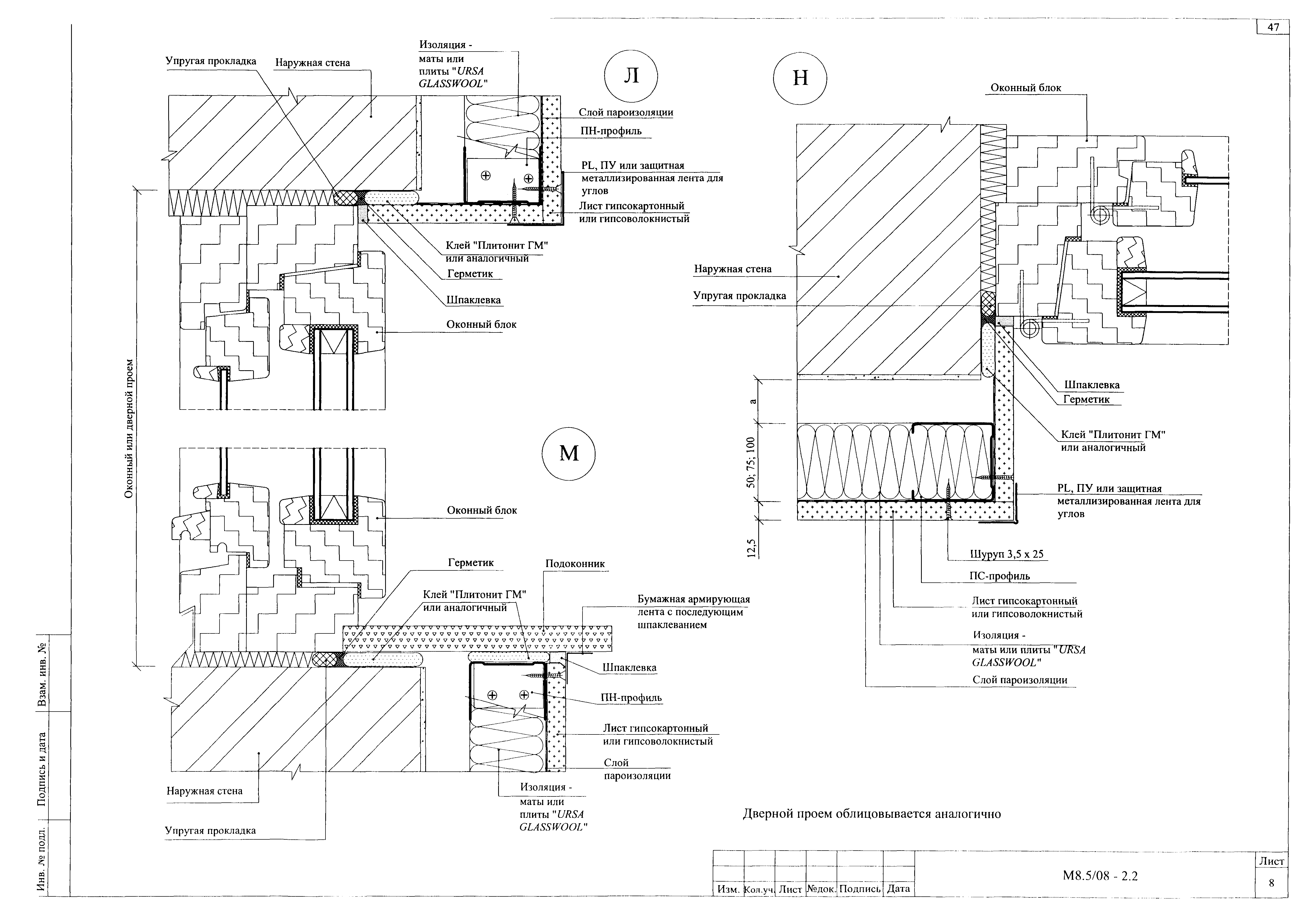
| Оглавление: | М 8.5/08-2ПЗ Пояснительная записка М 8.5/08-2ПЗ 1. Общие положения М 8.5/08-2ПЗ 2. Область применения М 8.5/08-2ПЗ 3. Типы облицовок М 8.5/08-2ПЗ 4. Основные элементы облицовок М 8.5/08-2ПЗ 4.1. Гипсокартонные листы М 8.5/08-2ПЗ 4.2. Гипсоволокнистые листы М 8.5/08-2ПЗ 4.3. Элементы стального каркаса М 8.5/08-2ПЗ 4.4. Тепло- и звукоизоляционные материалы "URSA GLASSWOOL" М 8.5/08-2ПЗ 4.5. Крепежные изделия М 8.5/08-2ПЗ 4.6. Уплотнители и шпаклевки М 8.5/08-2ПЗ 4.7. Расход основных материалов на 1 м² облицовки глухого участка М 8.5/08-2ПЗ 5. Конструктивное решение облицовок М 8.5/08-2ПЗ 6. Устройство криволинейных участков М 8.5/08-2ПЗ 7. Особенности конструкции облицовок влажных помещений М 8.5/08-2ПЗ 8. Сопряжение облицовок с коммуникациями М 8.5/08-2ПЗ 9. Крепление навесного оборудования и различных предметов на облицовки М 8.5/08-2ПЗ 10.Отделка поверхности конструкции М 8.5/08-2ПЗ 11.Особенности огнезащитной облицовки стальных колонн и балок М 8.5/08-2ПЗ 12.Основные правила техники безопасности при производстве работ М 8.5/08-2ПЗ 13.Транспортирование и хранение материалов и изделий М 8.5/08-2ПЗ 14.Указания по монтажу и приемке конструкции М 8.5/08-2ПЗ 15.Теплотехнический расчет стен М 8.5/08-2.1 Облицовка С1 (на потолочных профилях) М 8.5/08-2.2 Облицовка С2 (на перегородочных профилях) М 8.5/08-2.3 Устройство криволинейных участков М 8.5/08-2.4 Размещение различного оборудования в облицовках М 8.5/08-2.5 Огнезащитная облицовка стальных колонн и балок М 8.5/08-2.6 Спецификация стальных и крепежных элементов |
| Разработан: | ОАО ЦНИИпромзданий ОАО Урса Евразия |
| Утверждён: | 01.01.2008 ЦНИИ промзданий (TsNII promzdaniy ) |
| Расположен в: |








































































