| ||||||||||||||||||||||||||
Скачать Шифр М8.5/08 Выпуск 1. Перегородки на стальном каркасе. Материалы для проектирования и рабочие чертежи узловДата актуализации: 10.08.2017
|
| Обозначение: | Шифр М8.5/08 |
| Обозначение англ: | М8.5/08 |
| Статус: | не определен законодательством |
| Название рус.: | Выпуск 1. Перегородки на стальном каркасе. Материалы для проектирования и рабочие чертежи узлов |
| Дата добавления в базу: | 01.09.2013 |
| Дата актуализации: | 05.05.2017 |
| Дата введения: | 01.01.2008 |
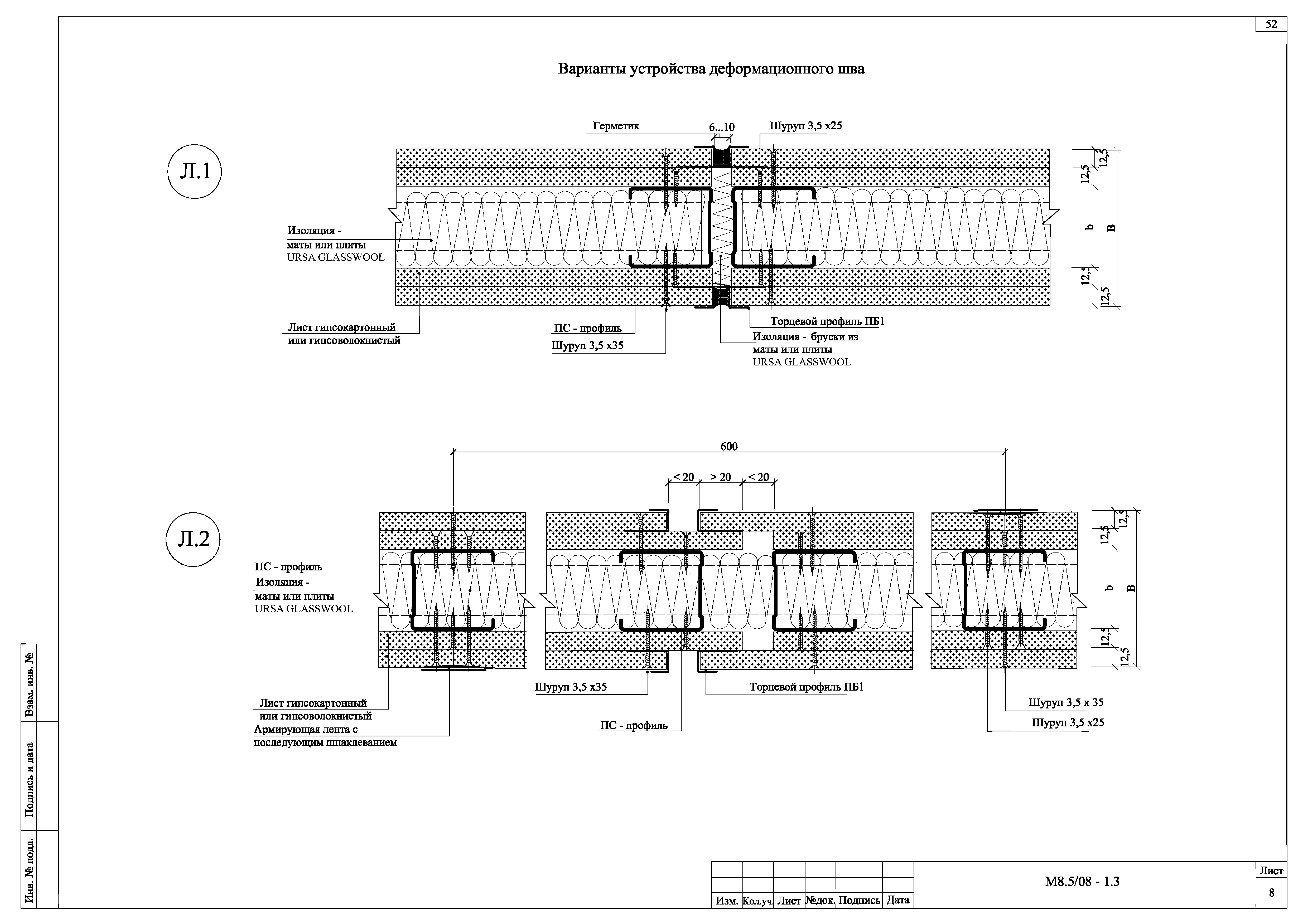
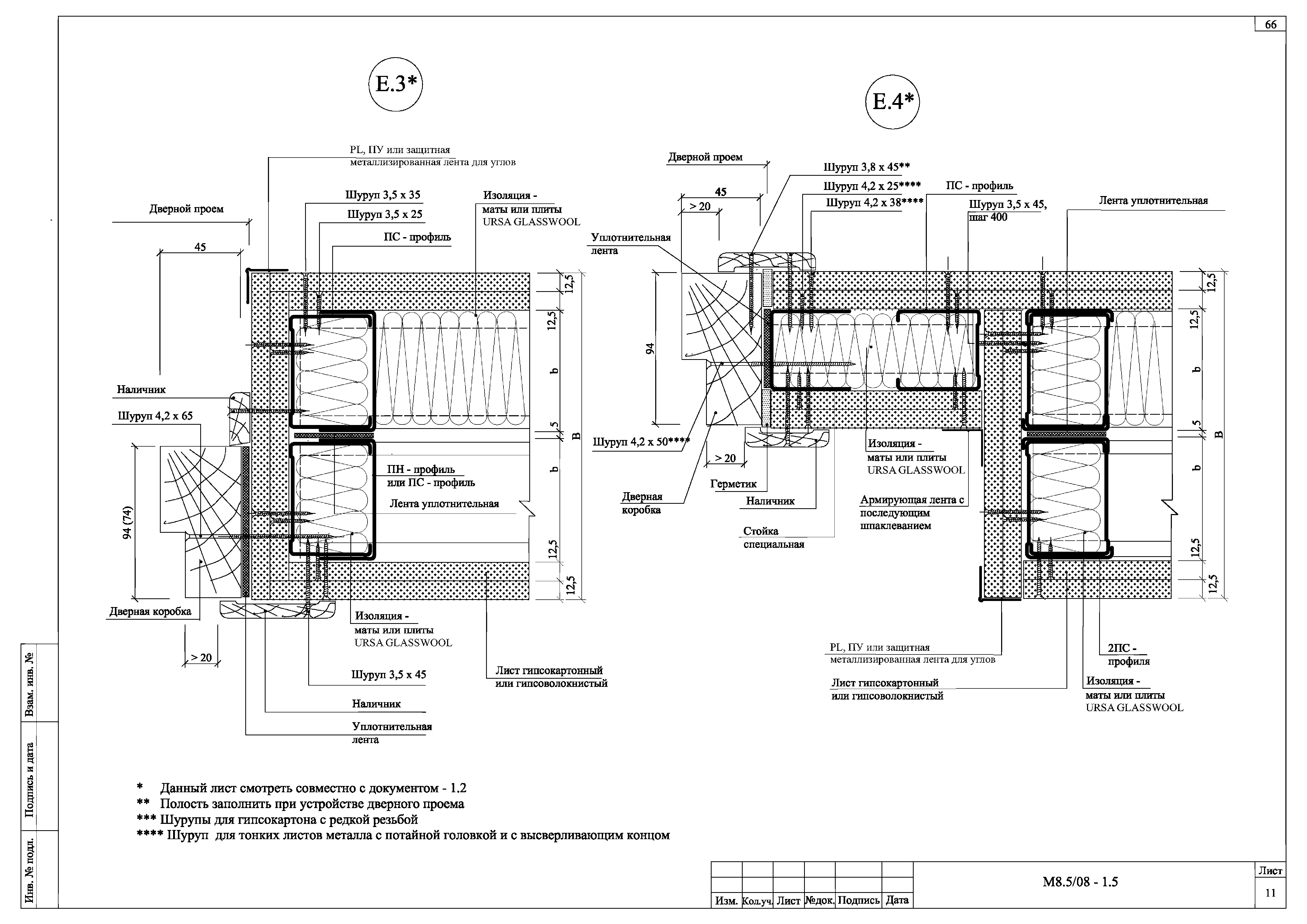
| Оглавление: | М 8.5/08-1.ПЗ Пояснительная записка М 8.5/08-1.ПЗ 1. Общие положения М 8.5/08-1.ПЗ 2. Область применения М 8.5/08-1.ПЗ 3. Типы перегородок М 8.5/08-1.ПЗ 4. Основные элементы перегородок М 8.5/08-1.ПЗ 4.1. Гипсокартонные листы М 8.5/08-1.ПЗ 4.2. Гипсоволокнистые листы М 8.5/08-1.ПЗ 4.3. Элементы стального каркаса М 8.5/08-1.ПЗ 4.4. Тепло- и звукоизоляционные материалы URSA GLASS WOOL М 8.5/08-1.ПЗ 4.5. Крепежные изделия М 8.5/08-1.ПЗ 4.6. Уплотнители и шпаклевки М 8.5/08-1.ПЗ 4.7. Расход основных материалов на 1 м глухой перегородки М 8.5/08-1.ПЗ 5. Конструктивное решение перегородок М 8.5/08-1.ПЗ 6. Устройство криволинейных участков М 8.5/08-1.ПЗ 7. Особенности конструкции перегородок влажных помещений М 8.5/08-1.ПЗ 8. Сопряжение перегородок с коммуникациями М 8.5/08-1.ПЗ 9. Крепление навесного оборудования и различных предметов на перегородки М 8.5/08-1.ПЗ 10. Отделка поверхности конструкции М 8.5/08-1.ПЗ 11. Основные правила техники безопасности при производстве работ М 8.5/08-1.ПЗ 12. Транспортирование и хранение материалов и изделий М 8.5/08-1.ПЗ 13. Указания по монтажу и приемке конструкции М 8.5/08-1.1 Перегородка ОС 101 М 8.5/08-1.2 Устройство дверных проемов. Раскладка листов М 8.5/08-1.3 Перегородка ОС 202 М 8.5/08-1.4 Устройство криволинейных участков М 8.5/08-1.5 Перегородка ДС 202 М 8.5/08-1.6 Перегородка ДСР 202 М 8.5/08-1.7 Комбинированные перегородки П1-С1 100 М50иП1-С1200М50 М 8.5/08-1.8 Комбинированные перегородки П2-С1 100 М50иП2-С1200М50 М 8.5/08-1.9 Комбинированные перегородки П1-С2 100 иП1-С2 200 М 8.5/08-1.10 Комбинированные перегородки П2-С2 100 и П2-С2 200 М 8.5/08-1.11 Размещение различного оборудования в перегородках М 8.5/08-1.12 Спецификация стальных и крепежных элементов |
| Разработан: | ОАО ЦНИИпромзданий ОАО Урса Евразия |
| Утверждён: | 01.01.2008 ЦНИИ промзданий (TsNII promzdaniy ) |
| Расположен в: |





























































































































