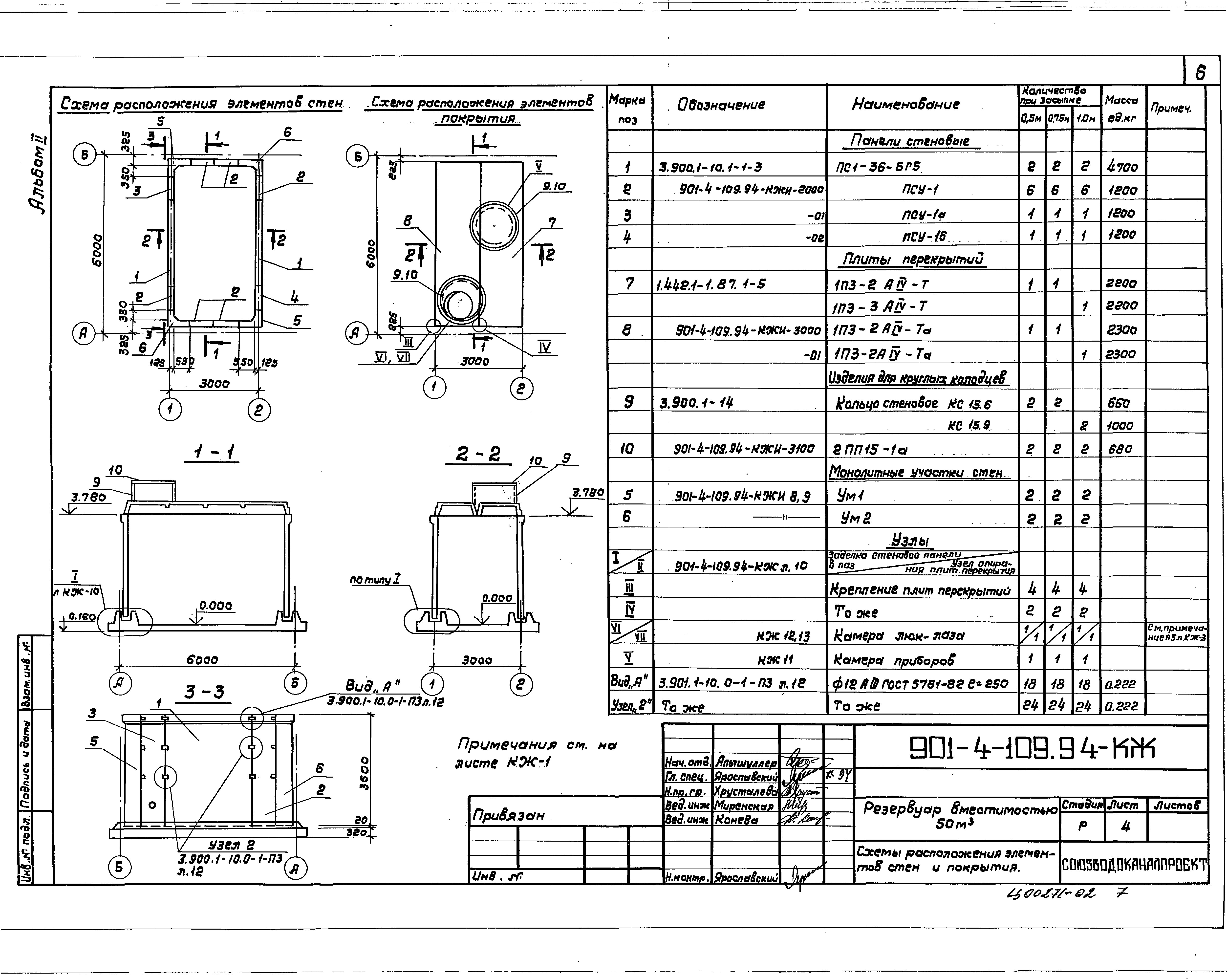
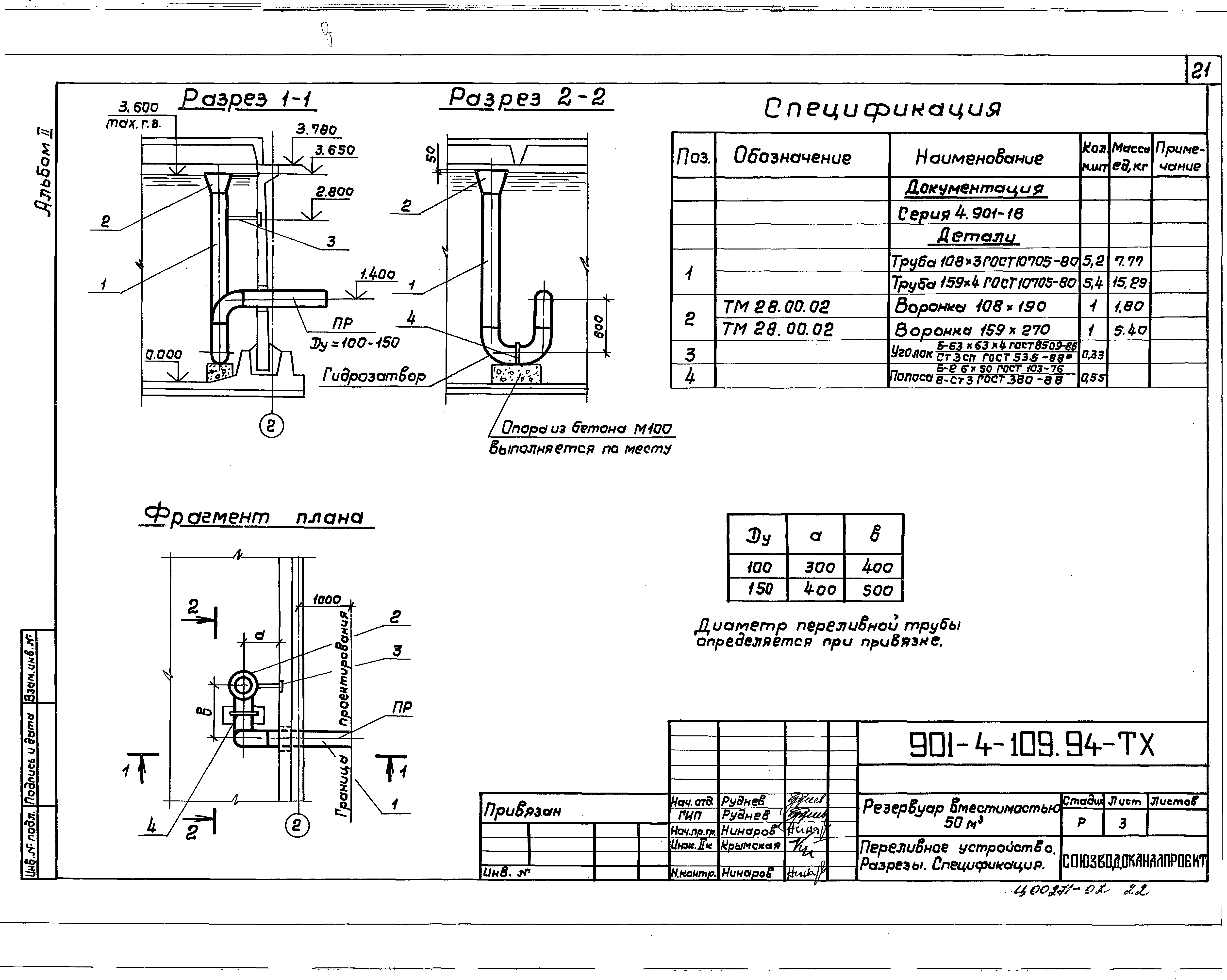
Скачать Типовой проект 901-4-109.94 Альбом II. Железобетонные конструкции, технологические трубопроводы, технологический контрольДата актуализации: 10.08.2017 Типовой проект 901-4-109.94
Альбом II. Железобетонные конструкции, технологические трубопроводы, технологический контрольОбозначение: | Типовой проект 901-4-109.94 | Обозначение англ: | 901-4-109.94 | Статус: | не определен законодательством | Название рус.: | Альбом II. Железобетонные конструкции, технологические трубопроводы, технологический контроль | Дата добавления в базу: | 01.09.2013 | Дата актуализации: | 05.05.2017 | Дата введения: | 18.11.1994 | Разработан: | Союзводоканалпроект
| Утверждён: | 10.11.1994 Минстрой России (Russian Federation Minstroy 9-3-1/160)
| Расположен в: |
|
                           
|