Информационная система
«Ёшкин Кот»

Скачать базу одним архивом
Скачать обновления
История создания базы
Карта сайта

Скачать Типовой проект 407-3-499.13.88 Альбом II. Часть II. Архитектурно-строительная часть проекта. Трансформаторная подстанция II категории

Дата актуализации: 10.08.2017

Типовой проект 407-3-499.13.88

Альбом II. Часть II. Архитектурно-строительная часть проекта. Трансформаторная подстанция II категории

Обозначение: Типовой проект 407-3-499.13.88
Обозначение англ: 407-3-499.13.88
Статус:не определен законодательством
Название рус.:Альбом II. Часть II. Архитектурно-строительная часть проекта. Трансформаторная подстанция II категории
Дата добавления в базу:01.09.2013
Дата актуализации:05.05.2017
Дата введения:06.07.1988
Оглавление:Титульный лист
Общие данные
План подполья, спецификация металлических деталей
План на отм. 0.000, спецификация металлических изделий
Разрез 1-1
Разрез 2-2
Фасады по осям "3", "А", "В", "I"
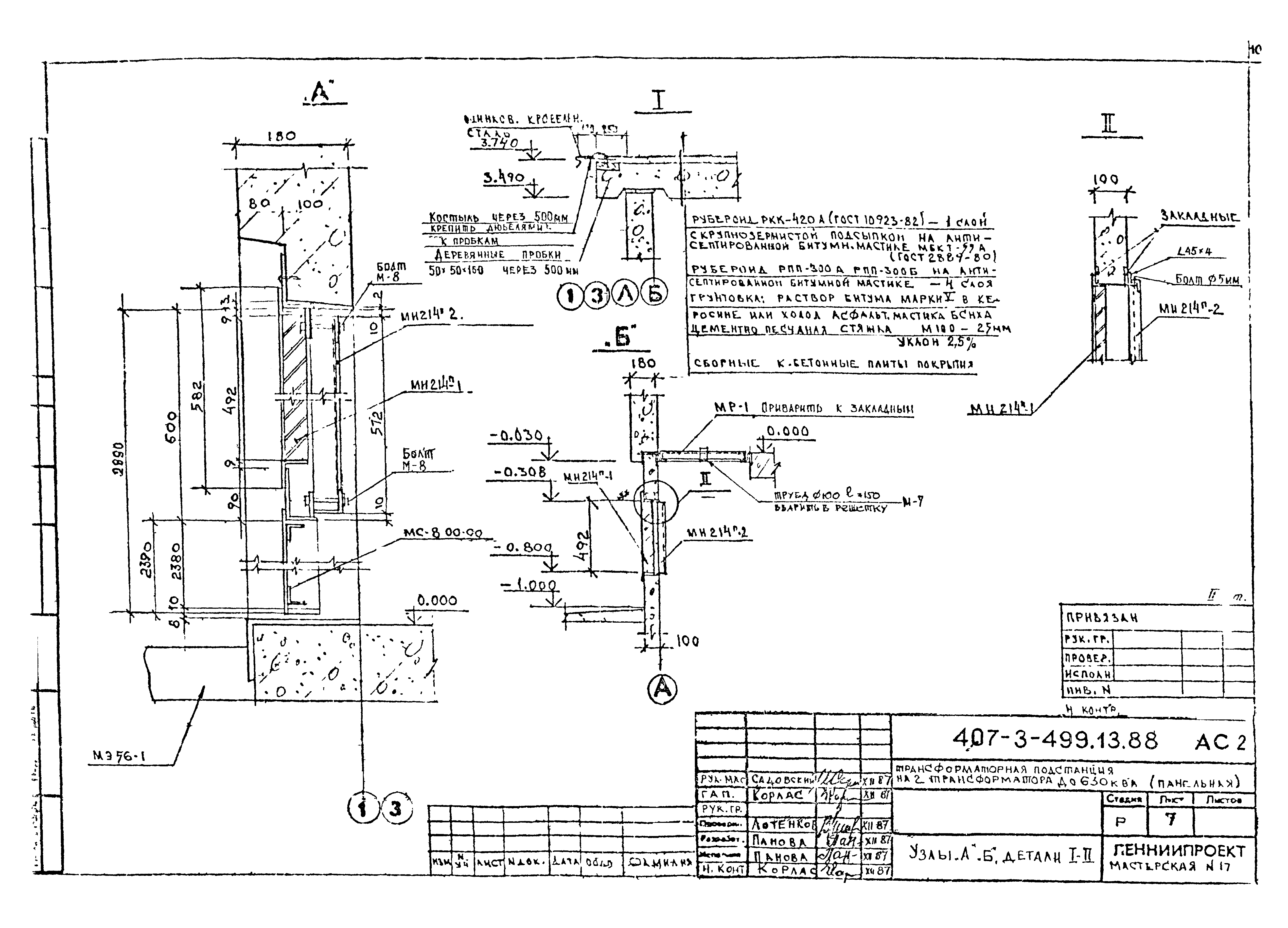
Узлы "А", "Б", детали I - II
Схема расположения фундаментов, сечение 1-1. Схема расположения плит перекрытия на отм. - 1.45
Схемы расположения цокольных панелей и пли перекрытия на отм. 0.000
Схема расположения стеновых панелей. Сечение 4-4
Схема расположения плит кровли. Сечение 2-2
Спецификация сборных ж/б изделий и металлических монтажных деталей
Монтажные узлы №№ 1 - 11
Монтажные узлы №№ 12 - 17; 21
Монтажные узлы №№ 18 - 20. Детали стыков
Разработан: Ленниипроект
Утверждён:06.07.1988 Ленниипроект (351)
Расположен в:Техническая документация Строительство Справочные документы Типовые строительные конструкции, изделия и узлы Общероссийский строительный каталог Промышленные предприятия, здания и сооружения Предприятия, здания и сооружения промышленности и электроэнергетики Электроэнергетика Устройства и подстанции распределительные
Типовой проект 407-3-499.13.88Типовой проект 407-3-499.13.88Типовой проект 407-3-499.13.88Типовой проект 407-3-499.13.88Типовой проект 407-3-499.13.88Типовой проект 407-3-499.13.88Типовой проект 407-3-499.13.88Типовой проект 407-3-499.13.88Типовой проект 407-3-499.13.88Типовой проект 407-3-499.13.88Типовой проект 407-3-499.13.88Типовой проект 407-3-499.13.88Типовой проект 407-3-499.13.88Типовой проект 407-3-499.13.88Типовой проект 407-3-499.13.88Типовой проект 407-3-499.13.88Типовой проект 407-3-499.13.88Типовой проект 407-3-499.13.88Типовой проект 407-3-499.13.88

© 2013 Ёшкин Кот :-) Карта сайта