Информационная система
«Ёшкин Кот»

Скачать базу одним архивом
Скачать обновления
История создания базы
Карта сайта

Скачать Типовой проект 902-5-35.86 Альбом 3. Архитектурно-строительные решения. Конструкции железобетонные и металлические

Дата актуализации: 10.08.2017

Типовой проект 902-5-35.86

Альбом 3. Архитектурно-строительные решения. Конструкции железобетонные и металлические

Обозначение: Типовой проект 902-5-35.86
Обозначение англ: 902-5-35.86
Статус:не определен законодательством
Название рус.:Альбом 3. Архитектурно-строительные решения. Конструкции железобетонные и металлические
Дата добавления в базу:01.09.2013
Дата актуализации:05.05.2017
Дата введения:01.10.1986
Оглавление:Листы марки АР
   Общие данные
   План на отм. 0.000
   Планы на отм. 3.600; 4.800; 7.200; - 3.000
   Разрезы 1-1; 2-2; 3-3
   Фасады 1 - 17; 17 - 1
   Фасады М-А; А-М. Узлы 7, 8
   Узлы 1 - 6. Фрагменты планов 1 - 4
   Планы перегородок и отверстий на отм. 0.000; 3.600. Спецификация перегородок. Узлы 8 - 10
   Спецификация элементов заполнения проемов. Ведомость проемов ворот и дверей. Спецификация перемычек. Ведомость перемычек
   Ведомость отделки помещений
   Планы полов и кровли
   Транспортерная галерея, план, разрезы и фасады
Листы марки КЖ
   Общие данные
   Схема расположения фундаментов под здания
   Фундаменты зданий. Сечения. Спецификация
   Фундаменты ФМ1, ФМ2, ФМ3, ФМ4. Опалубка. Армирование
   Фундаменты ФМ5, ФМ6, ФМ7. Опалубка
   Фундаменты ФМ8, ФМ9, ФМ10. Опалубка
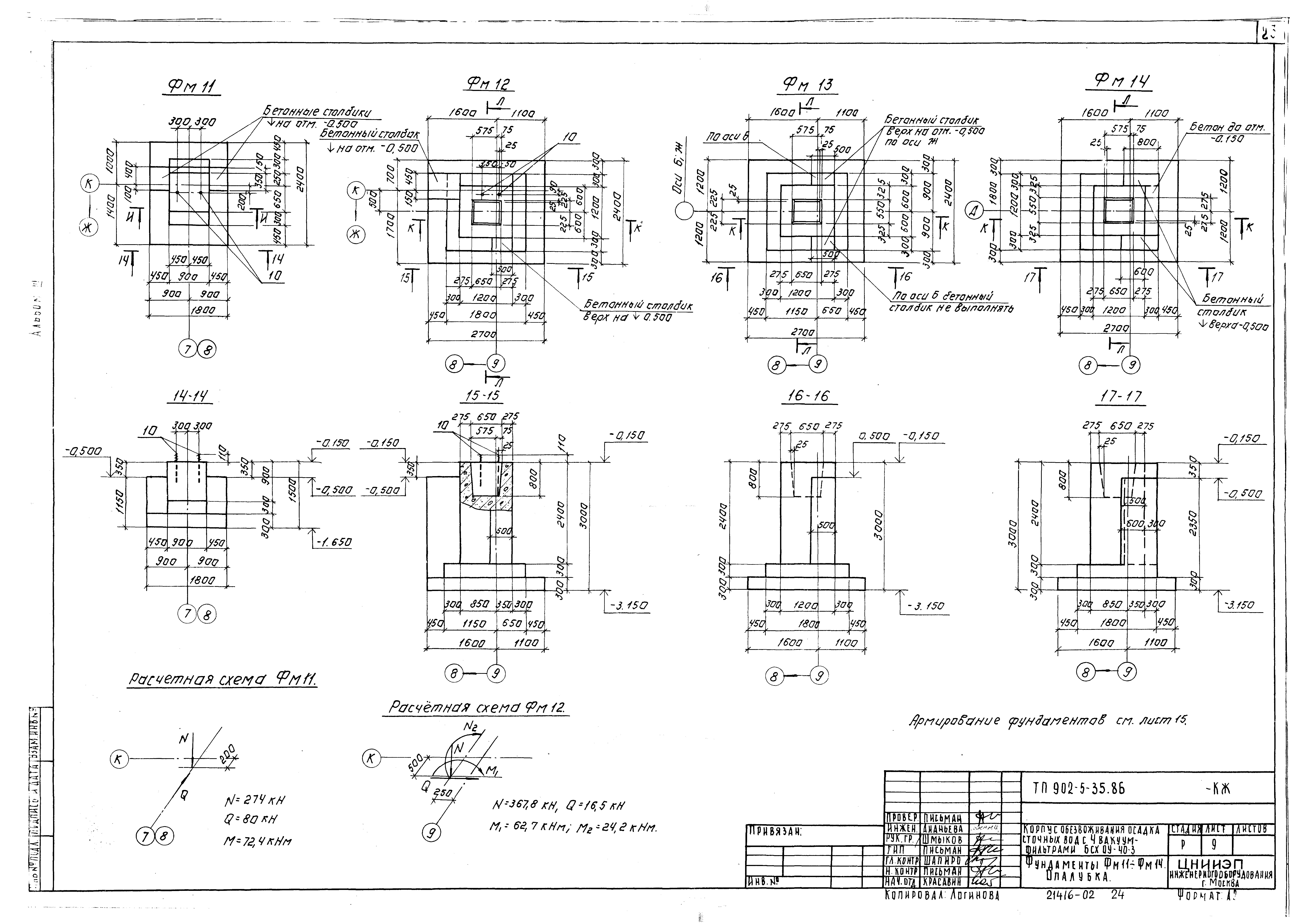
   Фундаменты ФМ11 - ФМ14. Опалубка
   Фундаменты ФМ15 - ФМ18. Опалубка
   Фундаменты ФМ19, ФМ20, ФМ24, ФМ25. Опалубка
   Фундаменты ФМ21 - ФМ23. Опалубка
   Фундаменты ФМ26. Опалубка. ФМ26. Опалубка. Армирование
   Фундаменты ФМ5, ФМ6, ФМ7. Армирование
   Фундаменты ФМ8 - ФМ14. Армирование
   Фундаменты ФМ15 - ФМ16. Армирование
   Фундаменты ФМ17, ФМ18, ФМ19, ФМ-20. Армирование
   Фундаменты ФМ21, ФМ22, ФМ23. Армирование
   Фундаменты ФМ24, ФМ25, ФМ26. Армирование
   Фундаменты ФМ5 - ФМ15. Спецификация
   Фундаменты ФМ16 - ФМ24. Спецификация
   Фундаменты ФМ1 - ФМ27. Ведомость расхода стали
   Резервуар РЕ1. Схема расположения стеновых панелей и монолитных участков
   Резервуар РЕ1. Схема расположения обвязочных балок и закладных деталей
   Резервуар РЕ1. Узлы I, II, III. Армирование
   Резервуар РЕ1. Узлы IV, V, VI. Армирование
   Резервуар РЕ1. Узлы VII, VIII. Армирование
   Резервуар РЕ1. Обвязочные балки. Армирование
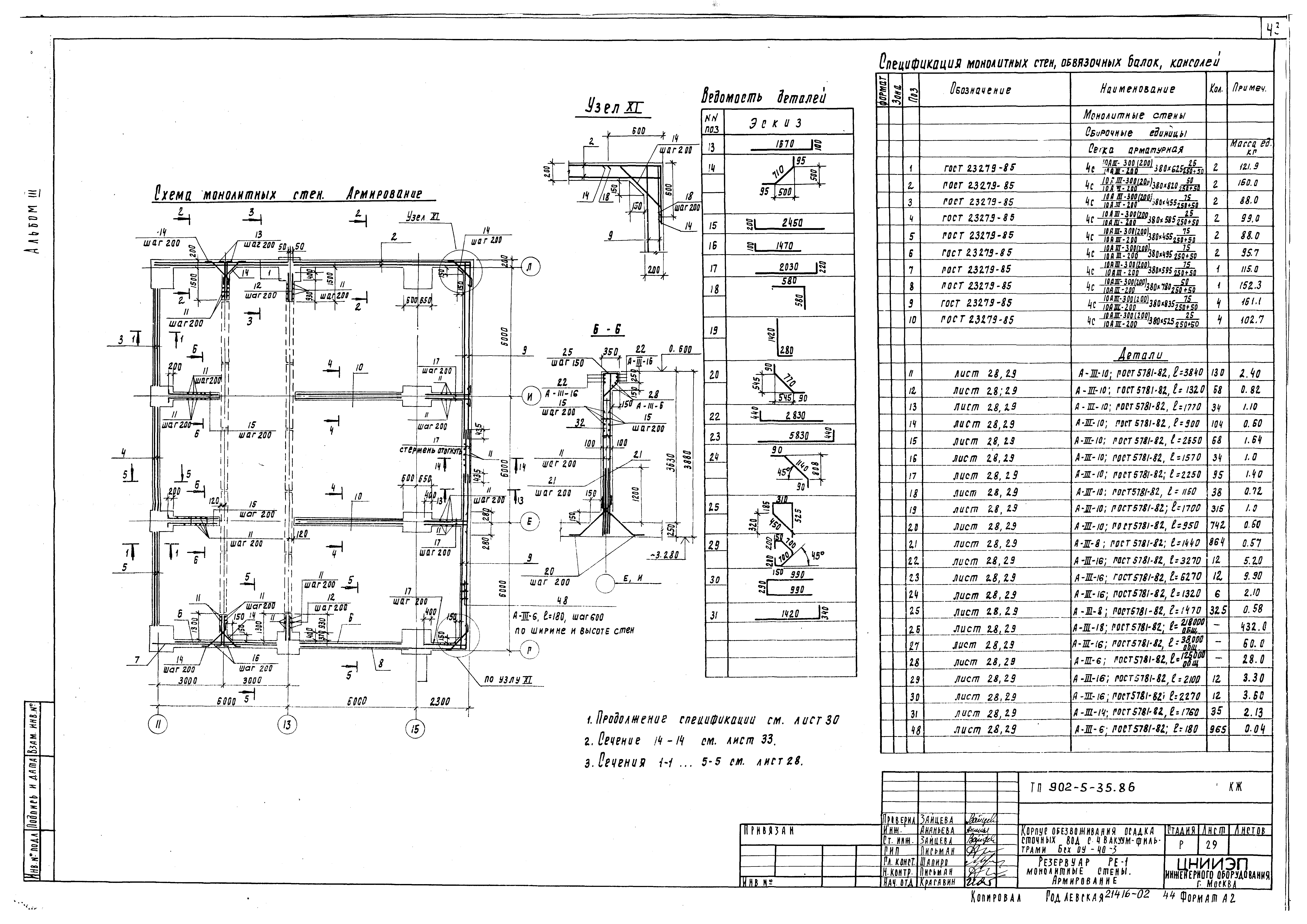
   Резервуар РЕ1. Монолитные стены. Армирование
   Резервуар РЕ1. Монолитные стены БМ-1. Армирование
   Резервуар РЕ1. Схема расположения верхних и нижних сеток днища ДМ
   Резервуар РЕ1. Днище ДМ. Разрезы. Армирование
   Резервуар РЕ1. Днище ДМ. Спецификация
   Резервуар РЕ1. Схема расположения деревянных щитов и решеток
   Резервуар РЕ1. Деревянные щиты ЩД-1 - ЩД-6 и решетка РД-1; РД-2
   Резервуар РЕ2. Схемы расположения сборных железобетонных стен резервуаров, плит покрытия
   Резервуар РЕ2. Армирование днища
   Резервуар РЕ2. Днище. Армирование. Спецификация к схемам расположения арматурных изделий
   Резервуар РЕ2. Монолитный участок. Опалубка и армирование
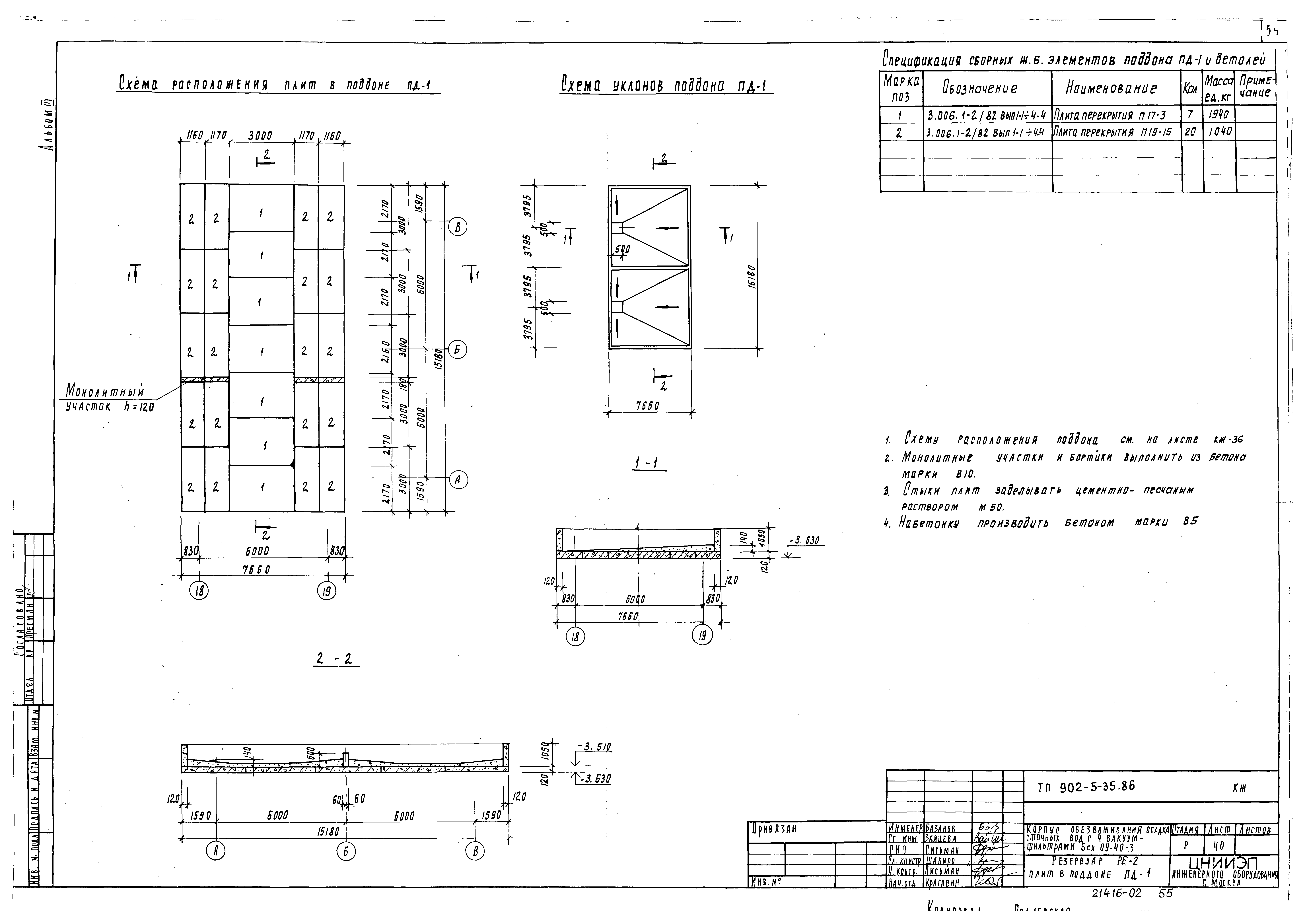
   Резервуар РЕ2. Поддон
   План фундаментов и схема расположения плит покрытия в осях 17 - 19; А-В. Сечения 1-1; 2-2
   Фундаменты в осях 17 - 19; А-В. Сечения 3-3 - 8-8. Узлы. Фундамент ФМ29
   Схема расположения фундаментов под оборудование в осях 6 - 9
   Схема расположения фундаментов под оборудование в осях 10 - 17
   Схема расположения фундаментов под оборудование в осях 9, 11 - 15
   Фундаменты под оборудование ФО-1. Опалубочный чертеж. Армирование
   Фундаменты под оборудование. Фрагмент плана №1. Фундаменты ФО2 - ФО4
   Фундаменты под оборудование ФО-5 - ФО-9
   Схема расположения колонн и балок покрытия в осях 6 - 17; А - Н
   Схемы расположения металлических стоек и насадок в осях 6 - 17; А - Н
   Схема расположения плит покрытия в осях 6 - 17; А - Н
   Схема расположения плит покрытия в осях 9 - 15; В - Н
   Схема расположения стеновых панелей в осях 6 - 17; А - М
   Схемы расположения стеновых панелей в осях 6 - 17; Л - Н. Фрагмент 1 - 8
   Схемы расположения колонн, диафрагм жесткости, ригелей на отм. 3.600 и 7.200 в осях 1 - 5; А - В
   Схемы расположения плит перекрытия и покрытия на отм. 3.600 и 7.200 в осях 1 - 5; А - В
   Схема расположения стеновых панелей в осях 1 - 5; А - В
   Приточная венткамера на отм. 3.600 в осях 4 - 5 у оси "А"
   Схемы расположения лестничных маршей, проступей и верхней лестничной площадки в осях А - Б; 3 - 2/3
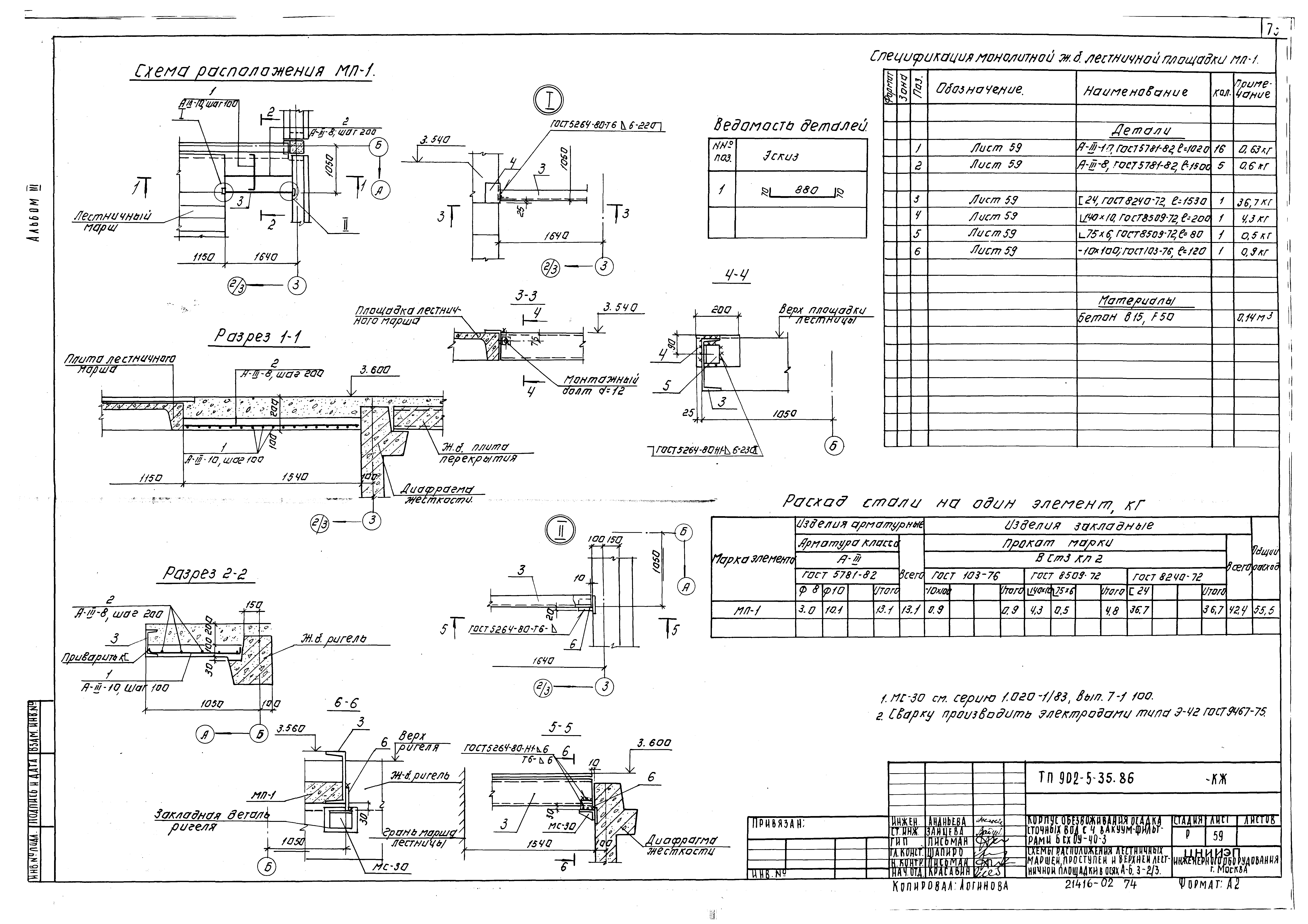
   Схема расположения монолитной лестничной площадки МП-1 у оси "Б". Армирование. Узлы
   Схема расположения каналов и приямков КТП в осях 4 - 5; А - Б
   Транспортная галерея. Схема расположения фундаментов
   Транспортная галерея. Схема расположения плит покрытия стеновых блоков и панелей гофрированного стального профиля покрытия
   Транспортная галерея. Монолитные участки УМ-1; УМ-2. Армирование
Листы марки КМ
   Общие данные
   Техническая спецификация металла
   Техническая спецификация стали на типовые конструкции
   Ведомость металлоконструкций по видам профилей
   План металлических площадок на отм. 0.000 и 2.400 в осях 6 - 9; А - К
   Металлические площадки. Разрезы 1-1 - 8-8
   План металлических площадок на отм. 4.800 и 7.200 в осях 6 - 9; А - М
   Металлические площадки. Разрезы 9 - 9; 12 - 12
   Металлические площадки. Узлы спецификации
   Металлические лестницы, площадки на отм. 0.000; 0.600 в осях 9 - 15; В - Н
   Металлические лестницы, площадки в осях 9 - 15; В - Н. Сечения 1-1 - 8-8. Узлы 1 - 4
   Металлические площадки на отм. 0.000 в осях 14 - 17; А - В
   Схема расположения подвесных путей
   Подвесные пути. Сечения 1-1 - 7-7
   Наружная площадка. Лестница. Пожарная лестница
   Транспортная галерея. Схема расположения балок, пола, кровли, опор
Разработан: ЦНИИЭП инженерного оборудования
Утверждён:14.03.1986 Госгражданстрой (Gosgrazhdanstroy 88)
Расположен в:Техническая документация Строительство Справочные документы Типовые строительные конструкции, изделия и узлы Общероссийский строительный каталог Промышленные предприятия, здания и сооружения Здания и сооружения санитарно-технические Канализация Сооружения для очистки производственных сточных вод Сооружения для обработки осадка
Заменяет собой:
Типовой проект 902-5-35.86Типовой проект 902-5-35.86Типовой проект 902-5-35.86Типовой проект 902-5-35.86Типовой проект 902-5-35.86Типовой проект 902-5-35.86Типовой проект 902-5-35.86Типовой проект 902-5-35.86Типовой проект 902-5-35.86Типовой проект 902-5-35.86Типовой проект 902-5-35.86Типовой проект 902-5-35.86Типовой проект 902-5-35.86Типовой проект 902-5-35.86Типовой проект 902-5-35.86Типовой проект 902-5-35.86Типовой проект 902-5-35.86Типовой проект 902-5-35.86Типовой проект 902-5-35.86Типовой проект 902-5-35.86Типовой проект 902-5-35.86Типовой проект 902-5-35.86Типовой проект 902-5-35.86Типовой проект 902-5-35.86Типовой проект 902-5-35.86Типовой проект 902-5-35.86Типовой проект 902-5-35.86Типовой проект 902-5-35.86Типовой проект 902-5-35.86Типовой проект 902-5-35.86Типовой проект 902-5-35.86Типовой проект 902-5-35.86Типовой проект 902-5-35.86Типовой проект 902-5-35.86Типовой проект 902-5-35.86Типовой проект 902-5-35.86Типовой проект 902-5-35.86Типовой проект 902-5-35.86Типовой проект 902-5-35.86Типовой проект 902-5-35.86Типовой проект 902-5-35.86Типовой проект 902-5-35.86Типовой проект 902-5-35.86Типовой проект 902-5-35.86Типовой проект 902-5-35.86Типовой проект 902-5-35.86Типовой проект 902-5-35.86Типовой проект 902-5-35.86Типовой проект 902-5-35.86Типовой проект 902-5-35.86Типовой проект 902-5-35.86Типовой проект 902-5-35.86Типовой проект 902-5-35.86Типовой проект 902-5-35.86Типовой проект 902-5-35.86Типовой проект 902-5-35.86Типовой проект 902-5-35.86Типовой проект 902-5-35.86Типовой проект 902-5-35.86Типовой проект 902-5-35.86Типовой проект 902-5-35.86Типовой проект 902-5-35.86Типовой проект 902-5-35.86Типовой проект 902-5-35.86Типовой проект 902-5-35.86Типовой проект 902-5-35.86Типовой проект 902-5-35.86Типовой проект 902-5-35.86Типовой проект 902-5-35.86Типовой проект 902-5-35.86Типовой проект 902-5-35.86Типовой проект 902-5-35.86Типовой проект 902-5-35.86Типовой проект 902-5-35.86Типовой проект 902-5-35.86Типовой проект 902-5-35.86Типовой проект 902-5-35.86Типовой проект 902-5-35.86Типовой проект 902-5-35.86Типовой проект 902-5-35.86Типовой проект 902-5-35.86Типовой проект 902-5-35.86Типовой проект 902-5-35.86Типовой проект 902-5-35.86Типовой проект 902-5-35.86Типовой проект 902-5-35.86Типовой проект 902-5-35.86Типовой проект 902-5-35.86Типовой проект 902-5-35.86Типовой проект 902-5-35.86Типовой проект 902-5-35.86Типовой проект 902-5-35.86Типовой проект 902-5-35.86Типовой проект 902-5-35.86Типовой проект 902-5-35.86Типовой проект 902-5-35.86

© 2013 Ёшкин Кот :-) Карта сайта