Информационная система
«Ёшкин Кот»

Скачать базу одним архивом
Скачать обновления
История создания базы
Карта сайта

Скачать Типовой проект 407-3-203 Альбом 2. Архитектурно-строительная часть

Дата актуализации: 10.08.2017

Типовой проект 407-3-203

Альбом 2. Архитектурно-строительная часть

Обозначение: Типовой проект 407-3-203
Обозначение англ: 407-3-203
Статус:не действует
Название рус.:Альбом 2. Архитектурно-строительная часть
Дата добавления в базу:01.09.2013
Дата актуализации:05.05.2017
Оглавление:Титульный лист
Перечень листов
Пояснительная записка
Заглавный лист. Технико-экономические показатели и перечень примененных стандартов и типовых чертежей, сводная спецификация сборных железобетонных и бетонных элементов
Сводная спецификация металлоконструкций и выборка стали
Фасады
Планы на отметках 0.000 и 5.400
Разрезы А-А, Б-Б, В-В
Архитектурные детали А, Б, В, Г, Д
План фундаментов. Раскладка блоков по оси А
План фундаментов. Раскладка блоков по осям В1, 1, 3 и 5. Сечения. Спецификация
Раскладка плит перекрытия, покрытия и опорных подушек. План кровли. Спецификации
Раскладка плит перекрытия, покрытия и опорных подушек. Детали 1 - 4
Планы перемычки проемов в стенах
Опорные подушки ОП-1, ОП-7 - ОП-11
Монолитные участки №№1 - 5
Перекрытие под готовый глушитель. Опорная конструкция для кабелей
Гравийная маслосборная яма. План, разрезы, детали
Монтажная схема балок перекрытия и решеток гравийной ямы. Спецификация
Монтажная схема балок перекрытия и решеток гравийной ямы. Узлы I - X
Монтажная схема балок перекрытия и решеток гравийной ямы. Узлы XI - XVI
Монтажная схема балок перекрытия и решеток гравийной ямы. Металлоконструкции. Марки БП-1 - БП-10, БП-21, БП-22
Монтажная схема балок перекрытия и решеток гравийной ямы. Марки БП11 - БП-20
Монтажная схема балок перекрытия и решеток гравийной ямы. Марки РП1 - РП-11
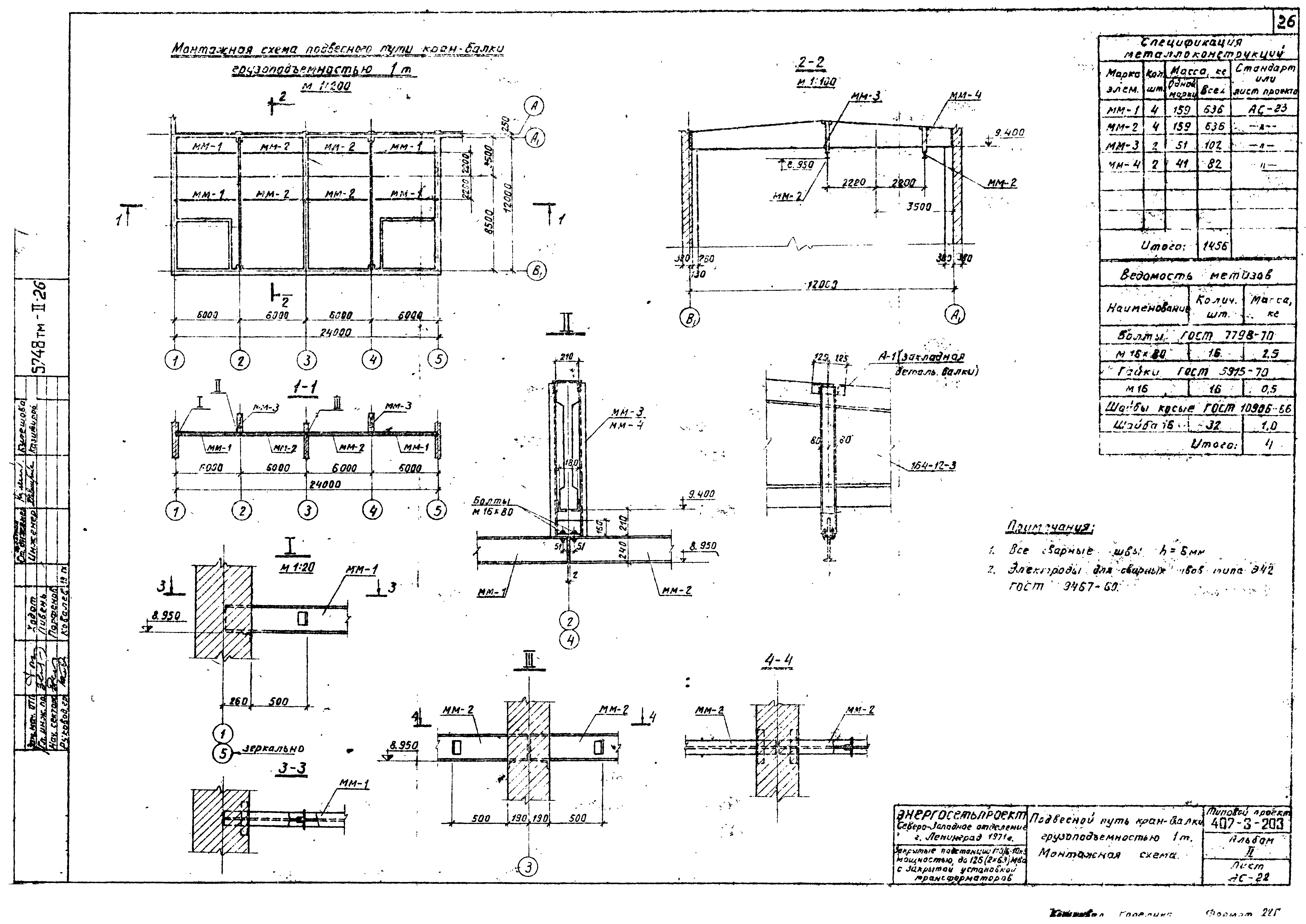
Подвесной путь. Кран-балки грузоподъемностью 1 тонна. Монтажная схема
Подвесной путь. Металлоконструкции. Марки ПМ-1?ПМ-4
Установка трансформаторов. Монтажная схема металлоконструкций. Узлы
Установка трансформаторов. Металлоконструкции. Марки БТ-1 - БТ-5
Установка трансформаторов. Марки БТ-6, БТ-7
Установка опорных конструкций под оборудование
Металлоконструкции. Марки МО-1 - МО-9
Лестницы. Монтажные схемы лестниц 1-го и 2-го этажей
Лестницы. Узлы I - XIV
Лестницы. Металлоконструкции. Марки ЛВ-1, ЛВ-2, ЛВ-2А
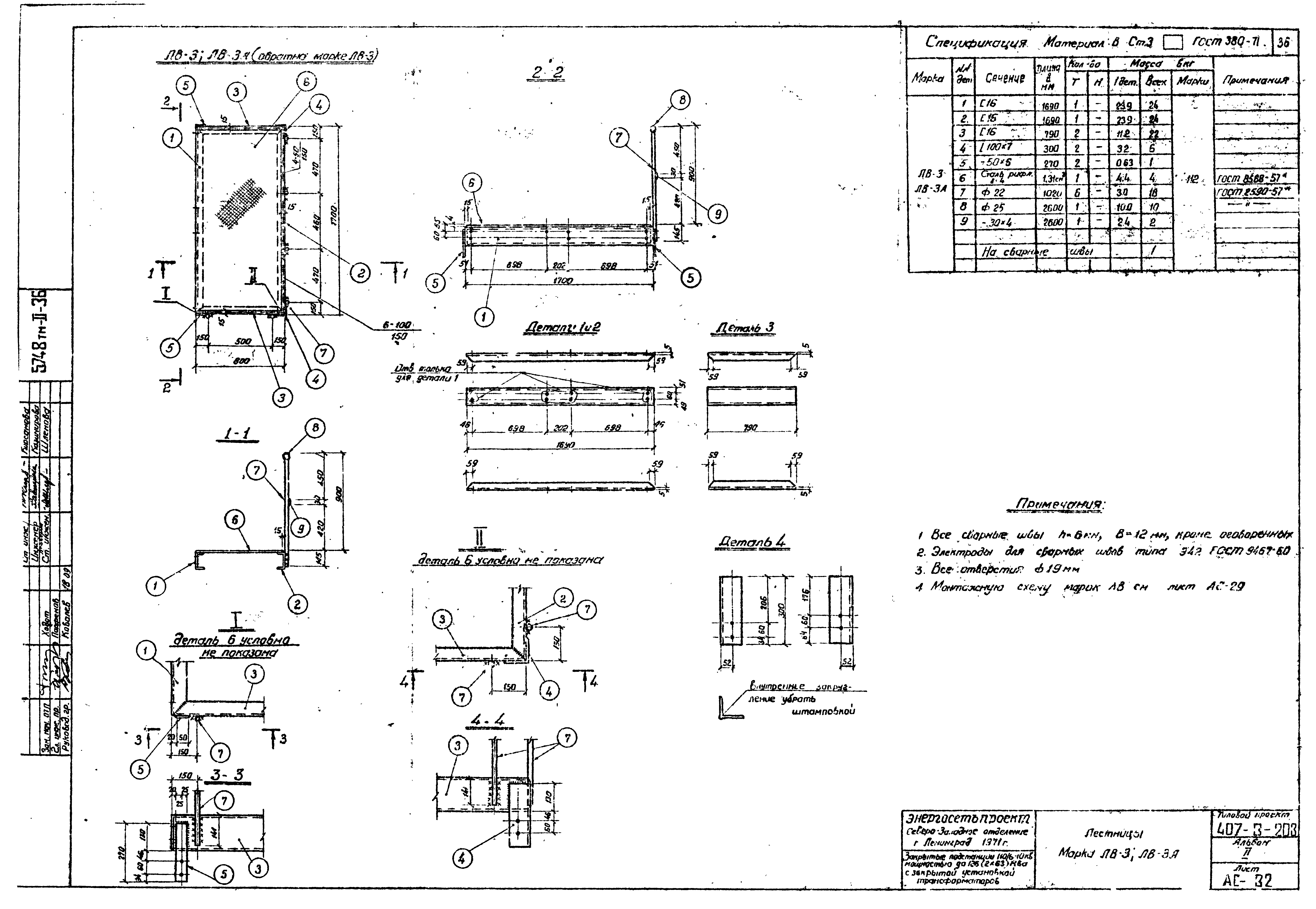
Лестницы. Марки ЛВ-3, ЛВ-3А
Лестницы. Марки ЛВ-4, ЛВ-5
Лестницы. Марки ЛВ-6, ЛВ-7, ЛВ-7А
Лестницы. Марки ЛВ-8 - ЛВ-13, ЛВ-8А
Жалюзийные решетки. Металлоконструкции. Марки ЖР-1, ЖР-1А
Двери металлические шумопоглощающие МДШ-1
Двери металлические шумопоглощающие МДШ-2
Двери металлические шумопоглощающие. Узлы
Двери металлические шумопоглощающие. Металлоконструкции. Марка Мш-1
Двери металлические шумопоглощающие. Металлоконструкции. Марка Мш-2
Двери металлические шумопоглощающие. Металлоконструкции. Марки Мш-3 - Мш-12
Устройство для создания уклона трансформаторов
Металлоконструкции. Марки Б-1 - Б-5, ОП-1 - ОП-3
Металлоконструкции. Марки С-1, С-4 - С8, А-1 - А-3, МП-1, МП-2, ЭТ-1 - ЭТ-4
Разработан: Энергосетьпроект
Утверждён:12.10.1971 Минэнерго СССР (USSR Minenergo 340)
Расположен в:Техническая документация Строительство Справочные документы Типовые строительные конструкции, изделия и узлы Общероссийский строительный каталог Промышленные предприятия, здания и сооружения Предприятия, здания и сооружения промышленности и электроэнергетики Электроэнергетика Устройства и подстанции распределительные
Типовой проект 407-3-203Типовой проект 407-3-203Типовой проект 407-3-203Типовой проект 407-3-203Типовой проект 407-3-203Типовой проект 407-3-203Типовой проект 407-3-203Типовой проект 407-3-203Типовой проект 407-3-203Типовой проект 407-3-203Типовой проект 407-3-203Типовой проект 407-3-203Типовой проект 407-3-203Типовой проект 407-3-203Типовой проект 407-3-203Типовой проект 407-3-203Типовой проект 407-3-203Типовой проект 407-3-203Типовой проект 407-3-203Типовой проект 407-3-203Типовой проект 407-3-203Типовой проект 407-3-203Типовой проект 407-3-203Типовой проект 407-3-203Типовой проект 407-3-203Типовой проект 407-3-203Типовой проект 407-3-203Типовой проект 407-3-203Типовой проект 407-3-203Типовой проект 407-3-203Типовой проект 407-3-203Типовой проект 407-3-203Типовой проект 407-3-203Типовой проект 407-3-203Типовой проект 407-3-203Типовой проект 407-3-203Типовой проект 407-3-203Типовой проект 407-3-203Типовой проект 407-3-203Типовой проект 407-3-203Типовой проект 407-3-203Типовой проект 407-3-203Типовой проект 407-3-203Типовой проект 407-3-203Типовой проект 407-3-203Типовой проект 407-3-203Типовой проект 407-3-203Типовой проект 407-3-203Типовой проект 407-3-203Типовой проект 407-3-203

© 2013 Ёшкин Кот :-) Карта сайта