Информационная система
«Ёшкин Кот»

Скачать базу одним архивом
Скачать обновления
История создания базы
Карта сайта

Скачать Типовой проект 407-3-192 Альбом 5. Электротехническая часть. Распределительное устройство 6 - 10 кВ типа Б2Р. Электромонтажные чертежи

Дата актуализации: 10.08.2017

Типовой проект 407-3-192

Альбом 5. Электротехническая часть. Распределительное устройство 6 - 10 кВ типа Б2Р. Электромонтажные чертежи

Обозначение: Типовой проект 407-3-192
Обозначение англ: 407-3-192
Статус:действует
Название рус.:Альбом 5. Электротехническая часть. Распределительное устройство 6 - 10 кВ типа Б2Р. Электромонтажные чертежи
Дата добавления в базу:01.09.2013
Дата актуализации:05.05.2017
Дата введения:15.08.1971
Оглавление:1. Обложка
2. Титульный лист
3. ЭЛ-1 Содержание альбома. Спецификация изделий монтажно-заготовительного участка
4. ЭЛ-2 Перечень электрооборудования и материалов
5. ЭЛ-3 План, экспликация электрооборудования и комплектных узлов
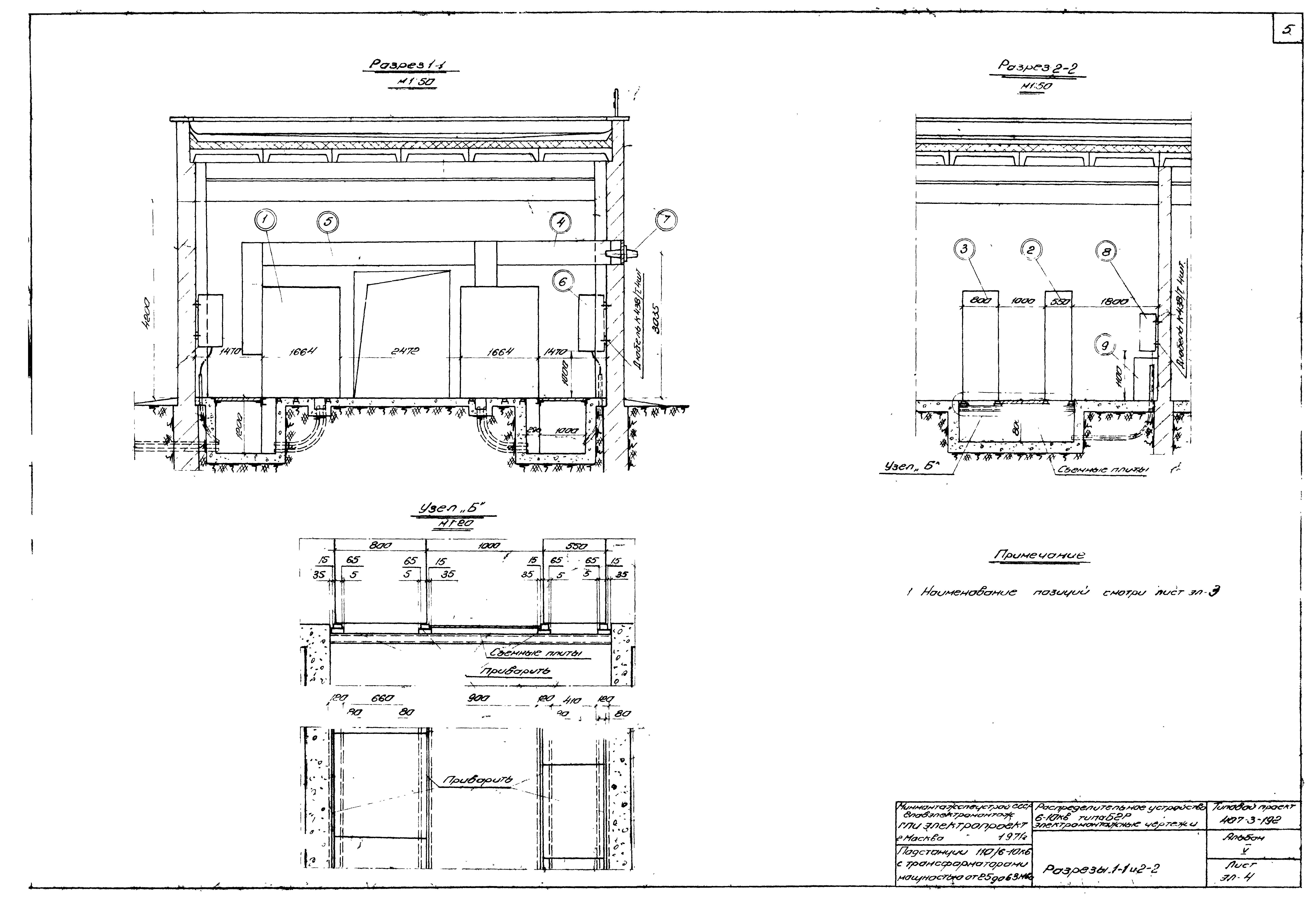
6. ЭЛ-4 Разрезы 1-1 и 2-2
7. ЭЛ-5 Узел "А". Установка шкафов КРУ. Установка проходных изоляторов ПН-20/3200-1250 на железобетонной плите
8. ЭЛ-6 Установка шинопровода 2750а. I исполнение
9. ЭЛ-7 Установка шинопровода 2750а. II исполнение
10. ЭЛ-8 Заземление
11. ЭЛ-9 План сети электроосвещения
12. ЭЛ-10 План сети электроотопления и вентиляции
13. ЭЛ-11 Схема управления электроотоплением. Установка блока из трех печей ПТ-10-2
Разработан: ГПИ Электропроект
Утверждён:01.06.1971 Минмонтажспецстрой СССР (USSR Minmontazhspetsstroy )
Расположен в:Техническая документация Строительство Справочные документы Типовые строительные конструкции, изделия и узлы Общероссийский строительный каталог Промышленные предприятия, здания и сооружения Предприятия, здания и сооружения промышленности и электроэнергетики Электроэнергетика Устройства и подстанции распределительные
Типовой проект 407-3-192Типовой проект 407-3-192Типовой проект 407-3-192Типовой проект 407-3-192Типовой проект 407-3-192Типовой проект 407-3-192Типовой проект 407-3-192Типовой проект 407-3-192Типовой проект 407-3-192Типовой проект 407-3-192Типовой проект 407-3-192Типовой проект 407-3-192Типовой проект 407-3-192

© 2013 Ёшкин Кот :-) Карта сайта