| ||||||||||||||||||||||
Скачать Типовые проектные решения 0407-3-04.86 Альбом 1. Пояснительная записка. Технологическая и электротехническая части. Спецификации оборудования. Ведомости потребности в материалахДата актуализации: 10.08.2017
|
| Обозначение: | Типовые проектные решения 0407-3-04.86 |
| Обозначение англ: | 0407-3-04.86 |
| Статус: | cправочные материалы, мп, тпр |
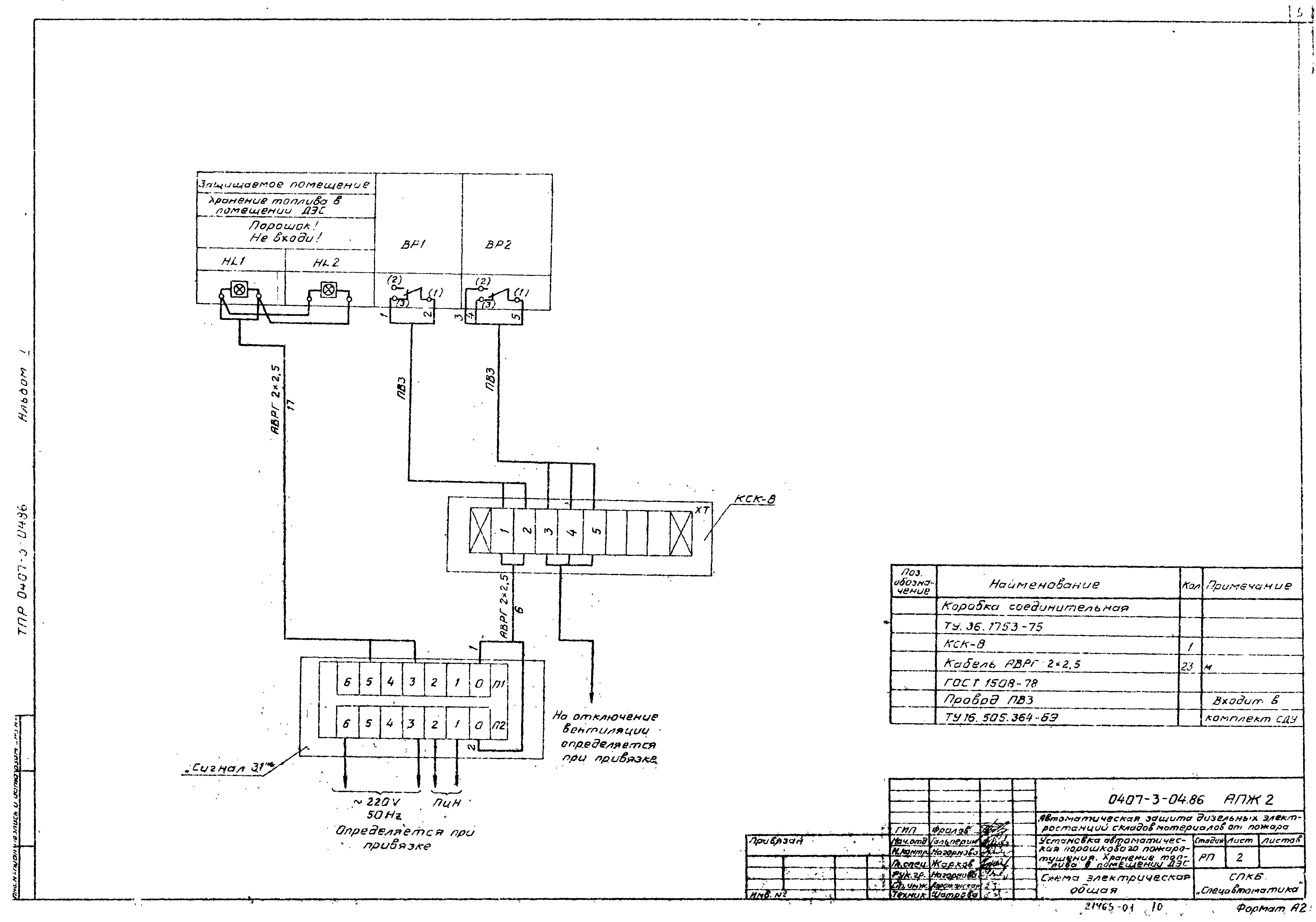
| Название рус.: | Альбом 1. Пояснительная записка. Технологическая и электротехническая части. Спецификации оборудования. Ведомости потребности в материалах |
| Дата добавления в базу: | 01.09.2013 |
| Дата актуализации: | 05.05.2017 |
| Разработан: | СПКБ Спецавтоматика Минприбора |
| Утверждён: | 16.12.1985 Минприбор СССР (USSR Minpribor ) |
| Расположен в: |












