Информационная система
«Ёшкин Кот»

Скачать базу одним архивом
Скачать обновления
История создания базы
Карта сайта

Скачать Типовой проект 407-1-65 Альбом 1. Пояснительная записка. Технологические чертежи

Дата актуализации: 10.08.2017

Типовой проект 407-1-65

Альбом 1. Пояснительная записка. Технологические чертежи

Обозначение: Типовой проект 407-1-65
Обозначение англ: 407-1-65
Статус:действует
Название рус.:Альбом 1. Пояснительная записка. Технологические чертежи
Дата добавления в базу:01.09.2013
Дата актуализации:05.05.2017
Дата введения:01.10.1973
Оглавление:1. Титульный лист
2. Содержание альбома
3. Пояснительная записка
4. Заказная спецификация на оборудование
5. Заказная спецификация на материалы
6. Заказная спецификация на инвентарь и инструмент
7. Заказная спецификация на кабельные изделия
8. ТХ-1 План размещения оборудования
9. ТХ-2 Разрезы А-А; Б-Б
10. ТХ-3 План размещения оборудования (вариант со встроенным топливохранилищем)
11. ТХ-4 Разрезы А-А; Б-Б
12. ТХ-5 Принципиальная схема трубопроводов топлива и масла
13. ТХ-6 Принципиальная схема трубопроводов топлива и масла (вариант со встроенным топливохранилищем)
14. ТХ-7 Монтажная схема трубопроводов топлива и масла
15. ТХ-8 Монтажная схема трубопроводов топлива и масла (вариант со встроенным топливохранилищем)
16. ТХ-9 Монтажная схема трубопроводов топлива и масла. Спецификация
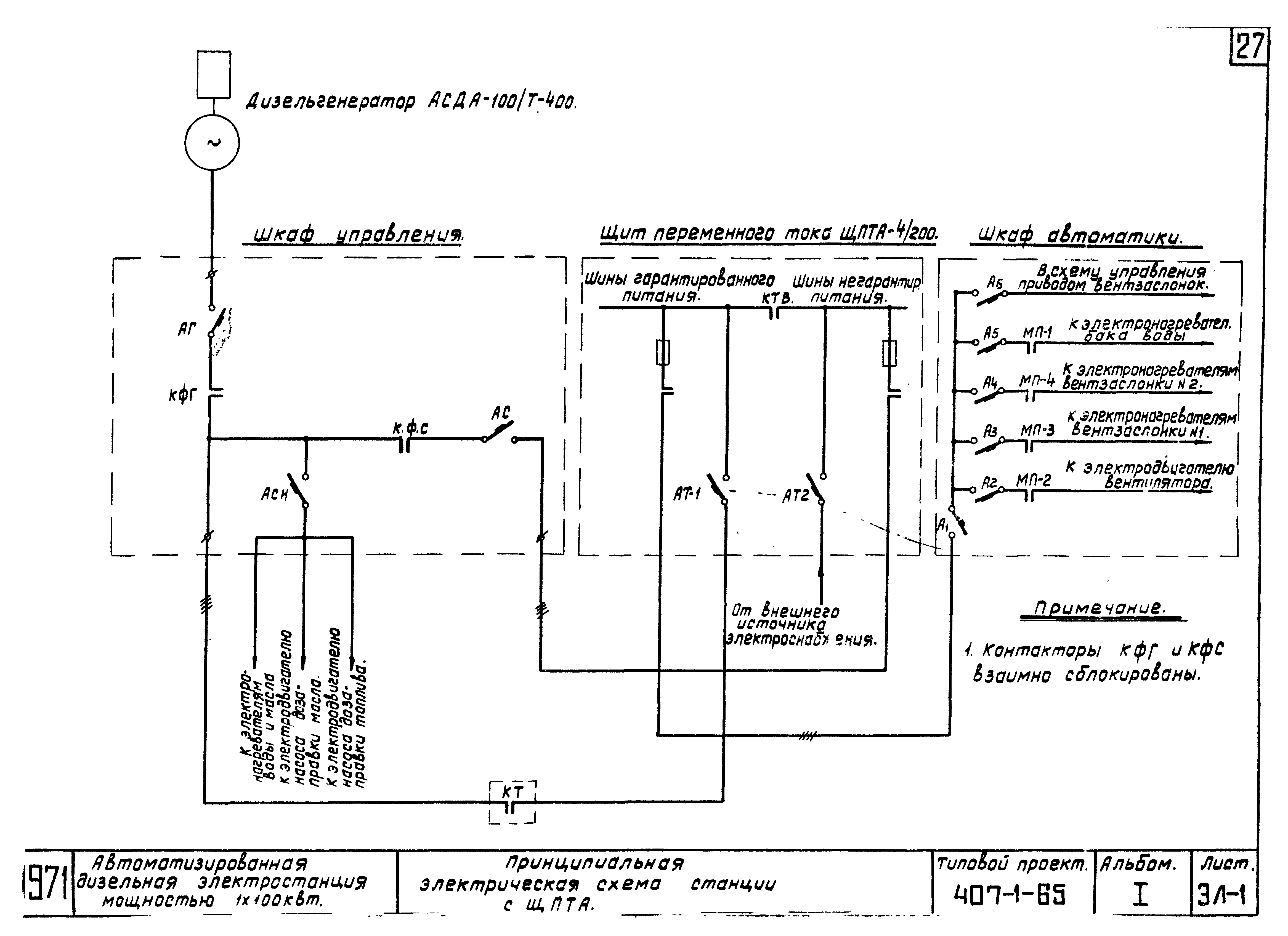
17. ЭЛ-1 Принципиальная электрическая схема станции с ЩПТА
18. ЭЛ-2 Принципиальная электрическая схема станции без ЩПТА
19. ЭЛ-3 Принципиальная схема силовых цепей
20. ЭЛ-4 Внешние соединения станции. Схема монтажная
21. ЭЛ-5,6 Таблица кабельных соединений
22. ЭЛ-7 Автоматическое управление мотором вентилятора и вентиляционными заслонками. Схема принципиальная
23. ЭЛ-8 Автоматическое включение электронагревателей вентзаслонок и бака воды. Схема принципиальная
24. ЭЛ-9 Шкаф автоматики. Схема монтажная
25. ЭЛ-10 План заземляющих проводников в здании АДЭС
26. КМ-1 Трубопровод выхлопной
27. КМ-2 Трубопровод выхлопной. Узлы
28. КМ-3 Трубопровод выхлопной. Узлы
29. КМ-4 Крепление трубопровода выхлопного
30. КМ-5 Крепление трубопровода выхлопного. Амортизатор
31. КМД-1 Трубопровод выхлопной. Детали
32. КМД-2 Трубопровод выхлопной. Детали
33. КМД-3 Трубопровод выхлопной. Детали
34. КМД-4 Трубопровод выхлопной. Детали
35. КМД-5 Крепление трубопровода выхлопного. Детали
36. КМД-6 Крепление трубопровода выхлопного. Детали
37. КМД-7 Крепление трубопровода выхлопного. Детали
38. КМД-8 Крепление трубопровода выхлопного. Детали
39. КМД-9 Крепление трубопровода выхлопного. Детали
Разработан: Гипросвязь
Утверждён:24.09.1973 Минсвязи СССР (USSR Minsvyazi )
Расположен в:Техническая документация Строительство Справочные документы Типовые строительные конструкции, изделия и узлы Общероссийский строительный каталог Промышленные предприятия, здания и сооружения Предприятия, здания и сооружения промышленности и электроэнергетики Электроэнергетика Электростанции угольные, газомазутные и дизельные Электростанции дизельные
Типовой проект 407-1-65Типовой проект 407-1-65Типовой проект 407-1-65Типовой проект 407-1-65Типовой проект 407-1-65Типовой проект 407-1-65Типовой проект 407-1-65Типовой проект 407-1-65Типовой проект 407-1-65Типовой проект 407-1-65Типовой проект 407-1-65Типовой проект 407-1-65Типовой проект 407-1-65Типовой проект 407-1-65Типовой проект 407-1-65Типовой проект 407-1-65Типовой проект 407-1-65Типовой проект 407-1-65Типовой проект 407-1-65Типовой проект 407-1-65Типовой проект 407-1-65Типовой проект 407-1-65Типовой проект 407-1-65Типовой проект 407-1-65Типовой проект 407-1-65Типовой проект 407-1-65Типовой проект 407-1-65Типовой проект 407-1-65Типовой проект 407-1-65Типовой проект 407-1-65Типовой проект 407-1-65Типовой проект 407-1-65Типовой проект 407-1-65Типовой проект 407-1-65Типовой проект 407-1-65Типовой проект 407-1-65Типовой проект 407-1-65Типовой проект 407-1-65Типовой проект 407-1-65Типовой проект 407-1-65Типовой проект 407-1-65Типовой проект 407-1-65Типовой проект 407-1-65Типовой проект 407-1-65Типовой проект 407-1-65Типовой проект 407-1-65Типовой проект 407-1-65Типовой проект 407-1-65Типовой проект 407-1-65Типовой проект 407-1-65Типовой проект 407-1-65Типовой проект 407-1-65

© 2013 Ёшкин Кот :-) Карта сайта