Информационная система
«Ёшкин Кот»

Скачать базу одним архивом
Скачать обновления
История создания базы
Карта сайта

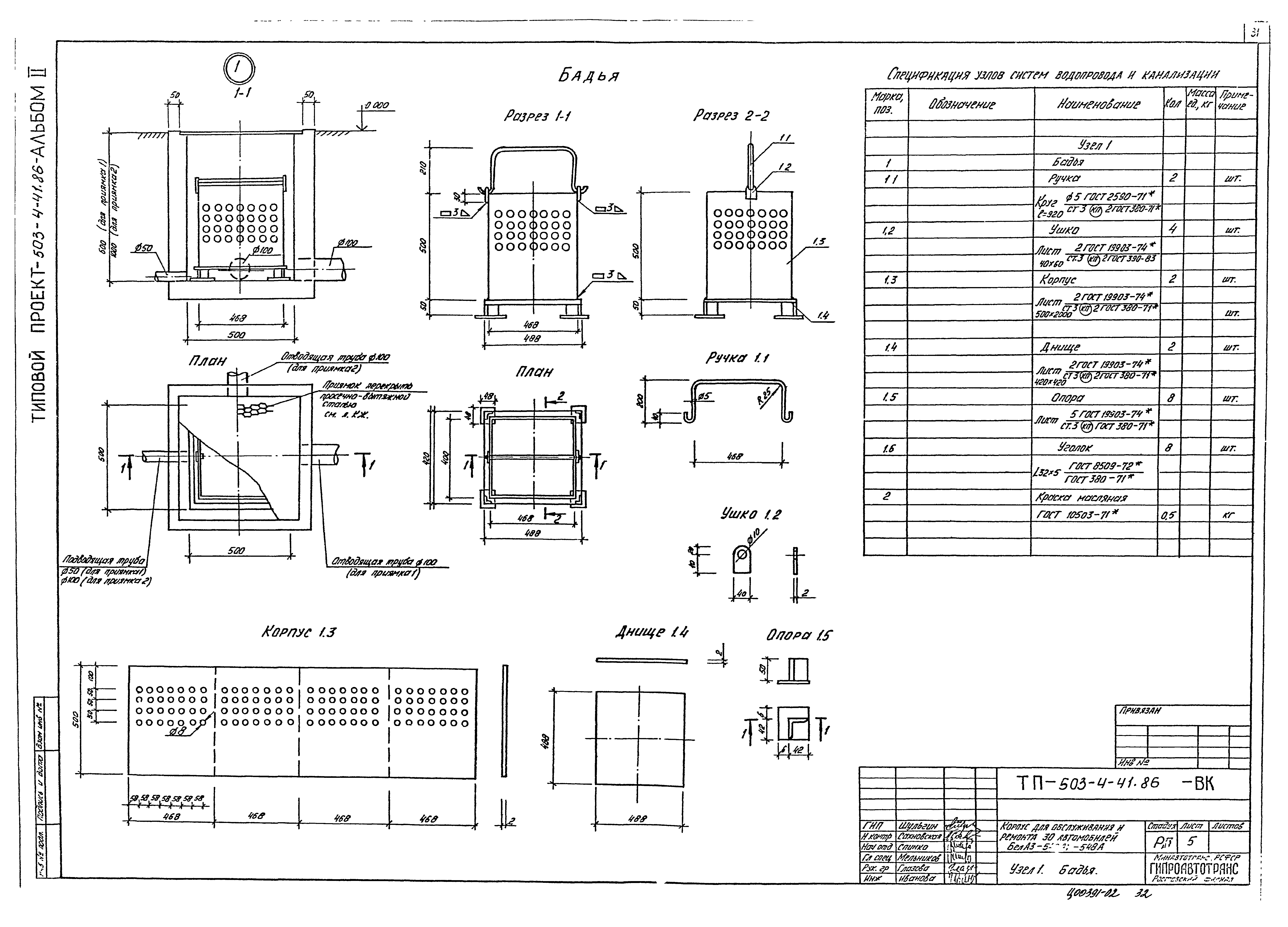
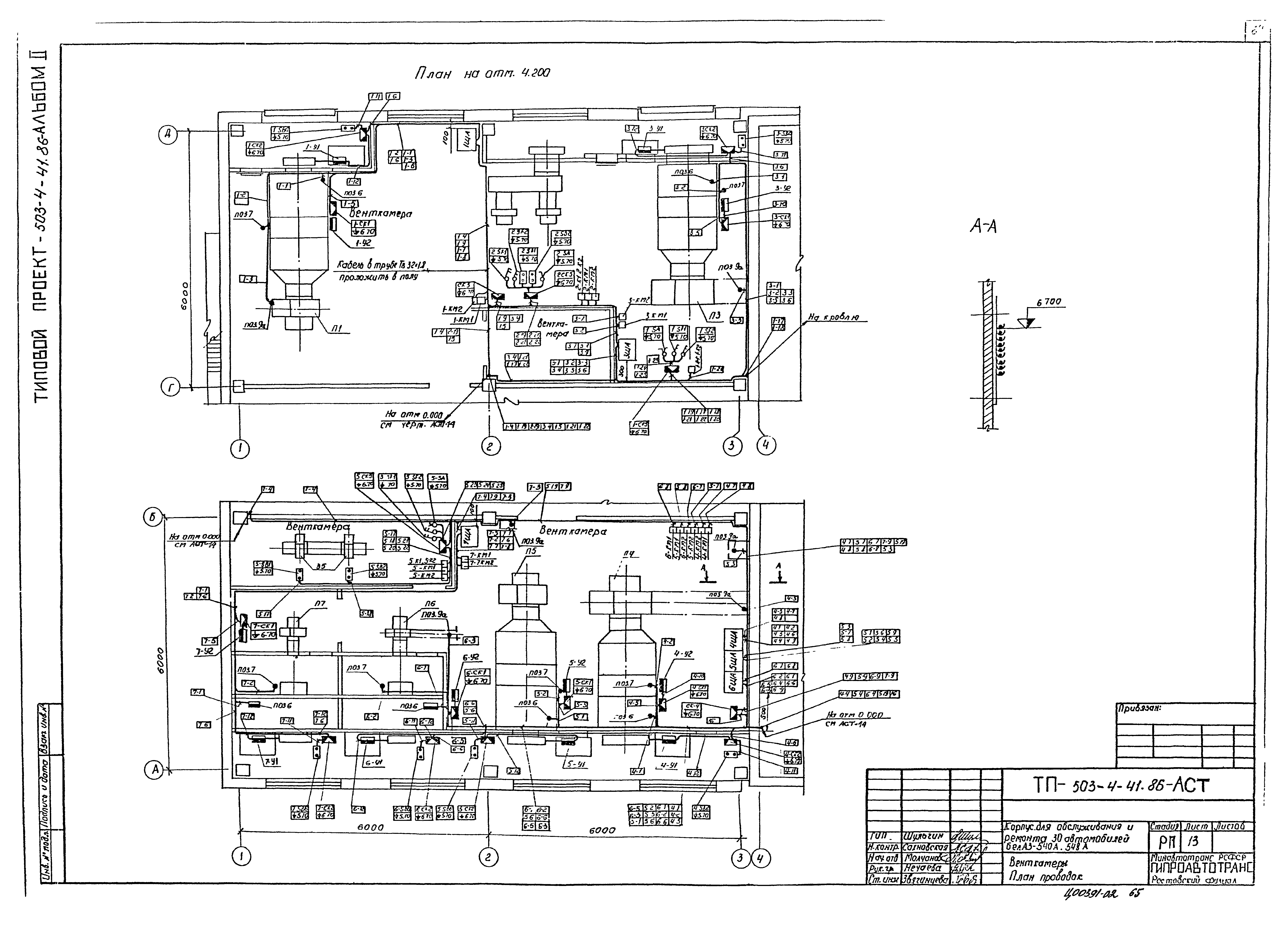
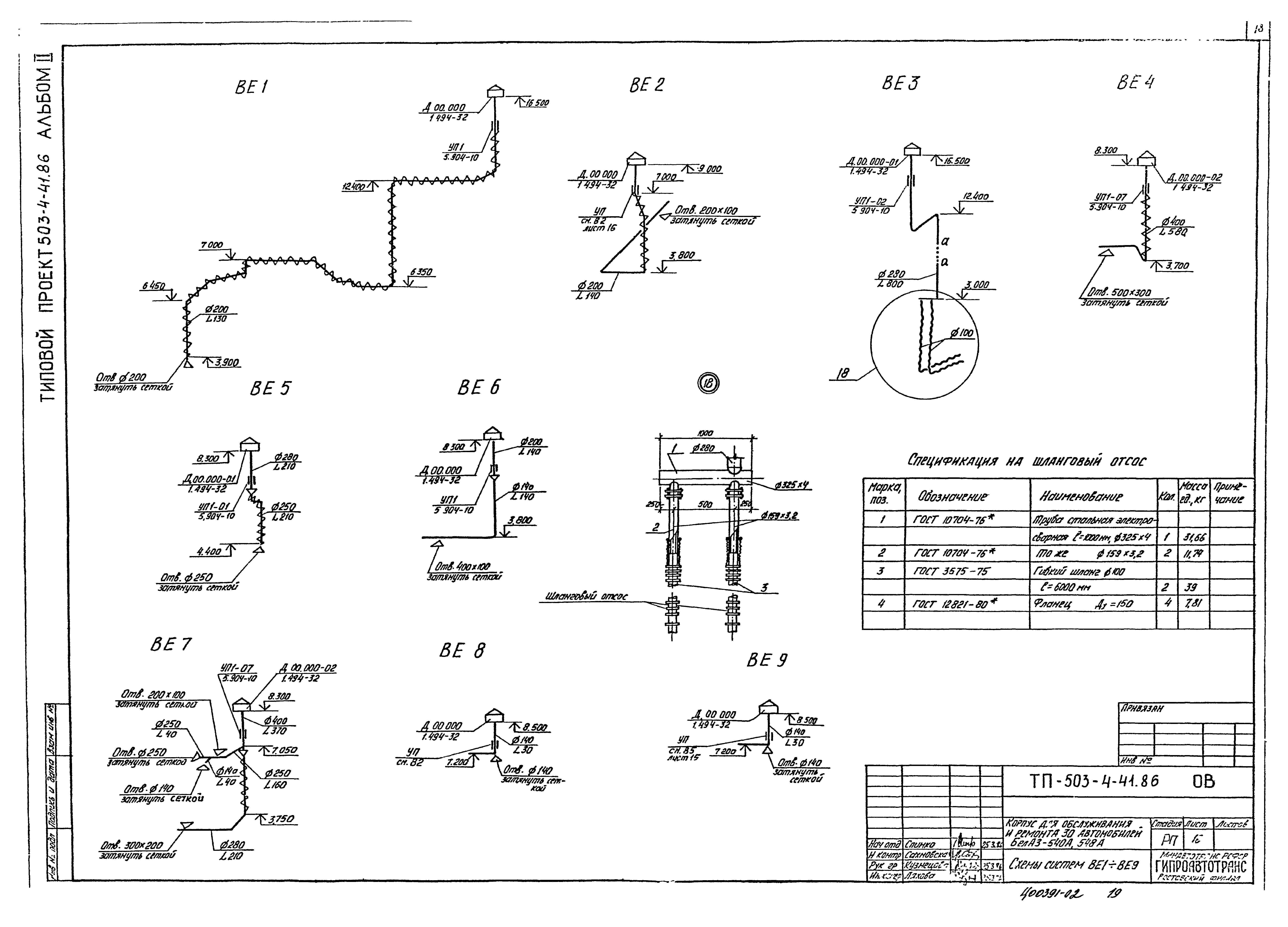
Скачать Типовой проект 503-4-41.86 Альбом II. Отопление и вентиляция. Внутренний водопровод и канализация. Силовое электрооборудование. Электрическое освещение. Автоматизация. Связь и сигнализация. Пожарная сигнализация

Дата актуализации: 10.08.2017

Типовой проект 503-4-41.86

Альбом II. Отопление и вентиляция. Внутренний водопровод и канализация. Силовое электрооборудование. Электрическое освещение. Автоматизация. Связь и сигнализация. Пожарная сигнализация

Обозначение: Типовой проект 503-4-41.86
Обозначение англ: 503-4-41.86
Статус:не определен законодательством
Название рус.:Альбом II. Отопление и вентиляция. Внутренний водопровод и канализация. Силовое электрооборудование. Электрическое освещение. Автоматизация. Связь и сигнализация. Пожарная сигнализация
Дата добавления в базу:01.09.2013
Дата актуализации:05.05.2017
Дата введения:18.02.1986
Разработан: Гипроавтотранс
Утверждён:18.02.1986 Минавтотранс РСФСР (Russian Federation Minavtotrans 8)
Расположен в:Техническая документация Строительство Справочные документы Типовые строительные конструкции, изделия и узлы Общероссийский строительный каталог Промышленные предприятия, здания и сооружения Предприятия, здания и сооружения транспорта Транспорт автомобильный Корпуса производственные, станции технического обслуживания и ремонта грузовых и легковых автомобилей и автобусов
Типовой проект 503-4-41.86Типовой проект 503-4-41.86Типовой проект 503-4-41.86Типовой проект 503-4-41.86Типовой проект 503-4-41.86Типовой проект 503-4-41.86Типовой проект 503-4-41.86Типовой проект 503-4-41.86Типовой проект 503-4-41.86Типовой проект 503-4-41.86Типовой проект 503-4-41.86Типовой проект 503-4-41.86Типовой проект 503-4-41.86Типовой проект 503-4-41.86Типовой проект 503-4-41.86Типовой проект 503-4-41.86Типовой проект 503-4-41.86Типовой проект 503-4-41.86Типовой проект 503-4-41.86Типовой проект 503-4-41.86Типовой проект 503-4-41.86Типовой проект 503-4-41.86Типовой проект 503-4-41.86Типовой проект 503-4-41.86Типовой проект 503-4-41.86Типовой проект 503-4-41.86Типовой проект 503-4-41.86Типовой проект 503-4-41.86Типовой проект 503-4-41.86Типовой проект 503-4-41.86Типовой проект 503-4-41.86Типовой проект 503-4-41.86Типовой проект 503-4-41.86Типовой проект 503-4-41.86Типовой проект 503-4-41.86Типовой проект 503-4-41.86Типовой проект 503-4-41.86Типовой проект 503-4-41.86Типовой проект 503-4-41.86Типовой проект 503-4-41.86Типовой проект 503-4-41.86Типовой проект 503-4-41.86Типовой проект 503-4-41.86Типовой проект 503-4-41.86Типовой проект 503-4-41.86Типовой проект 503-4-41.86Типовой проект 503-4-41.86Типовой проект 503-4-41.86Типовой проект 503-4-41.86Типовой проект 503-4-41.86Типовой проект 503-4-41.86Типовой проект 503-4-41.86Типовой проект 503-4-41.86Типовой проект 503-4-41.86Типовой проект 503-4-41.86Типовой проект 503-4-41.86Типовой проект 503-4-41.86Типовой проект 503-4-41.86Типовой проект 503-4-41.86Типовой проект 503-4-41.86Типовой проект 503-4-41.86Типовой проект 503-4-41.86Типовой проект 503-4-41.86Типовой проект 503-4-41.86Типовой проект 503-4-41.86Типовой проект 503-4-41.86Типовой проект 503-4-41.86Типовой проект 503-4-41.86Типовой проект 503-4-41.86Типовой проект 503-4-41.86Типовой проект 503-4-41.86Типовой проект 503-4-41.86Типовой проект 503-4-41.86Типовой проект 503-4-41.86Типовой проект 503-4-41.86Типовой проект 503-4-41.86Типовой проект 503-4-41.86Типовой проект 503-4-41.86Типовой проект 503-4-41.86Типовой проект 503-4-41.86

© 2013 Ёшкин Кот :-) Карта сайта