Информационная система
«Ёшкин Кот»

Скачать базу одним архивом
Скачать обновления
История создания базы
Карта сайта

Скачать Типовой проект 708-57.90 Альбом 2. Архитектурные решения. Конструкции железобетонные. Строительные изделия. Отопление и вентиляция. Водопровод и канализация

Дата актуализации: 10.08.2017

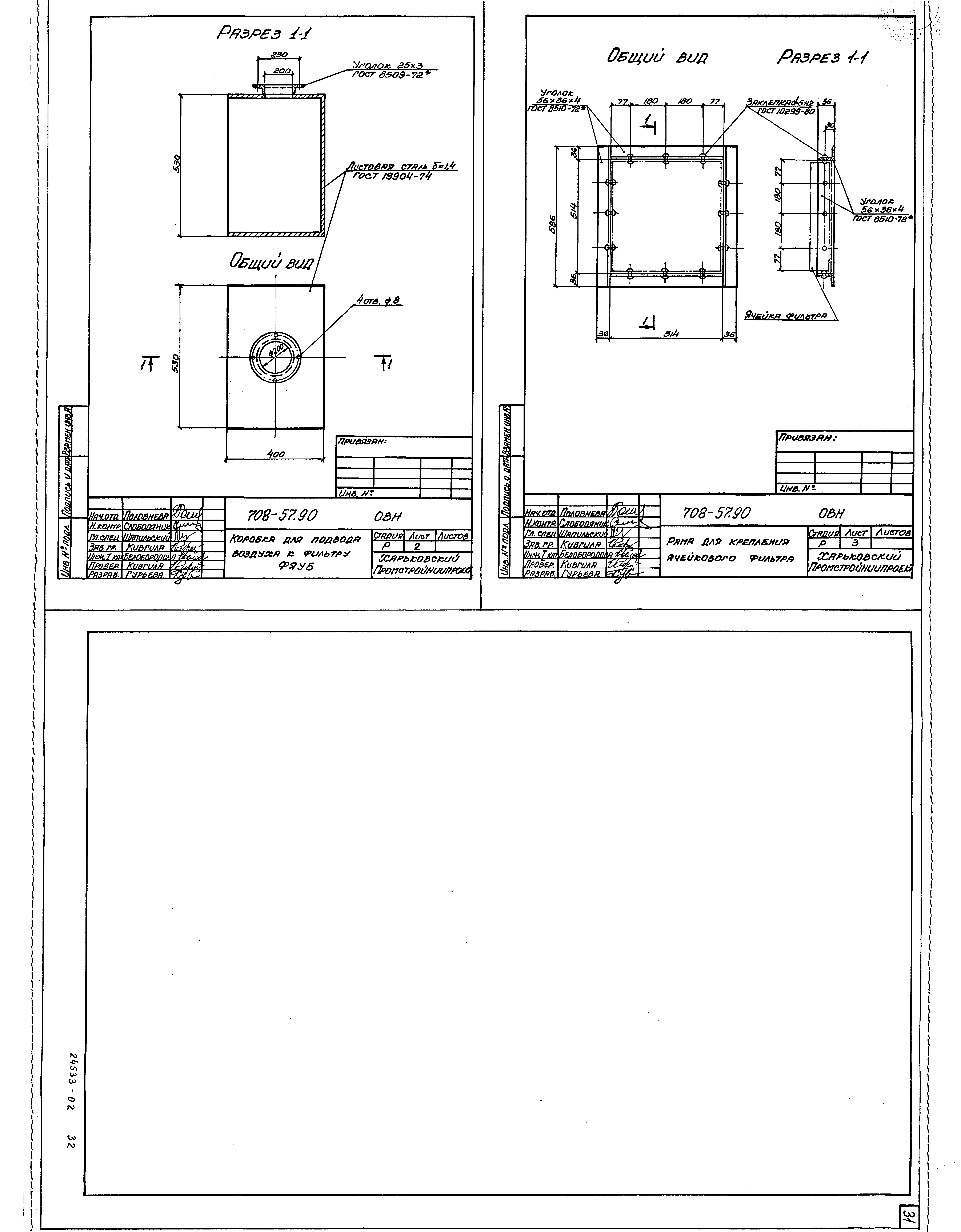
Типовой проект 708-57.90

Альбом 2. Архитектурные решения. Конструкции железобетонные. Строительные изделия. Отопление и вентиляция. Водопровод и канализация

Обозначение: Типовой проект 708-57.90
Обозначение англ: 708-57.90
Статус:не определен законодательством
Название рус.:Альбом 2. Архитектурные решения. Конструкции железобетонные. Строительные изделия. Отопление и вентиляция. Водопровод и канализация
Дата добавления в базу:01.09.2013
Дата актуализации:05.05.2017
Дата введения:29.08.1990
Разработан: Харьковский Промстройниипроект
Промтрансниипроект
Укрниипроектстальконструкция
Донецкое отделение Промтрансниипроекта
Волгоградское отделение Тяжпромэлектропроекта
Утверждён:18.01.1990 Госстрой СССР (Государственный комитет Совета Министров СССР по делам строительства) (USSR Gosstroy 1)
Расположен в:Техническая документация Строительство Справочные документы Типовые строительные конструкции, изделия и узлы Общероссийский строительный каталог Промышленные предприятия, здания и сооружения Предприятия, здания и сооружения складские Склады строительных материалов и изделий
Типовой проект 708-57.90Типовой проект 708-57.90Типовой проект 708-57.90Типовой проект 708-57.90Типовой проект 708-57.90Типовой проект 708-57.90Типовой проект 708-57.90Типовой проект 708-57.90Типовой проект 708-57.90Типовой проект 708-57.90Типовой проект 708-57.90Типовой проект 708-57.90Типовой проект 708-57.90Типовой проект 708-57.90Типовой проект 708-57.90Типовой проект 708-57.90Типовой проект 708-57.90Типовой проект 708-57.90Типовой проект 708-57.90Типовой проект 708-57.90Типовой проект 708-57.90Типовой проект 708-57.90Типовой проект 708-57.90Типовой проект 708-57.90Типовой проект 708-57.90Типовой проект 708-57.90Типовой проект 708-57.90Типовой проект 708-57.90Типовой проект 708-57.90Типовой проект 708-57.90Типовой проект 708-57.90Типовой проект 708-57.90Типовой проект 708-57.90

© 2013 Ёшкин Кот :-) Карта сайта