Скачать Типовой проект 409-29-66 Альбом II. Выпуск 1. Архитектурно-строительная и санитарно-техническая части. Инвентарный вариант (в металле)Дата актуализации: 10.08.2017 Типовой проект 409-29-66
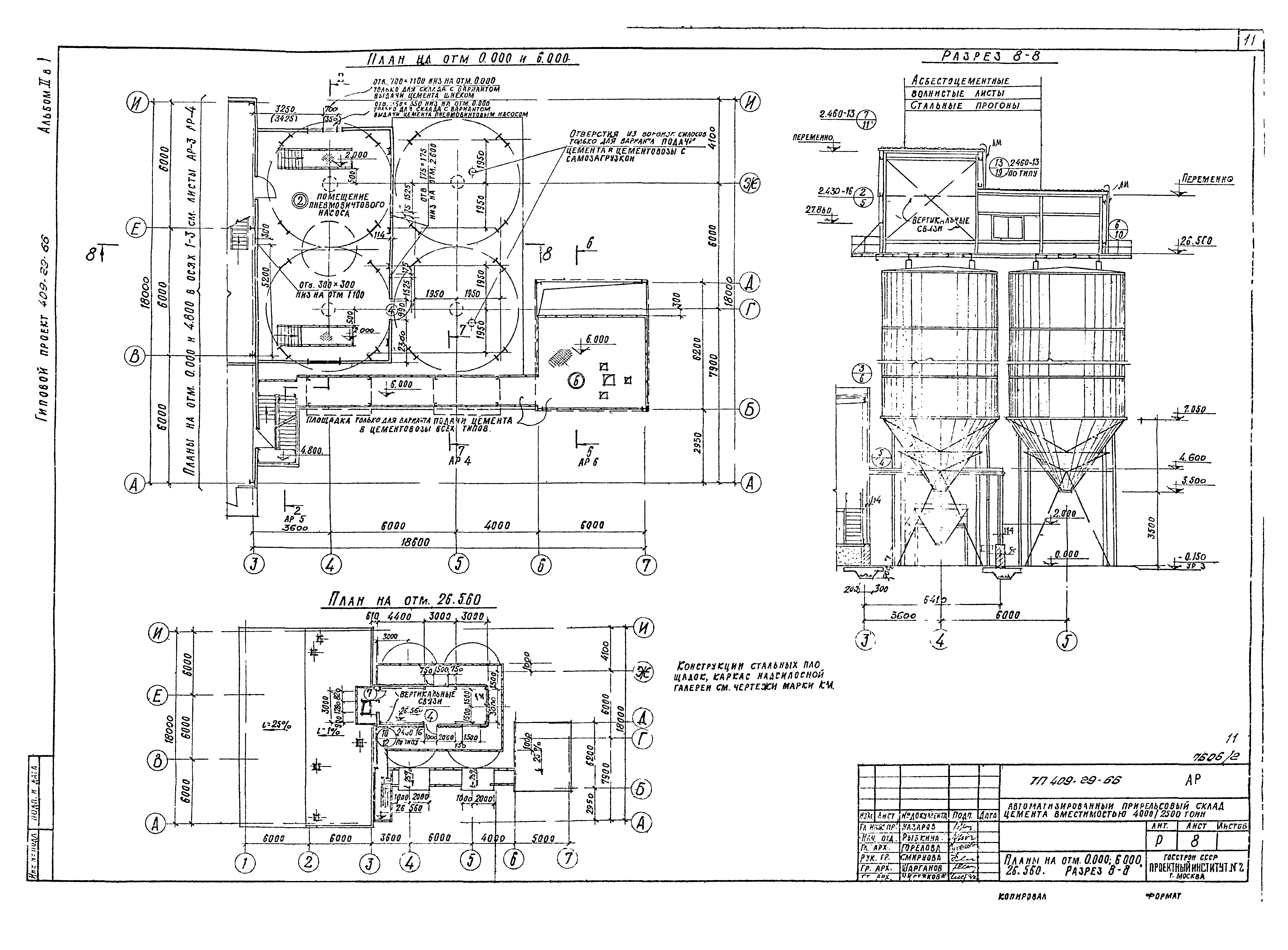
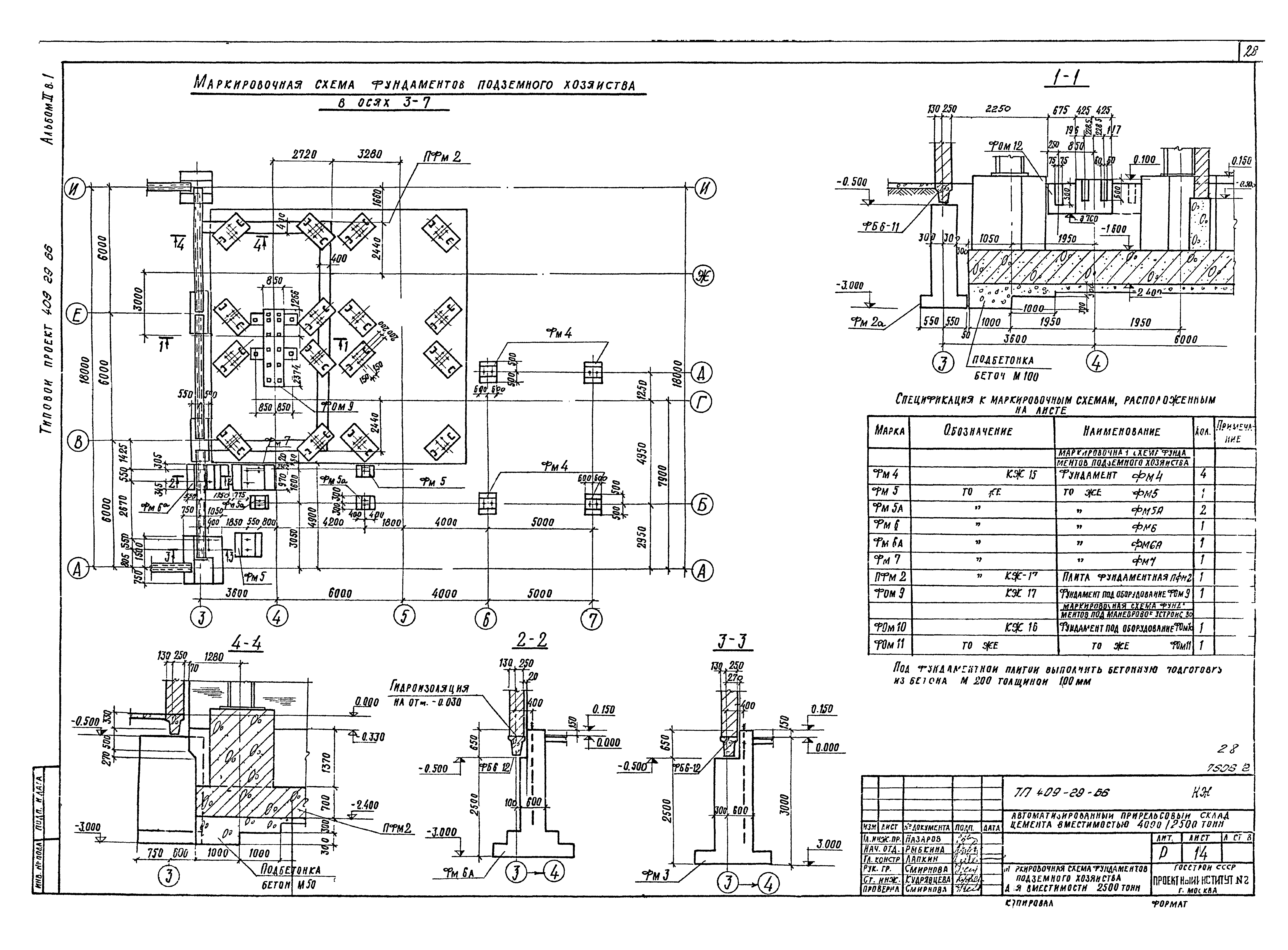
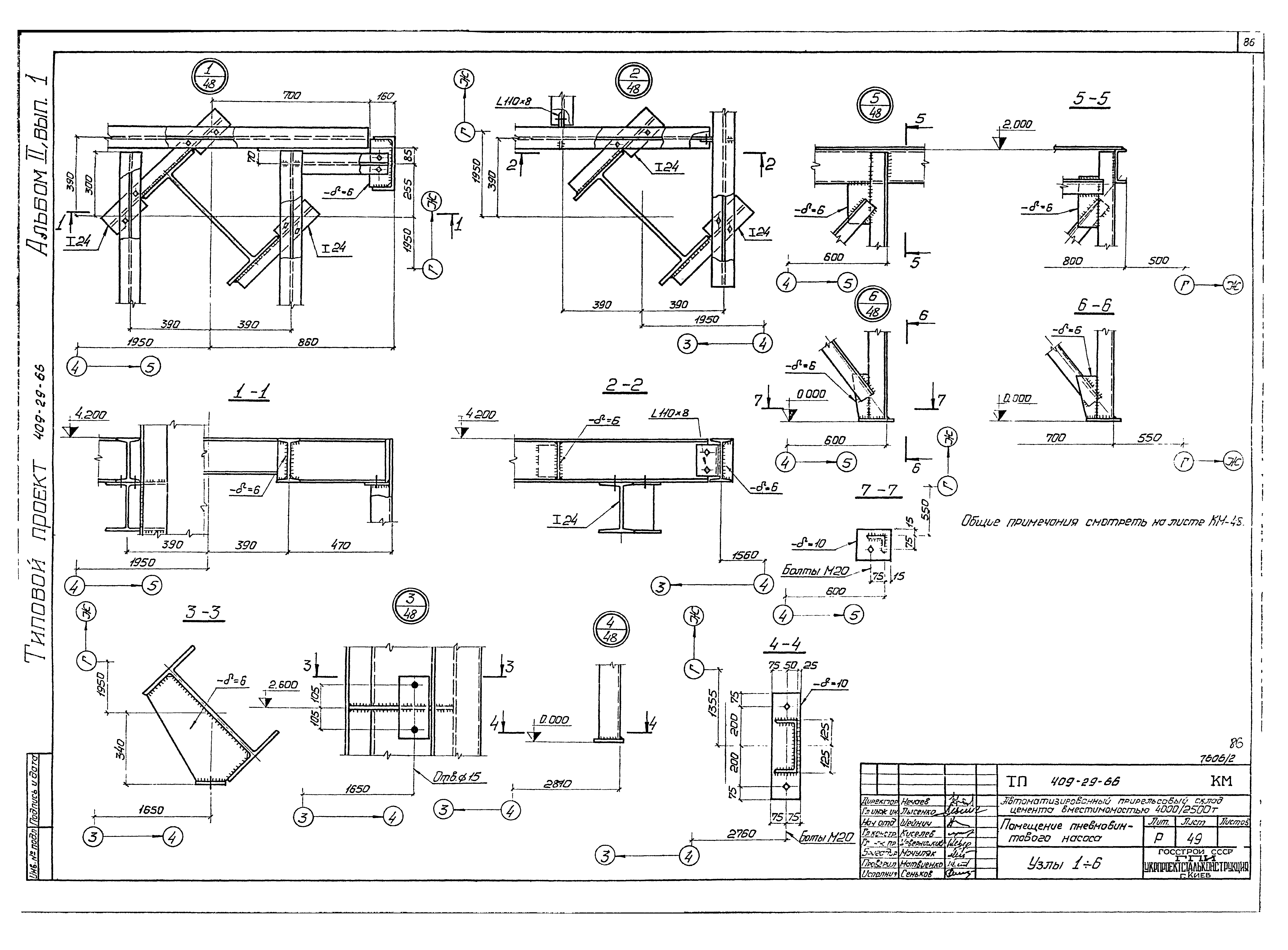
Альбом II. Выпуск 1. Архитектурно-строительная и санитарно-техническая части. Инвентарный вариант (в металле)Обозначение: | Типовой проект 409-29-66 | Обозначение англ: | 409-29-66 | Статус: | не определен законодательством | Название рус.: | Альбом II. Выпуск 1. Архитектурно-строительная и санитарно-техническая части. Инвентарный вариант (в металле) | Дата добавления в базу: | 01.09.2013 | Дата актуализации: | 05.05.2017 | Дата введения: | 30.11.1979 | Оглавление: | Архитектурно-строительные решения Общие данные Планы на отм. 0.000, 1.100, 2.000, 5.200. Разрезы 5-5; 6-6 Планы на отм. 2.700, 4.800, 6.000, 26.560. Разрез 7-7. Деталь 5 Разрезы 1-1; 2-2; 3-3 Разрез 4-4. Детали 1-4 Фасады. Схема заполнения оконного проема Планы на отм. 0.000, 6.000, 26.560. Разрез 8-8 Маркировочные схемы раскладки листов и установки креплений в кровле и стенах галереи. Фасады 1-7, 7-1 Маркировочные схемы раскладки листов и установки креплений в кровле и стенах галереи. Детали 6 и 7 Маркировочные схемы раскладки листов и установки креплений в кровле и стене по осн.1. Детали 8 - 11 Конструкции железобетонные Общие данные Маркировочная схема фундаментов, фундаментных балок и подземного хозяйства в осях 1-3 Маркировочная схема фундаментов, фундаментных балок и подземного хозяйства в осях 1-3. Узел 3. Сечение А-А. ПК1, ПК2 Маркировочная схема подвала приемного бункера. Фундаменты ФОМ1, ФОМ2 Подвал приемного бункера. Стена СТМ 1 Подвал приемного бункера. Стена СТМ 2 Подвал приемного бункера. Стена СТМ 3, СТМ 4 и фундамент ФОМ13 Приямок входа в подвал и приемного бункера ПРМ 1 Фундаменты ФОМ3 - ФОМ9 Фундаменты ФМ1; ФМ2; ФМ20. Приямок ПРМ2. Камера для воды К1 Маркировочная схема фундаментов подземного хозяйства для вместимости 4000 тонн Маркировочная схема фундаментов подземного хозяйства для вместимости 2500 тонн Фундаменты ФМ3; ФМ4; ФМ5; ФМ5А; ФМ6; ФМ6А; ФМ7 Маркировочная схема фундаментов под маневровое устройство. Фундаменты ФОМ10; ФОМ11; ФОМ12 Плиты фундаментные ПФМ1, ПФМ2. Узел 1 Плита фундаментная ПФМ1. Армирование Плита фундаментная ПФМ2. Армирование Маркировочные схемы стеновых щитов приемного устройства. Спецификация Маркировочные схемы стеновых щитов пневмовинтового насоса. Узлы 1 - 4 Маркировочные схемы щитов покрытия помещения пневмовинтового насоса. Узлы Маркировочная схема щитов покрытия приемного устройства. Узлы Конструкции металлические Ведомость чертежей основного комплекта Общие данные План анкерных болтов нагрузки на фундаменты Склад вместимостью 4000т. Схема склада Техническая спецификация стали склада вместимостью 4000 т Техническая спецификация стали склада вместимостью 4000 т (выдача в автоцементовозы с самозагрузкой) Ведомости металлоконструкций по видам профилей склада вместимостью 4000 т Склад вместимостью 2500 т. Схема склада Техническая спецификация стали склада вместимостью 2500 т Техническая спецификация стали склада вместимостью 2500 т (выдача в автоцементовозы с самозагрузкой) Ведомости металлоконструкций по видам профилей склада вместимостью 2500 т Общий вид силоса Разрезы 4-4 - 8-8. Узлы 1, 2 Узел опирания силоса на колонну Воронка силоса ОБ-5 Опора силоса. Узлы 3; 4; 5 Крышки силосов. Узлы 6; 7; 8 Узлы 9 - 15 Блоки БП-1; БП-2. Узлы 1 - 4 Блоки БП-3; БП-4 Блоки БП-5; БП-6 Блоки БП-7; БП-8 Склад вместимостью 4000 т. Схема каркаса. Планы. Разрезы Склад вместимостью 2500 т. Схема каркаса. Планы. Разрезы Узлы 1 - 6 Схема каркаса. Разрез 1-1 Схема каркаса. Разрезы 2-2 - 4-4, 7-7.Блок БТ-4 Разрез 5-5. Узлы 1 - 4 Узлы 5, 6, 7, 8 Схема приемного бункера Узлы 9, 10, 11 Узлы 12 - 18 Блок БТ1. Узлы 19, 20, 21 Блоки БТ2, БТ3. Щиты Щ1 - Щ4. Помещение пневмовинтового насоса Схема каркаса. План. Разрезы Узлы 1 - 6 Склад вместимостью 4000 т. Схема каркаса. Планы. Разрез 1-1 Схема каркаса. Блоки ПЛ-1, ПЛ-2. Разрезы 2-2 - 6-6 Блоки ПЛ-3 - ПЛ-7. Узлы 1; 2; 3 Узлы 4 - 8 Склад вместимостью 2500 т. Схема каркаса. Планы. Разрезы Схема лестницы. Блоки БЛ-1, БЛ-2 Блоки БЛ-3 - БЛ-9. Узел 1 Узлы 2, 3, 4, 5, 6 Отопление и вентиляция Общие данные План и схемы систем отопления и вентиляции Водопровод и канализация Общие данные План на отм. 0.000; 1.100. Схемы систем В1; В5; В6, К3. Сводная спецификация Организация строительства Общие положения по организации строительства | Разработан: | Проектный институт N 2 (ПИ-2) Гипростроммашина Укрпроектстальконструкция
| Утверждён: | 02.07.1979 Госстрой СССР (Государственный комитет Совета Министров СССР по делам строительства) (USSR Gosstroy 35)
| Издан: | ЦИТП Госстроя СССР (CITP, Gosstroy (USSR) 1989 г. )
| Расположен в: |
|
                                                                                                    
|