Информационная система
«Ёшкин Кот»

Скачать базу одним архивом
Скачать обновления
История создания базы
Карта сайта

Скачать Типовой проект 409-29-66 Альбом I. Общие данные. Технологическая часть. Промпроводки

Дата актуализации: 10.08.2017

Типовой проект 409-29-66

Альбом I. Общие данные. Технологическая часть. Промпроводки

Обозначение: Типовой проект 409-29-66
Обозначение англ: 409-29-66
Статус:не определен законодательством
Название рус.:Альбом I. Общие данные. Технологическая часть. Промпроводки
Дата добавления в базу:01.09.2013
Дата актуализации:05.05.2017
Дата введения:30.11.1979
Оглавление:Содержание альбома
Ведомость чертежей основного комплекта марки ТХ
   Заглавный лист
   Пояснительная записка
   Технологическая схема. Вариант склада вместимостью 4000 т с выдачей цемента в автоцементовозы всех типов
   План на отм. - 5200; 0.000; 1.100
   План на отм. 0.000; 1.100; 2.700 и 4.800
   План на отм.6.000 и 26.560
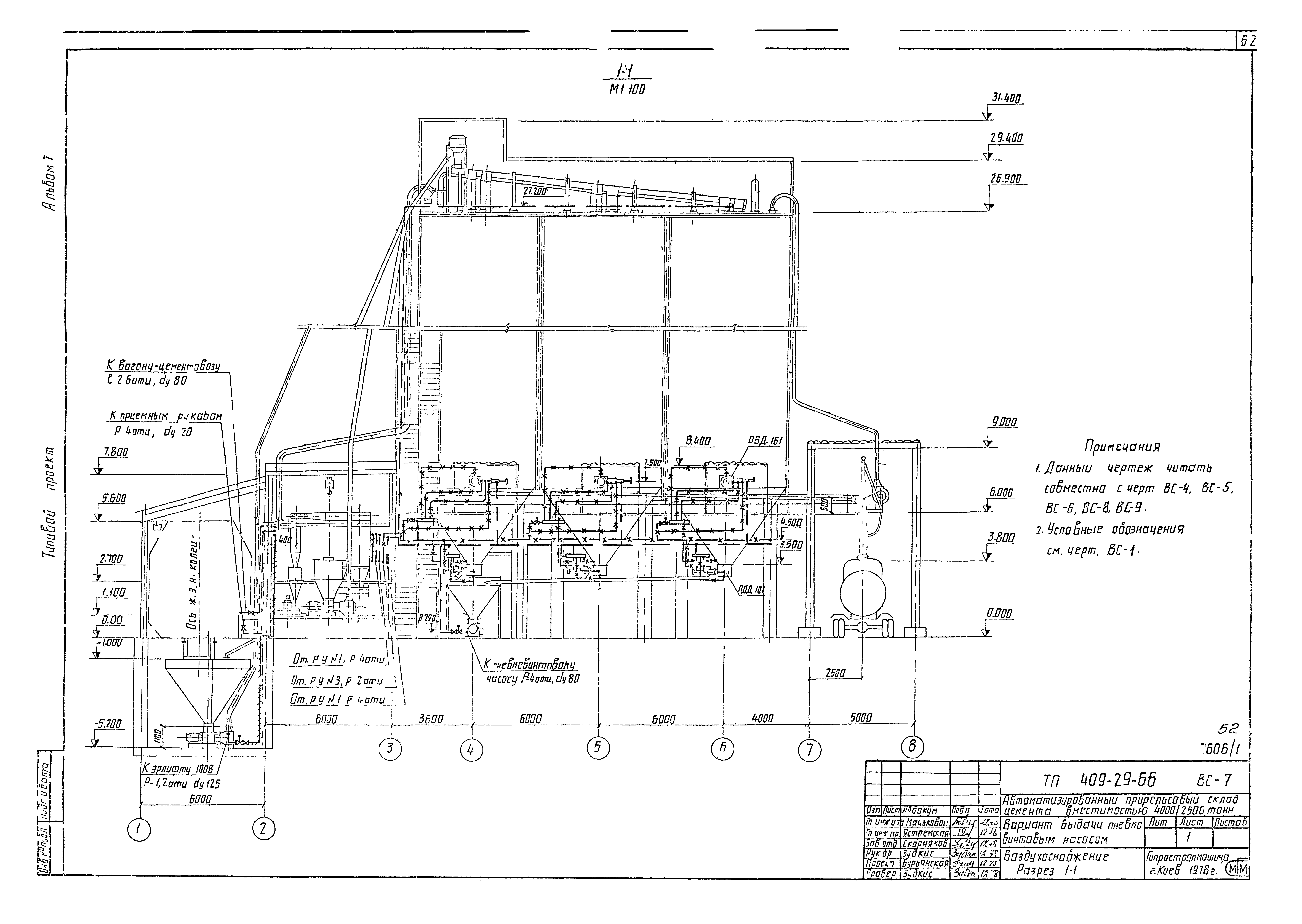
   Разрез 1-1
   Разрез 2-2. Вариант склада вместимостью 4000 т с выдачей цемента в автоцементовозы с самозагрузкой
   План на отм. - 5200; 0.000; 1.100
   План на отм. 0.000; 1.100; 2.700 и 4.800
   План на отм. 6.000 и 26.560
   Разрез 1-1
   Разрез 2-2. Вариант склада вместимостью 2500 т с выдачей цемента в автоцементовозы всех типов
   План на отм. - 5200; 0.000; 1.100
   План на отм. 0.000; 1.100; 2.700; 4.800
   План на отм.6.000 и 26.560
   Разрез 1-1
   Разрез 2-2. Вариант склада вместимостью 2500 т с выдачей цемента в автоцементовозы с самозагрузкой
   План на отм.-5200; 0.000; 1.100
   План на отм. 0.000; 1.100; 2.700; 4.800
   План на отм. 6.000 и 26.560
   Разрез 1-1
   Разрез 2-2
   Разрезы 3-3, 4-4
   Узел очистки запыленного воздуха
   Установка оборудования по загрузке автоцементовозов всех типов
   Установка донных пневморазгружателей ПДД-101
   Установка пневморазгружателя боковой выгрузки ПБД-161
   Установка верхних указателей уровня УКМ
   Аэрационное сводообрушающее устройство
   Установка маневренного устройства с лебедкой Т-193Б
Ведомость чертежей основного комплекта ВС
   Воздухоснабжение. Заглавный лист
   Воздухоснабжение. План на отм. 0.000; 1.100; 2.100; 4.800; 6.000; 11.300
   Воздухоснабжение. Разрез 2-2. План на отм. - 5.200
   Вариант выдачи пневмовинтовым насосом. Воздухоснабжение. План на отм. 0.000; 1.100
   Вариант выдачи пневмовинтовым насосом. Воздухоснабжение. Разрез 1-1
   Вариант выдачи пневмовинтовым насосом. Воздухоснабжение. Аксонометрическая схема
   Вариант выдачи пневмовинтовым насосом. Воздухоснабжение. Спецификация
   Вариант выдачи пневмовинтовым контейнером. Воздухоснабжение. План на отм. 0.000, 1.100
   Вариант выдачи пневмовинтовым контейнером. Воздухоснабжение. Разрезы 1-1
   Вариант выдачи пневмовинтовым контейнером. Воздухоснабжение. Аксонометрическая схема
   Вариант выдачи пневмовинтовым контейнером. Воздухоснабжение. Спецификация
   Воздухоснабжение. Установка маслоотделителей
   Воздухоснабжение. Аэрационное сводообрушающее устройство
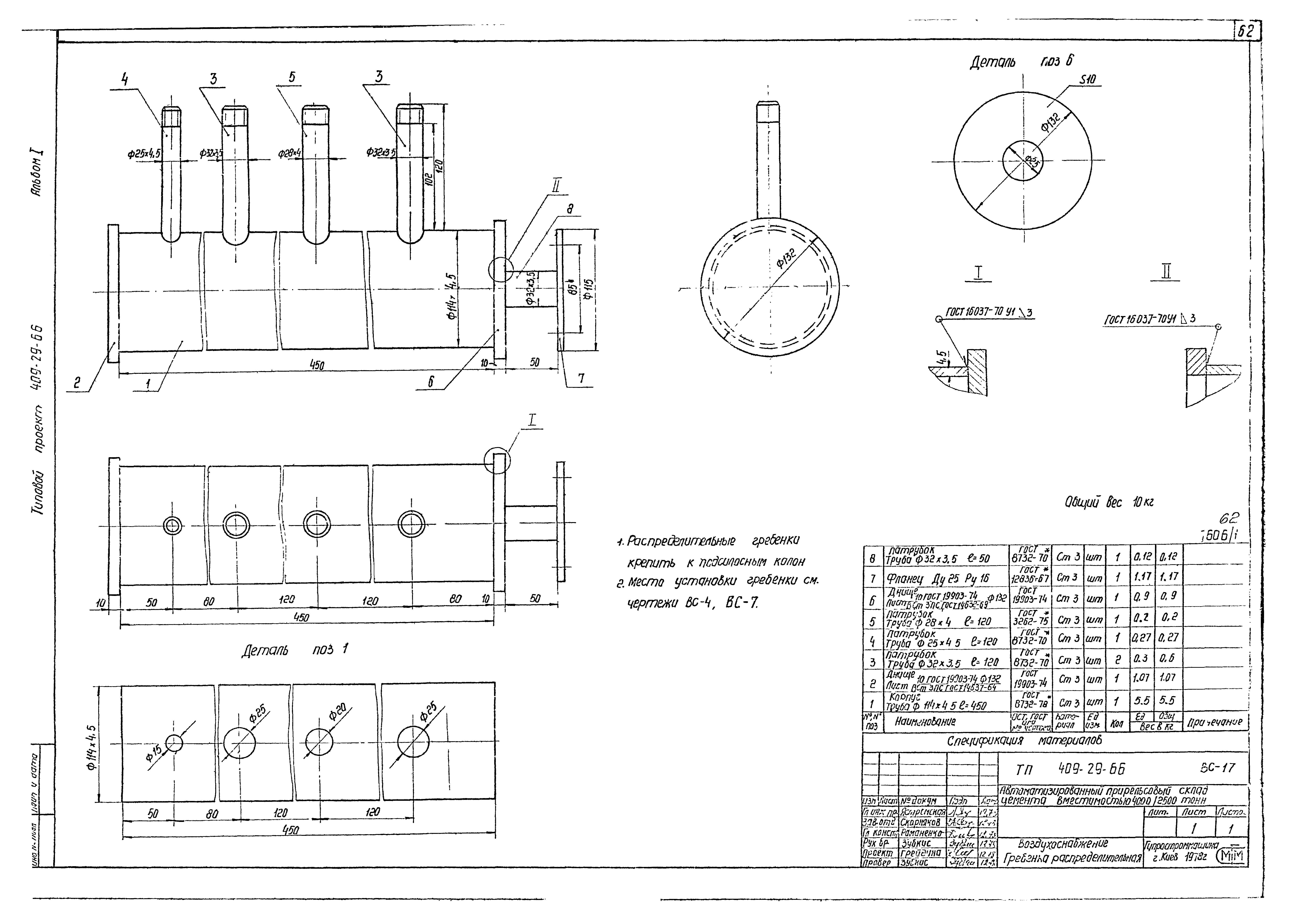
   Воздухоснабжение. Гребенка распределительная
Разработан: Гипростроммашина
Утверждён:02.07.1979 Госстрой СССР (Государственный комитет Совета Министров СССР по делам строительства) (USSR Gosstroy 35)
Издан: ЦИТП Госстроя СССР (CITP, Gosstroy (USSR) 1989 г. )
Расположен в:Техническая документация Строительство Справочные документы Типовые строительные конструкции, изделия и узлы Общероссийский строительный каталог Промышленные предприятия, здания и сооружения Предприятия, здания и сооружения складские Склады строительных материалов и изделий
Типовой проект 409-29-66Типовой проект 409-29-66Типовой проект 409-29-66Типовой проект 409-29-66Типовой проект 409-29-66Типовой проект 409-29-66Типовой проект 409-29-66Типовой проект 409-29-66Типовой проект 409-29-66Типовой проект 409-29-66Типовой проект 409-29-66Типовой проект 409-29-66Типовой проект 409-29-66Типовой проект 409-29-66Типовой проект 409-29-66Типовой проект 409-29-66Типовой проект 409-29-66Типовой проект 409-29-66Типовой проект 409-29-66Типовой проект 409-29-66Типовой проект 409-29-66Типовой проект 409-29-66Типовой проект 409-29-66Типовой проект 409-29-66Типовой проект 409-29-66Типовой проект 409-29-66Типовой проект 409-29-66Типовой проект 409-29-66Типовой проект 409-29-66Типовой проект 409-29-66Типовой проект 409-29-66Типовой проект 409-29-66Типовой проект 409-29-66Типовой проект 409-29-66Типовой проект 409-29-66Типовой проект 409-29-66Типовой проект 409-29-66Типовой проект 409-29-66Типовой проект 409-29-66Типовой проект 409-29-66Типовой проект 409-29-66Типовой проект 409-29-66Типовой проект 409-29-66Типовой проект 409-29-66Типовой проект 409-29-66Типовой проект 409-29-66Типовой проект 409-29-66Типовой проект 409-29-66Типовой проект 409-29-66Типовой проект 409-29-66Типовой проект 409-29-66Типовой проект 409-29-66Типовой проект 409-29-66Типовой проект 409-29-66Типовой проект 409-29-66Типовой проект 409-29-66Типовой проект 409-29-66Типовой проект 409-29-66Типовой проект 409-29-66Типовой проект 409-29-66Типовой проект 409-29-66Типовой проект 409-29-66Типовой проект 409-29-66

© 2013 Ёшкин Кот :-) Карта сайта