Информационная система
«Ёшкин Кот»

Скачать базу одним архивом
Скачать обновления
История создания базы
Карта сайта

Скачать Типовой проект 407-1-88.85 Альбом I. Общая пояснительная записка. Тепломеханическая часть. Электротехническая часть. Архитектурно-строительные решения. Отопление и вентиляция. Водопровод и канализация

Дата актуализации: 10.08.2017

Типовой проект 407-1-88.85

Альбом I. Общая пояснительная записка. Тепломеханическая часть. Электротехническая часть. Архитектурно-строительные решения. Отопление и вентиляция. Водопровод и канализация

Обозначение: Типовой проект 407-1-88.85
Обозначение англ: 407-1-88.85
Статус:не определен законодательством
Название рус.:Альбом I. Общая пояснительная записка. Тепломеханическая часть. Электротехническая часть. Архитектурно-строительные решения. Отопление и вентиляция. Водопровод и канализация
Дата добавления в базу:01.09.2013
Дата актуализации:05.05.2017
Дата введения:28.12.1984
Оглавление:Общие данные. Общая пояснительная записка
Чертежи основного комплекта ТХ
   Общие данные
   Компоновка оборудования
   Трубопровод газовыхлопа
   Опора глушителя - маслоотделителя
   Кронштейн для крепления ручного насоса "Родник"
   Глушитель-маслоотделитель
   Стальной колпак
   Стяжное кольцо
   Выхлопной трубопровод
Чертежи основного комплекта Э
   Общие данные
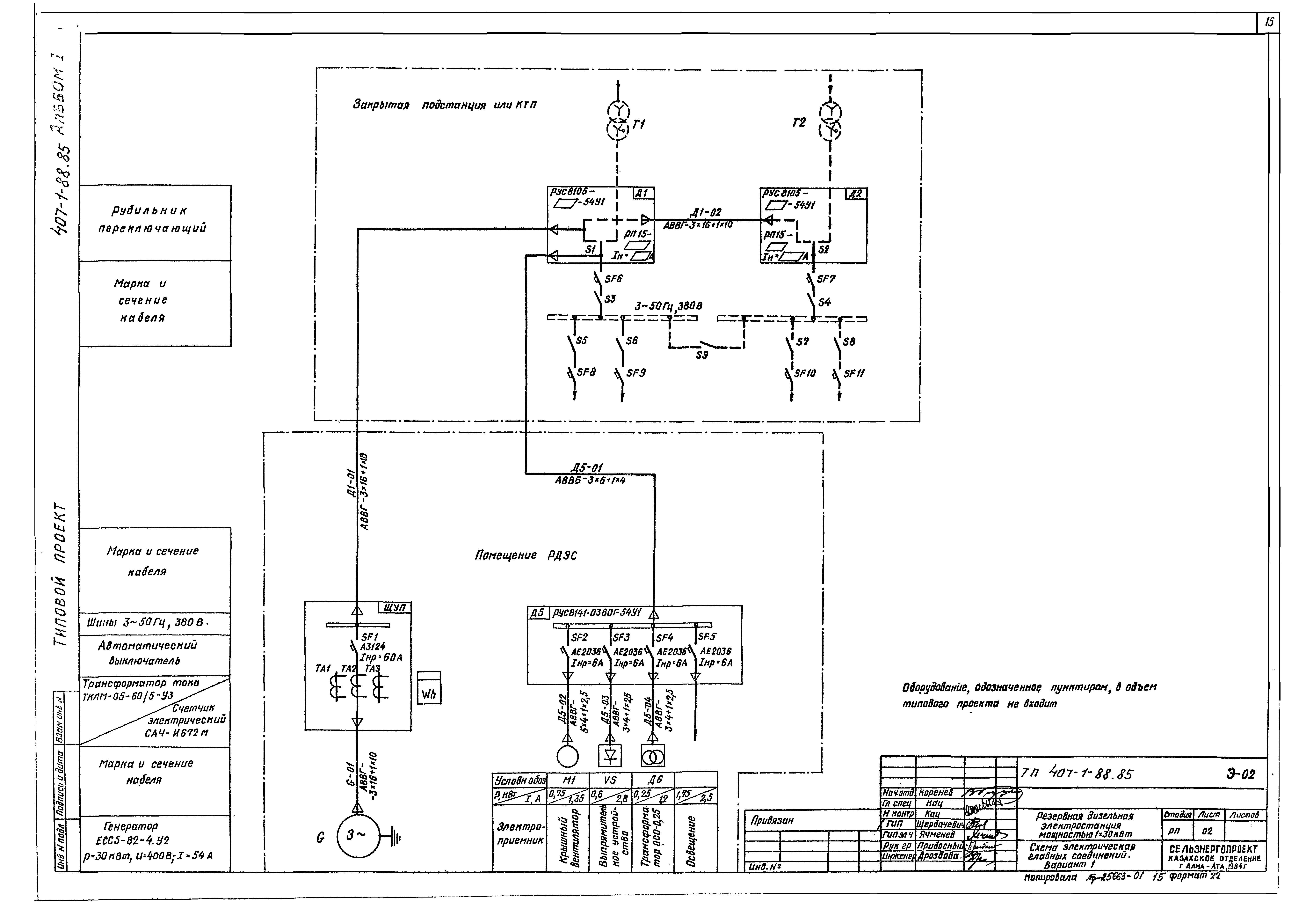
   Схема электрическая главных соединений. Вариант 1
   Схема электрическая главных соединений. Вариант 2
   Схема электрическая главных соединений. Вариант 3
   Схема электрическая главных соединений. Вариант 4
   Постоянный ток. Схема электрическая
   Возбуждение и регулирование напряжения. Схема электрическая полная
   Схема внешних электрических подключений электроагрегата
   Раскладка кабелей. Кабельный журнал. Вариант 1
   Раскладка кабелей. Кабельный журнал. Вариант 2
   Раскладка кабелей. Кабельный журнал. Вариант 3
   Раскладка кабелей. Кабельный журнал. Вариант 4
   Электроосвещение
   План магистрали заземления. Вариант 1
   План магистрали заземления. Вариант 2
   План магистрали заземления. Вариант 3
   План магистрали заземления. Вариант 4
Чертежи основного комплекта АС
   Общие данные
   Каркасно-панельный вариант
      План на отм. 0,000. Разрезы 1-1; 2-2
      Фасады 1-2, 2-1, А-В, В-А
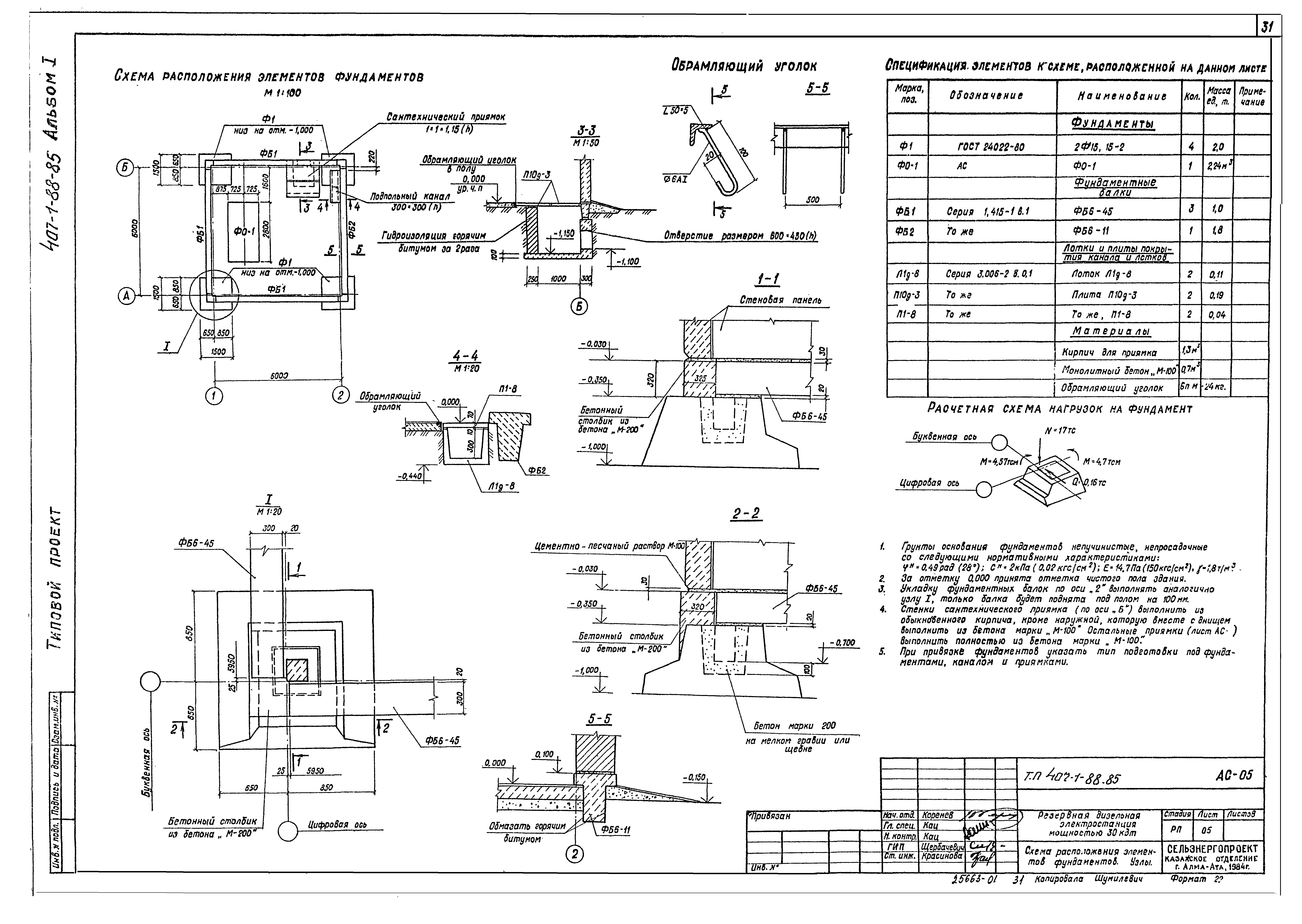
      Схема расположения элементов фундаментов. Узлы
      Раскладка труб. Варианты 1-4. План полов. План кровли
      Схема расположения колонн, балок и плит покрытия. Узел I
      Схемы расположения стеновых панелей. Узлы I - III
      Узлы IV - VII. Узел крепления оконных переплетов к стеновым панелям
      Фундамент ФО-1 под электроагрегат
      Архитектурные узлы II - VI
      Колонна железобетонная СК 2-33-2А
      Балка железобетонная 1БСТ6 - 4 А IV Т-1
      Панель длиной 6 м угловая ПСД60. 12. 25-УП-1
      Панель длиной 6 м угловая ПСД60. 9. 25-УП-1
      Плита покрытия шириной 3 м с отверстиями диаметром 400 и 700 мм 1ПВ - 5 А IV Т-1
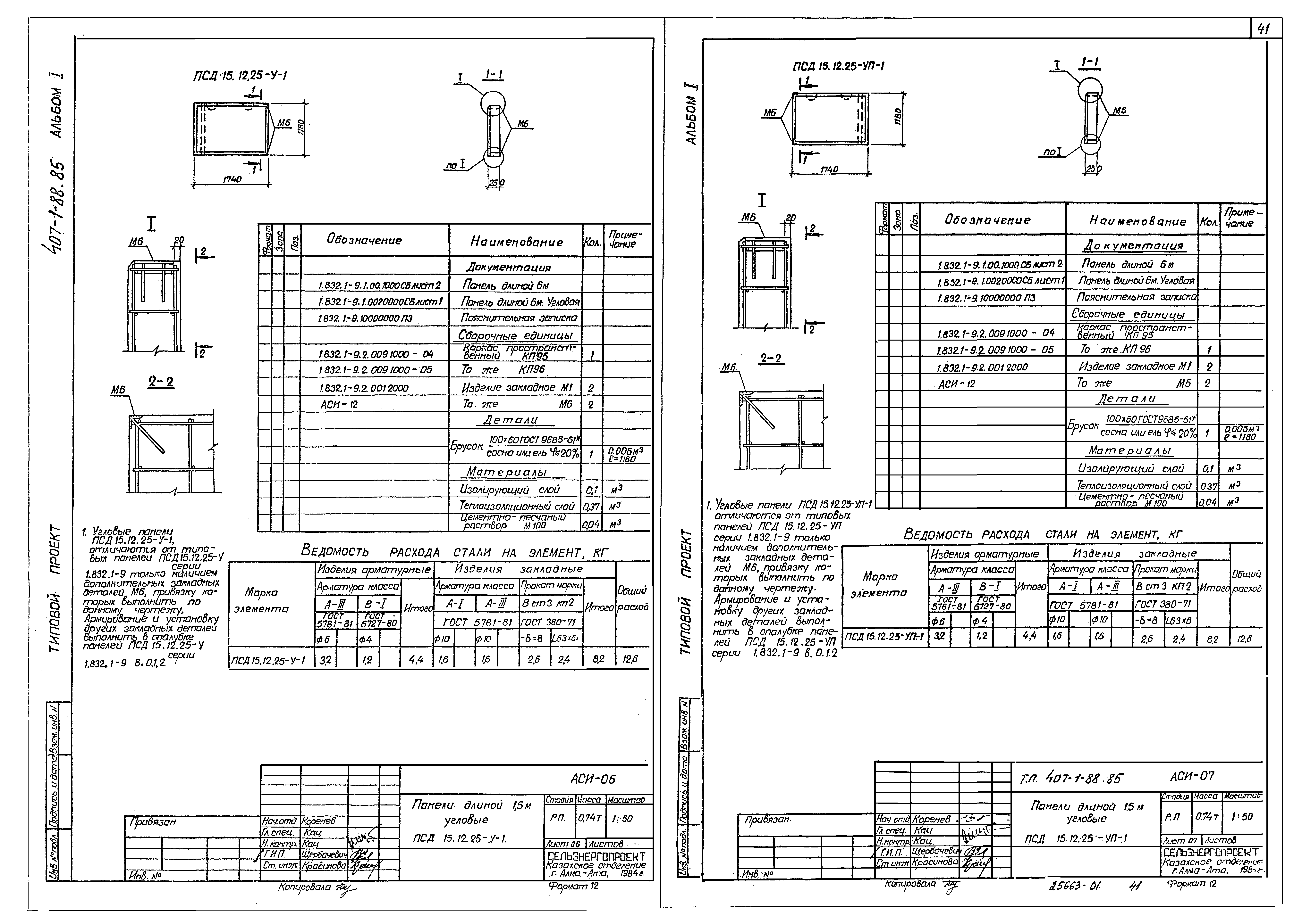
      Панель длиной 1,5 м угловая ПСД 15. 12. 25-У-1
      Панель длиной 1,5 м угловая ПСД 15. 12. 25-УП-1
      Закладная деталь М-2
      Закладная деталь М-3
      Закладная деталь М-4
      Закладная деталь М-5
      Закладная деталь М-6
   Кирпичный вариант
      План на отм. 0,000. Разрезы 1-1; 2-2. Фасады
      План фундаментов. Раскладка фундаментных блоков
      Схемы расположения плит покрытия, опорных подушек, парапетных плит. План полов. План кровли
      Схемы расположения приямков. Раскладка труб. Варианты 1-4
Чертежи основного комплекта ОВ
   Общие данные
   Отопление и вентиляция. План, разрез, схема системы отопления
   Самооткрывающиеся клапаны для крышных вентиляторов ВКР №5. Пояснительная записка
   Клапан АЗЕ 034. 000-01
   Корпус клапана АЗЕ 034. 010-01
   Клапан. Сборочный чертеж АЗЕ-034-000-01
   Корпус клапана. Сборочный чертеж АЗЕ 034. 010-01
   Полуось АЗЕ 034. 010-01
   Болт АЗЕ 034. 002
   Диск АЗЕ 034. 003-01
   Обечайка АЗЕ 034. 005-01
   Противовес АЗЕ 034. 004-01
   Втулка АЗЕ 034. 006. Упор АЗЕ 034. 007
Чертежи основного комплекта ВК
   Общие данные. Водоснабжение и канализация. План, схемы систем В1, К1, Т3
Спецификация оборудования
Разработан: Институт Сельэнергопроект
Утверждён:19.09.1984 Минэнерго СССР (USSR Minenergo 37)
Расположен в:Техническая документация Строительство Справочные документы Типовые строительные конструкции, изделия и узлы Общероссийский строительный каталог Промышленные предприятия, здания и сооружения Предприятия, здания и сооружения промышленности и электроэнергетики Электроэнергетика Электростанции угольные, газомазутные и дизельные Электростанции дизельные
Типовой проект 407-1-88.85Типовой проект 407-1-88.85Типовой проект 407-1-88.85Типовой проект 407-1-88.85Типовой проект 407-1-88.85Типовой проект 407-1-88.85Типовой проект 407-1-88.85Типовой проект 407-1-88.85Типовой проект 407-1-88.85Типовой проект 407-1-88.85Типовой проект 407-1-88.85Типовой проект 407-1-88.85Типовой проект 407-1-88.85Типовой проект 407-1-88.85Типовой проект 407-1-88.85Типовой проект 407-1-88.85Типовой проект 407-1-88.85Типовой проект 407-1-88.85Типовой проект 407-1-88.85Типовой проект 407-1-88.85Типовой проект 407-1-88.85Типовой проект 407-1-88.85Типовой проект 407-1-88.85Типовой проект 407-1-88.85Типовой проект 407-1-88.85Типовой проект 407-1-88.85Типовой проект 407-1-88.85Типовой проект 407-1-88.85Типовой проект 407-1-88.85Типовой проект 407-1-88.85Типовой проект 407-1-88.85Типовой проект 407-1-88.85Типовой проект 407-1-88.85Типовой проект 407-1-88.85Типовой проект 407-1-88.85Типовой проект 407-1-88.85Типовой проект 407-1-88.85Типовой проект 407-1-88.85Типовой проект 407-1-88.85Типовой проект 407-1-88.85Типовой проект 407-1-88.85Типовой проект 407-1-88.85Типовой проект 407-1-88.85Типовой проект 407-1-88.85Типовой проект 407-1-88.85Типовой проект 407-1-88.85Типовой проект 407-1-88.85Типовой проект 407-1-88.85Типовой проект 407-1-88.85Типовой проект 407-1-88.85Типовой проект 407-1-88.85Типовой проект 407-1-88.85Типовой проект 407-1-88.85Типовой проект 407-1-88.85Типовой проект 407-1-88.85Типовой проект 407-1-88.85Типовой проект 407-1-88.85Типовой проект 407-1-88.85Типовой проект 407-1-88.85Типовой проект 407-1-88.85Типовой проект 407-1-88.85

© 2013 Ёшкин Кот :-) Карта сайта