| ||||||||||||||||||||||||||
Скачать Шифр А40-96 Установка низковольтных комплектных устройств (НКУ) в шкафах. Материалы для проектирования и рабочие чертежиДата актуализации: 10.08.2017
|
| Обозначение: | Шифр А40-96 |
| Обозначение англ: | А40-96 |
| Статус: | cправочные материалы, мп, тпр |
| Название рус.: | Установка низковольтных комплектных устройств (НКУ) в шкафах. Материалы для проектирования и рабочие чертежи |
| Дата добавления в базу: | 01.10.2014 |
| Дата актуализации: | 05.05.2017 |
| Дата введения: | 25.12.1996 |
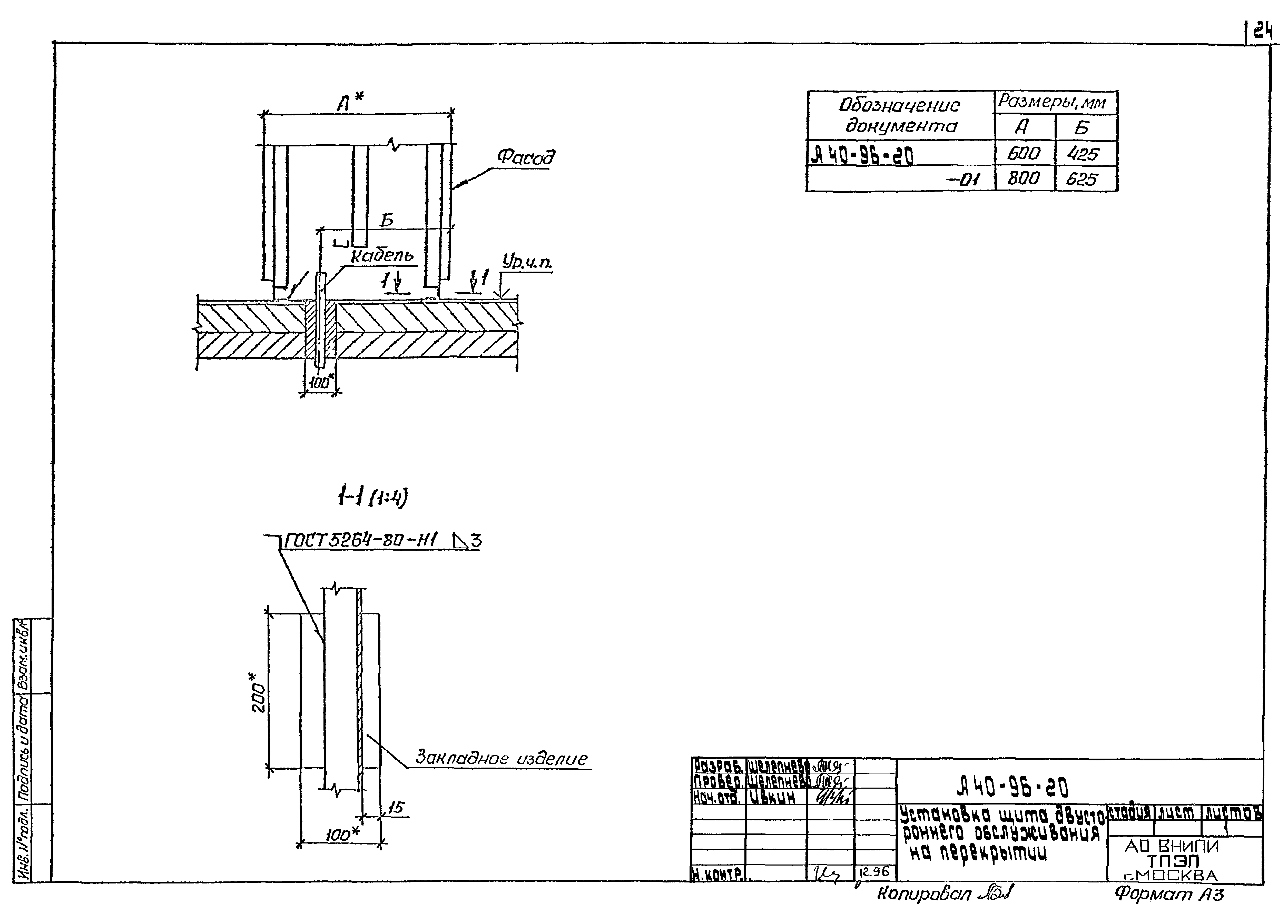
| Оглавление: | А40-96 Содержание А40-96-01ПЗ Пояснительная записка А40-96-02ГЧ Шкафы. Габаритный чертеж А40-96-03 Минимальные размеры расстояний при установке шкафов двустороннего обслуживания у стены А40-96-04 Минимальные размеры проходов обслуживания при установке шкафов А40-96-05 Строительное задание на установку щитов НКУ. Пример А40-96-06 Строительное задание на проемы для кабелей в железобетонных перекрытиях и полах. Пример А40-96-07 Строительное задание на установку щита одностороннего обслуживания на перекрытии А40-96-08 Строительное задание на установку щита двустороннего обслуживания на перекрытии А40-96-09 Строительное задание на установку щита двустороннего обслуживания на перекрытии А40-96-10 Строительное задание на установку щита одностороннего обслуживания с каналом сзади А40-96-11 Строительное задание на установку щита двустороннего обслуживания с каналом сзади А40-96-12 Строительное задание на установку щита одностороннего обслуживания с каналом спереди А40-96-13 Строительное задание на установку щита двустороннего обслуживания с каналом спереди А40-96-14 Строительное задание на установку щита двустороннего обслуживания с каналом спереди и сзади А40-96-15 Строительное задание на установку шкафа одностороннего обслуживания на перекрытии А40-96-16 Строительное задание на установку шкафа двустороннего обслуживания на перекрытии А40-96-17 Строительное задание на установку шкафа двустороннего обслуживания на перекрытии А40-96-18 Установка щитов НКУ. Пример А40-96-19 Установка щита одностороннего обслуживания на перекрытии А40-96-20 Установка щита двустороннего обслуживания на перекрытии А40-96-21 Установка щита двустороннего обслуживания на перекрытии А40-96-22 Установка щита одностороннего обслуживания на полу с кабельным каналом сзади А40-96-23 Установка щита двустороннего обслуживания на полу с кабельным каналом сзади А40-96-24 Установка щита одностороннего обслуживания с кабельным каналом спереди А40-96-25 Установка щита двустороннего обслуживания на полу с кабельным каналом спереди А40-96-26 Установка щита двустороннего обслуживания на полу с кабельным каналом сзади и спереди А40-96-27 Установка шкафа одностороннего обслуживания на перекрытии А40-96-28 Установка шкафа двустороннего обслуживания на перекрытии А40-96-29 Установка шкафа двустороннего обслуживания на перекрытии |
| Разработан: | ОАО ВНИПИ Тяжпромэлектропроект |
| Утверждён: | 16.12.1996 ОАО ВНИПИ Тяжпромэлектропроект (VNIPI Tyazhpromelektroproject OAO 23) |
| Расположен в: |
































