| ||||||||||||||||||||||||||
Скачать Шифр А27-94 Установка комплектных трансформаторных подстанций с сухими трансформаторами на 1600 кВА Хмельницкого завода трансформаторных подстанций. Материалы для проектирования и рабочие чертежиДата актуализации: 10.08.2017
|
| Обозначение: | Шифр А27-94 |
| Обозначение англ: | А27-94 |
| Статус: | cправочные материалы, мп, тпр |
| Название рус.: | Установка комплектных трансформаторных подстанций с сухими трансформаторами на 1600 кВА Хмельницкого завода трансформаторных подстанций. Материалы для проектирования и рабочие чертежи |
| Дата добавления в базу: | 01.10.2014 |
| Дата актуализации: | 05.05.2017 |
| Дата введения: | 15.01.1995 |
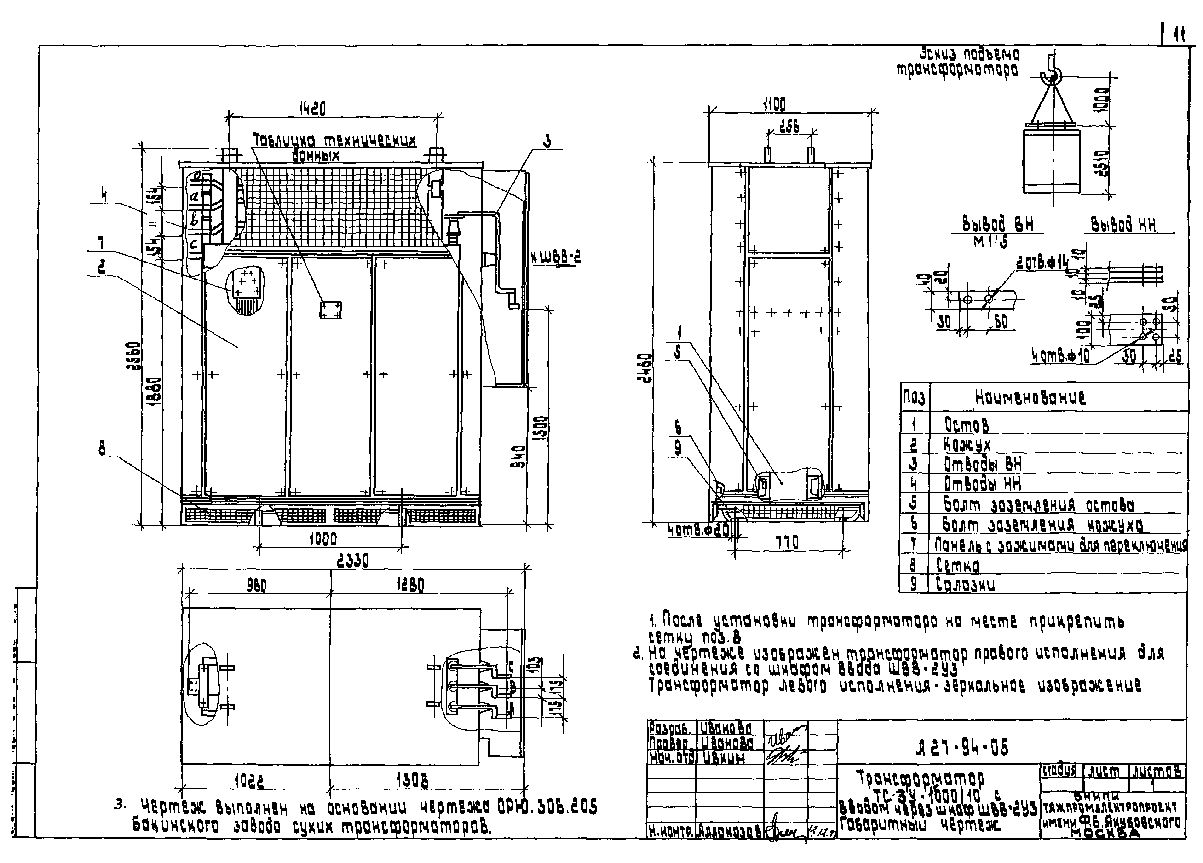
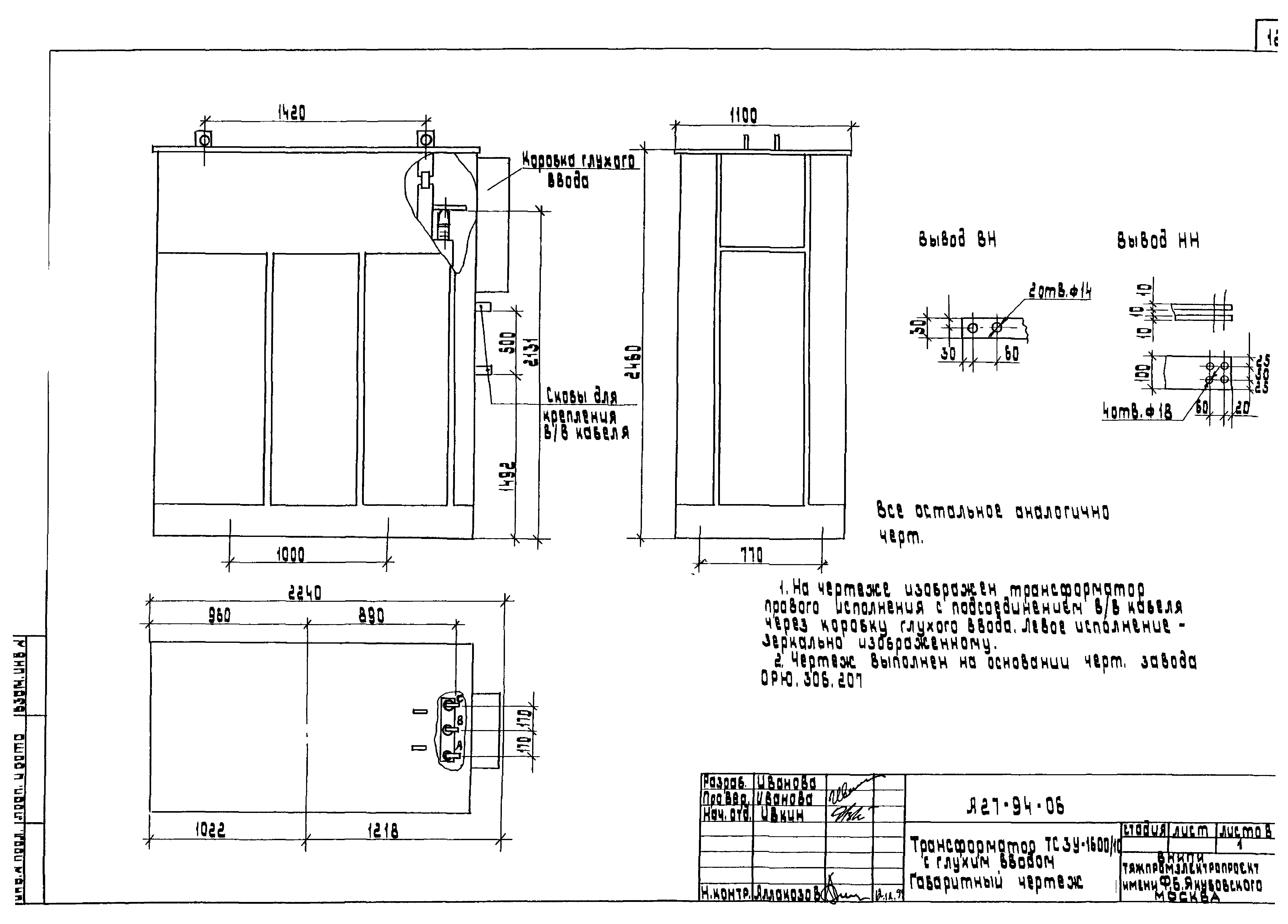
| Оглавление: | А27-94 Содержание А27-94-01ПЗ Пояснительная записка А27-94-02 Форма опросного листа для заказа КТП-1600/10/0,4-92-У3 А27-94-03 Схемы главных цепей шкафов УВН и РУНН и схема принципиальная однолинейная КТП-1600 кВА с трансформатором ТСЗУ-1600 А27-94-04 КТП-1600/10/0,4-92-У3 с трансформатором ТСЗУ-1600. Габаритный чертеж А27-94-05 Трансформатор ТСЗУ-1600/10 с вводом через шкаф ШВВ-2У3 А27-94-06 Трансформатор ТСЗУ-1600/10 с глухим вводом. Габаритный чертеж А27-94-07 Шкаф ввода ШВВ-2У3 А27-94-08 Минимальные размеры приближений при размещении КТП А27-94-09 Требования к строительным заданиям на установку КТП А27-94-10 Строительное задание на установку 2КТП-1600 в один ряд. Пример А27-94-11 Строительное задание на установку 2КТП-1600 в помещении. Установка в два ряда. Пример А27-94-12 Строительное задание на установку КТП-1600 в цехе. Пример А27-94-13 Таблица выбора чертежей строительных заданий А27-94-14 Строительное задание на участок пола под КТП со шкафом ШВВ-2У3 А27-94-15 Строительное задание на участок пола под КТП с глухим высоковольтным вводом А27-94-16 Строительное задание на участок пола под однорядную 2КТП со шкафом ШВВ-2У3 А27-94-17 Строительное задание на участок пола под однорядную 2КТП с глухим высоковольтным вводом А27-94-18 Строительное задание на участок пола под двухрядную 2КТП со шкафом ШВВ-2У3 А27-94-19 Строительное задание на участок пола под двухрядную 2КТП с глухим высоковольтным вводом А27-94-20 Строительное задание на участок перекрытия под КТП со шкафом ШВВ-2У3 А27-94-21 Строительное задание на участок перекрытия под КТП с глухим высоковольтным вводом А27-94-22 Строительное задание на участок перекрытия под однорядную 2КТП со шкафом ШВВ-2У3 А27-94-23 Строительное задание на участок перекрытия под однорядную 2КТП с глухим высоковольтным вводом А27-94-24 Строительное задание на участок перекрытия под двухрядную 2КТП со шкафом ШВВ-2У3 А27-94-25 Строительное задание на участок перекрытия под двухрядную 2КТП с глухим высоковольтным вводом А27-94-26 Строительное задание на установку патрубков под шкафы РУНН А27-94-27 Расположение 2КТП-1600 кВА в помещении. Пример А27-94-28 Расположение 2КТП-1600 кВА на полу цеха. Пример А27-94-29 Установка шкафа ШВВ-2 на канале А27-94-30 Установка шкафа ШВВ-2 на перекрытии А27-94-31 Подвод кабелей к шкафам РУНН |
| Разработан: | ОАО ВНИПИ Тяжпромэлектропроект |
| Утверждён: | 04.01.1995 ОАО ВНИПИ Тяжпромэлектропроект (VNIPI Tyazhpromelektroproject OAO 1) |
| Расположен в: |







































