| ||||||||||||||||||||||||||||||
Скачать Типовые материалы для проектирования 407-03-539.90 Альбом 5. Планы строительных конструкцийДата актуализации: 10.08.2017
|
| Обозначение: | Типовые материалы для проектирования 407-03-539.90 |
| Обозначение англ: | 407-03-539.90 |
| Статус: | cправочные материалы, мп, тпр |
| Название рус.: | Альбом 5. Планы строительных конструкций |
| Дата добавления в базу: | 01.09.2013 |
| Дата актуализации: | 05.05.2017 |
| Дата введения: | 30.05.1990 |
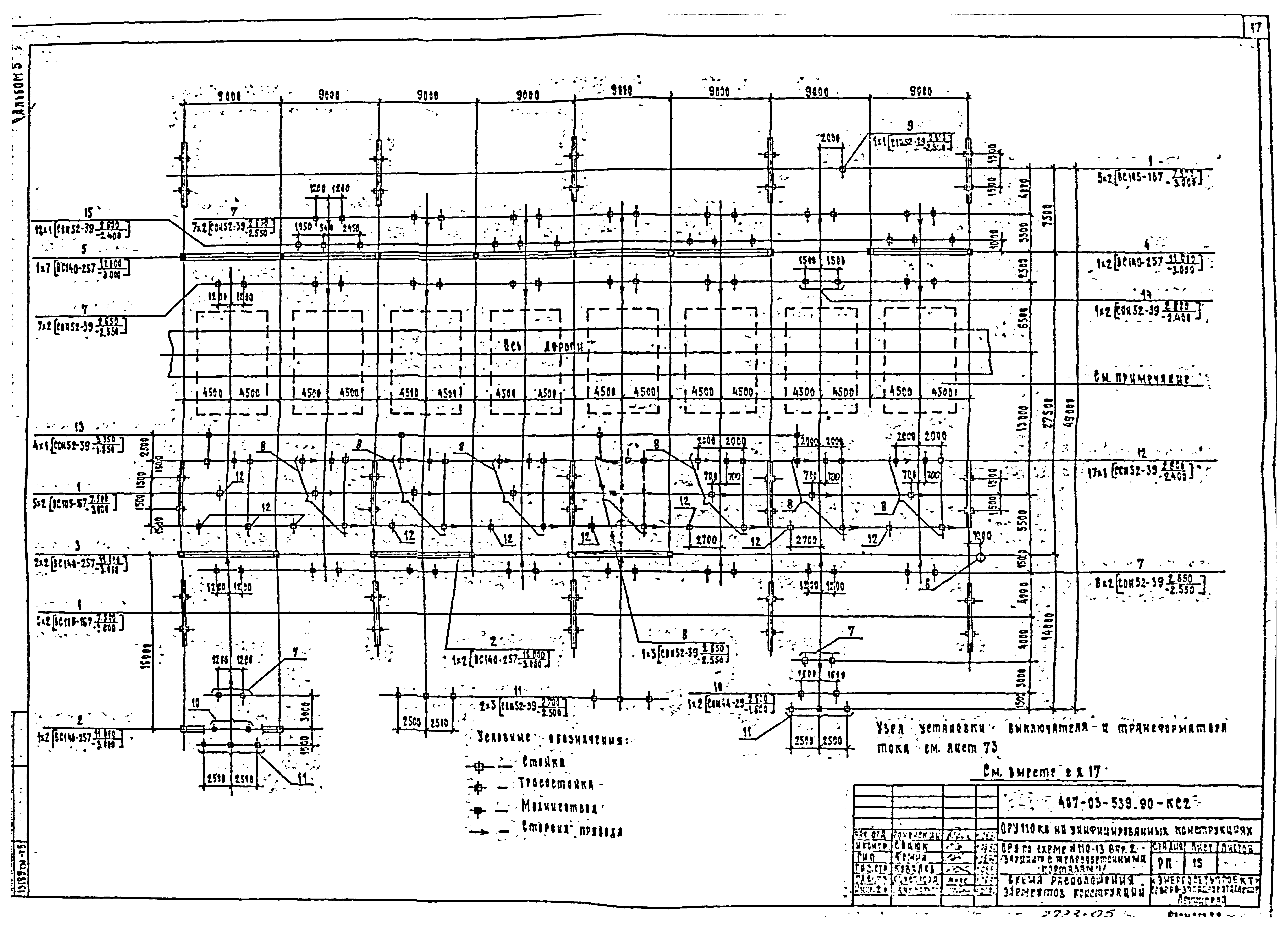
| Оглавление: | Планы строительных конструкций ОРУ по схеме №110-4 вариант 1 (вариант с железобетонными порталами). Схема расположения элементов конструкций ОРУ по схеме №110-4 вариант 2 (вариант с железобетонными порталами). Схема расположения элементов конструкций ОРУ по схеме №110-4Н (вариант с железобетонными порталами). Схема расположения элементов конструкций ОРУ по схеме №110-5 вариант 1 (вариант с железобетонными порталами). Схема расположения элементов конструкций ОРУ по схеме №110-5 вариант 2 (вариант с железобетонными порталами). Схема расположения элементов конструкций ОРУ по схеме №110-5Н (вариант с железобетонными порталами). Схема расположения элементов конструкций ОРУ по схеме №110-5АН (вариант с железобетонными порталами). Схема расположения элементов конструкций ОРУ по схеме №110-6 вариант 1 (вариант с железобетонными порталами). Схема расположения элементов конструкций ОРУ по схеме №110-6 вариант 2 (вариант с железобетонными порталами). Схема расположения элементов конструкций ОРУ по схеме №110-12 вариант 1 (вариант с железобетонными порталами). Схема расположения элементов конструкций ОРУ по схеме №110-13 вариант 1 (вариант с железобетонными порталами). Схема расположения элементов конструкций ОРУ по схеме №110-12 вариант 1 (вариант с железобетонными порталами). Схема расположения элементов конструкций. Спецификация ОРУ по схеме №110-13 вариант 1 (вариант с железобетонными порталами). Схема расположения элементов конструкций. Спецификация ОРУ по схеме №110-12 вариант 2 (вариант с железобетонными порталами). Схема расположения элементов конструкций ОРУ по схеме №110-13 вариант 2 (вариант с железобетонными порталами). Схема расположения элементов конструкций ОРУ по схеме №110-12 вариант 2 (вариант с железобетонными порталами). Схема расположения элементов конструкций. Спецификация ОРУ по схеме №110-13 вариант 2 (вариант с железобетонными порталами). Схема расположения элементов конструкций. Спецификация ОРУ по схеме №110-1 без учета расширения (вариант с железобетонными порталами). Схема расположения элементов конструкций ОРУ по схеме №110-3 без учета расширения (вариант с железобетонными порталами). Схема расположения элементов конструкций ОРУ по схеме №110-3Н вариант I без учета расширения (вариант с железобетонными порталами). Схема расположения элементов конструкций ОРУ по схеме №110-3Н вариант II без учета расширения (вариант с железобетонными порталами). Схема расположения элементов конструкций ОРУ по схеме №110-4 вариант 1 без учета расширения (вариант с железобетонными порталами). Схема расположения элементов конструкций ОРУ по схеме №110-4 вариант 2 без учета расширения (вариант с железобетонными порталами). Схема расположения элементов конструкций ОРУ по схеме №110-4Н вариант 1 без учета расширения (вариант с железобетонными порталами). Схема расположения элементов конструкций ОРУ по схеме №110-4Н вариант 2 без учета расширения (вариант с железобетонными порталами). Схема расположения элементов конструкций ОРУ по схеме №110-5 вариант 1 без учета расширения (вариант с железобетонными порталами). Схема расположения элементов конструкций ОРУ по схеме №110-5 вариант 2 без учета расширения (вариант с железобетонными порталами). Схема расположения элементов конструкций ОРУ по схеме №110-5Н без учета расширения (вариант с железобетонными порталами). Схема расположения элементов конструкций ОРУ по схеме №110-5АН без учета расширения (вариант с железобетонными порталами). Схема расположения элементов конструкций ОРУ по схеме №110-4 вариант 1 (вариант с металлическими порталами). Схема расположения элементов конструкций ОРУ по схеме №110-4 вариант 2 (вариант с металлическими порталами). Схема расположения элементов конструкций ОРУ по схеме №110-4Н (вариант с металлическими порталами). Схема расположения элементов конструкций ОРУ по схеме №110-5 вариант 1 (вариант с металлическими порталами). Схема расположения элементов конструкций ОРУ по схеме №110-5 вариант 2 (вариант с металлическими порталами). Схема расположения элементов конструкций ОРУ по схеме №110-5Н (вариант с металлическими порталами). Схема расположения элементов конструкций ОРУ по схеме №110-5АН (вариант с металлическими порталами). Схема расположения элементов конструкций ОРУ по схеме №110-6 вариант 1 (вариант с металлическими порталами). Схема расположения элементов конструкций ОРУ по схеме №110-6 вариант 2 (вариант с металлическими порталами). Схема расположения элементов конструкций ОРУ по схеме №110-12 вариант 1 (вариант с металлическими порталами). Схема расположения элементов конструкций ОРУ по схеме №110-13 вариант 1 (вариант с металлическими порталами). Схема расположения элементов конструкций ОРУ по схеме №110-12 вариант 1 (вариант с металлическими порталами). Схема расположения элементов конструкций. Спецификация ОРУ по схеме №110-13 вариант 1 (вариант с металлическими порталами). Схема расположения элементов конструкций. Спецификация ОРУ по схеме №110-12 вариант 2 (вариант с металлическими порталами). Схема расположения элементов конструкций ОРУ по схеме №110-13 вариант 2 (вариант с металлическими порталами). Схема расположения элементов конструкций ОРУ по схеме №110-12 вариант 2 (вариант с металлическими порталами). Схема расположения элементов конструкций. Спецификация ОРУ по схеме №110-13 вариант 2 (вариант с металлическими порталами). Схема расположения элементов конструкций. Спецификация ОРУ по схеме №110-1 без учета расширения (вариант с металлическими порталами). Схема расположения элементов конструкций ОРУ по схеме №110-3 без учета расширения (вариант с металлическими порталами). Схема расположения элементов конструкций ОРУ по схеме №110-3Н без учета расширения вариант I (вариант с металлическими порталами). Схема расположения элементов конструкций ОРУ по схеме №110-3Н без учета расширения вариант II (вариант с металлическими порталами). Схема расположения элементов конструкций ОРУ по схеме №110-4 без учета расширения вариант 1 (вариант с металлическими порталами). Схема расположения элементов конструкций ОРУ по схеме №110-4 без учета расширения вариант 2 (вариант с металлическими порталами). Схема расположения элементов конструкций ОРУ по схеме №110-4Н без учета расширения вариант 1 (вариант с металлическими порталами). Схема расположения элементов конструкций ОРУ по схеме №110-4Н без учета расширения вариант 2 (вариант с металлическими порталами). Схема расположения элементов конструкций ОРУ по схеме №110-5 без учета расширения вариант 1 (вариант с металлическими порталами). Схема расположения элементов конструкций ОРУ по схеме №110-5 без учета расширения вариант 2 (вариант с металлическими порталами). Схема расположения элементов конструкций ОРУ по схеме №110-5Н без учета расширения (вариант с металлическими порталами). Схема расположения элементов конструкций ОРУ по схеме №110-5АН без учета расширения (вариант с металлическими порталами). Схема расположения элементов конструкций ОРУ по схеме №110-4. Схема расположения элементов стальных порталов ОРУ по схеме №110-4Н. Схема расположения элементов стальных порталов ОРУ по схеме №110-5. Схема расположения элементов стальных порталов ОРУ по схеме №110-5Н. Схема расположения элементов стальных порталов ОРУ по схеме №110-5АН. Схема расположения элементов стальных порталов ОРУ по схеме №110-6. Схема расположения элементов стальных порталов ОРУ по схеме №110-12, 110-13. Схема расположения элементов стальных порталов ОРУ по схеме №110-4 без учета расширения. Схема расположения элементов стальных порталов ОРУ по схеме №110-1, 110-3 без учета расширения. Схема расположения элементов стальных порталов ОРУ по схеме №110-3Н без учета расширения. Вариант I, II. Схема расположения элементов стальных порталов ОРУ по схеме №110-4Н без учета расширения. Схема расположения элементов стальных порталов ОРУ по схеме №110-5 без учета расширения. Схема расположения элементов стальных порталов ОРУ по схеме №110-5Н без учета расширения. Схема расположения элементов стальных порталов ОРУ по схеме №110-5АН без учета расширения. Схема расположения элементов стальных порталов Узлы установки выключателя и трансформатора тока |
| Разработан: | Северо-западное отделение института Энергосетьпроект |
| Утверждён: | 30.05.1990 Минэнерго СССР (USSR Minenergo 37) |
| Издан: | Энергосетьпроект (1990 г. ) |
| Расположен в: | |
| Заменяет собой: |





























































