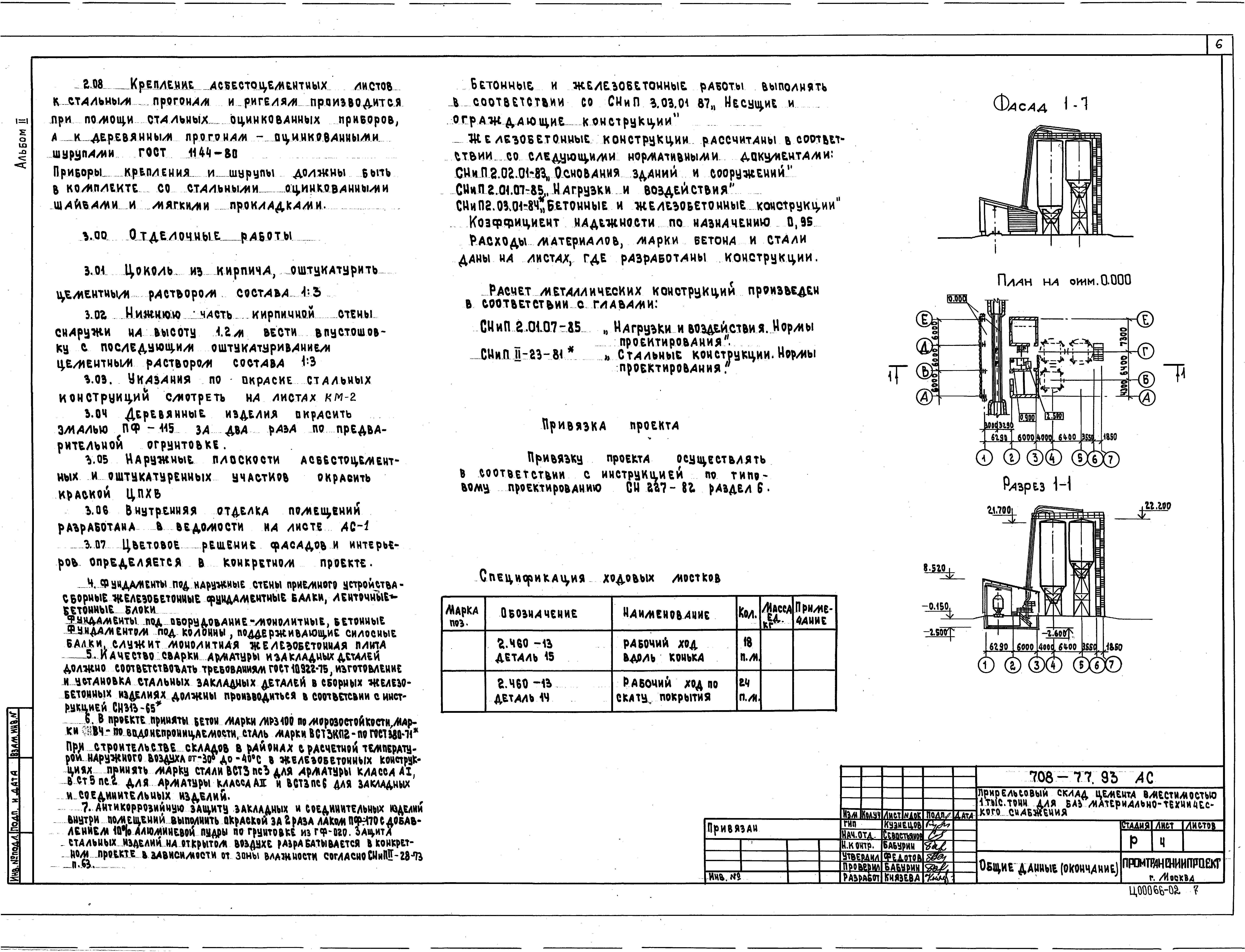
Скачать Типовой проект 708-77.93 Альбом 2. Архитектурно-строительная часть. Конструкции металлическиеДата актуализации: 10.08.2017 Типовой проект 708-77.93
Альбом 2. Архитектурно-строительная часть. Конструкции металлическиеОбозначение: | Типовой проект 708-77.93 | Обозначение англ: | 708-77.93 | Статус: | не определен законодательством | Название рус.: | Альбом 2. Архитектурно-строительная часть. Конструкции металлические | Дата добавления в базу: | 01.09.2013 | Дата актуализации: | 05.05.2017 | Дата введения: | 29.12.1993 | Разработан: | Промтрансниипроект
| Утверждён: | 29.12.1993 Промтрансниипроект (Promtransniiproject 95)
| Расположен в: |
|
                                             
|