Скачать Типовой проект 902-2-386.85 Альбом 2. Технологическая, строительная и электротехническая частиДата актуализации: 10.08.2017 Типовой проект 902-2-386.85
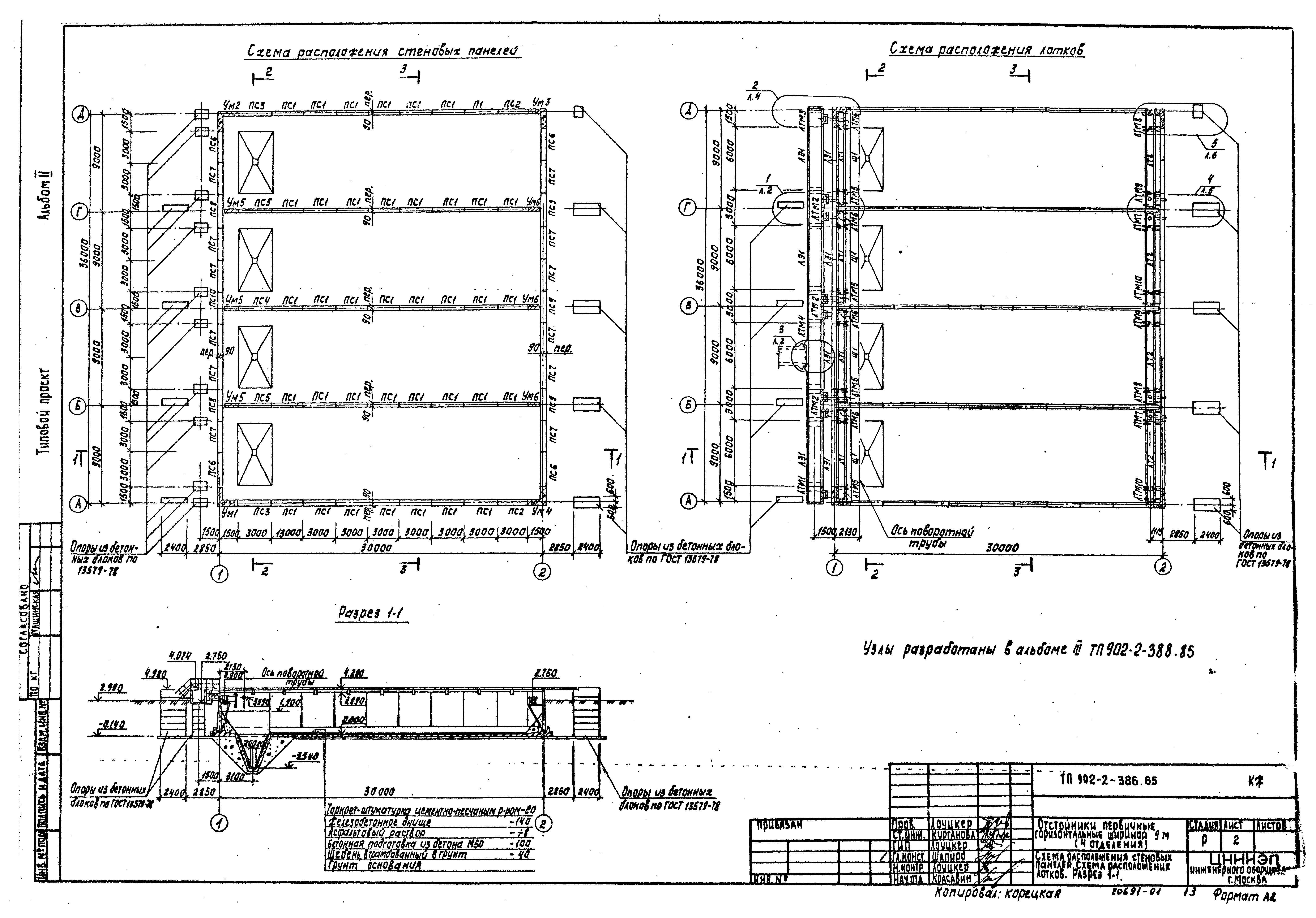
Альбом 2. Технологическая, строительная и электротехническая частиОбозначение: | Типовой проект 902-2-386.85 | Обозначение англ: | 902-2-386.85 | Статус: | не определен законодательством | Название рус.: | Альбом 2. Технологическая, строительная и электротехническая части | Дата добавления в базу: | 01.09.2013 | Дата актуализации: | 05.05.2017 | Дата введения: | 01.12.1985 | Оглавление: | Содержание альбома Технологическая часть Общие данные План. Разрезы 1-1, 2-2 Разрез 3-3 Разрез 4-4 Разрез 5-5 Разрез 6-6 Разрез 7-7…10-10. Вид "А" Планы. Разрезы 1-1, 2-2, 3-3. Деталь дырчатой трубы Конструкции железобетонные Общие данные Схема расположения стеновых панелей. Схема расположения лотков. Разрез 1-1 Схема расположения мостиков и балок. Разрезы 2-2, 3-3 Спецификация к схемам расположения стеновых панелей, лотков, мостиков и балок Днище. Опалубочный чертеж. План. Разрезы Днище. Армирование. Схема расположения нижних сеток Днище. Армирование. Схема расположения верхних сеток Днище. Армирование. Разрезы 1-1…3-3 Электротехническая часть Общие данные. Схема подключения электрооборудования. Кабельный журнал. Прокладка кабеля | Разработан: | ЦНИИЭП инженерного оборудования
| Утверждён: | 22.07.1974 Госгражданстрой (Gosgrazhdanstroy 164)
| Расположен в: |
|
                  
|