Скачать Типовой проект 902-2-255 Альбом 2. Производственно-вспомогательный блокДата актуализации: 10.08.2017 Типовой проект 902-2-255
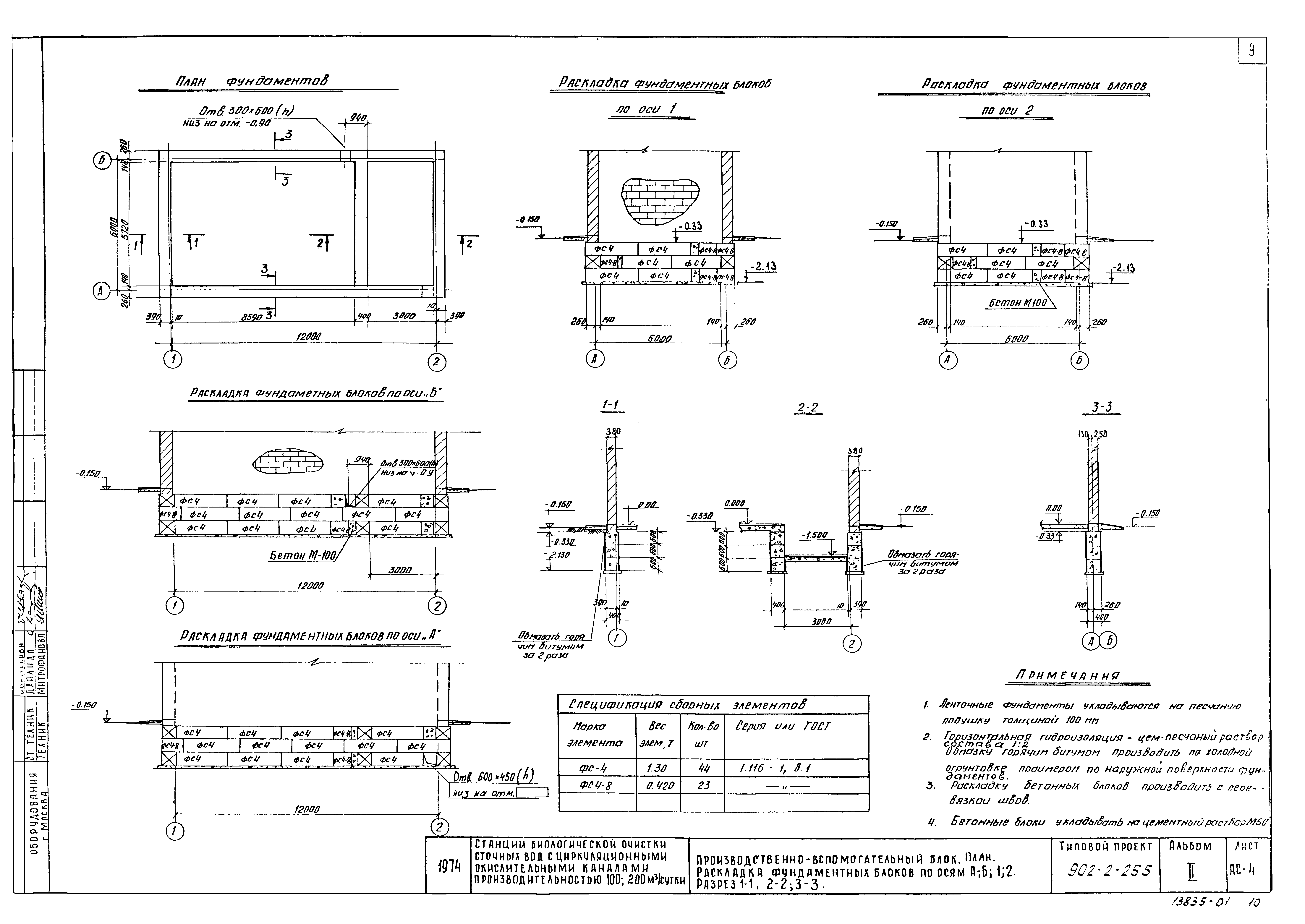
Альбом 2. Производственно-вспомогательный блокОбозначение: | Типовой проект 902-2-255 | Обозначение англ: | 902-2-255 | Статус: | заменен | Название рус.: | Альбом 2. Производственно-вспомогательный блок | Дата добавления в базу: | 01.09.2013 | Дата актуализации: | 05.05.2017 | Дата введения: | 01.06.1988 | Оглавление: | Технологические чертежи Производственно-вспомогательный блок. План и разрезы 1-1, 2-2 Хлораторная на жидком хлоре. План. Разрез 1-1 Хлораторная на жидком хлоре. Разрезы 2-2, 3-3 Хлораторная на жидком хлоре. Технологическая схема Строительные чертежи Выборка материалов План. Разрезы. Фасады План кровли. План полов. Ведомость внутренней отделки помещений; экспликация и конструкция полов Раскладка фундаментных блоков по осям А-б; 1-2. Разрез 1-1, 2-2, 3-3 План раскладки плит покрытия и перемычек. Разрезы План на отм. 0,000 и -1,500 Приточный шкаф Санитарно-технические чертежи Планы. Разрез. Схемы отопления и вентиляции Приточный шкаф. 1-й вариант - с электрическими печами. 2-й вариант - с ребристыми трубами Внутренний водопровод и канализация Электротехнические чертежи Питание электрооборудования. Схема принципиальная электрическая Схема подключения электрооборудования. Электроотопление. Схема принципиальная электрическая Строительное задание. Слаботочные устройства. Размещение электрооборудования и прокладка кабелей Кабельный журнал Электроосвещение. Заземление. План | Разработан: | ЦНИИЭП инженерного оборудования
| Утверждён: | 31.07.1975 Госгражданстрой (Gosgrazhdanstroy 162)
| Расположен в: |
| Чем заменён: | - Типовые проектные решения 902-3-075.88 «Станции биологической очистки сточных вод с циркуляционными окислительными каналами производительностью 1400, 700, 400, 200, 100 куб. м/сутки»
|
                    
|