Скачать Типовой проект 902-2-250 Альбом 3. Нестандартизированное оборудование. Фильтр диаметром 3,2 мДата актуализации: 10.08.2017 Типовой проект 902-2-250
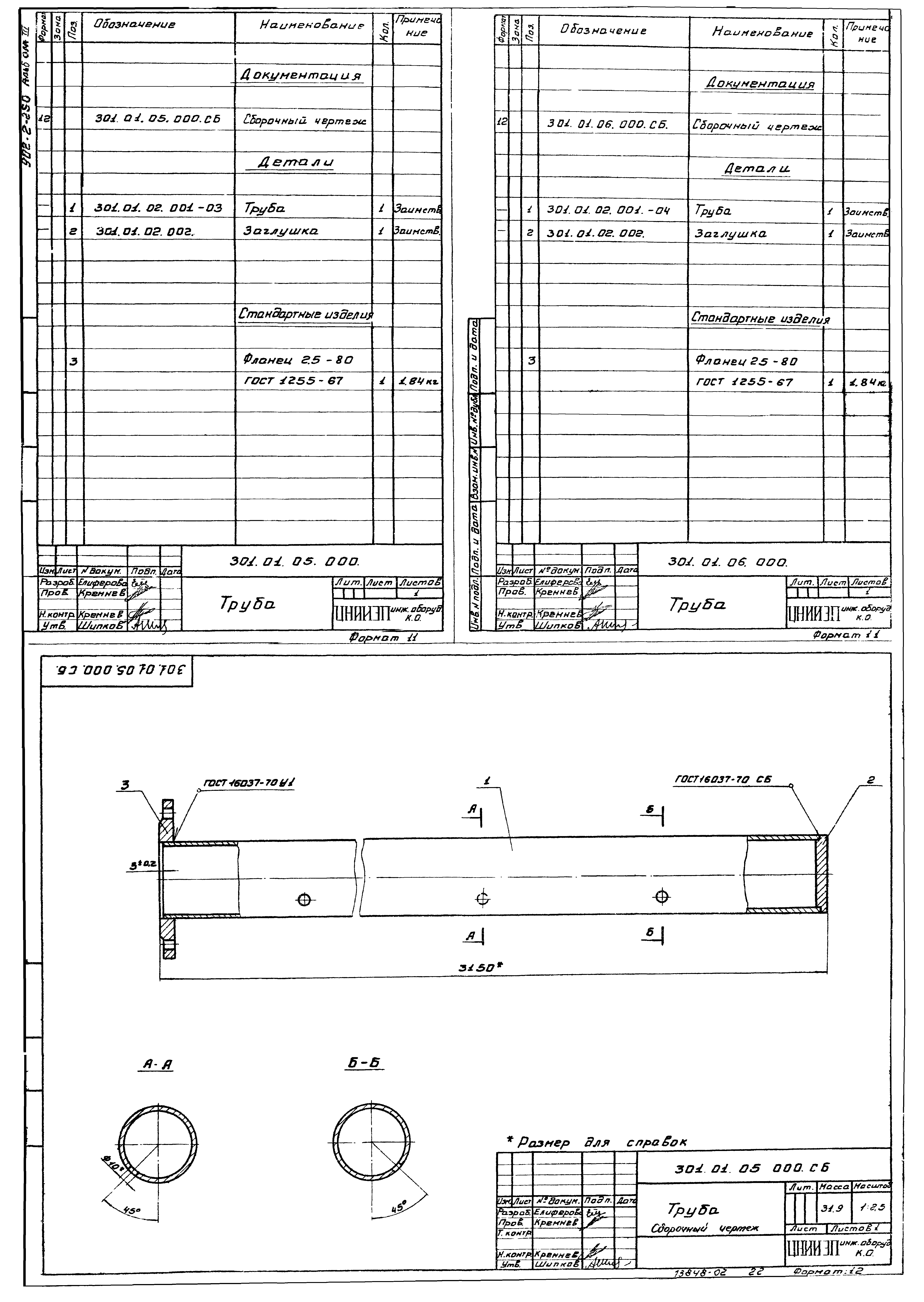
Альбом 3. Нестандартизированное оборудование. Фильтр диаметром 3,2 мОбозначение: | Типовой проект 902-2-250 | Обозначение англ: | 902-2-250 | Статус: | действует | Название рус.: | Альбом 3. Нестандартизированное оборудование. Фильтр диаметром 3,2 м | Дата добавления в базу: | 01.09.2013 | Дата актуализации: | 05.05.2017 | Дата введения: | 15.09.1975 | Оглавление: | Содержание 301.00.00.000 Спецификация 301.00.00.000 СБ Фильтр песчаный, лист 1 301.00.00.000 СБ Фильтр песчаный, лист 2 301.00.00.000 СБ Фильтр песчаный, лист 3 301.00.00.001 Груз 301.00.00.002 Планка 301.00.00.003 Палец 301.00.00.004 Прокладка 301.00.00.005 Прокладка 301.00.00.006 Прокладка 301.00.00.007 Кронштейн 301.00.00.008 Прокладка 301.00.00.009 Хомут 301.00.00.010 Прижим 301.00.00.012 Прокладка 301.01.00.000 Спецификация 301.01.00.001 Лист 301.01.00.002 Фланец 301.01.00.003 Лист 301.01.00.000 СБ Корпус фильтра, лист 1 301.01.00.000 СБ Корпус фильтра, лист 2 301.01.00.004 Дно 301.01.00.005 Уголок 301.01.00.006 Уголок 301.01.00.007 Уголок 301.01.00.008 Бобышка 301.01.00.009 Уголок 301.01.00.010 Фланец 301.01.00.016 Скоба 301.01.00.017 Скоба 301.01.00.018 Скоба 301.01.00.019 Крюк 301.01.00.020 Кольцо 301.01.01.000 СБ Решетка 301.01.01.000 Спецификация 301.01.01.006 Труба 301.01.01.007 Заглушка 301.01.01.008 Заглушка 301.01.01.009 Труба 301.01.01.010 Труба 301.01.02.000 Спецификация 301.01.02.002 Заглушка 301.01.02.000 СБ Труба 301.01.02.001 Труба 301.01.03.000 Спецификация 301.01.04.000 Спецификация 301.01.03.000 СБ Труба 301.01.04.000 СБ Труба 301.01.05.000 Спецификация 301.01.06.000 Спецификация 301.01.05.000 СБ Труба 301.01.06.000 СБ Труба 301.01.07.000 Спецификация 301.01.08.000 Спецификация 301.01.07.000 СБ Труба 301.01.08.000 СБ Воронка в сборе 301.01.08.001 Воронка 301.01.08.002 Труба 301.01.09.000 Спецификация 301.01.09.000 СБ Патрубок 301.02.00.000 Спецификация 301.02.00.000 СБ Желоб 301.02.00.001 Желоб 301.02.00.002 Фланец 301.02.00.003 Фланец 301.03.00.000 Спецификация 301.04.00.000 Спецификация 301.03.00.000 СБ Опора 301.04.00.000 СБ Поплавок 301.04.00.001 Пробка 301.04.00.002 Шайба 301.04.00.003 Прокладка 301.04.00.000 Спецификация 301.04.01.000 СБ Корпус 301.04.01.001 Втулка 301.04.01.002 Шток 301.04.01.003 Пластина 301.04.01.004 Крышка 301.04.01.005 Кольцо 301.05.00.000 Спецификация 301.05.00.000 СБ Патрубок 301.05.00.001 Труба 301.05.00.002 Труба 301.06.00.000 Спецификация 301.06.00.000 СБ Коллектор 301.06.00.001 Труба 301.06.00.002 Диффузор 301.07.00.000 Рычаг 301.07.00.001 Втулка 301.07.00.002 Пластина 301.08.00.000 Спецификация 301.08.00.000 СБ Патрубок 301.09.00.000 Подвеска 301.09.00.001 Опора 301.09.00.002 Стержень 301.10.00.000 Ролик 301.10.00.001 Ролик 301.10.00.002 Втулка 301.11.00.000 Спецификация 301.11.00.000 СБ Патрубок 301.11.00.001 Труба 301.12.00.000 Спецификация 301.12.00.000 СБ Ограждение 419.00.000 СБ Сетка съемная 419.00.001 Планка 419.00.000 Спецификация 419.00.002 Уголок | Разработан: | ЦНИИЭП инженерного оборудования
| Утверждён: | 31.07.1975 Госгражданстрой (Gosgrazhdanstroy 161)
| Расположен в: |
|
                                      
|