Информационная система
«Ёшкин Кот»

Скачать базу одним архивом
Скачать обновления
История создания базы
Карта сайта

Скачать Типовой проект 902-1-101.85 Альбом 7. Силовое электрооборудование. Технологический контроль (из ТП 902-1-99.85)

Дата актуализации: 10.08.2017

Типовой проект 902-1-101.85

Альбом 7. Силовое электрооборудование. Технологический контроль (из ТП 902-1-99.85)

Обозначение: Типовой проект 902-1-101.85
Обозначение англ: 902-1-101.85
Статус:действует
Название рус.:Альбом 7. Силовое электрооборудование. Технологический контроль (из ТП 902-1-99.85)
Дата добавления в базу:01.09.2013
Дата актуализации:05.05.2017
Оглавление:ТП 902-1-99.85 Содержание альбома
ТП 902-1-99.85-ЭМ Основной комплект марки ЭМ
ТП 902-1-99.85-ЭМ-1 Общие данные
ТП 902-1-99.85-ЭМ-2 Общие данные
ТП 902-1-99.85-ЭМ-3 Схема электрическая принципиальная однолинейная распределительной сети ~380/220В
ТП 902-1-99.85-ЭМ-4 Схема электрическая принципиальная однолинейная распределительной сети ~380/220В
ТП 902-1-99.85-ЭМ-5 Схемы электрические принципиальные переключения 3 секции, АВР оперативного тока и учета электроэнергии
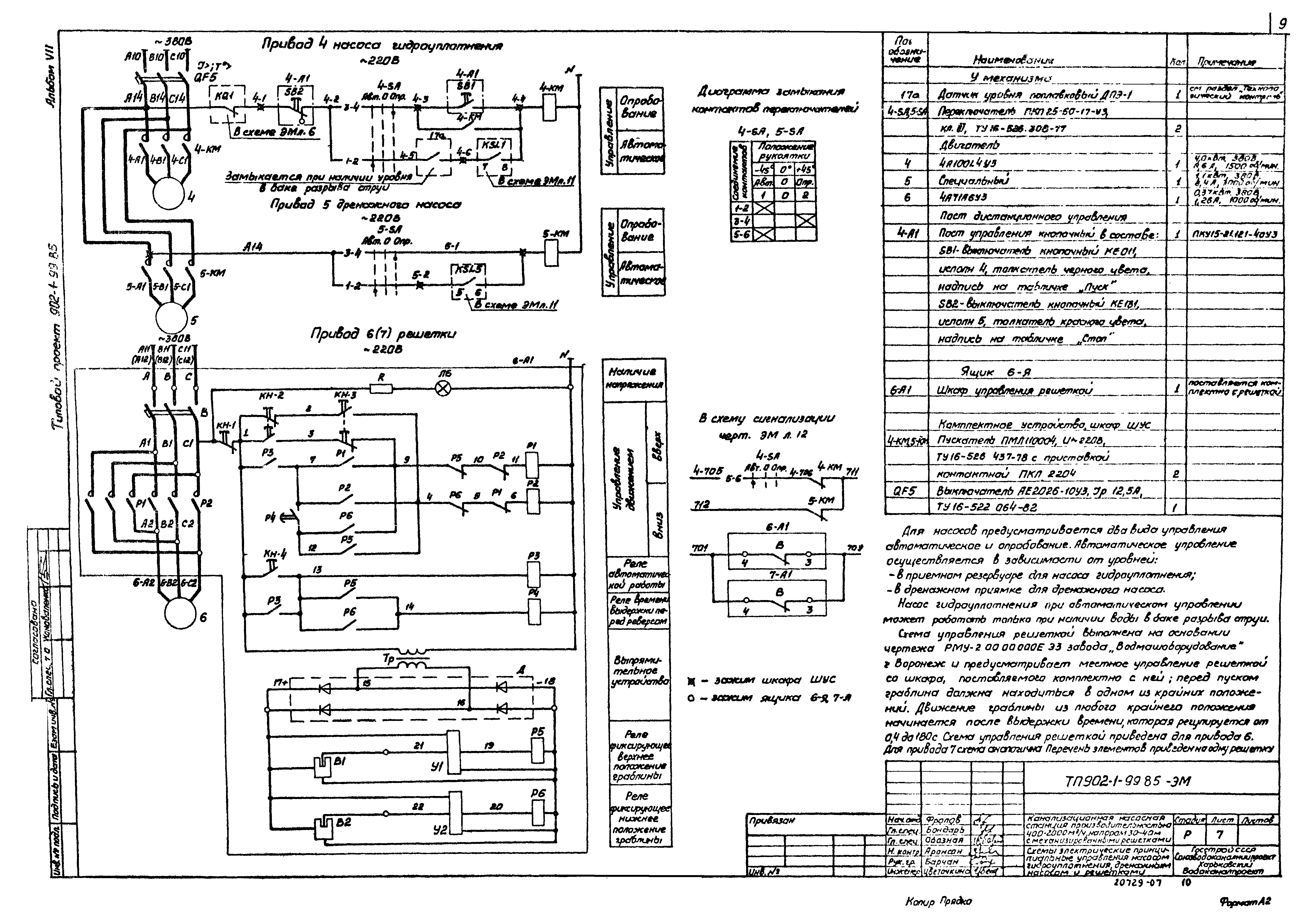
ТП 902-1-99.85-ЭМ-6 Схема электрическая принципиальная управления насосами перекачки стоков
ТП 902-1-99.85-ЭМ-7 Схемы электрические принципиальные управления насосом гидроуплотнения, дренажным насосом и решетками
ТП 902-1-99.85-ЭМ-8 Схема электрическая принципиальная управления задвижкой на подводящем коллекторе
ТП 902-1-99.85-ЭМ-9 Схемы электрические принципиальные управления задвижками на напорном коллекторе
ТП 902-1-99.85-ЭМ-10 Схемы электрические принципиальные управления вентиляторами
ТП 902-1-99.85-ЭМ-11 Схема электрическая принципиальная контроля уровней
ТП 902-1-99.85-ЭМ-12 Схема электрическая принципиальная сигнализации
ТП 902-1-99.85-ЭМ-13 Схема подключения электрооборудования
ТП 902-1-99.85-ЭМ-14 Схема подключения электрооборудования
ТП 902-1-99.85-ЭМ-15 Схема подключения щита ЩУ
ТП 902-1-99.85-ЭМ-16 Схема подключения шкафа ШУС
ТП 902-1-99.85-ЭМ-17 Кабельный журнал
ТП 902-1-99.85-ЭМ-18 Кабельный журнал
ТП 902-1-99.85-ЭМ-19 План расположения электрооборудования. Прокладка кабелей
ТП 902-1-99.85-ЭМ-20 План расположения электрооборудования. Прокладка кабелей
ТП 902-1-99.85-ЭМ-21 План расположения электрооборудования. Прокладка кабелей
ТП 902-1-99.85-ЭМ-22 План расположения электрооборудования. Прокладка кабелей. Спецификация
ТП 902-1-99.85-ЭМ-23 Заземление и зануление
ТП 902-1-99.85-ЭМ-24 План прокладки троллейного шинопровода
ТП 902-1-99.85-ЭМ-25 Прокладка коробов. План и разрез
ТП 902-1-99.85-ЭМ-26 Электроосвещение
ТП 902-1-99.85-ЭМ.ЗМ Задание МЭЗ марки ЭМ.ЗМ
ТП 902-1-99.85-ЭМ.ЗЗИ Задание заводу-изготовителю марки ЭМ.ЗЗИ
ТП 902-1-99.85-ЭМ.ЗЗИ Опросный лист для заказа комплектных трансформаторных подстанций КТП-400□/0.4кВ
ТП 902-1-99.85-АТХ Основной комплект марки АТХ
ТП 902-1-99.85-АТХ-1 Общие данные. Ведомости
ТП 902-1-99.85-АТХ-2 Схема функциональная технологического контроля
ТП 902-1-99.85-АТХ-3 Схема соединений внешних проводок. План расположения
ТП 902-1-99.85-АТХ-4 Схема соединений внешних проводок. План расположения
ТП 902-1-99.85-АТХ-5 Статив датчиков ст.1. Монтажный чертеж
ТП 902-1-99.85-АТХ-6 Статив датчиков ст.2. Монтажный чертеж
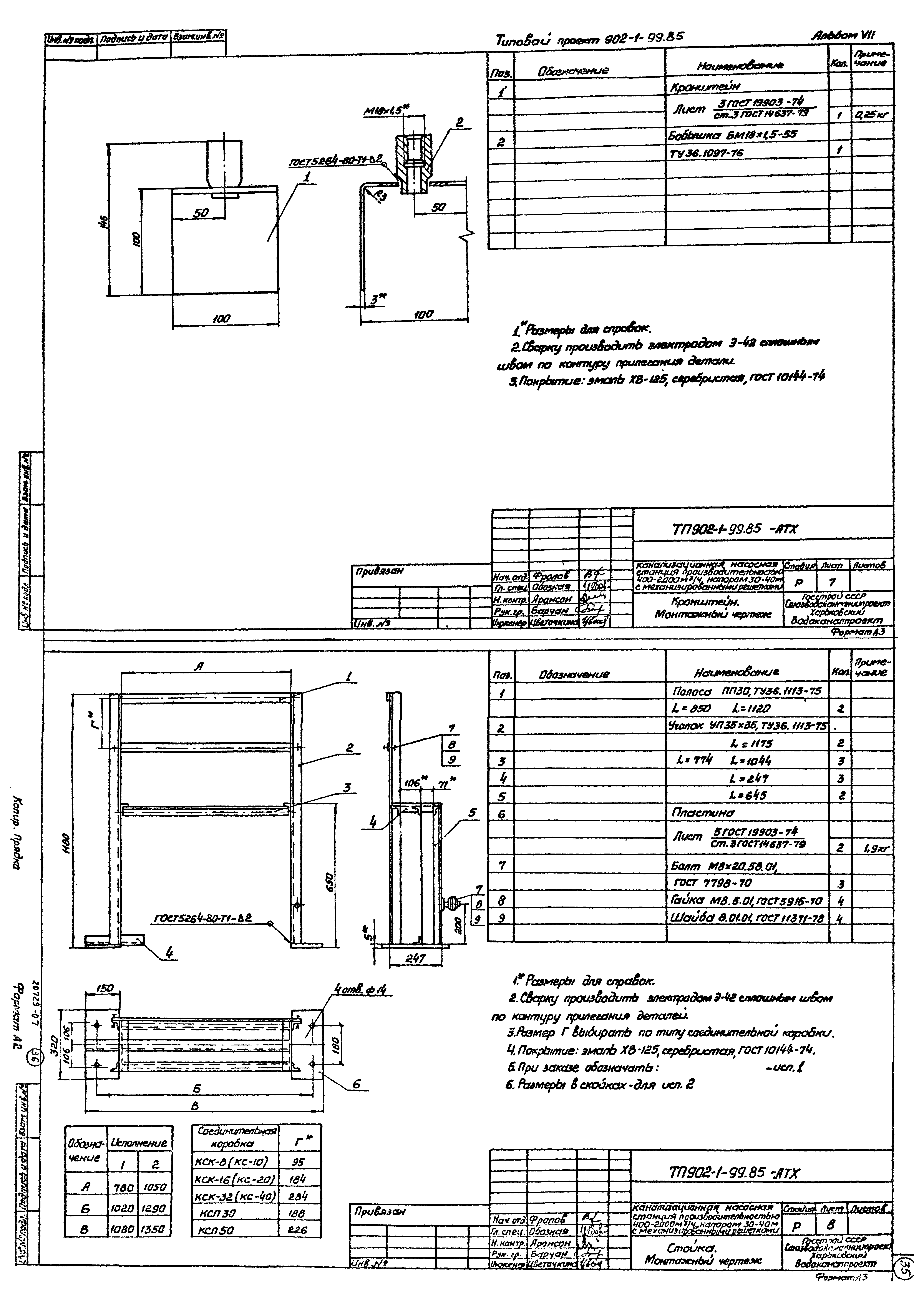
ТП 902-1-99.85-АТХ-7 Кронштейн. Монтажный чертеж
ТП 902-1-99.85-АТХ-8 Стойка. Монтажный чертеж
Разработан: Харьковский Водоканалпроект
Утверждён:21.06.1985 Госстрой СССР (Государственный комитет Совета Министров СССР по делам строительства) (USSR Gosstroy А4-23)
Расположен в:Техническая документация Строительство Справочные документы Типовые строительные конструкции, изделия и узлы Общероссийский строительный каталог Промышленные предприятия, здания и сооружения Здания и сооружения санитарно-технические Канализация Станции насосные Станции насосные для перекачки бытовых сточных вод
Типовой проект 902-1-101.85Типовой проект 902-1-101.85Типовой проект 902-1-101.85Типовой проект 902-1-101.85Типовой проект 902-1-101.85Типовой проект 902-1-101.85Типовой проект 902-1-101.85Типовой проект 902-1-101.85Типовой проект 902-1-101.85Типовой проект 902-1-101.85Типовой проект 902-1-101.85Типовой проект 902-1-101.85Типовой проект 902-1-101.85Типовой проект 902-1-101.85Типовой проект 902-1-101.85Типовой проект 902-1-101.85Типовой проект 902-1-101.85Типовой проект 902-1-101.85Типовой проект 902-1-101.85Типовой проект 902-1-101.85Типовой проект 902-1-101.85Типовой проект 902-1-101.85Типовой проект 902-1-101.85Типовой проект 902-1-101.85Типовой проект 902-1-101.85Типовой проект 902-1-101.85Типовой проект 902-1-101.85Типовой проект 902-1-101.85Типовой проект 902-1-101.85Типовой проект 902-1-101.85Типовой проект 902-1-101.85Типовой проект 902-1-101.85Типовой проект 902-1-101.85Типовой проект 902-1-101.85Типовой проект 902-1-101.85Типовой проект 902-1-101.85Типовой проект 902-1-101.85

© 2013 Ёшкин Кот :-) Карта сайта