| 
 | ||||||||||||||||||||||||||||
| 
 Скачать Альбом ПС-347 Подземные безнапорные трубопроводы из спиральновитых полиэтиленовых труб Dу = 600 - 1800 мм. Материалы для проектированияДата актуализации: 10.08.2017
 | 
| Обозначение: |  Альбом ПС-347 | 
| Обозначение англ: |  ПС-347 | 
| Статус: | не определен законодательством | 
| Название рус.: | Подземные безнапорные трубопроводы из спиральновитых полиэтиленовых труб Dу = 600 - 1800 мм. Материалы для проектирования | 
| Дата добавления в базу: | 01.09.2013 | 
| Дата актуализации: | 05.05.2017 | 
| Дата введения: | 12.07.2004 | 
| Область применения: | Альбом предназначен для проектирования и строительства подземных трубопроводов безнапорной дождевой и хозяйственно-бытовой канализации из спиральновитых полиэтиленовых труб по ТУ 2248-004- 45726757-2002 в г. Москве | 
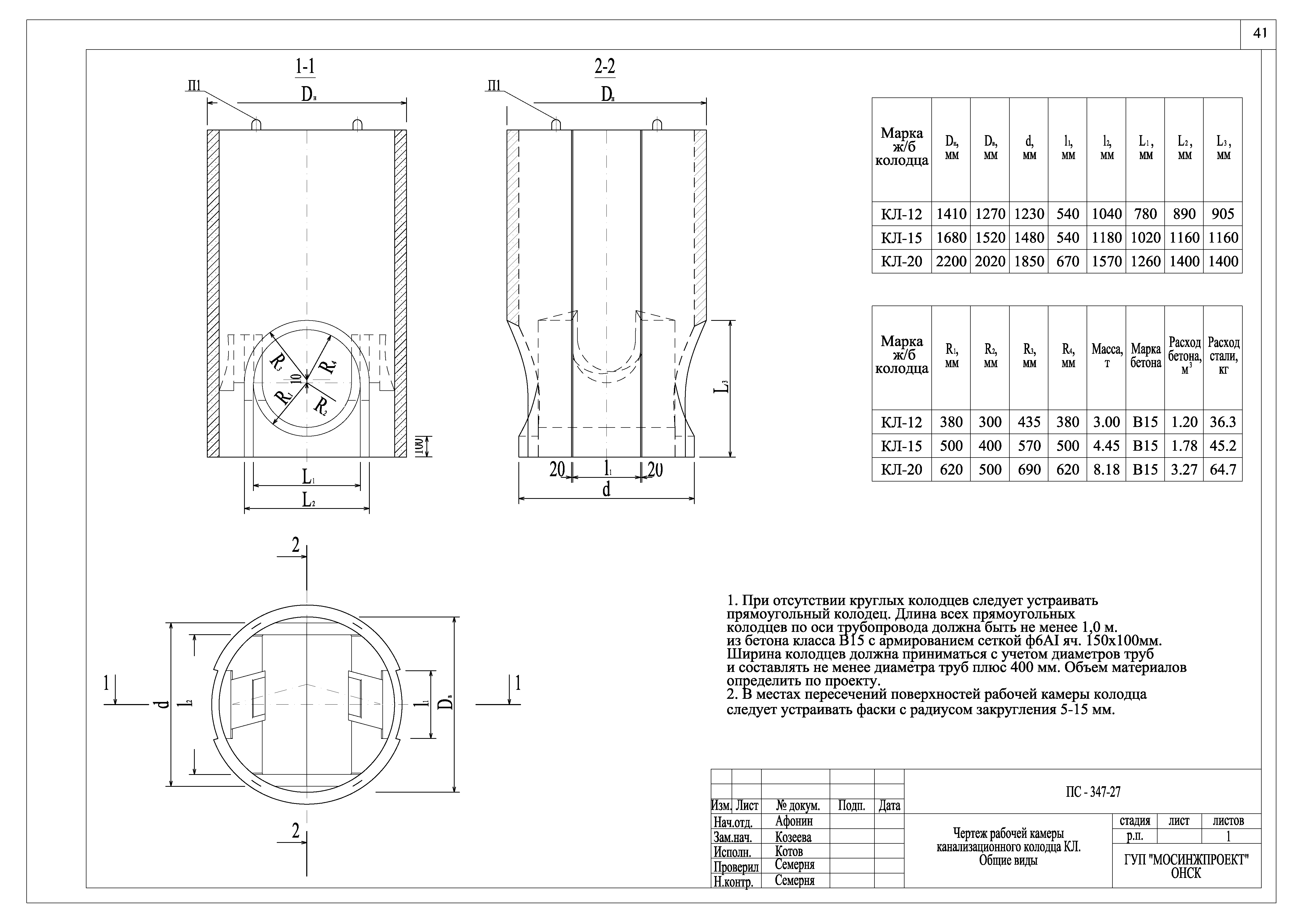
| Оглавление: | ПС-347-00 ПЗ Пояснительная записка ПС-347-01 Сортамент спиральновитых труб из полиэтилена по ТУ 2248-004-45726757-2002 ПС-347-02 Номограмма для подбора гидравлических параметров водоотводящих самотечных трубопроводов из полиэтиленовых труб с полыми стенками ПС-347-03 Таблицы для гидравлического расчета самотечных трубопроводов водоотведения из труб диаметром 600 - 1800 мм ПС-347-04 Пределы применения безнапорных спиральновитых полиэтиленовых труб ПС-347-05 Укладка труб на грунтовое плоское основание с засыпкой грунтом с нормальной степенью уплотнения ПС-347-06 Укладка труб на грунтовое плоское основание с засыпкой грунтом с повышенной степенью уплотнения ПС-347-07 Укладка труб на гравийно-щебеночную или бетонную подготовку с засыпкой грунтом с нормальной и повышенной степенью уплотнения ПС-347-08 Укладка труб на железобетонное плоское основание с засыпкой грунтом с нормальной и повышенной степенью уплотнения ПС-347-09 Сетка С 1-6 ...С 1-18 ПС-347-10 Ведомость расхода стали на 10 п.м железобетонного основания ПС-347-11 Укладка труб на грунтовое спрофилированное основание с засыпкой грунтом с повышенной степенью уплотнения ПС-347-12 Укладка труб на грунтовое спрофилированное основание с подготовкой из песчаного грунта с засыпкой грунтом с повышенной степенью уплотнения ПС-347-13 Укладка труб на спрофилированную гравийно-щебеночную подготовку с засыпкой грунтом с повышенной степенью уплотнения ПС-347-14 Укладка труб на спрофилированное железобетонное основание с засыпкой грунтом с повышенной степенью уплотнения ПС-347-15 Сетка С 2-6 ...С 2-18 ПС-347-16 Ведомость расхода стали на 10 п.м. железобетонного спрофилированного основания ПС-347-17 Укладка труб на железобетонное плоское основание с засыпкой грунтом с повышенной степенью уплотнения в карстово-суффозионных районах ПС-347-18 Сетка С 3-6-2 ...С 3-18-8 ПС-347-19 Ведомость расхода стали на 10 п.м. железобетонного основания ПС-347-20 Стыковые соединения спиральновитых полиэтиленовых труб ПС-347-21 Укладка спиральновитых полиэтиленовых труб в щитовом тоннеле ПС-347-22 Пересечение канализационного трубопровода из спиральновитых полиэтиленовых труб с железной дорогой ПС-347-23 Пересечение канализационного трубопровода из спиральновитых полиэтиленовых труб с автомобильной дорогой и трамвайными путями ПС-347-24 Проход трубопровода из спиральновитых полиэтиленовых труб через стенки канализационного смотрового колодца ПС-347-25 Проход трубопровода из спиральновитых полиэтиленовых труб через стенки водосточного смотрового колодца ПС-347-26 Узлы присоединения трубопроводов из спиральновитых труб к канализационным колодцам ПС-347-27 Чертеж рабочей камеры канализационного колодца КЛ. Общие виды ПС-347-28 Устройство лотка канализационного колодца марки КЛ ПС-347-29 Способ соединения спиральновитых труб на винтовых выступах | 
| Разработан: | Мосинжпроект | 
| Утверждён: | 06.07.2004 Мосинжпроект (Mosinzhproject 26) | 
| Расположен в: | 











































