| 
 Скачать Альбом СК 1111-92 Конструкции коммуникационных тоннелей, каналов и коллекторов различного назначения, сооружаемых в стесненных условиях методом штольневой проходки. Материал для проектированияДата актуализации: 10.08.2017   Альбом СК 1111-92
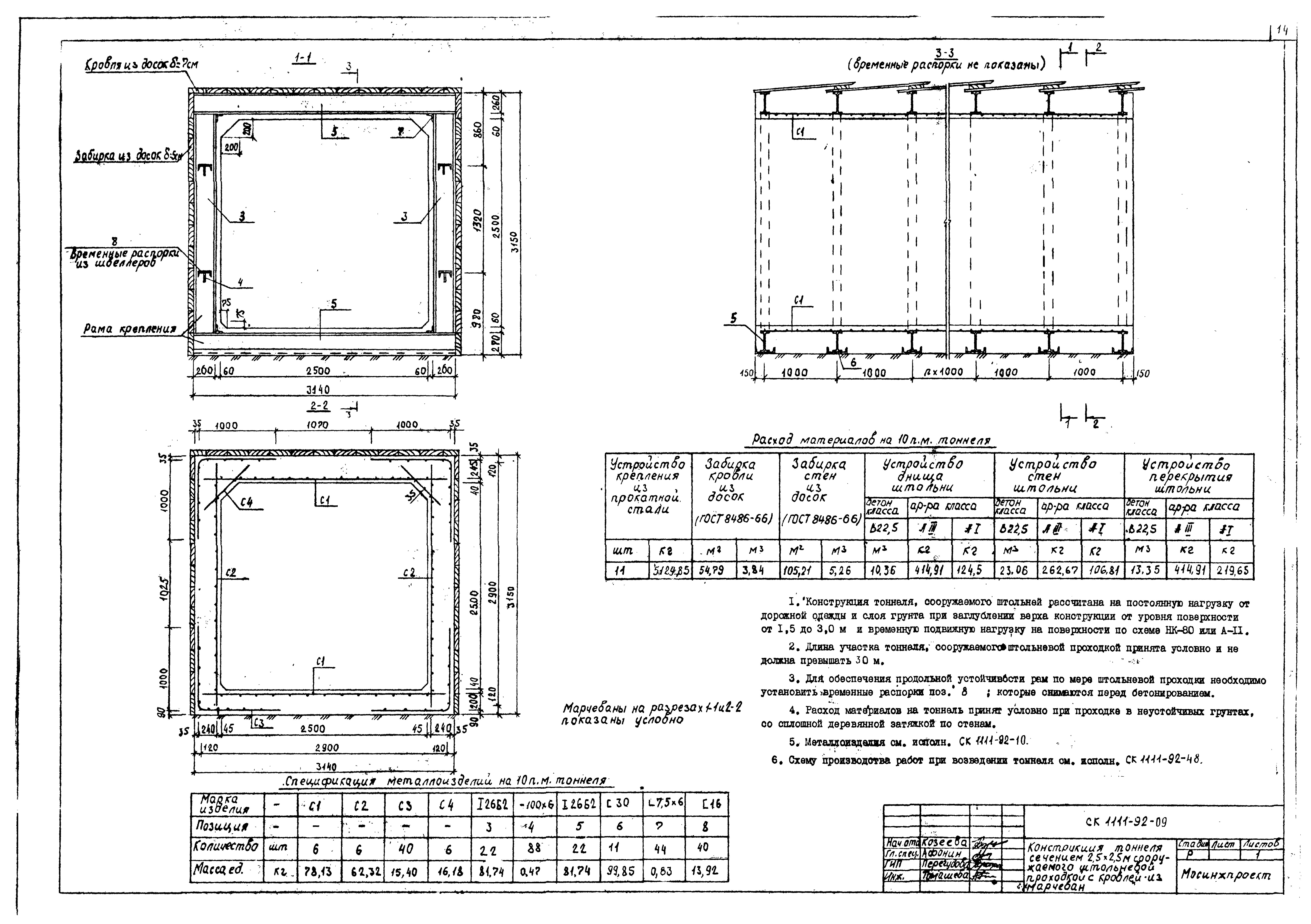
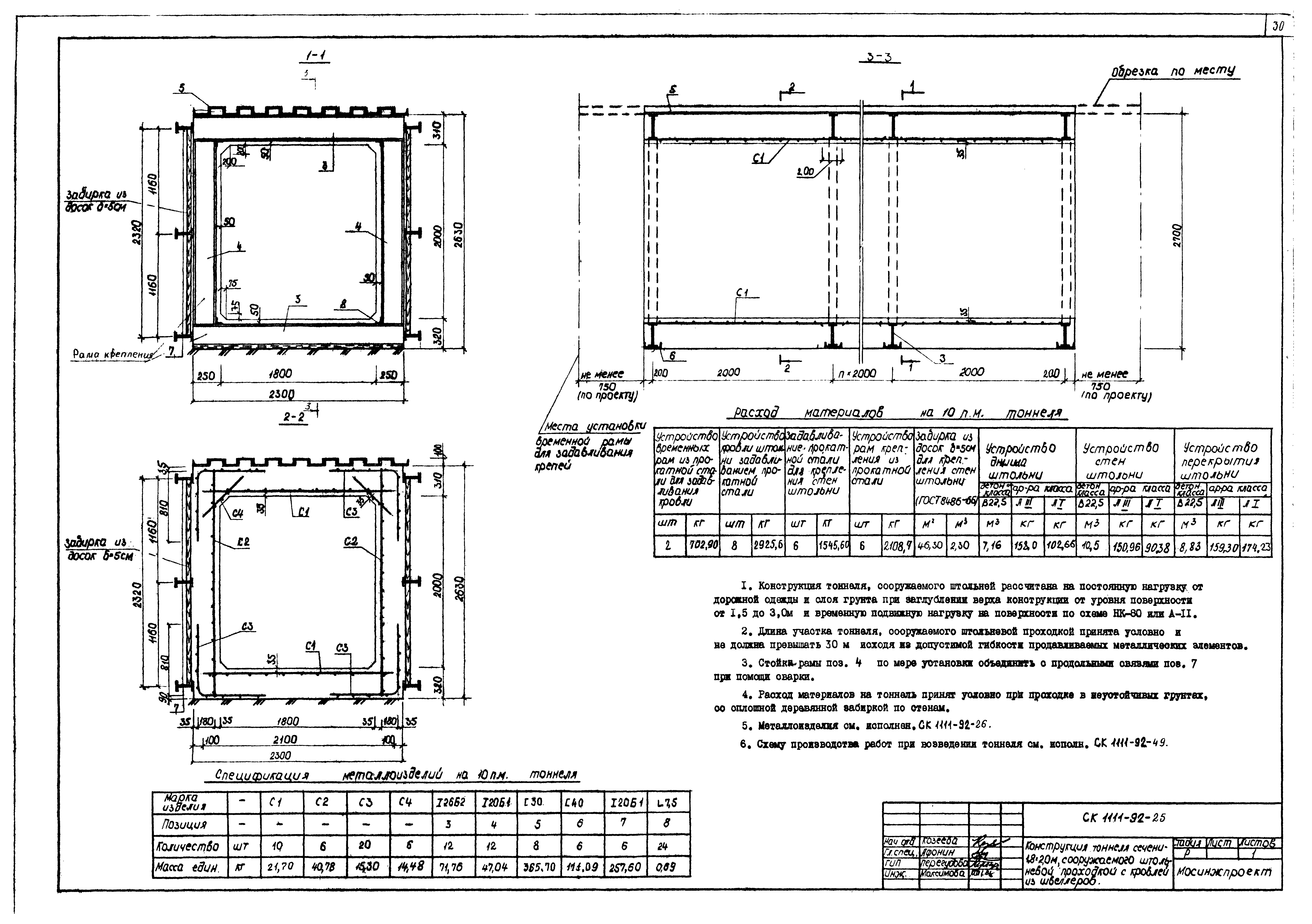
Конструкции коммуникационных тоннелей, каналов и коллекторов различного назначения, сооружаемых в стесненных условиях методом штольневой проходки. Материал для проектирования| Обозначение: |  Альбом СК 1111-92 |  | Обозначение англ: |  СК 1111-92 |  | Статус: | не определен законодательством |  | Название рус.: | Конструкции коммуникационных тоннелей, каналов и коллекторов различного назначения, сооружаемых в стесненных условиях методом штольневой проходки. Материал для проектирования |  | Дата добавления в базу: | 01.09.2013 |  | Дата актуализации: | 05.05.2017 |  | Дата введения: | 17.06.1992 |  | Область применения: | В альбоме СК 1111-92 представлены наиболее часто встречающиеся схемы тоннелей, сооружаемых штольневой проходкой, разработаны примеры технологических сечений каналов тепловых сетей и коллекторов с размещением в сечениях инженерных коммуникаций различного назначения |  | Разработан: | Мосинжпроект 
 |  | Утверждён: | 17.06.1992 Мосинжпроект (Mosinzhproject 46) 
 |  | Расположен в: | 
 |  | Заменяет собой: |  | 
                                                           |