Информационная система
«Ёшкин Кот»

Скачать базу одним архивом
Скачать обновления
История создания базы
Карта сайта

Скачать Типовой проект 903-4-11 Альбом 1. Рабочие чертежи строительных конструкций

Дата актуализации: 10.08.2017

Типовой проект 903-4-11

Альбом 1. Рабочие чертежи строительных конструкций

Обозначение: Типовой проект 903-4-11
Обозначение англ: 903-4-11
Статус:не действует
Название рус.:Альбом 1. Рабочие чертежи строительных конструкций
Дата добавления в базу:01.09.2013
Дата актуализации:05.05.2017
Оглавление:Заглавный лист
Содержание альбома
Пояснительная записка
Сводная таблица для подбора рабочих чертежей строительных конструкций камер, каркасов и узлов трубопроводов
Маркировка блоков при монтаже камер
Общий вид камеры типа I-1 габаритом 1,8х2,4
Общий вид камеры типа I-2 габаритом 2,4х3,0
Общий вид камеры типа I-3 габаритом 2,4х3,6
Общий вид камеры типа I-4 габаритом 3,0х3,0
Общий вид камеры типа I-5 габаритом 3,0х3,6
Общий вид камеры типа I-6 габаритом 3,6х3,6
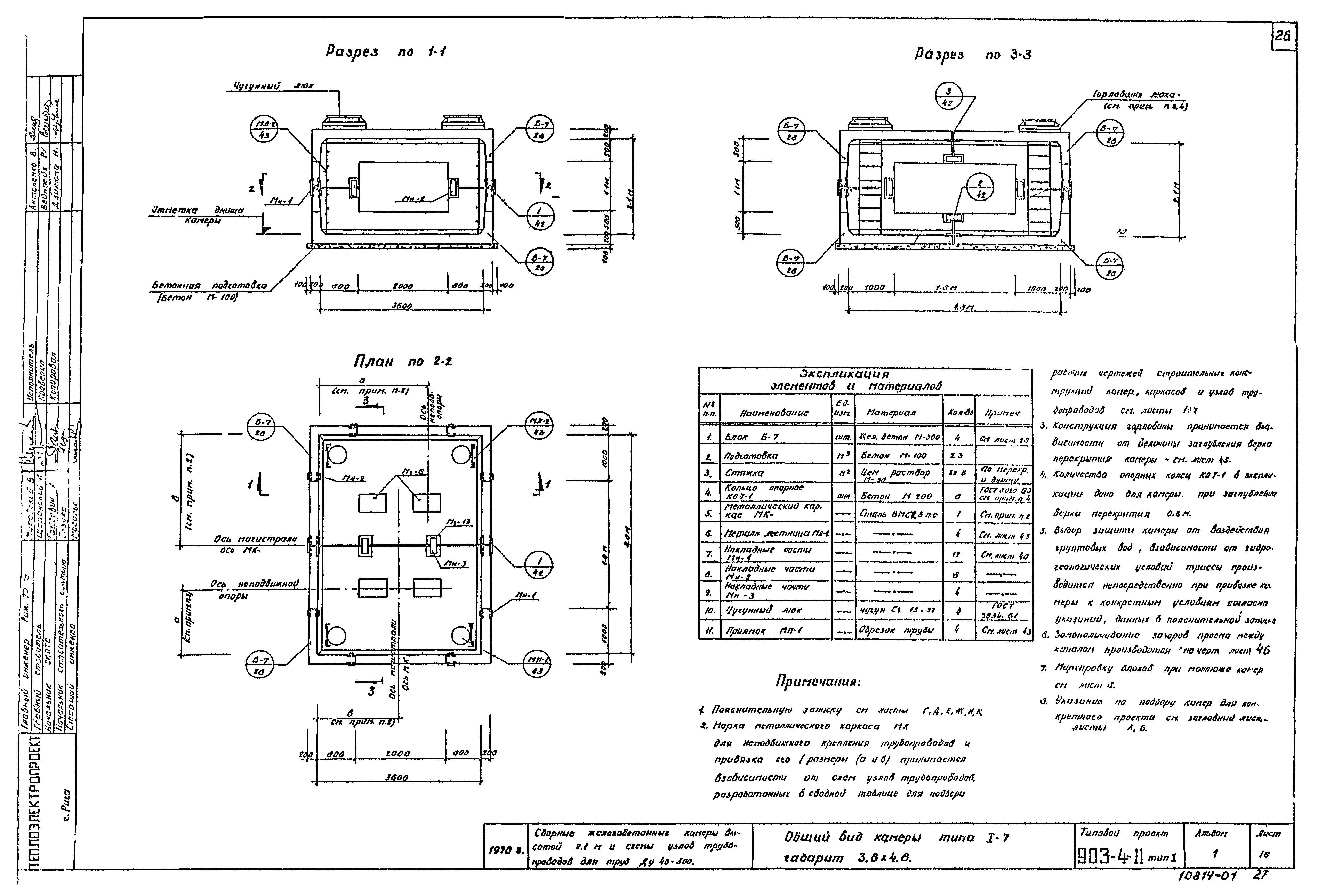
Общий вид камеры типа I-7 габаритом 3,6х4,8
Общий вид камеры типа I-8 габаритом 4,8х4,8
Общий вид камеры типа I-9 габаритом 4,8х6,0
Общий вид камеры типа I-10 габаритом 6,0х6,0
Блок Б-1. Опалубка
Блок Б-1. Армирование
Блок Б-1. Спецификация арматуры и объемы работ
Блоки Б-2, Б-3, Б-4. Опалубка
Блоки Б-2, Б-3, Б-4. Армирование
Блок Б-2. Спецификация арматуры и объемы работ
Блок Б-3. Спецификация арматуры и объемы работ
Блок Б-4. Спецификация арматуры и объемы работ
Блоки Б-5, Б-6, Б-7. Опалубка
Блоки Б-5, Б-6, Б-7. Армирование
Блок Б-5. Спецификация арматуры и объемы работ
Блок Б-6. Спецификация арматуры и объемы работ
Блок Б-7. Спецификация арматуры и объемы работ
Блоки Б-8, Б-9, Б-10. Опалубка
Блоки Б-8-1, Б-9-1, Б-10-1. Опалубка
Блоки Б-8, Б-9, Б-10. Армирование
Блоки Б-8-1, Б-9-1, Б-10-1. Армирование
Блоки Б-8, Б-8-1. Спецификация арматуры и объемы работ
Блоки Б-9, Б-9-1. Спецификация арматуры и объемы работ
Блоки Б-10, Б-10-1. Спецификация арматуры и объемы работ
Накладные элементы Мн-1 - Мн-5. закладные элементы Мз-1 - Мз-20
Детали приварки закладных элементов к арматурным сеткам
Узлы 1 - 5
Металлическая лестница МЛ-2. Металлический приямок МП-1
Сальники для прохода металлических труб через стены камер. Марки М-1, М-2, М-3
Конструкции горловины. Крышка приямка. Ходовая скоба
Очередность монтажа блоков камер типа I-8 - I-10. Общий вид примыкания каналов к камере
Общие схемы расположения каркасов "МК" в камерах типа I-2, I-3
Общие схемы расположения каркасов "МК" в камере типа I-4
Общие схемы расположения каркасов "МК" в камере типа I-5
Общие схемы расположения каркасов "МК" в камере типа I-6
Общие схемы расположения каркасов "МК" в камере типа I-7
Общие схемы расположения каркасов "МК" в камере типа I-8
Общие схемы расположения каркасов "МК" в камере типа I-9
Общие схемы расположения каркасов "МК" в камере типа I-10
Металлические каркасы МК1, МК1-1, МК3-1, МК4
Металлические каркасы МК1-2, МК1-3, МК4-2
Металлические каркасы МК2, МК2-1, МК3, МК4-1, МК5, МК6
Металлические каркасы МК2-2, МК2-3, МК3-2, МК5-1
Металлические каркасы МК7, МК8, МК9, МК10, Мк11, Мк12, МК13, МК14
Металлические каркасы. Узлы 1, 2, 3, 4, 5, 6, 7, 8
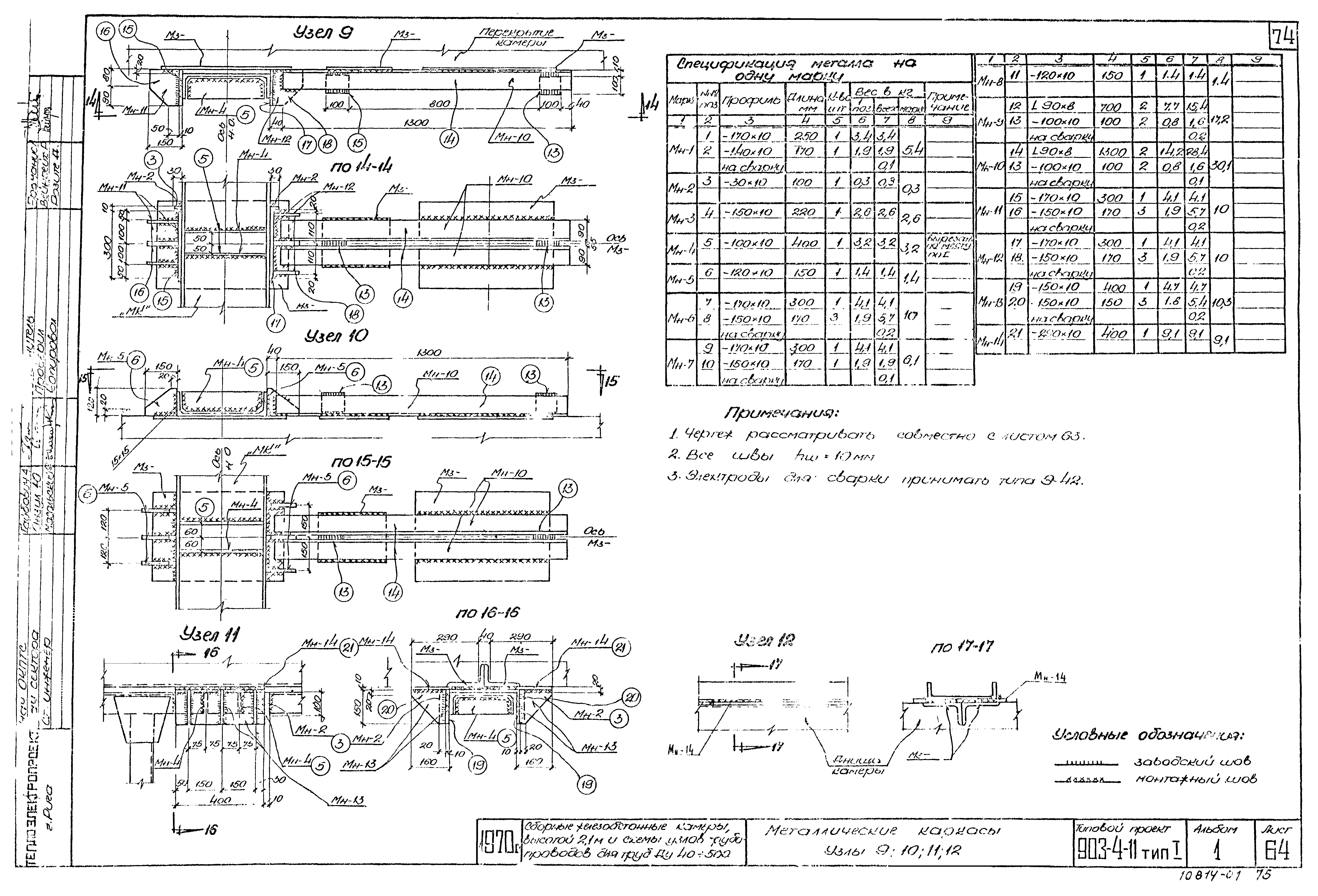
Металлические каркасы. Узлы 9, 10, 11, 12
Детали гидроизоляции металлического приямка и примыкания канала к камере
Разработан: ВГОЛПИ Теплоэлектропроект
Утверждён:31.12.1970 Минэнергетики и электрофикации СССР (USSR Ministry of Energy and Electric Power 453)
Расположен в:Техническая документация Строительство Справочные документы Типовые строительные конструкции, изделия и узлы Общероссийский строительный каталог Промышленные предприятия, здания и сооружения Здания и сооружения санитарно-технические Теплоснабжение Здания и сооружения разные
Типовой проект 903-4-11Типовой проект 903-4-11Типовой проект 903-4-11Типовой проект 903-4-11Типовой проект 903-4-11Типовой проект 903-4-11Типовой проект 903-4-11Типовой проект 903-4-11Типовой проект 903-4-11Типовой проект 903-4-11Типовой проект 903-4-11Типовой проект 903-4-11Типовой проект 903-4-11Типовой проект 903-4-11Типовой проект 903-4-11Типовой проект 903-4-11Типовой проект 903-4-11Типовой проект 903-4-11Типовой проект 903-4-11Типовой проект 903-4-11Типовой проект 903-4-11Типовой проект 903-4-11Типовой проект 903-4-11Типовой проект 903-4-11Типовой проект 903-4-11Типовой проект 903-4-11Типовой проект 903-4-11Типовой проект 903-4-11Типовой проект 903-4-11Типовой проект 903-4-11Типовой проект 903-4-11Типовой проект 903-4-11Типовой проект 903-4-11Типовой проект 903-4-11Типовой проект 903-4-11Типовой проект 903-4-11Типовой проект 903-4-11Типовой проект 903-4-11Типовой проект 903-4-11Типовой проект 903-4-11Типовой проект 903-4-11Типовой проект 903-4-11Типовой проект 903-4-11Типовой проект 903-4-11Типовой проект 903-4-11Типовой проект 903-4-11Типовой проект 903-4-11Типовой проект 903-4-11Типовой проект 903-4-11Типовой проект 903-4-11Типовой проект 903-4-11Типовой проект 903-4-11Типовой проект 903-4-11Типовой проект 903-4-11Типовой проект 903-4-11Типовой проект 903-4-11Типовой проект 903-4-11Типовой проект 903-4-11Типовой проект 903-4-11Типовой проект 903-4-11Типовой проект 903-4-11Типовой проект 903-4-11Типовой проект 903-4-11Типовой проект 903-4-11Типовой проект 903-4-11Типовой проект 903-4-11Типовой проект 903-4-11Типовой проект 903-4-11Типовой проект 903-4-11Типовой проект 903-4-11Типовой проект 903-4-11Типовой проект 903-4-11Типовой проект 903-4-11Типовой проект 903-4-11Типовой проект 903-4-11

© 2013 Ёшкин Кот :-) Карта сайта