| ||||||||||||||||||||||||||||
Скачать Серия 1.489-1 Выпуск 1. Железобетонные конструкции (рабочие чертежи)Дата актуализации: 10.08.2017
|
| Обозначение: | Серия 1.489-1 |
| Обозначение англ: | Series 1.489-1 |
| Статус: | не действует |
| Название рус.: | Выпуск 1. Железобетонные конструкции (рабочие чертежи) |
| Дата добавления в базу: | 01.09.2013 |
| Дата актуализации: | 05.05.2017 |
| Дата введения: | 01.03.1974 |
| Дата окончания срока действия: | 01.05.1999 |
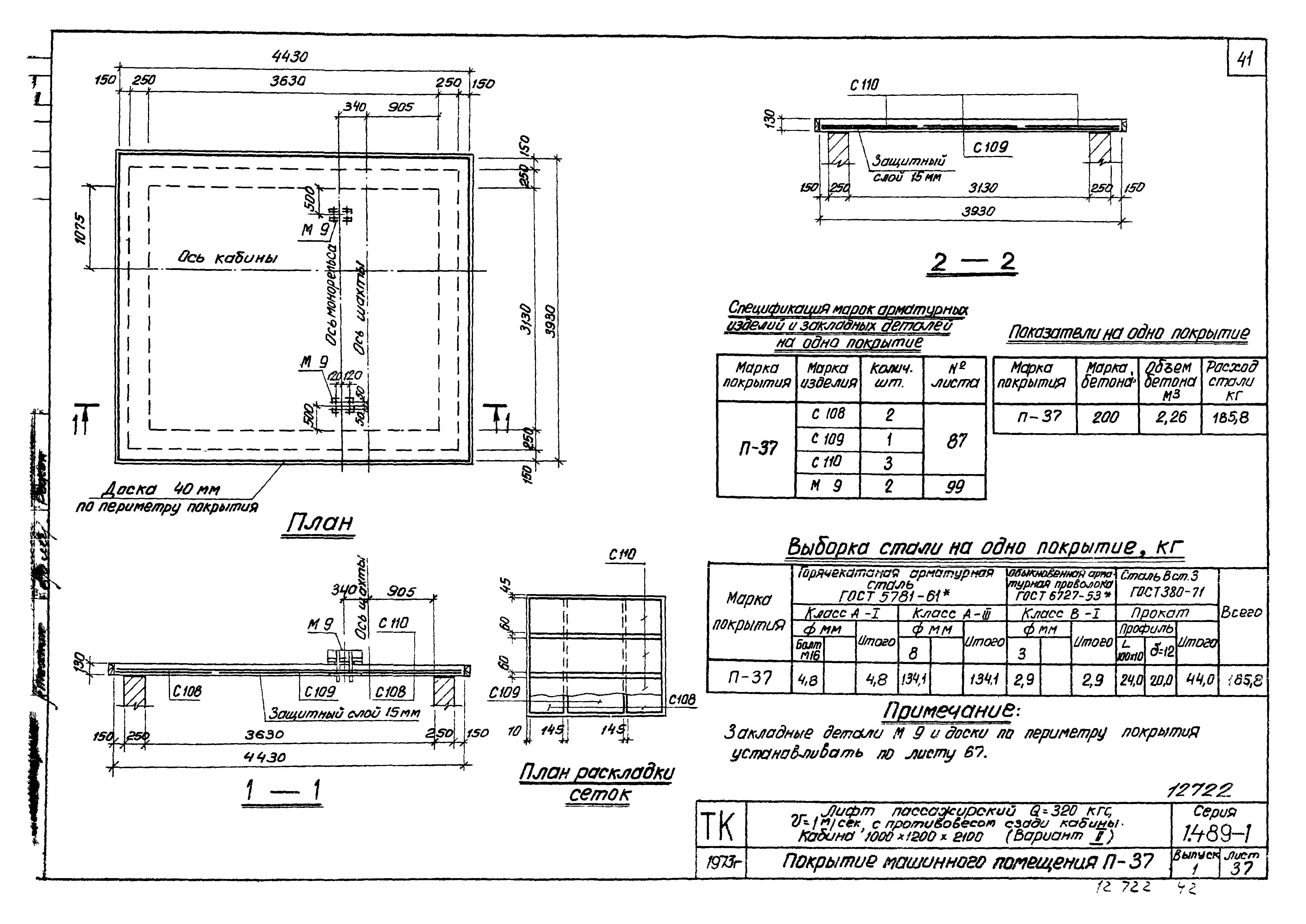
| Оглавление: | Содержание Пояснительная записка Перекрытие над шахтой П-1 Перекрытие над шахтой П-2 Перекрытие над шахтой П-3 Перекрытие над шахтой П-4 Перекрытие над шахтой П-5 Перекрытие над шахтой П-6 Перекрытие над шахтой П-7 Перекрытие над шахтой П-8 Перекрытие над шахтой П-9 Перекрытие над шахтой П-10 Перекрытие над шахтой П-11 Перекрытие над шахтой П-12 Перекрытие над шахтой П-13 Перекрытие над шахтой П-14 Перекрытие над шахтой П-15 Перекрытие над шахтой П-16 Перекрытие над шахтой П-17 Перекрытие над шахтой П-18 Перекрытие над шахтой П-19 Перекрытие над шахтой П-20 Перекрытие над шахтой П-21 Перекрытие над шахтой П-22 Перекрытие над шахтой П-23 Перекрытие над шахтой П-24 Перекрытие над шахтой П-25 Перекрытие над шахтой П-26 Перекрытие над шахтой П-27 Перекрытие над шахтой П-28 Перекрытие над шахтой П-29 Перекрытие над шахтой П-30 Перекрытие над шахтой П-31 Перекрытие над шахтой П-32 Перекрытие над шахтой П-33 Перекрытие над шахтой П-34 Перекрытие над шахтой П-35 Покрытие машинного помещения П-36 Покрытие машинного помещения П-37 Покрытие машинного помещения П-38 Покрытие машинного помещения П-39 Покрытие машинного помещения П-40 Покрытие машинного помещения П-41 Покрытие машинного помещения П-42 Покрытие машинного помещения П-43 Покрытие машинного помещения П-44 Покрытие машинного помещения П-45 Покрытие машинного помещения П-46 Покрытие машинного помещения П-47 Покрытие машинного помещения П-48 Покрытие машинного помещения П-49 Покрытие машинного помещения П-50 Покрытие машинного помещения П-51 Покрытие машинного помещения П-52 Покрытие машинного помещения П-53 Покрытие машинного помещения П-54 Покрытие машинного помещения П-55 Покрытие машинного помещения П-56 Покрытие машинного помещения П-57 Покрытие машинного помещения П-58 Покрытие машинного помещения П-59 Покрытие машинного помещения П-60 Покрытие машинного помещения П-61 Покрытие машинного помещения П-62 Покрытие машинного помещения П-63 Покрытие машинного помещения П-64 Покрытие машинного помещения П-65 Покрытие машинного помещения П-66 Деталь крепления монорельса. Деталь установки М5 - М10. Деталь крепления досок в покрытии Каркасы КР1 - КР8 Каркасы КР9 - КР15 Каркасы КР16 - КР20; КР16а - КР20а Каркасы КР21 - КР25; КР21а - КР25а Каркасы КР26 - КР29; КР26а - КР29а Сетки С1 - С9 Сетки С10 - С18 Сетки С19 - С27 Сетки С28 - С33 Сетки С34 - С40 Сетки С41 - С49 Сетки С50 - С57 Сетки С58 - С65 Сетки С66 - С70 Сетки С71 - С78 Сетки С79 - С84 Сетки С85 - С91 Сетки С92 - С97 Сетки С98 - С107 Сетки С108 - С115 Сетки С116 - С122 Сетки С123 - С130 Сетки С131 - С138 Сетки С139 - С142 Сетки С143 - С145 Сетки С146 - С149 Сетки С150 - С153 Сетки С154, С156 Сетки С155, С157 - С159. Отдельные позиции 169, 214, 220, 236, 253, 269 - 277 Закладные детали М1 - М4 Закладные детали М5 - М7 Закладные детали М8 - М12 Спецификация позиций арматурных изделий на альбом Спецификация позиций арматурных изделий и закладных деталей на альбом Монорельсы МБ1 - МБ5 Монорельсы МБ6 - МБ9 Подлебедочные балки Б1 - Б6 Крышки люков КЛ1 - КЛ3 Спецификация конструктивных элементов и изделий, разработанных в чертежах выпуска 1, на одну шахту |
| Разработан: | ЦНИИпромзданий ЛГПИ |
| Утверждён: | 12.07.1973 Госстрой СССР (Государственный комитет Совета Министров СССР по делам строительства) (USSR Gosstroy ) |
| Расположен в: |

















































































































