Информационная система
«Ёшкин Кот»

Скачать базу одним архивом
Скачать обновления
История создания базы
Карта сайта

Скачать Серия 3.900-3 Выпуск 12. Часть 1. Панели стеновые балочные с опорной пятой со шпоночным стыком для прямоугольных сооружений. Рабочие чертежи

Дата актуализации: 10.08.2017

Серия 3.900-3

Выпуск 12. Часть 1. Панели стеновые балочные с опорной пятой со шпоночным стыком для прямоугольных сооружений. Рабочие чертежи

Обозначение: Серия 3.900-3
Обозначение англ: Series 3.900-3
Статус:не действует
Название рус.:Выпуск 12. Часть 1. Панели стеновые балочные с опорной пятой со шпоночным стыком для прямоугольных сооружений. Рабочие чертежи
Дата добавления в базу:01.09.2013
Дата актуализации:05.05.2017
Дата введения:01.10.1983
Дата окончания срока действия:01.10.1990
Оглавление:Содержание
3.900-3.12.1 00.00 ТО Техническое описание
3.900-3.12.1 01.00 Панель стеновая ПСП24
3.900-3.12.1 01.00 СБ Панель стеновая ПСП24. Сборочный чертеж
3.900-3.12.1 02.00 Панель стеновая ПСП30
3.900-3.12.1 02.00 СБ Панель стеновая ПСП30. Сборочный чертеж
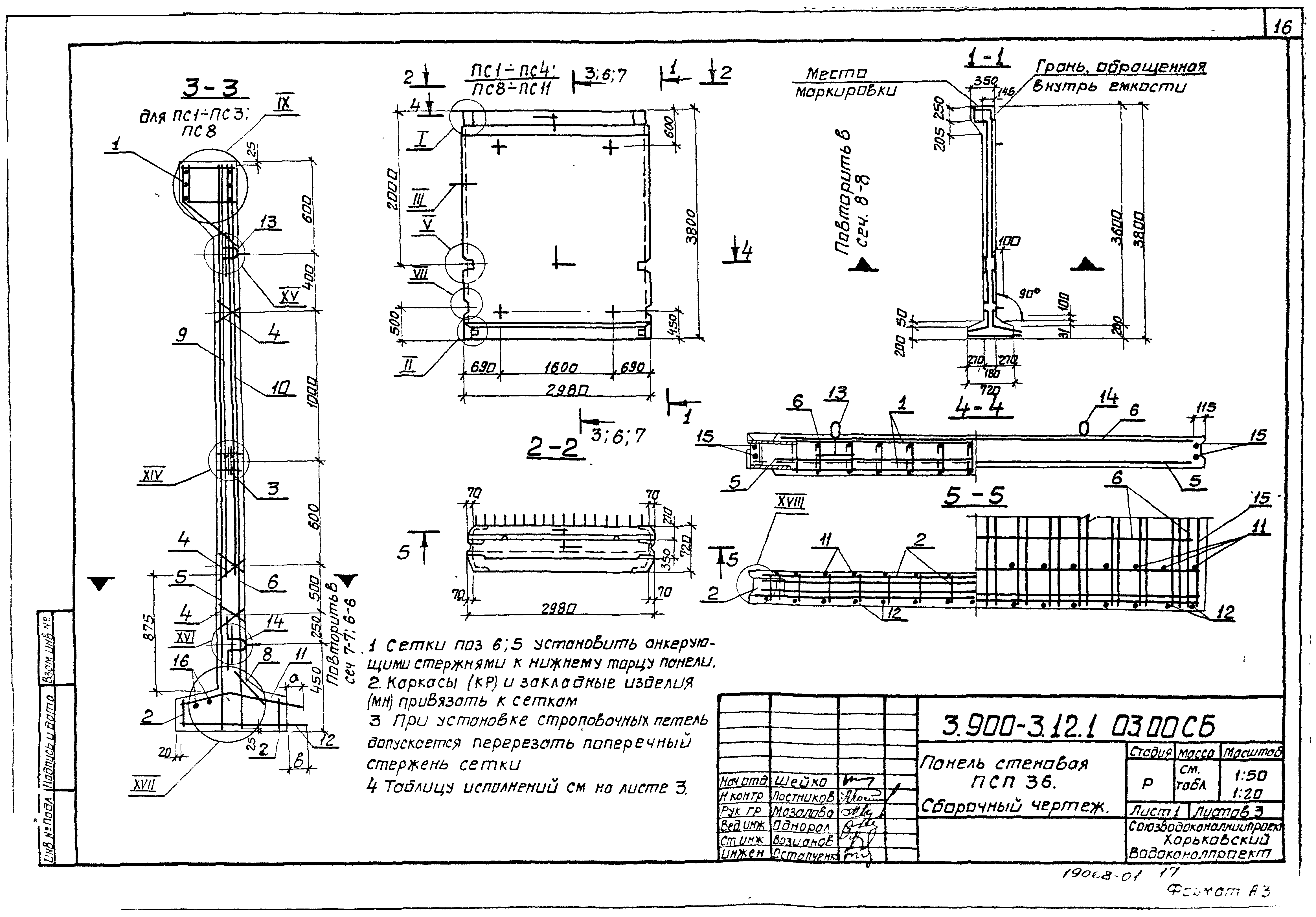
3.900-3.12.1 03.00 Панель стеновая ПСП36
3.900-3.12.1 03.00 СБ Панель стеновая ПСП36. Сборочный чертеж
3.900-3.12.1 04.00 Панель стеновая ПСП42
3.900-3.12.1 04.00 СБ Панель стеновая ПСП42. Сборочный чертеж
3.900-3.12.1 05.00 Панель стеновая ПСП48
3.900-3.12.1 05.00 СБ Панель стеновая ПСП48. Сборочный чертеж
3.900-3.12.1 06.00 Панель стеновая ПСП54
3.900-3.12.1 06.00 СБ Панель стеновая ПСП54. Сборочный чертеж
3.900-3.12.1 07.00 Панель стеновая ПСП60
3.900-3.12.1 07.00 СБ Панель стеновая ПСП60. Сборочный чертеж
3.900-3.12.1 08.00 Узлы 1-21
3.900-3.12.1 00.00 ВМС Ведомость расхода стали
Разработан: ЦНИИпромзданий
НИИЖБ
Союзводоканалниипроект Харьковский водоканалпроект
Утверждён:15.07.1983 Госстрой СССР (Государственный комитет Совета Министров СССР по делам строительства) (USSR Gosstroy 185)
Издан: ЦИТП Госстроя СССР (CITP, Gosstroy (USSR) 1988 г. )
Расположен в:Техническая документация Строительство Справочные документы Типовые строительные конструкции, изделия и узлы Общероссийский строительный каталог Строительные конструкции, изделия и узлы зданий и сооружений для всех видов строительства Конструкции и изделия сооружений и оборудования зданий Подземные сооружения Емкостные сооружения
Чем заменён:
Серия 3.900-3Серия 3.900-3Серия 3.900-3Серия 3.900-3Серия 3.900-3Серия 3.900-3Серия 3.900-3Серия 3.900-3Серия 3.900-3Серия 3.900-3Серия 3.900-3Серия 3.900-3Серия 3.900-3Серия 3.900-3Серия 3.900-3Серия 3.900-3Серия 3.900-3Серия 3.900-3Серия 3.900-3Серия 3.900-3Серия 3.900-3Серия 3.900-3Серия 3.900-3Серия 3.900-3Серия 3.900-3Серия 3.900-3Серия 3.900-3Серия 3.900-3Серия 3.900-3Серия 3.900-3Серия 3.900-3Серия 3.900-3Серия 3.900-3Серия 3.900-3Серия 3.900-3Серия 3.900-3Серия 3.900-3Серия 3.900-3Серия 3.900-3Серия 3.900-3Серия 3.900-3Серия 3.900-3Серия 3.900-3Серия 3.900-3Серия 3.900-3Серия 3.900-3Серия 3.900-3Серия 3.900-3Серия 3.900-3

© 2013 Ёшкин Кот :-) Карта сайта