| ||||||||||||||||||||||
Скачать Каталог. Навесные и выносные площадкиДата актуализации: 10.08.2017 |
| Статус: | действует |
| Название рус.: | Каталог. Навесные и выносные площадки |
| Дата добавления в базу: | 01.09.2013 |
| Дата актуализации: | 05.05.2017 |
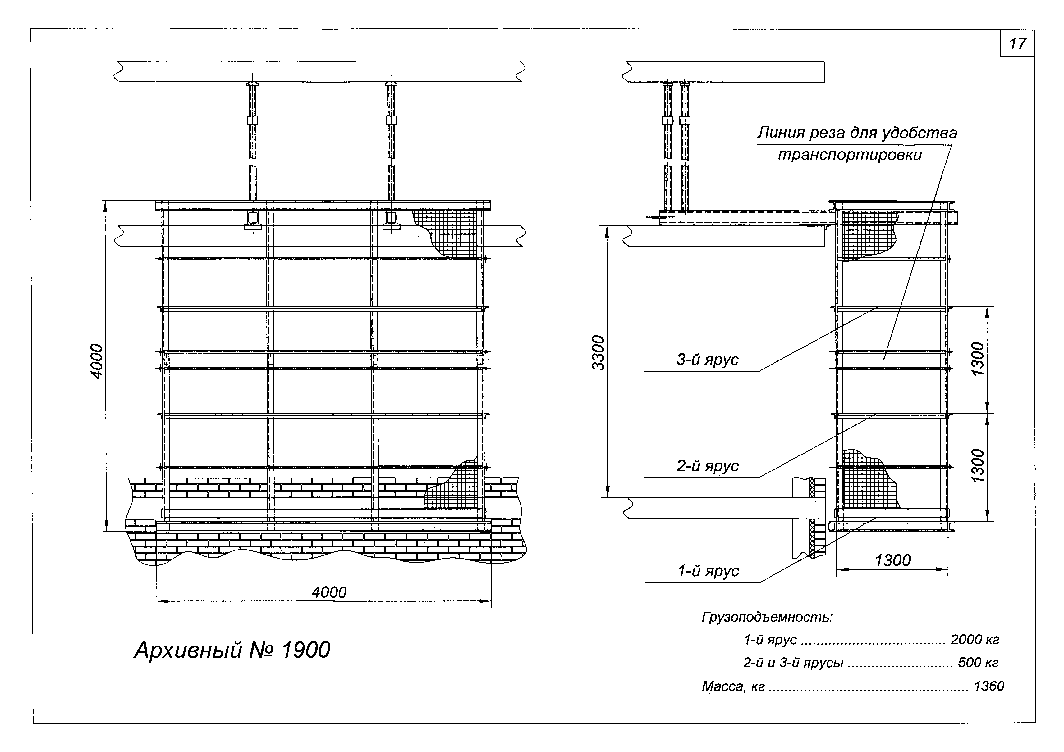
| Область применения: | В каталоге содержатся общие виды и основные технические характеристики навесных и выносных площадок, используемых для выполнения строительно-монтажных работ (СМР) |
| Оглавление: | Общая часть А. Навесные плошадки Б. Выносные площадки |
| Разработан: | ОАО ПКТИпромстрой |
| Утверждён: | ОАО ПКТИпромстрой (PKTIpromstroy OAO ) |
| Расположен в: |












































