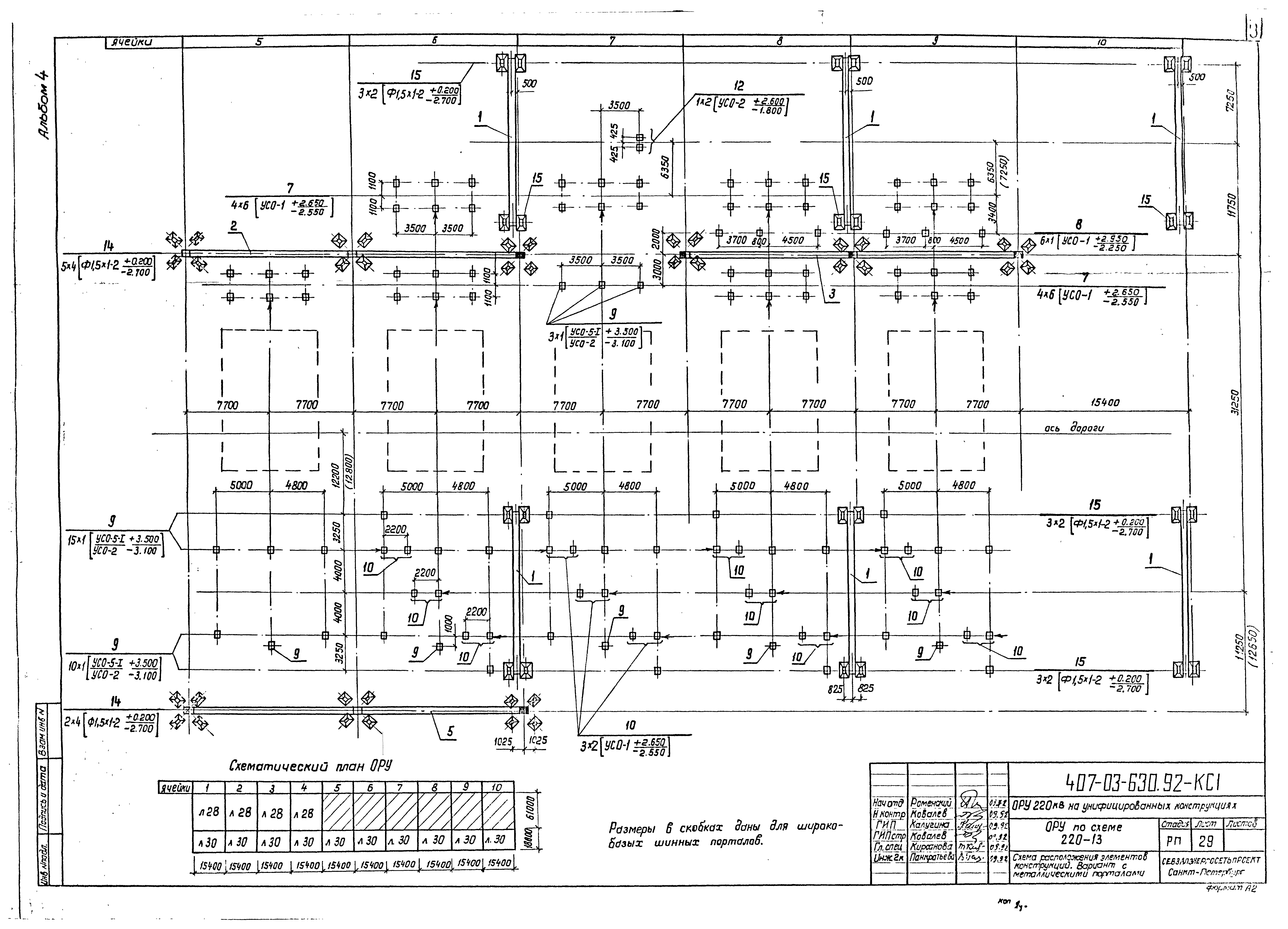
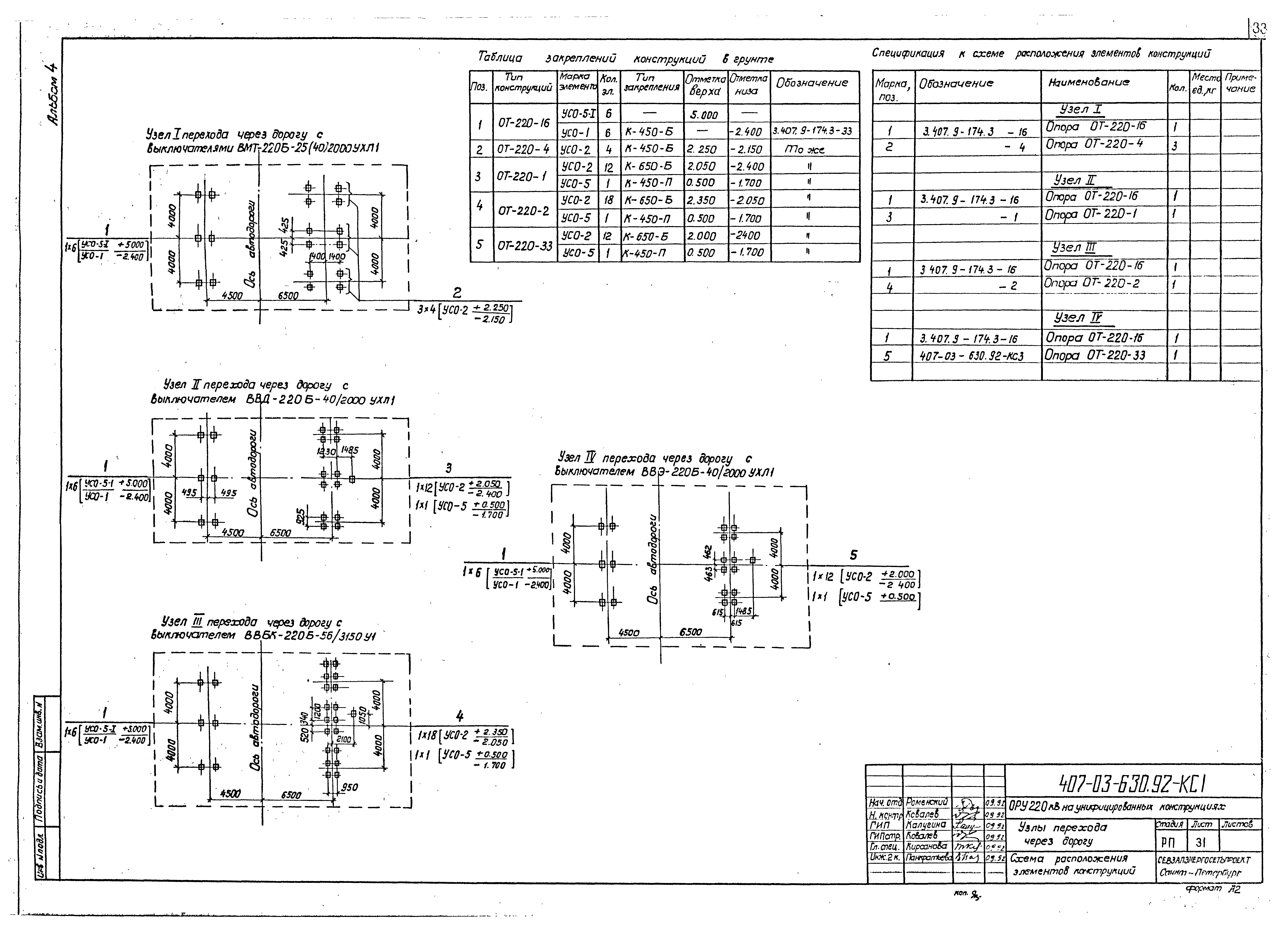
Скачать Типовые материалы для проектирования 407-03-630.92 Альбом 4. Планы строительных конструкцийДата актуализации: 10.08.2017 Типовые материалы для проектирования 407-03-630.92
Альбом 4. Планы строительных конструкций| Обозначение: | Типовые материалы для проектирования 407-03-630.92 | | Обозначение англ: | 407-03-630.92 | | Статус: | cправочные материалы, мп, тпр | | Название рус.: | Альбом 4. Планы строительных конструкций | | Дата добавления в базу: | 01.09.2013 | | Дата актуализации: | 05.05.2017 | | Дата введения: | 27.08.1992 | | Разработан: | Севзапэнергосетьпроект
| | Утверждён: | 27.08.1992 Севзапэнергосетьпроект (6)
| | Издан: | Уралтиппроект (1992 г. )
| | Расположен в: |
|
                                
|