Информационная система
«Ёшкин Кот»

Скачать базу одним архивом
Скачать обновления
История создания базы
Карта сайта

Скачать Типовой проект 3.501-79 Часть I. Устои

Дата актуализации: 10.08.2017

Типовой проект 3.501-79

Часть I. Устои

Обозначение: Типовой проект 3.501-79
Обозначение англ: 3.501-79
Статус:не действует
Название рус.:Часть I. Устои
Дата добавления в базу:01.09.2013
Дата актуализации:05.05.2017
Оглавление:Пояснительная записка
Массивно-сборные устои
Массивно-сборные устои под пролетные строения длиной 16.5 - 34.2 м. Сводный лист
Сводный лист блоков
Пример конструкции устоя по схеме 1
Пример конструкции устоя по схеме 2
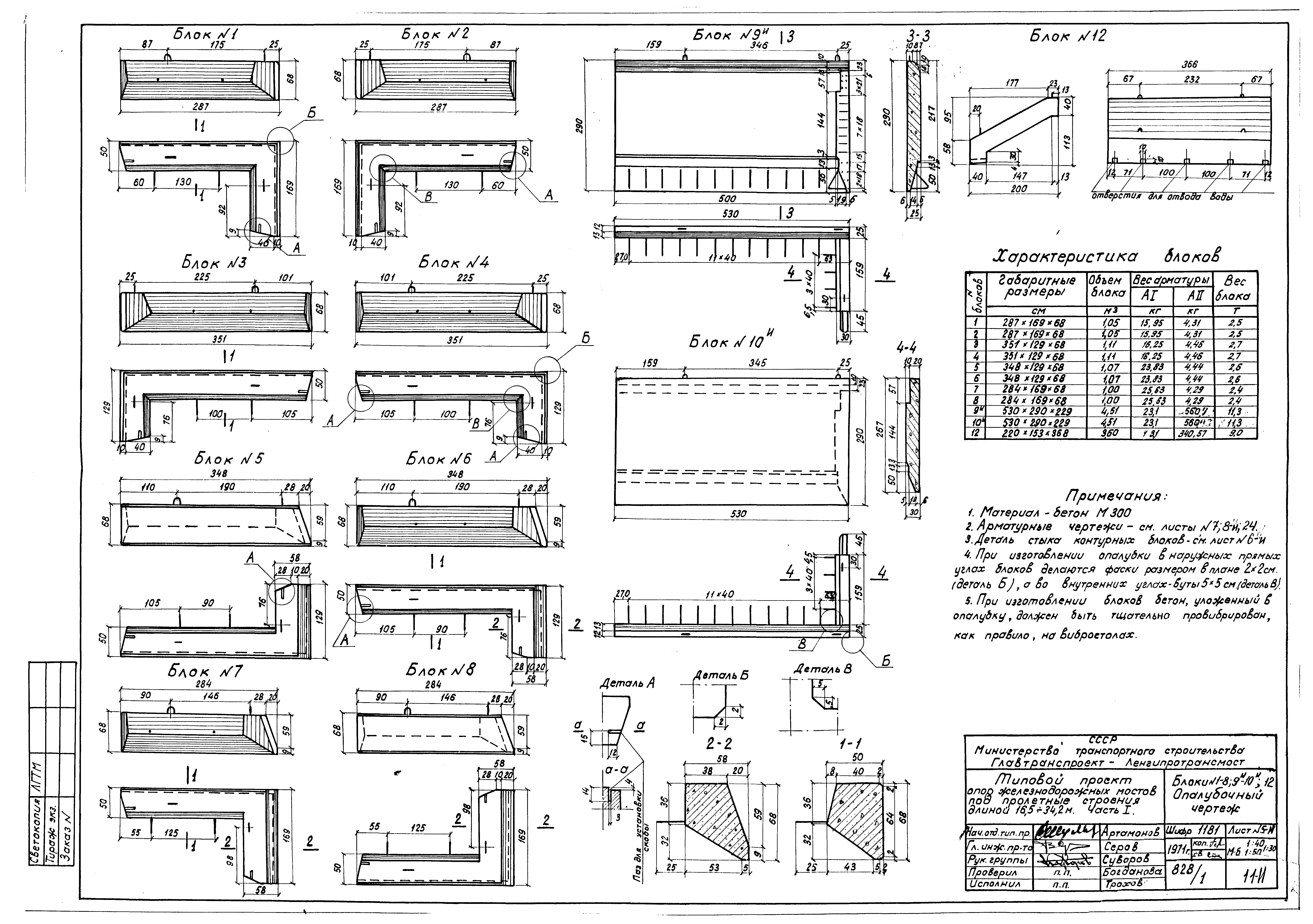
Блоки №№1-8, 9и, 10и, 12. Опалубочный чертеж
Блоки №№13и - 18и, 19. Опалубочный чертеж
Блоки №№1 - 8. Арматурный чертеж
Блоки №№9и, 10и, 13и - 18и. Арматурный чертеж
Блок №11. Опалубочный и арматурный чертеж
Блок №20. Опалубочный и арматурный чертеж
Блоки П-1, П-2, П-4 и П-5. Опалубочный и арматурный чертеж
Детали омоноличивания шкафной коробки и основные параметры фундаментов устоев
Блоки 1и - 4и. Опалубочный и арматурный чертеж
Свайные и стоечные устои
Свайные устои под пролетные строения длиной 16.5 - 18.7 м
Свайные устои под пролетные строения длиной 23.6 - 34.2 м (на сваях-оболочках)
Свайные устои под пролетные строения длиной 23.6 - 34.2 м (на призматических сваях)
Свайные устои под пролетные строения длиной 16.5 - 18.7 м
Свайные устои под пролетные строения длиной 23.6 - 34.2 м
Пример конструкции устоя и детали стыков
Конструкция насадки свайных и стоечных устоев
Фундаменты стоечных устоев
Блоки №№21и, 24и, 25, 26. Опалубочный чертеж
Блоки №№21и - 24и. Арматурный чертеж
Блок №27. Опалубочный и арматурный чертеж
Конструкция подферменников устоев под притные пролеиные строения L = 16.5 м
Блоки мягкого въезда. Арматурный чертеж
Схемы производства работ по сооружению устоя
Рамные устои
Рамные устои под пролетное строение длиной 16.5 м при Ннас = 8 - 10 м
Блоки №28 - 29. Опалубочный и арматурный чертеж
Детали омоноличивания шкафной части. Конструкция прокладника и фундамента
Устои из монолитного бетона
Конструкция устоя под пролетное строение длиной 16.5 - 18.7м при высоте насыпи 5.5 - 9.0 м
Конструкция устоя под пролетное строение длиной 23.6 - 34.2м при высоте насыпи 9.0 - 15.5 м
Конструкция смотровых приспособлений
Общая пояснительная записка
Разработан: Ленгипротранс Минтрансстроя СССР
Утверждён:01.09.1972 МПС (Ministry of Railroads П-24680)
Расположен в:Техническая документация Строительство Справочные документы Типовые строительные конструкции, изделия и узлы Общероссийский строительный каталог Строительные конструкции, изделия и узлы зданий и сооружений для всех видов строительства Конструкции и изделия сооружений и оборудования зданий Надземные сооружения Конструкции и сооружения транспорта Опоры пролетных строений мостов и путепроводов
Типовой проект 3.501-79Типовой проект 3.501-79Типовой проект 3.501-79Типовой проект 3.501-79Типовой проект 3.501-79Типовой проект 3.501-79Типовой проект 3.501-79Типовой проект 3.501-79Типовой проект 3.501-79Типовой проект 3.501-79Типовой проект 3.501-79Типовой проект 3.501-79Типовой проект 3.501-79Типовой проект 3.501-79Типовой проект 3.501-79Типовой проект 3.501-79Типовой проект 3.501-79Типовой проект 3.501-79Типовой проект 3.501-79Типовой проект 3.501-79Типовой проект 3.501-79Типовой проект 3.501-79Типовой проект 3.501-79Типовой проект 3.501-79Типовой проект 3.501-79Типовой проект 3.501-79Типовой проект 3.501-79Типовой проект 3.501-79Типовой проект 3.501-79Типовой проект 3.501-79Типовой проект 3.501-79Типовой проект 3.501-79Типовой проект 3.501-79Типовой проект 3.501-79Типовой проект 3.501-79Типовой проект 3.501-79Типовой проект 3.501-79Типовой проект 3.501-79Типовой проект 3.501-79Типовой проект 3.501-79Типовой проект 3.501-79Типовой проект 3.501-79Типовой проект 3.501-79Типовой проект 3.501-79

© 2013 Ёшкин Кот :-) Карта сайта