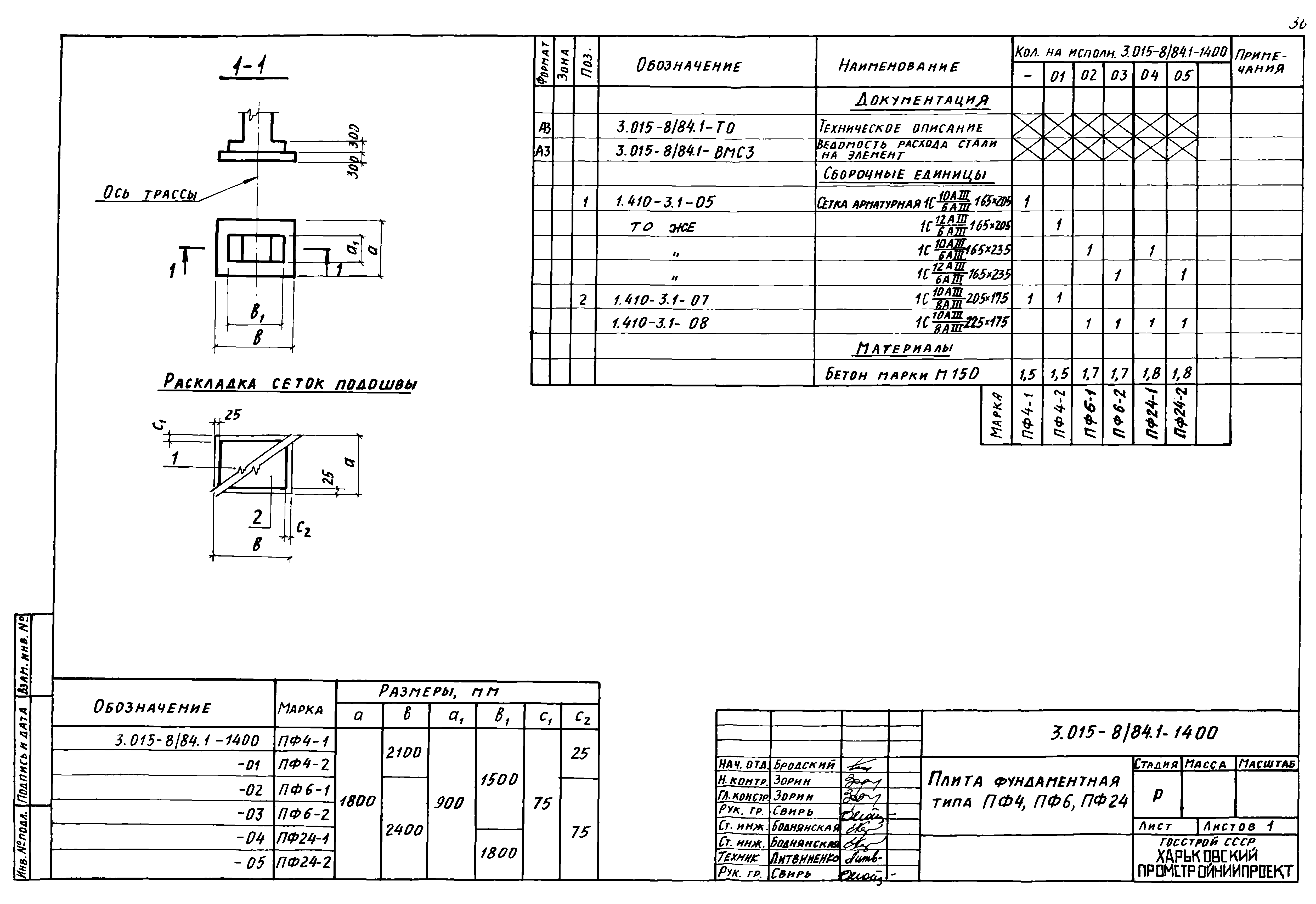
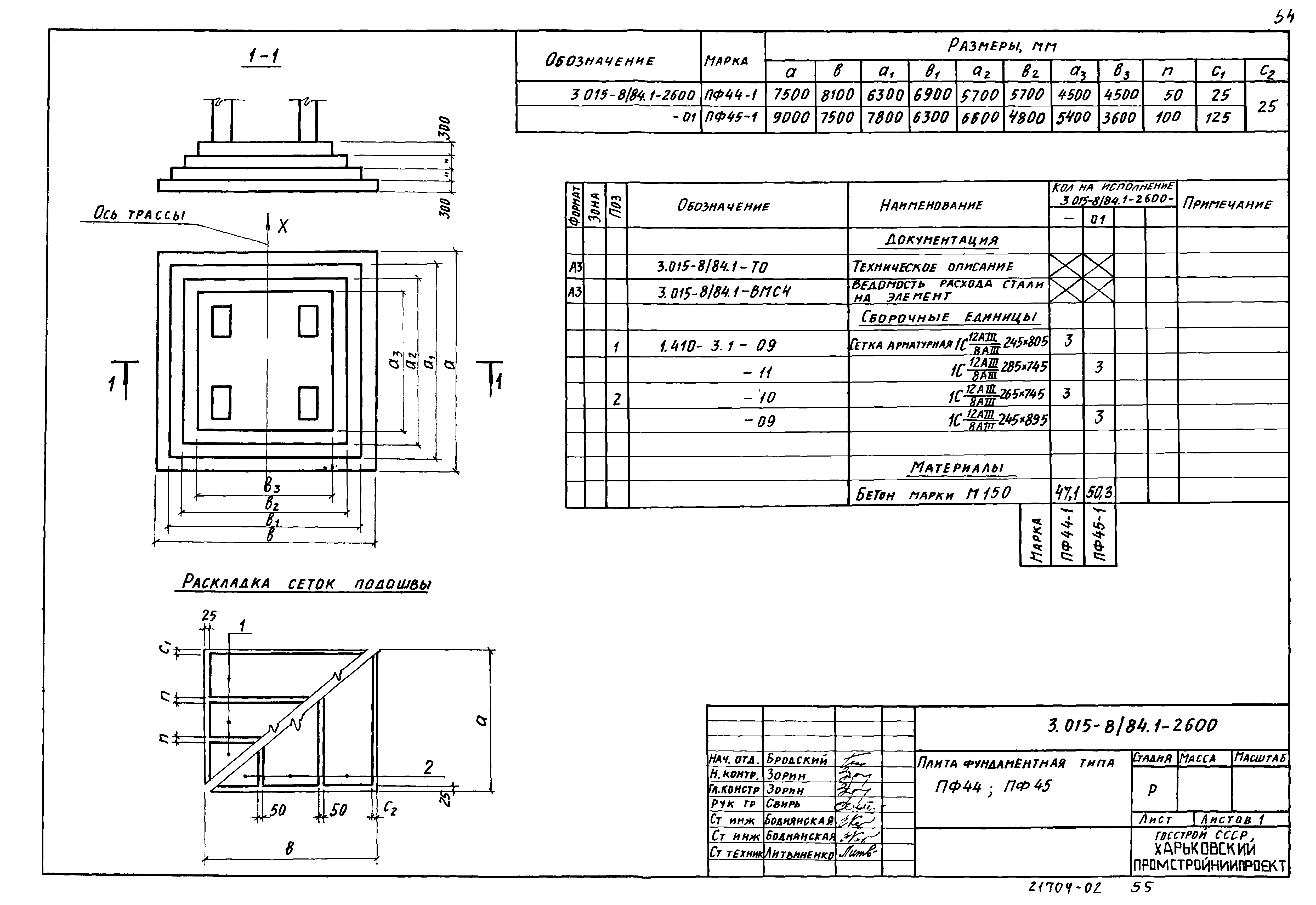
Скачать Серия 3.015-8/84 Выпуск 1. Подколонники, плиты фундаментные. Рабочие чертежиДата актуализации: 10.08.2017 Серия 3.015-8/84
Выпуск 1. Подколонники, плиты фундаментные. Рабочие чертежи| Обозначение: | Серия 3.015-8/84 | | Обозначение англ: | Series 3.015-8/84 | | Статус: | не действует | | Название рус.: | Выпуск 1. Подколонники, плиты фундаментные. Рабочие чертежи | | Дата добавления в базу: | 01.09.2013 | | Дата актуализации: | 05.05.2017 | | Дата введения: | 01.02.1987 | | Дата окончания срока действия: | 01.02.1995 | | Разработан: | Харьковский Промстройниипроект
| | Утверждён: | 15.05.1986 Госстрой СССР (Государственный комитет Совета Министров СССР по делам строительства) (USSR Gosstroy 2/3-245)
| | Расположен в: |
| | Чем заменён: | |
                                                       
|