| ||||||||||||||||||||||||||
Скачать Типовые материалы для проектирования 407-03-642.94 Альбом 1. Пояснительная записка. Электротехнические чертежи. Электротехнические изделияДата актуализации: 10.08.2017
|
| Обозначение: | Типовые материалы для проектирования 407-03-642.94 |
| Обозначение англ: | 407-03-642.94 |
| Статус: | cправочные материалы, мп, тпр |
| Название рус.: | Альбом 1. Пояснительная записка. Электротехнические чертежи. Электротехнические изделия |
| Дата добавления в базу: | 01.09.2013 |
| Дата актуализации: | 05.05.2017 |
| Дата введения: | 05.07.1994 |
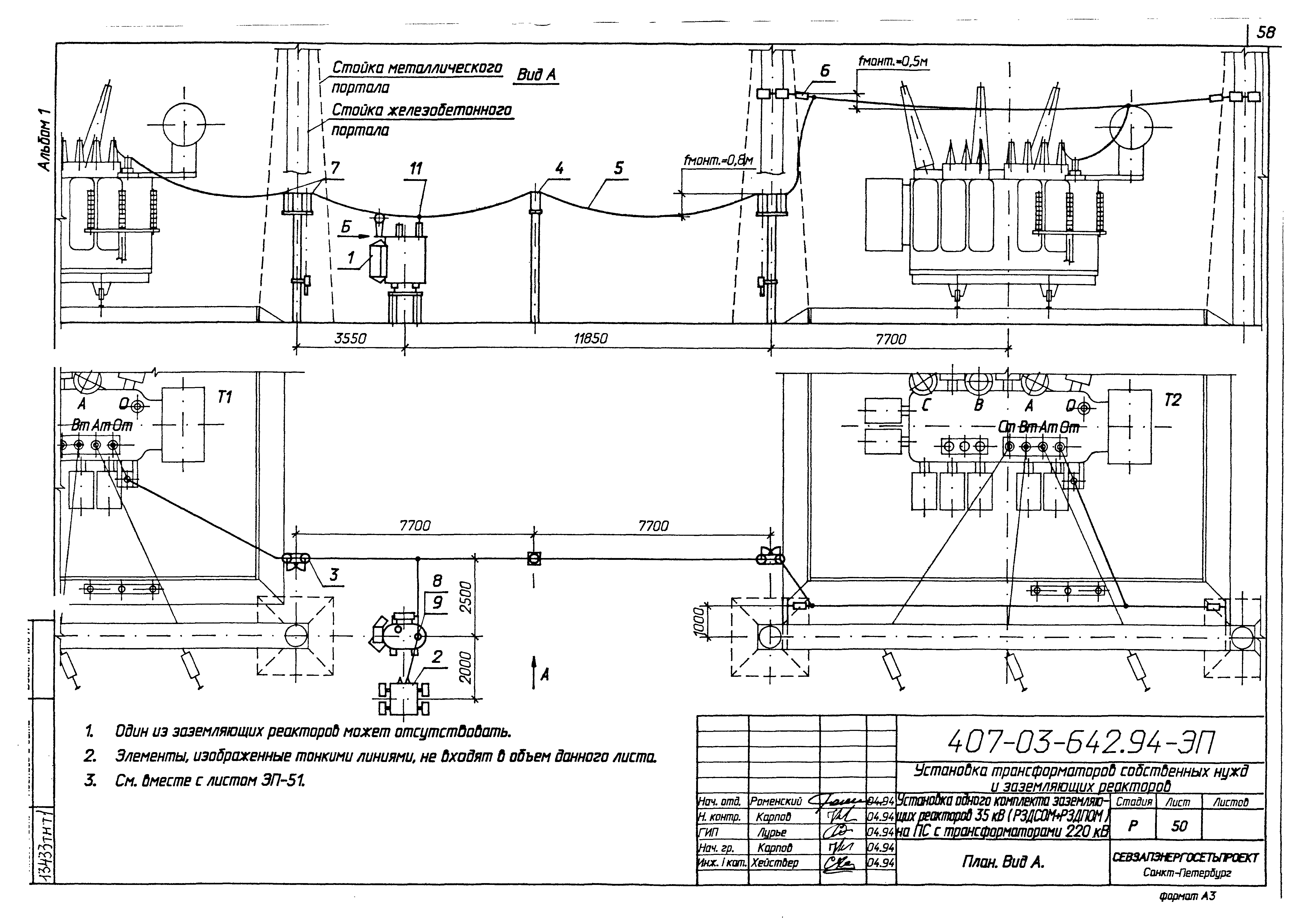
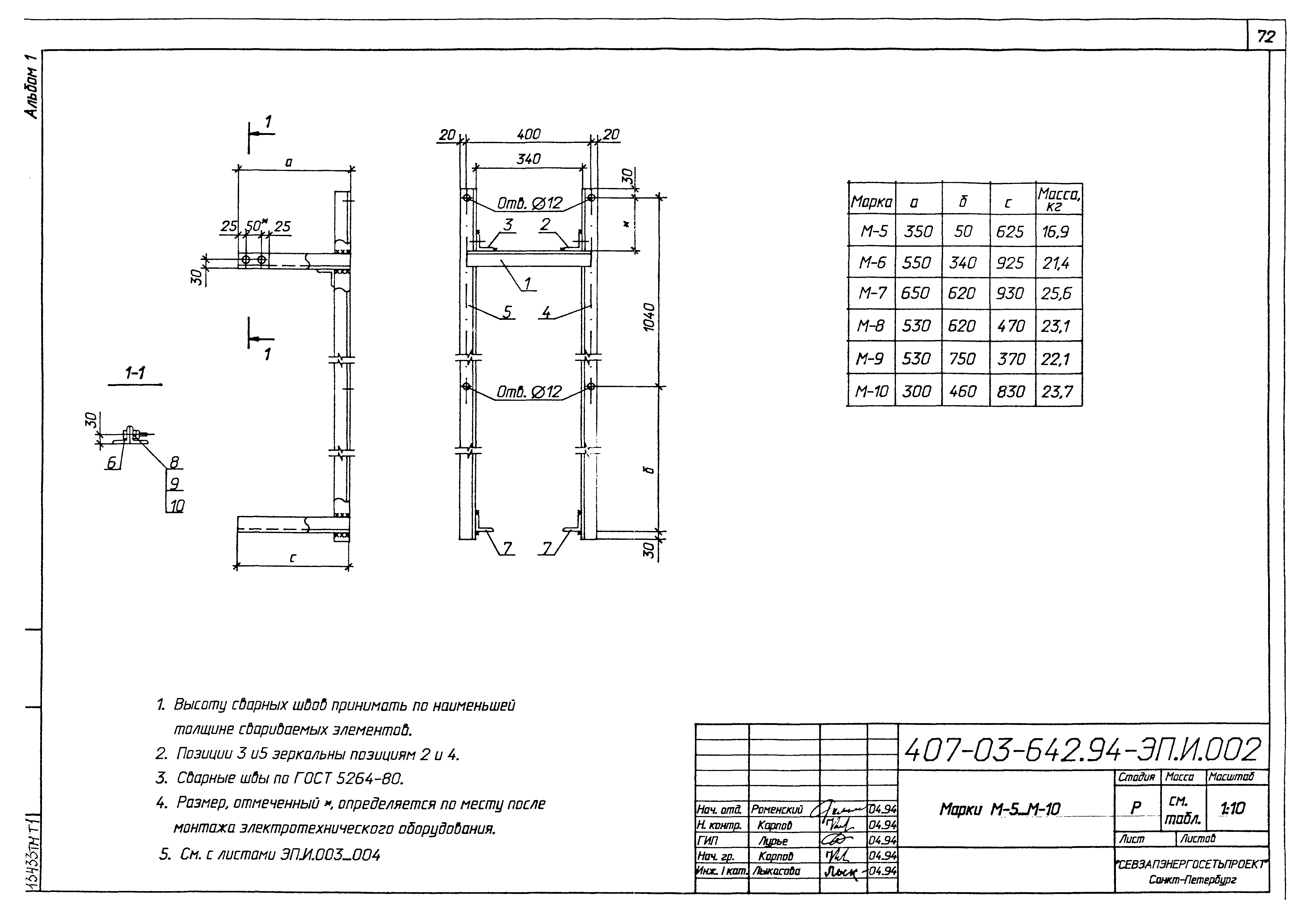
| Оглавление: | Пояснительная записка 407-03-642.94-ЭП Трансформаторы ТМ-25/10, ТМ-40/10, ТМ-63/10, ТМ-100/10, ТМ-160/10, ТМ-250/10. План, виды. Спецификация к листу ЭП-1 Трансформаторы ТМ-25/10, ТМ-40/10, ТМ-63/10, ТМ-100/10, ТМ-160/10, ТМ-250/10. План, виды. Вариант с кабельной муфтой на стороне низкого напряжения. Спецификация к листу ЭП-3. Трансформаторы ТМ-400/10, ТМ-630/10. ТМ-1000/10. План. Виды. Спецификация к листу ЭП-5. Трансформаторы ТМГ-25/10, ТМГ-160/10, ТМГ-250/10. План. Виды Спецификация к листу ЭП-7. Трансформаторы ТМГ-25/10, ТМГ-160/10, ТМГ-250/10. План. Виды. Вариант с кабельной муфтой на стороне низкого напряжения Спецификация к листу ЭП-9. Трансформаторы ТМГ-400/10, ТМГ-630/10. План, Виды. Спецификация к листу ЭП-11. Трансформаторы ТМВГ-250/10. План, Виды. Спецификация к листу ЭП-13. Заземляющие реакторы РЗДСОМ-115/6У1, РЗДСОМ-190/10У1, РЗДСОМ-230/6У1, РЗДСОМ-380/10У1, РЗДС0М-460/6У1. РЗДСОМ-760/10У1, РЗДСОМ-920/6У1 План. Виды. Спецификация к листу ЭП-15. Заземляющие реакторы РЗДСОМ-1520/10У1, РЗДСОМ-310/35У1, РЗДСОМ-620/35У1. План. Виды. Спецификация к листу ЭП-17. Заземляющий реактор РЗДСОМ-1240/35У1 План. Виды. Спецификация к листу ЭП-19. Заземляющие реакторы РЗДПОМ-120/6У1, РЗДПОМ-190/10У1, РЗДПОМ-300/6У1, РЗДПОМ-480/10У1. План. Виды. Заземляющий реактор РЗДПОМ-700/35У1 План. Виды. Спецификация к листам ЭП-21, 22. Заземляющие реакторы РЗДПОМ-300/6У1, РЗДПОМ-460/6У1, РЗДПОМ-480/10У1. План. Виды. Заземляющий реактор РЗДПОМ-760/10У1 План. Виды. Заземляющие реакторы РЗДПОМ-920/6У1, РЗДП0М-1520/10У1. План. Виды. Спецификация к листам ЭП-24, 25, 26. Установка однополюсного разъединителя РДЗ-1-35/1000У1 с приводам ПР-2БУХЛ1 Спецификация к листу ЭП-28. Установка однополюсного разъединителя РДЗ-2-35/1000У1 с приводом ПР-2БУХЛ1 Спецификация к листу ЭП-30. Установка опорных изоляторов ИОС-35-500-01 УХЛ1 Установка опорных изоляторов ИОС-35-500-01 УХЛ1 на марке М-16. Компоновка узла трансформатор - заземляющий реактор 10(6) кВ. Вариант 1. План, вид А. Компоновка узла трансформатор - заземляющий реактор 10(6) кВ. Вариант 2. План, вид А. Компоновка узла трансформатор - заземляющий реактор 10 кВ. Вариант 3. План, вид. Компоновка узла трансформатор - заземляющий реактор 10 кВ. Вариант 4. План, вид. Компоновка узла трансформатор - заземляющий реактор 10(6) кВ. Вариант 5. План, вид А. Компоновка узла трансформатор - заземляющий реактор 10(6) кВ. Вариант 6. План, вид. Компоновка узла трансформатор - заземляющий реактор 10 кВ. Вариант 7. План, вид. Компоновка узла трансформатор - заземляющий реактор 10(6) кВ. Вариант 8. План, вид. Установка одного комплекта заземляющих реакторов 35 кВ (РЗДСОМ+РЗДПОМ) на ПС с трансформаторами 110 кВ. План. Вид А. Установка одного комплекта заземляющих реакторов 35 кВ (РЗДСОМ+РЗДПОМ ) на ПС с трансформаторами 110 кВ. Вид Б. Установка двух комплектов заземляющих реакторов 35 кВ (РЗДСОМ+РЗДПОМ ) на ПС с трансформаторами 110 кВ. План. Вид А. Установка двух комплектов заземляющих реакторов 35 кВ (РЗДСОМ+РЗДПОМ) на ПС с трансформаторами 110 кВ. Вид Б. Установка одного заземляющего реактора 35 кВ РЗДСОМ-1240/35У1 на ПС с трансформаторами 110 кВ. План. Вид А Установка одного заземляющего реактора 35 кВ РЗДСОМ-1240/35У1 на ПС с трансформаторами 110 кВ. Вид Б. Установка двух заземляющих реакторов 35 кВ РЗДСОМ-1240/35У1 на ПС с трансформаторами 110 кВ. План. Вид А. Установка двух заземляющих реакторов 35 кВ РЗДСОМ-1240/35У1 на ПС с трансформаторами 110 кВ. Вид Б Установка одного комплекта заземляющих реакторов 35 кВ (РЗДСОМ+РЗДПОМ ) на ПС с трансформаторами 220 кВ. План. Вид А. Установка одного комплекта заземляющих реакторов 35 кВ (РЗДСОМ+РЗДПОМ ) на ПС с трансформаторами 220 кВ. Вид Б. Установка двух комплектов заземляющих реакторов 35 кВ (РЗДСОМ+РЗДПОМ ) на ПС с трансформаторами 220 кВ. План. Вид А. Установка двух комплектов заземляющих реакторов 35 кВ (РЗДСОМ+РЗДПОМ ) на ПС с трансформаторами 220 кВ. Вид Б Установка одного заземляющего реактора 35 кВ РЗДСОМ-1240/35У2 на ПС с трансформаторами 220 кВ. План. Вид А. Установка одного заземляющего реактора 35 кВ РЗДСОМ-1240/35У2 на ПС с трансформаторами 220 кВ. Вид Б. Установка двух заземляющих реакторов 35 кВ РЗДСОМ-1240/35У2 на ПС с трансформаторами 220 кВ. План. Вид А. Установка двух заземляющих реакторов 35 кВ РЗДСОМ-1240/35У2 на ПС с трансформаторами 220 кВ. Вид Б Шкаф с шинной сборкой 0,4 кВ. Тип I Спецификация к листу ЭП-58. Шкаф с шинной сборкой 0,4 кВ. Тип II Спецификация к листу ЭП-60. Гирлянда изоляторов ПС70Е (ПСД70 ) натяжная одноцепная для одного провода сечением до 240 кв. мм 407-03-642.94-ЭП.И Марки М-1…Л-4. Марки М-5…М-10. Марки М-5…М-10. Спецификация к листу ЭП.И.002. Марки М-11…М-13. Марки М-14, М-15. Марка М-16. |
| Разработан: | Севзапэнергосетьпроект |
| Утверждён: | 05.07.1994 Минтопэнерго России (Russian Federation Mintopenergo 3) |
| Расположен в: |












































































