Информационная система
«Ёшкин Кот»

Скачать базу одним архивом
Скачать обновления
История создания базы
Карта сайта

Скачать Типовой проект 903-1-270.89 Альбом 8. Часть 2. Строительные изделия

Дата актуализации: 10.08.2017

Типовой проект 903-1-270.89

Альбом 8. Часть 2. Строительные изделия

Обозначение: Типовой проект 903-1-270.89
Обозначение англ: 903-1-270.89
Статус:не определен законодательством
Название рус.:Альбом 8. Часть 2. Строительные изделия
Дата добавления в базу:01.09.2013
Дата актуализации:05.05.2017
Дата введения:12.07.1989
Оглавление:Изделие закладное МН1, МН2
Изделие закладное МН3
Изделие закладное МН4
Изделие закладное МН5, МН6, МН8
Изделие закладное МН7
Изделие закладное МН34
Изделие закладное МН9, МН10
Изделие закладное МН11…МН13
Изделие закладное МН14, МН15
Изделие закладное МН21, МН23
Изделие закладное МН16, МН22
Изделие закладное МН17, МН24
Изделие закладное МН18, МН19
Изделие закладное МН20
Изделие закладное МН25, МН33
Изделие закладное МН26
Изделие закладное МН27
Изделие закладное МН28
Изделие закладное МН29
Изделие закладное МН30
Изделие закладное МН31
Изделие закладное МН32
Изделие закладное поз. 3…поз. 5
Изделие закладное поз. 6, поз. 7, поз. 10, поз. 12
Изделие соединительное МС1
Изделие соединительное МС2
Изделие соединительное МС3, МС3а
Изделие соединительное МС4, МС4а
Изделие соединительное МС5, МС6
Изделие соединительное МС9, МС10
Изделие соединительное МС7, МС8
Изделие соединительное МС11…МС13
Изделие соединительное МС14, МС15
Изделие соединительное МС16
Изделие соединительное МС17…С20
Изделие соединительное МС22, МС26, МС27
Изделие соединительное МС23, МС24
Изделие соединительное МС25
Изделие соединительное МС28
Изделие соединительное МС21
Каркас пространственный КП1
Каркас пространственный КП2
Каркас пространственный КП3
Каркас пространственный КП4
Каркас пространственный КП5
Каркас пространственный КП6
Каркас пространственный КП7
Каркас плоский Кр92
Каркас пространственный КП8…КП13
Каркас пространственный КП8…КП13. Сборочный чертеж
Каркас пространственный КП14…КП16
Каркас пространственный КП14…КП16. Сборочный чертеж
Каркас пространственный КП17…КП19
Каркас пространственный КП20
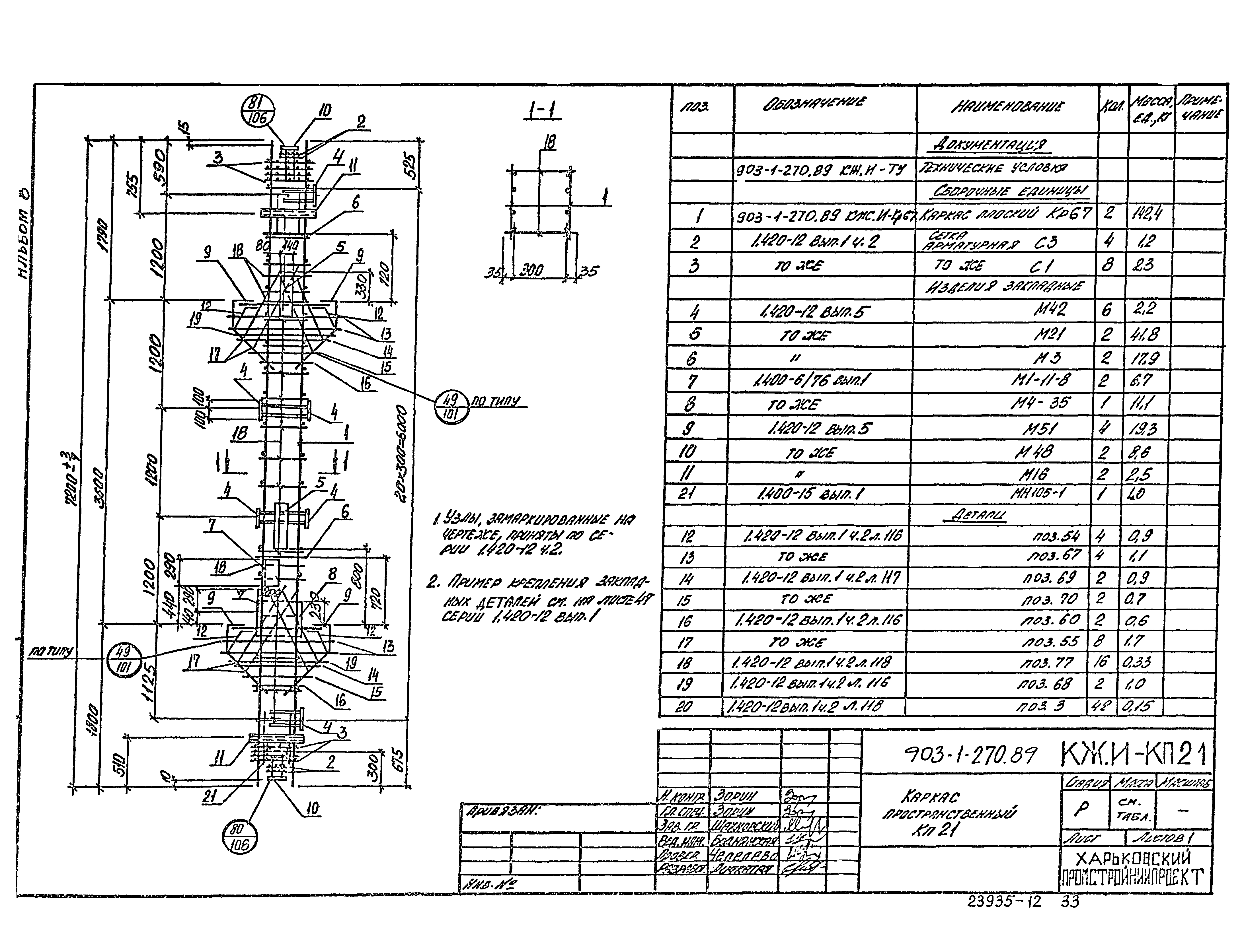
Каркас пространственный КП21
Каркас пространственный КП22
Каркас пространственный КП23
Каркас пространственный КП24
Каркас пространственный КП25
Каркас пространственный КП26
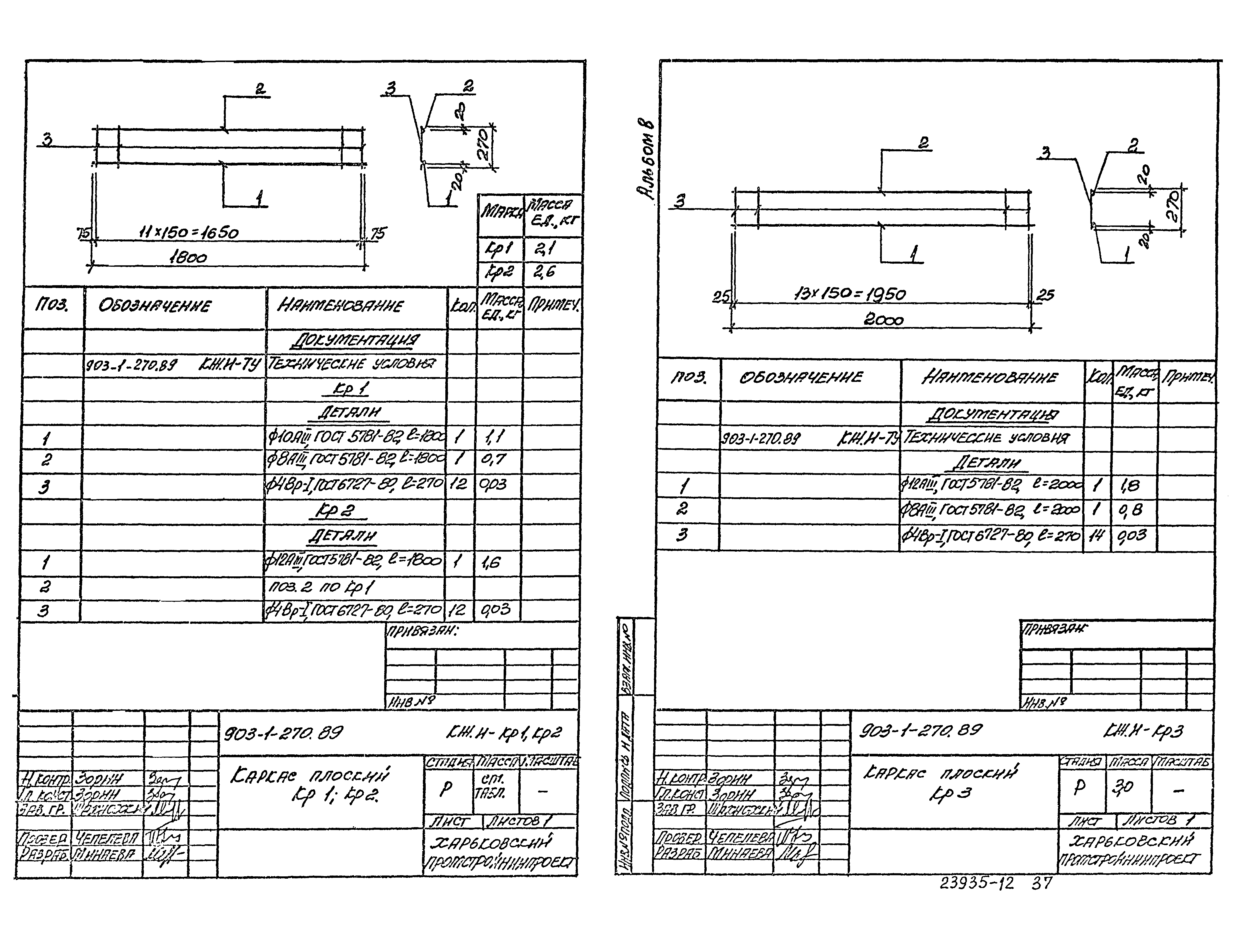
Каркас плоский Кр1, Кр2
Каркас плоский Кр3
Каркас плоский Кр4
Каркас плоский Кр5
Каркас плоский Кр6
Каркас плоский Кр7
Каркас плоский Кр8
Каркас плоский Кр88
Каркас плоский Кр9, Кр10
Каркас плоский Кр11, Кр12
Каркас плоский Кр13, Кр14
Каркас плоский Кр15, Кр16
Каркас плоский Кр17, Кр18
Каркас плоский Кр19, Кр20
Каркас плоский Кр21…Кр62
Каркас плоский Кр21…Кр62. Сборочный чертеж
Каркас плоский Кр63, Кр64
Каркас плоский Кр65
Каркас плоский Кр66
Каркас плоский Кр67
Каркас плоский Кр68, Кр69
Каркас плоский Кр70, Кр71
Каркас плоский Кр72
Каркас плоский Кр87
Каркас плоский Кр73, Кр74
Каркас плоский Кр75
Каркас плоский Кр76, Кр77
Каркас плоский Кр78, Кр79
Каркас плоский Кр80
Каркас плоский Кр81
Каркас плоский Кр82
Каркас плоский Кр83
Каркас плоский Кр84, Кр85
Каркас плоский Кр86
Каркас плоский Кр89, Кр90
Каркас плоский Кр91
Сетка арматурная С1
Сетка арматурная С2
Сетка арматурная С3
Сетка арматурная С4
Сетка арматурная С5
Сетка арматурная С6
Сетка арматурная С7
Сетка арматурная С8
Сетка арматурная С9
Сетка арматурная С10
Сетка арматурная С11
Сетка арматурная С12
Сетка арматурная С13
Сетка арматурная С14
Сетка арматурная С15
Сетка арматурная С16
Сетка арматурная С17
Сетка арматурная С18
Сетка арматурная С19
Сетка арматурная С20
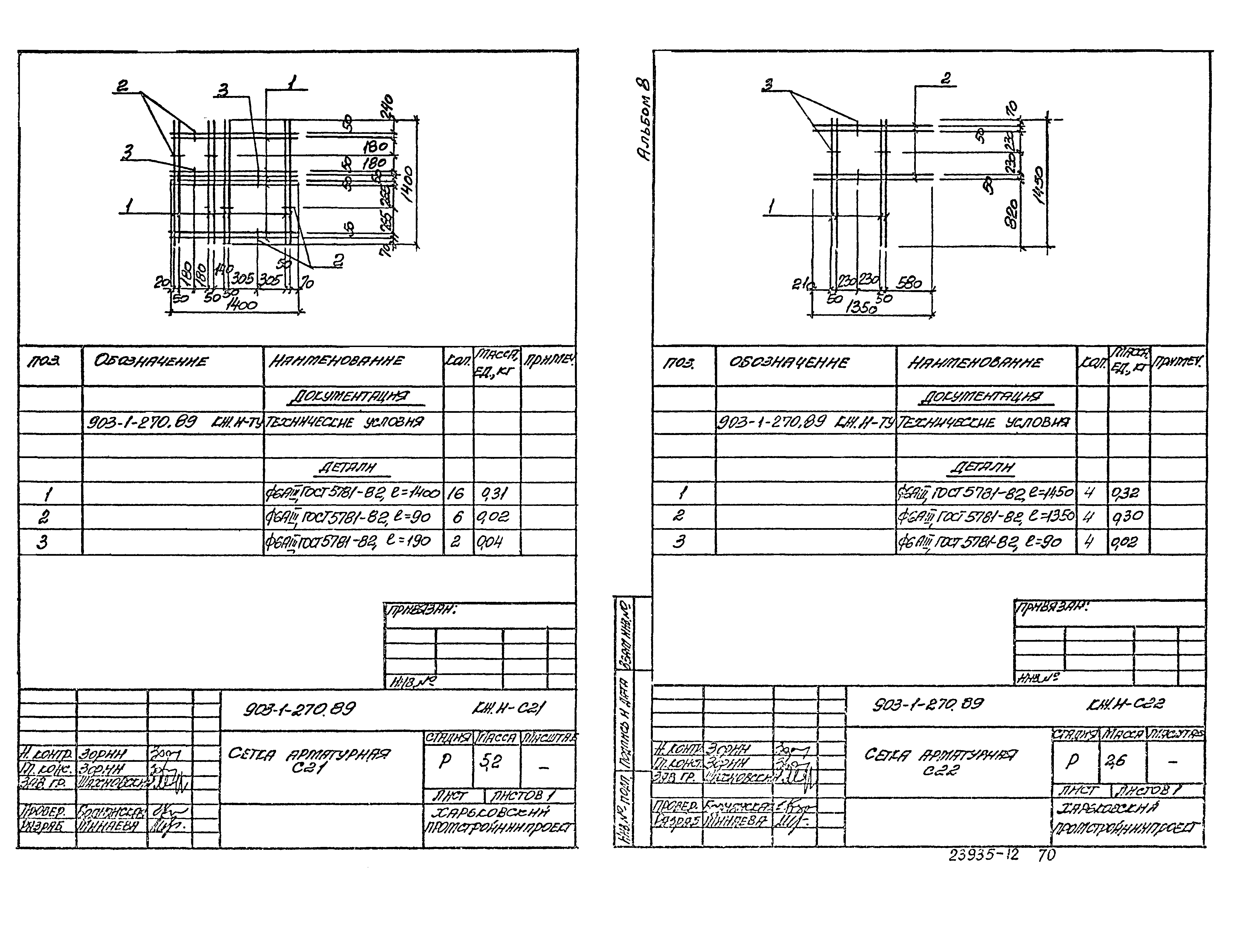
Сетка арматурная С21
Сетка арматурная С22
Сетка арматурная С23
Сетка арматурная С24
Сетка арматурная С25
Сетка арматурная С26
Сетка арматурная С27
Сетка арматурная С28
Сетка арматурная С29
Сетка арматурная С30
Сетка арматурная С31
Сетка арматурная С32
Сетка арматурная С33
Сетка арматурная С34
Сетка арматурная С35
Сетка арматурная С36
Сетка арматурная С37
Сетка арматурная С38
Сетка арматурная С39…С44
Сетка арматурная С45
Сетка арматурная С46, С47
Сетка арматурная С46, С47. Сборочный чертеж
Сетка арматурная С48
Сетка арматурная С49
Сетка арматурная С50
Ограждение площадки 01
Ограждение кровли 02
Ограждение площадки 03
Ограждение площадки 04
Разработан: Харьковский Промстройниипроект
Харьковский Сантехпроект
Утверждён:12.07.1989 Сантехниипроект (10)
Расположен в:Техническая документация Строительство Справочные документы Типовые строительные конструкции, изделия и узлы Общероссийский строительный каталог Промышленные предприятия, здания и сооружения Здания и сооружения санитарно-технические Теплоснабжение Котельные установки Закрытые системы теплоснабжения Топливо - каменные и бурые угли
Заменяет собой:
Типовой проект 903-1-270.89Типовой проект 903-1-270.89Типовой проект 903-1-270.89Типовой проект 903-1-270.89Типовой проект 903-1-270.89Типовой проект 903-1-270.89Типовой проект 903-1-270.89Типовой проект 903-1-270.89Типовой проект 903-1-270.89Типовой проект 903-1-270.89Типовой проект 903-1-270.89Типовой проект 903-1-270.89Типовой проект 903-1-270.89Типовой проект 903-1-270.89Типовой проект 903-1-270.89Типовой проект 903-1-270.89Типовой проект 903-1-270.89Типовой проект 903-1-270.89Типовой проект 903-1-270.89Типовой проект 903-1-270.89Типовой проект 903-1-270.89Типовой проект 903-1-270.89Типовой проект 903-1-270.89Типовой проект 903-1-270.89Типовой проект 903-1-270.89Типовой проект 903-1-270.89Типовой проект 903-1-270.89Типовой проект 903-1-270.89Типовой проект 903-1-270.89Типовой проект 903-1-270.89Типовой проект 903-1-270.89Типовой проект 903-1-270.89Типовой проект 903-1-270.89Типовой проект 903-1-270.89Типовой проект 903-1-270.89Типовой проект 903-1-270.89Типовой проект 903-1-270.89Типовой проект 903-1-270.89Типовой проект 903-1-270.89Типовой проект 903-1-270.89Типовой проект 903-1-270.89Типовой проект 903-1-270.89Типовой проект 903-1-270.89Типовой проект 903-1-270.89Типовой проект 903-1-270.89Типовой проект 903-1-270.89Типовой проект 903-1-270.89Типовой проект 903-1-270.89Типовой проект 903-1-270.89Типовой проект 903-1-270.89Типовой проект 903-1-270.89Типовой проект 903-1-270.89Типовой проект 903-1-270.89Типовой проект 903-1-270.89Типовой проект 903-1-270.89Типовой проект 903-1-270.89Типовой проект 903-1-270.89Типовой проект 903-1-270.89Типовой проект 903-1-270.89Типовой проект 903-1-270.89Типовой проект 903-1-270.89Типовой проект 903-1-270.89Типовой проект 903-1-270.89Типовой проект 903-1-270.89Типовой проект 903-1-270.89Типовой проект 903-1-270.89Типовой проект 903-1-270.89Типовой проект 903-1-270.89Типовой проект 903-1-270.89Типовой проект 903-1-270.89Типовой проект 903-1-270.89Типовой проект 903-1-270.89Типовой проект 903-1-270.89Типовой проект 903-1-270.89Типовой проект 903-1-270.89Типовой проект 903-1-270.89Типовой проект 903-1-270.89Типовой проект 903-1-270.89Типовой проект 903-1-270.89Типовой проект 903-1-270.89Типовой проект 903-1-270.89Типовой проект 903-1-270.89Типовой проект 903-1-270.89Типовой проект 903-1-270.89Типовой проект 903-1-270.89

© 2013 Ёшкин Кот :-) Карта сайта