Информационная система
«Ёшкин Кот»

Скачать базу одним архивом
Скачать обновления
История создания базы
Карта сайта

Скачать Типовой проект 903-1-270.89 Альбом 5. Решения архитектурные. Защита антикоррозийная конструкций. Генеральный план. Организация строительства

Дата актуализации: 10.08.2017

Типовой проект 903-1-270.89

Альбом 5. Решения архитектурные. Защита антикоррозийная конструкций. Генеральный план. Организация строительства

Обозначение: Типовой проект 903-1-270.89
Обозначение англ: 903-1-270.89
Статус:не определен законодательством
Название рус.:Альбом 5. Решения архитектурные. Защита антикоррозийная конструкций. Генеральный план. Организация строительства
Дата добавления в базу:01.09.2013
Дата актуализации:05.05.2017
Дата введения:12.07.1989
Оглавление:Решения архитектурные
   Общие данные
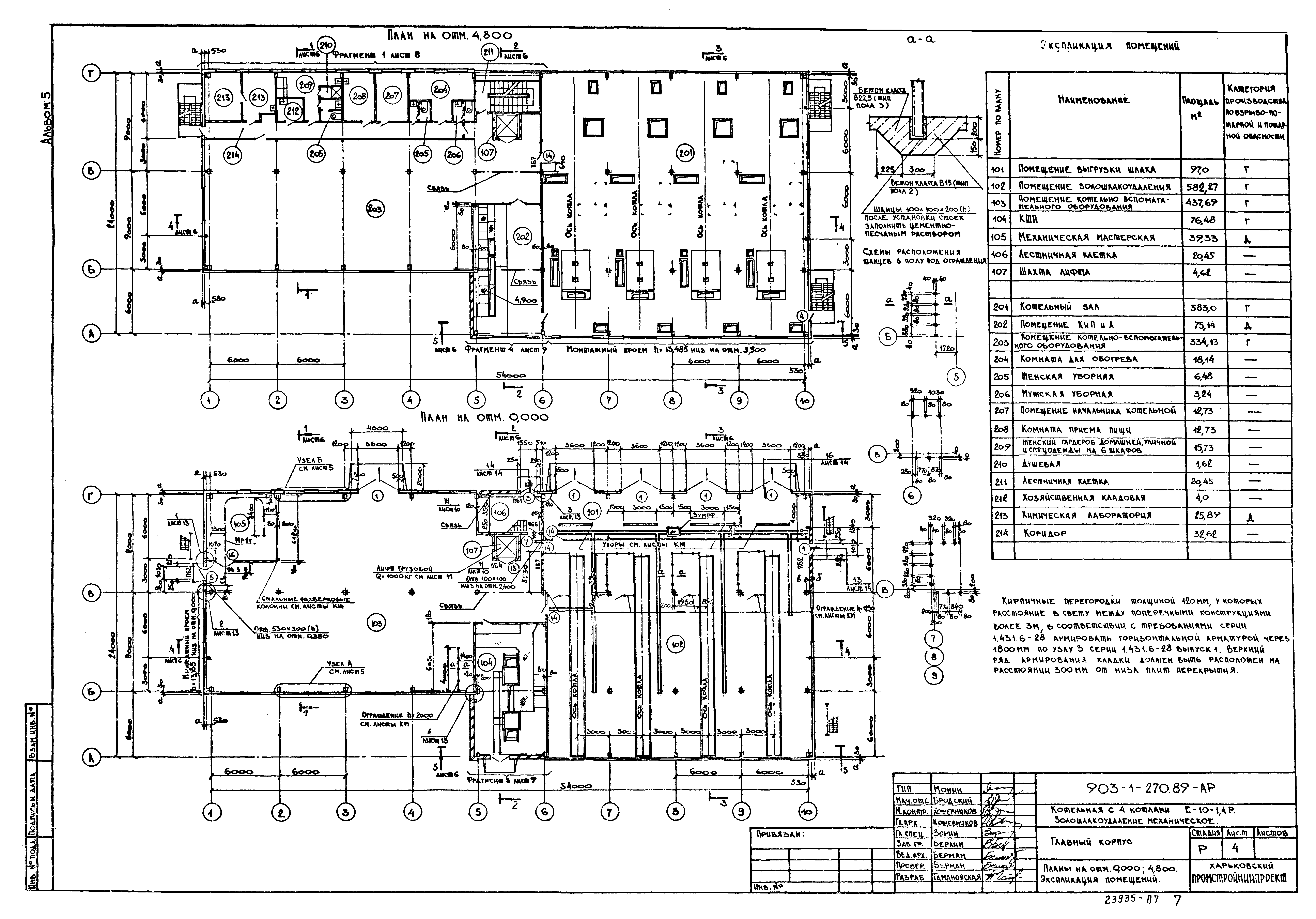
   Главный корпус. Планы на отм. 0.000; 4.800. Эксплуатация помещений
   Главный корпус. Планы на отм. 8.400; 12.200. Узлы А, Б. Эксплуатация помещений
   Главный корпус. Разрезы 1-1…5-5
   Главный корпус. Фасады 1 - 10; 10 - 1; А - Г; Г - А
   Главный корпус. Фрагменты 1, 2. Вид А
   Главный корпус. Фрагменты 3…6. Узел В
   Главный корпус. Разрезы 6-6…9-9. Виды Б, В, Г, Д, Е, Ж, И, К, Л, М. Узлы Г, Д
   Главный корпус. План шахты лифта. План машинного помещения. Разрезы 10-10; 11-11
   Главный корпус. Планы и эксплуатация полов. План кровли
   Главный корпус. Узлы 1…11
   Главный корпус. Узлы 12…21
   Главный корпус. Схемы расположения закладных в полу на отм. 0.000; 4.800; 8.400
   Главный корпус. Ворота ВТ-1-1У. Клапан УКЗ. Узлы 1…8
   Главный корпус. Ворота ВТ-1-1У. Узлы 9, 10
   Главный корпус. Ворота ВТ-1-1У. Узлы 11…14
   Главный корпус. Галерея топливоподачи. Приемно-дробильное отделение. Разрез 12-12. Узлы Е, Ж
   Главный корпус. Галерея топливоподачи. Приемно-дробильное отделение. Фасады 1` - 5,5 - 1`. Разрезы 13-13…15-15
   Главный корпус. Галерея топливоподачи. Приемно-дробильное отделение. Планы полов. План кровли
   Главный корпус. Галерея топливоподачи. Приемно-дробильное отделение. Планы полов. Узлы 22…29
   Главный корпус. Галерея топливоподачи. Приемно-дробильное отделение. Дверь индивидуальная ДИ1
   Главный корпус. Газоходы. Планы газоходов. Разрезы 1-1…20-20. Узел 1
   Главный корпус. Чертеж на заказ стандартного грузового лифта общего назначения
Защита антикоррозионная конструкций
   Общие данные
   План газоходов. Разрезы 1-1; 2-2. Узлы 1, 2
   Схема генерального плана
Организация строительства
   Общие данные
   Схема производства работ по возведению конструкций главного корпуса
   Календарный план производства работ
   Схема стройгенплана
Разработан: Харьковский Промстройниипроект
Харьковский Сантехпроект
Утверждён:12.07.1989 Сантехниипроект (10)
Издан: ЦИТП Госстроя СССР (CITP, Gosstroy (USSR) 1990 г. )
Расположен в:Техническая документация Строительство Справочные документы Типовые строительные конструкции, изделия и узлы Общероссийский строительный каталог Промышленные предприятия, здания и сооружения Здания и сооружения санитарно-технические Теплоснабжение Котельные установки Закрытые системы теплоснабжения Топливо - каменные и бурые угли
Заменяет собой:
Типовой проект 903-1-270.89Типовой проект 903-1-270.89Типовой проект 903-1-270.89Типовой проект 903-1-270.89Типовой проект 903-1-270.89Типовой проект 903-1-270.89Типовой проект 903-1-270.89Типовой проект 903-1-270.89Типовой проект 903-1-270.89Типовой проект 903-1-270.89Типовой проект 903-1-270.89Типовой проект 903-1-270.89Типовой проект 903-1-270.89Типовой проект 903-1-270.89Типовой проект 903-1-270.89Типовой проект 903-1-270.89Типовой проект 903-1-270.89Типовой проект 903-1-270.89Типовой проект 903-1-270.89Типовой проект 903-1-270.89Типовой проект 903-1-270.89Типовой проект 903-1-270.89Типовой проект 903-1-270.89Типовой проект 903-1-270.89Типовой проект 903-1-270.89Типовой проект 903-1-270.89Типовой проект 903-1-270.89Типовой проект 903-1-270.89Типовой проект 903-1-270.89Типовой проект 903-1-270.89Типовой проект 903-1-270.89Типовой проект 903-1-270.89Типовой проект 903-1-270.89Типовой проект 903-1-270.89Типовой проект 903-1-270.89Типовой проект 903-1-270.89Типовой проект 903-1-270.89Типовой проект 903-1-270.89

© 2013 Ёшкин Кот :-) Карта сайта