Информационная система
«Ёшкин Кот»

Скачать базу одним архивом
Скачать обновления
История создания базы
Карта сайта

Скачать Типовой проект 903-1-270.89 Альбом 3. Автоматизация

Дата актуализации: 10.08.2017

Типовой проект 903-1-270.89

Альбом 3. Автоматизация

Обозначение: Типовой проект 903-1-270.89
Обозначение англ: 903-1-270.89
Статус:не определен законодательством
Название рус.:Альбом 3. Автоматизация
Дата добавления в базу:01.09.2013
Дата актуализации:05.05.2017
Дата введения:12.07.1989
Оглавление:Общие данные
Котлоагрегат. Топливо - каменный уголь. Схема функциональная
Котлоагрегат. Топливо - бурый уголь. Схема функциональная
Деаэрационно-питательная установка и общекотельные трубопроводы. Схема функциональная
Общекотельное оборудование. Насосная мокрой уборки котельной. Схемы
Общекотельное оборудование. Насосная мокрой уборки тракта топливоподачи. Схемы
Общекотельное оборудование. Насосная оборотного водоснабжения. Схемы
Общекотельное оборудование. Приточные установки П1 и П2. Схемы
Общекотельное оборудование. Узел управления. Схемы
Водоподогревательная установка. Схема функциональная
Установка горячего водоснабжения. Схема функциональная
Водоподготовительная установка. Схема 1. Схема функциональная
Водоподготовительная установка. Схема 2. Схема функциональная
Водоподготовительная установка. Схема 3 (5). Схема функциональная
Водоподготовительная установка. Схема 4. Схема функциональная
Водоподготовительная установка. Схема 6. Схема функциональная
Котлоагрегат. Схема электрическая принципиальная регулятора топлива
Котлоагрегат. Схема электрическая принципиальная регулятора воздуха
Схема электрическая принципиальная регулятора разрежения
Схема электрическая принципиальная регулятора давления питательной воды
Схема электрическая принципиальная регулятора давления в деаэраторе
Схема электрическая принципиальная регулятора температуры
Схема электрическая принципиальная регулятора уровня в промежуточном баке
Котлоагрегат. Схемы электрические принципиальные питания, защиты и технологической сигнализации
Котлоагрегат. Щит общих замеров. Принципиальная схема питания
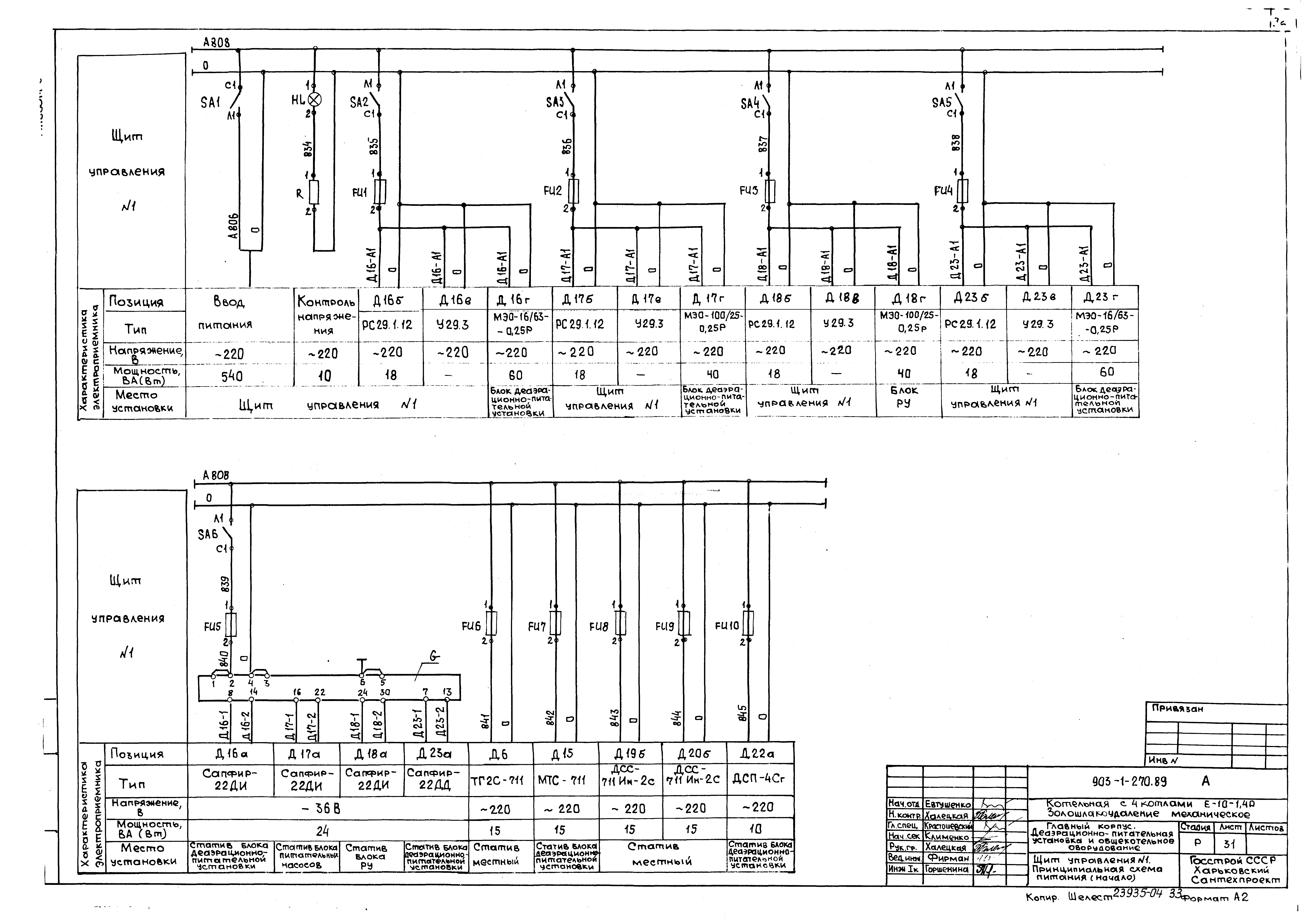
Деаэрационно-питательная установка и общекотельное оборудование. Щит управления №1. Принципиальная схема питания
Водоподогревательная установка. Щит управления №2. Принципиальная схема питания
Установка горячего водоснабжения. Щит управления №3. Принципиальная схема питания
Деаэрационно-питательная установка и общекотельное оборудование. Щит управления №4. Принципиальная схема питания
Схема электрическая принципиальная технологической сигнализации
Котлоагрегат. Схема соединений внешних проводок
Деаэрационно-питательная установка и общекотельное оборудование. Схема соединений внешних проводок
Водоподогревательная установка. Схема соединений внешних проводок
Установка горячего водоснабжения. Схема соединений внешних проводок
Водоподготовительная установка. Схема 1. Схема соединений внешних проводок
Водоподготовительная установка. Схема 2. Схема соединений внешних проводок
Водоподготовительная установка. Схема 3 (4), 5 (6). Схема соединений внешних проводок
Котлоагрегат. Щит управления котлоагрегата ЩКЕ. Схема подключения
Котлоагрегат. Щит общих замеров котлоагрегата. Схема подключения
Деаэрационно-питательная установка и общекотельное оборудование. Щиты управления №1, №4. Схема подключения
Водоподогревательная установка. Щит управления №2. Схема подключения
Установка горячего водоснабжения. Щит управления №3. Схема подключения
Котлоагрегат. План расположения средств автоматизации, кабельных и трубных проводок
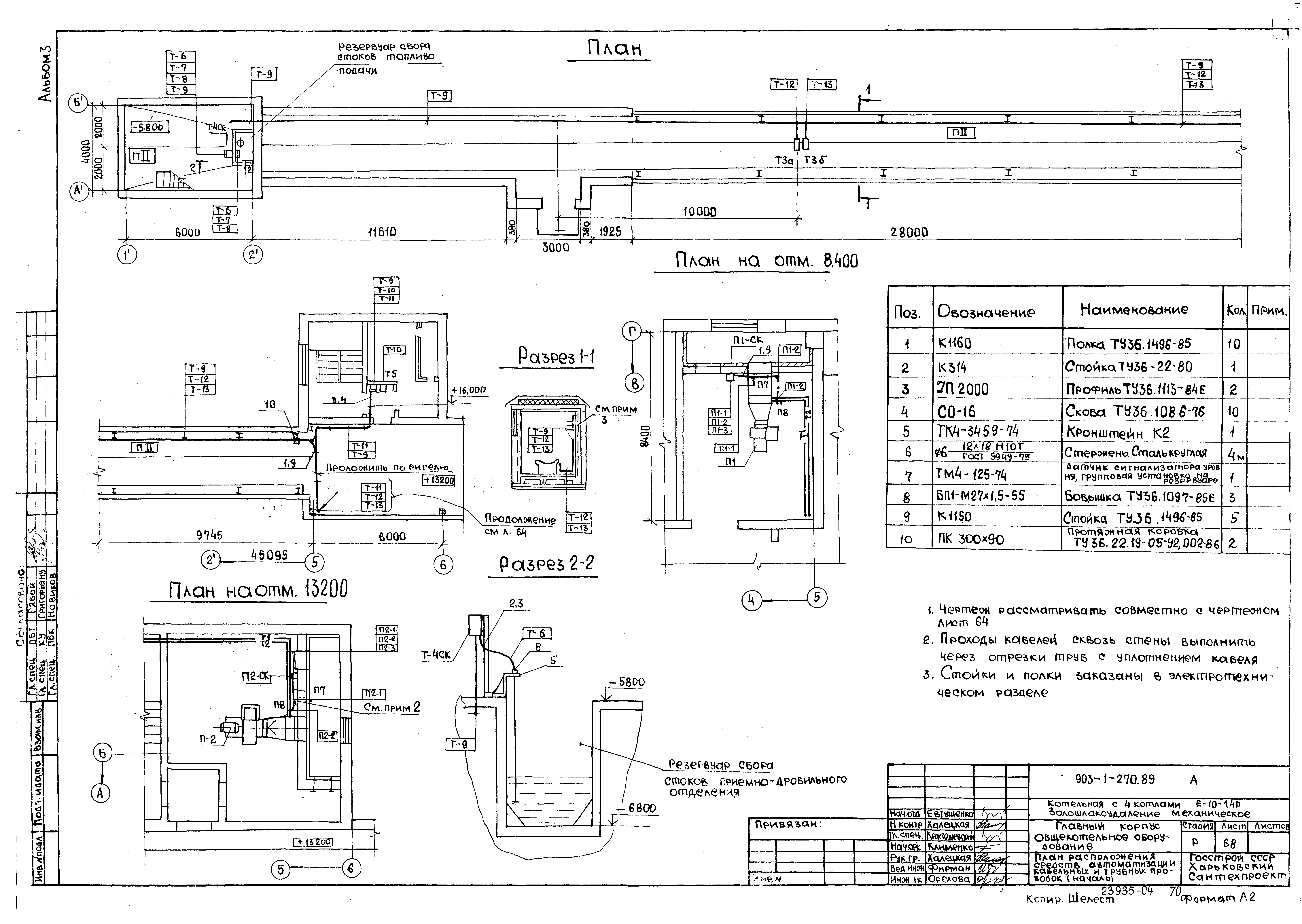
Общекотельное оборудование. План расположения средств автоматизации, кабельных и трубных проводок
Деаэрационно-питательная установка и общекотельные трубопроводы. План расположения средств автоматизации, кабельных и трубных проводок
Водоподогревательная установка. План расположения средств автоматизации, кабельных и трубных проводок
Установка горячего водоснабжения. План расположения средств автоматизации, кабельных и трубных проводок
Водоподготовительная установка. Схема 1. План расположения средств автоматизации, кабельных и трубных проводок
Водоподготовительная установка. Схема 2. План расположения средств автоматизации, кабельных и трубных проводок
Водоподготовительная установка. Схемы 3 (4), 5 (6). План расположения средств автоматизации, кабельных и трубных проводок
План расположения средств автоматизации, кабельных и трубных проводок
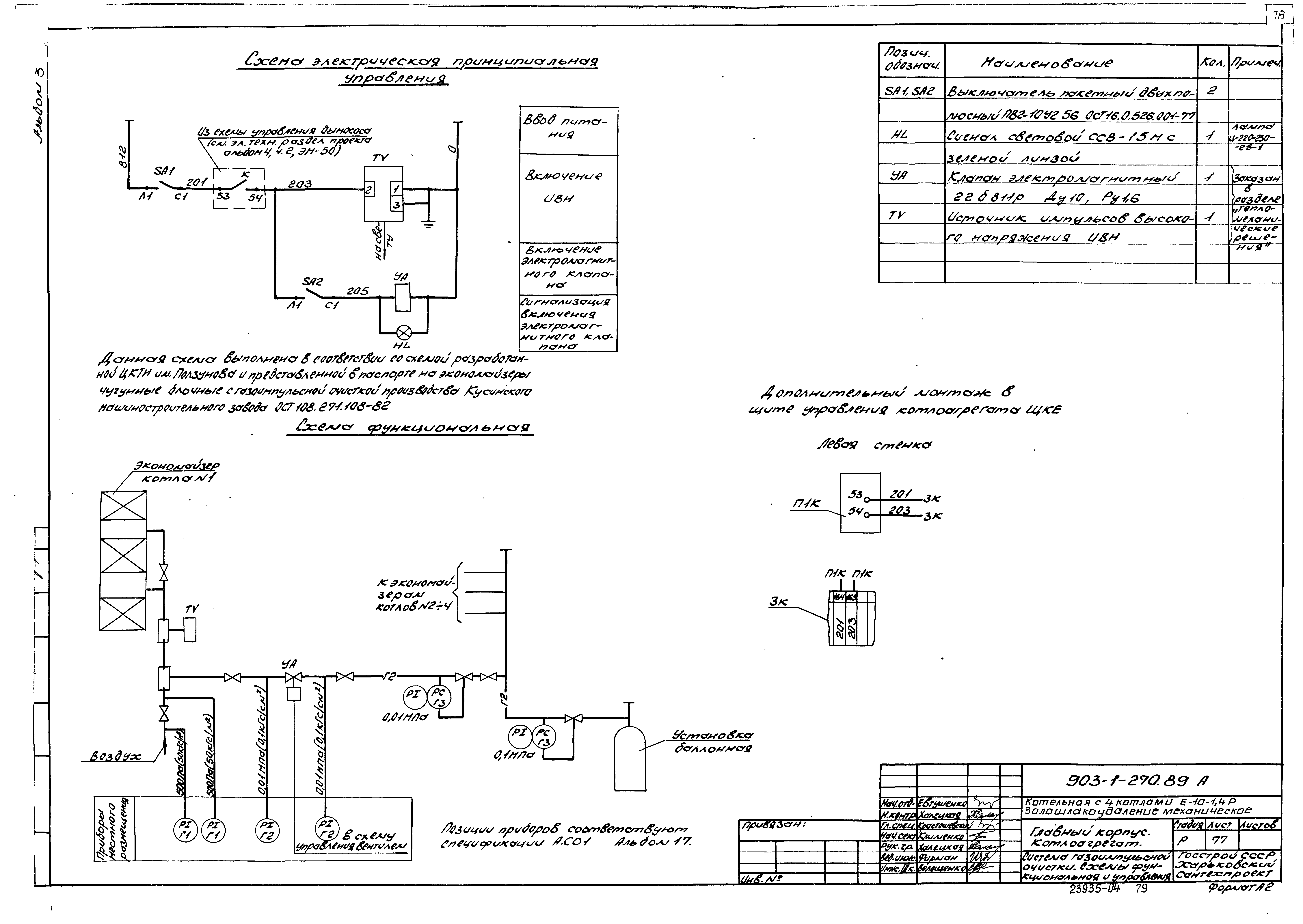
Система газоимпульсной очистки. Схемы функциональная и управления
Система газоимпульсной очистки. Схема соединений. План расположения
Разработан: Харьковский Промстройниипроект
Харьковский Сантехпроект
Утверждён:12.07.1989 Сантехниипроект (10)
Расположен в:Техническая документация Строительство Справочные документы Типовые строительные конструкции, изделия и узлы Общероссийский строительный каталог Промышленные предприятия, здания и сооружения Здания и сооружения санитарно-технические Теплоснабжение Котельные установки Закрытые системы теплоснабжения Топливо - каменные и бурые угли
Заменяет собой:
Типовой проект 903-1-270.89Типовой проект 903-1-270.89Типовой проект 903-1-270.89Типовой проект 903-1-270.89Типовой проект 903-1-270.89Типовой проект 903-1-270.89Типовой проект 903-1-270.89Типовой проект 903-1-270.89Типовой проект 903-1-270.89Типовой проект 903-1-270.89Типовой проект 903-1-270.89Типовой проект 903-1-270.89Типовой проект 903-1-270.89Типовой проект 903-1-270.89Типовой проект 903-1-270.89Типовой проект 903-1-270.89Типовой проект 903-1-270.89Типовой проект 903-1-270.89Типовой проект 903-1-270.89Типовой проект 903-1-270.89Типовой проект 903-1-270.89Типовой проект 903-1-270.89Типовой проект 903-1-270.89Типовой проект 903-1-270.89Типовой проект 903-1-270.89Типовой проект 903-1-270.89Типовой проект 903-1-270.89Типовой проект 903-1-270.89Типовой проект 903-1-270.89Типовой проект 903-1-270.89Типовой проект 903-1-270.89Типовой проект 903-1-270.89Типовой проект 903-1-270.89Типовой проект 903-1-270.89Типовой проект 903-1-270.89Типовой проект 903-1-270.89Типовой проект 903-1-270.89Типовой проект 903-1-270.89Типовой проект 903-1-270.89Типовой проект 903-1-270.89Типовой проект 903-1-270.89Типовой проект 903-1-270.89Типовой проект 903-1-270.89Типовой проект 903-1-270.89Типовой проект 903-1-270.89Типовой проект 903-1-270.89Типовой проект 903-1-270.89Типовой проект 903-1-270.89Типовой проект 903-1-270.89Типовой проект 903-1-270.89Типовой проект 903-1-270.89Типовой проект 903-1-270.89Типовой проект 903-1-270.89Типовой проект 903-1-270.89Типовой проект 903-1-270.89Типовой проект 903-1-270.89Типовой проект 903-1-270.89Типовой проект 903-1-270.89Типовой проект 903-1-270.89Типовой проект 903-1-270.89Типовой проект 903-1-270.89Типовой проект 903-1-270.89Типовой проект 903-1-270.89Типовой проект 903-1-270.89Типовой проект 903-1-270.89Типовой проект 903-1-270.89Типовой проект 903-1-270.89Типовой проект 903-1-270.89Типовой проект 903-1-270.89Типовой проект 903-1-270.89Типовой проект 903-1-270.89Типовой проект 903-1-270.89Типовой проект 903-1-270.89Типовой проект 903-1-270.89Типовой проект 903-1-270.89Типовой проект 903-1-270.89Типовой проект 903-1-270.89Типовой проект 903-1-270.89Типовой проект 903-1-270.89Типовой проект 903-1-270.89

© 2013 Ёшкин Кот :-) Карта сайта