Информационная система
«Ёшкин Кот»

Скачать базу одним архивом
Скачать обновления
История создания базы
Карта сайта

Скачать Типовой проект 903-1-270.89 Альбом 2. Часть 2. Решения тепломеханические. Деаэрационно-питательная установка. Общекотельные трубопроводы. Водоподогревательная установка. Установка горячего водоснабжения. Водоподготовительная установка

Дата актуализации: 10.08.2017

Типовой проект 903-1-270.89

Альбом 2. Часть 2. Решения тепломеханические. Деаэрационно-питательная установка. Общекотельные трубопроводы. Водоподогревательная установка. Установка горячего водоснабжения. Водоподготовительная установка

Обозначение: Типовой проект 903-1-270.89
Обозначение англ: 903-1-270.89
Статус:не определен законодательством
Название рус.:Альбом 2. Часть 2. Решения тепломеханические. Деаэрационно-питательная установка. Общекотельные трубопроводы. Водоподогревательная установка. Установка горячего водоснабжения. Водоподготовительная установка
Дата добавления в базу:01.09.2013
Дата актуализации:05.05.2017
Дата введения:12.07.1989
Оглавление:ТП 903-1-270.89 ТМ2 Общие данные (начало)
ТП 903-1-270.89 ТМ2 Общие данные (окончание)
ТП 903-1-270.89 ТМ2 Схема трубопроводов
ТП 903-1-270.89 ТМ2 Трубопроводы. План на отм. 0.000
ТП 903-1-270.89 ТМ2 Трубопроводы. План на отм. 8.400. Разрезы 3-3;4-4
ТП 903-1-270.89 ТМ2 Трубопроводы 1-1
ТП 903-1-270.89 ТМ2 Трубопроводы 2-2
ТП 903-1-270.89 ТМ2 Трубопроводы. Спецификация (начало)
ТП 903-1-270.89 ТМ2 Трубопроводы. Спецификация (продолжение)
ТП 903-1-270.89 ТМ2 Трубопроводы. Спецификация (окончание)
ТП 903-1-270.89 ТМ2 Схема присоединения трубопроводов к калориферам. Спецификация
ТП 903-1-270.89 ТМ2 Схема отбора проб. Спецификация
ТП 903-1-270.89 ТМ3 Общие данные (начало)
ТП 903-1-270.89 ТМ3 Общие данные (окончание)
ТП 903-1-270.89 ТМ3 Схема трубопроводов
ТП 903-1-270.89 ТМ3 Трубопроводы. План на отм. 0.000 и 4.800
ТП 903-1-270.89 ТМ3 Трубопроводы. Разрезы 1-1; 2-2
ТП 903-1-270.89 ТМ3 Трубопроводы. Спецификация (начало)
ТП 903-1-270.89 ТМ3 Трубопроводы. Спецификация (продолжение)
ТП 903-1-270.89 ТМ4 Общие данные (начало)
ТП 903-1-270.89 ТМ4 Общие данные (окончание)
ТП 903-1-270.89 ТМ4 Схема трубопроводов
ТП 903-1-270.89 ТМ4 Трубопроводы. План на отм. 0.000 и 12.000
ТП 903-1-270.89 ТМ4 Трубопроводы. План на отм. 8.400. Спецификация (начало)
ТП 903-1-270.89 ТМ4 Трубопроводы. Разрез 1-1
ТП 903-1-270.89 ТМ4 Трубопроводы. Разрез 2-2
ТП 903-1-270.89 ТМ4 Трубопроводы. Разрез 3-3
ТП 903-1-270.89 ТМ4 Трубопроводы. Спецификация (продолжение)
ТП 903-1-270.89 ТМ4 Трубопроводы. Спецификация (окончание)
ТП 903-1-270.89 ТМ4 Наружные трубопроводы. План на отм.-0.150. Разрезы 1-1;2-2;3-3
ТП 903-1-270.89 ТМ4 Наружные трубопроводы. Спецификация
ТП 903-1-270.89 ТМ5 Общие данные (начало)
ТП 903-1-270.89 ТМ5 Общие данные (продолжение)
ТП 903-1-270.89 ТМ5 Общие данные (окончание)
ТП 903-1-270.89 ТМ5 Схема 1
ТП 903-1-270.89 ТМ5 Схема 1. Трубопроводы. План на отм. 0.000, 4.800
ТП 903-1-270.89 ТМ5 Схема 1. Трубопроводы. Разрезы 1-1; 2-2; 3-3
ТП 903-1-270.89 ТМ5 Схема 1. Трубопроводы. Спецификация (начало)
ТП 903-1-270.89 ТМ5 Схема 1. Трубопроводы. Спецификация (окончание)
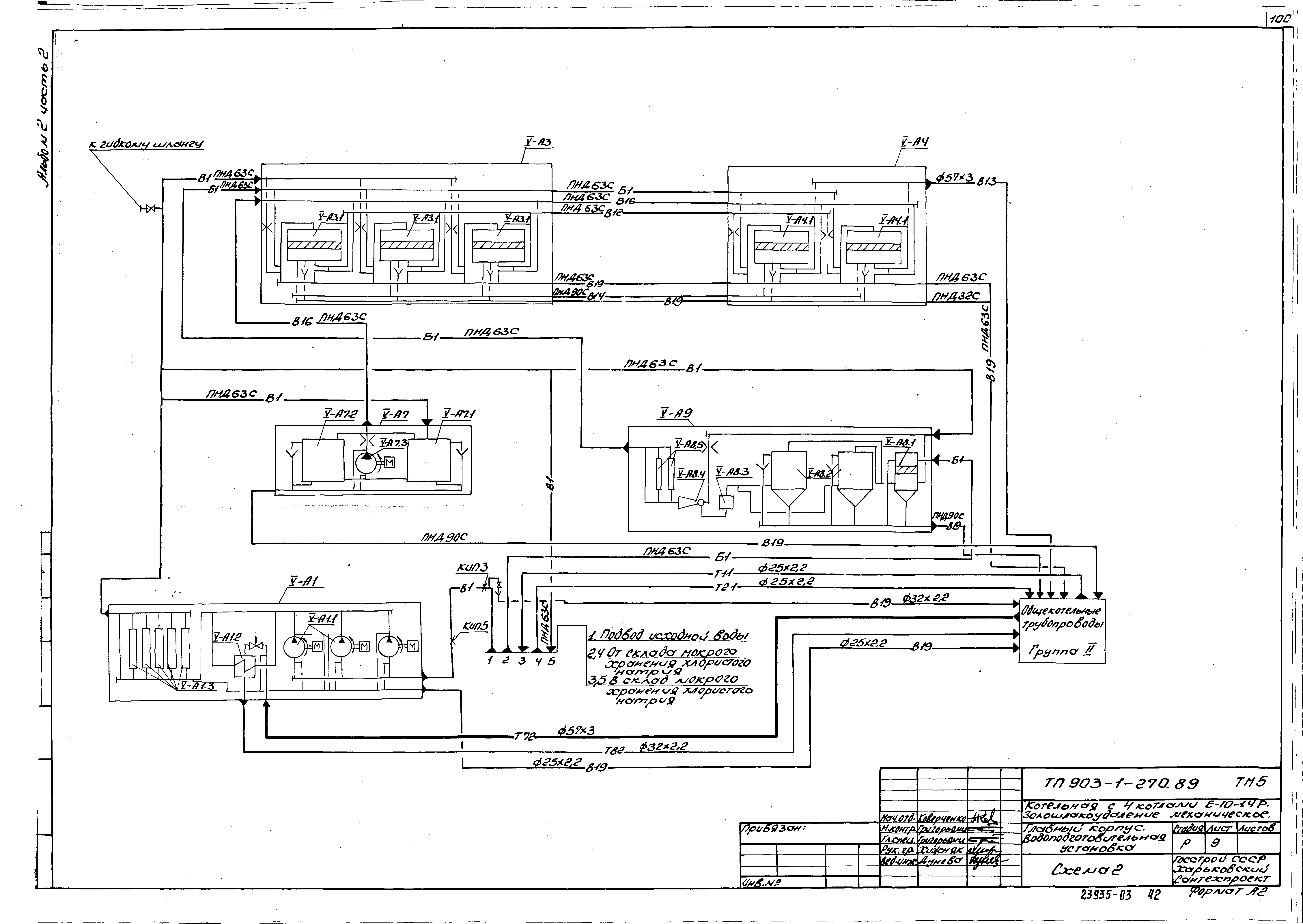
ТП 903-1-270.89 ТМ5 Схема2
ТП 903-1-270.89 ТМ5 Схема 2. Трубопроводы. План на отм. 0.000, 4.800
ТП 903-1-270.89 ТМ5 Схема 2. Трубопроводы. Разрезы 1-1; 2-2; 3-3
ТП 903-1-270.89 ТМ5 Схема 2. Трубопроводы. Спецификация (начало)
ТП 903-1-270.89 ТМ5 Схема 2. Трубопроводы. Спецификация (окончание)
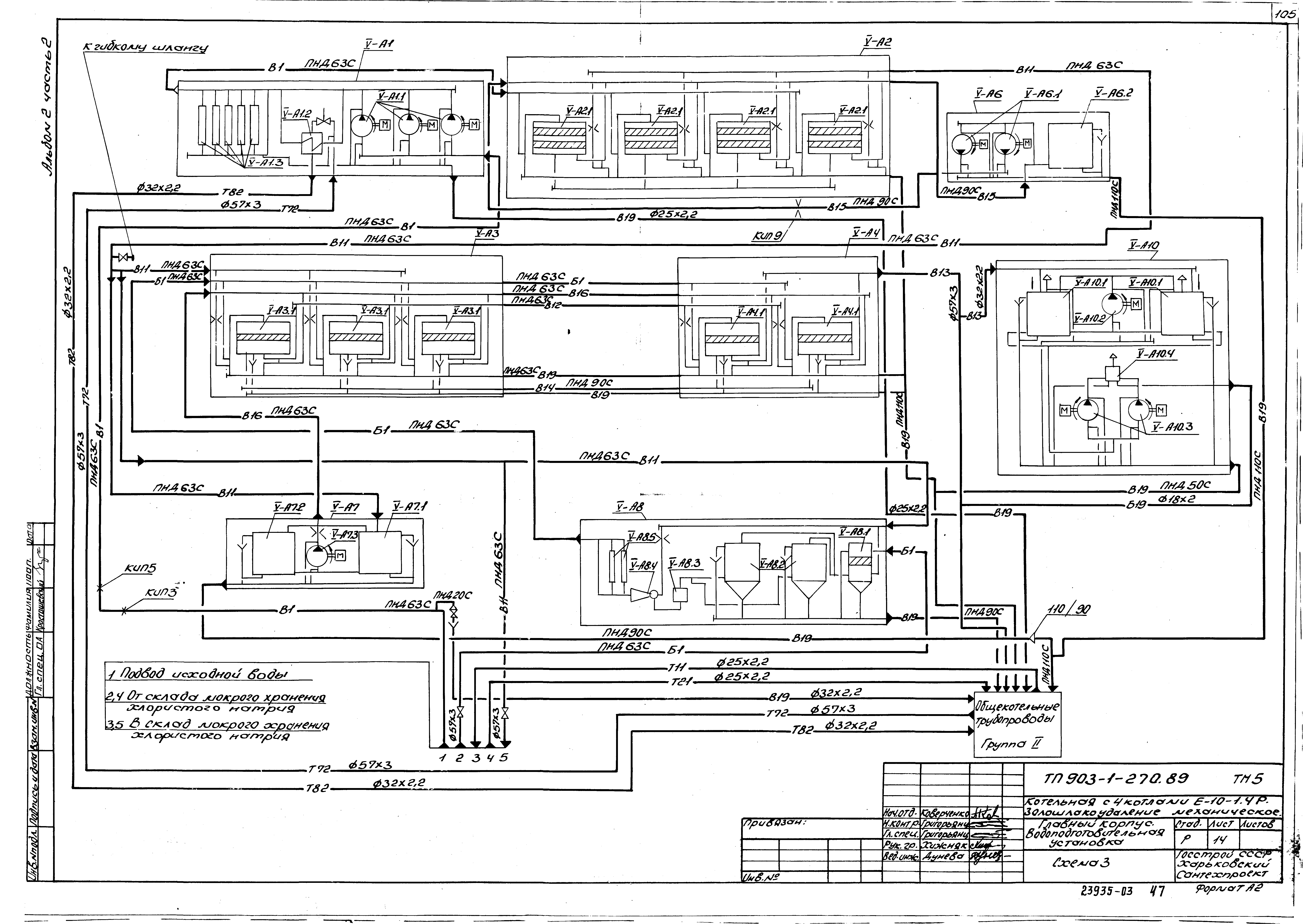
ТП 903-1-270.89 ТМ5 Схема 3
ТП 903-1-270.89 ТМ5 Схема 4
ТП 903-1-270.89 ТМ5 Схемы 3 и 4. Трубопроводы. План на отм. 4.800. Разрез 1-1. Спецификация
ТП 903-1-270.89 ТМ5 Схема 5
ТП 903-1-270.89 ТМ5 Схема 6
ТП 903-1-270.89 ТМ5 Схемы 5 и 6. Трубопроводы. План на отм. 0.000 и 4.800
ТП 903-1-270.89 ТМ5 Схемы 5 и 6. Трубопроводы. Разрез 1-1
ТП 903-1-270.89 ТМ5 Схемы 5 и 6. Трубопроводы. Спецификация
ТП 903-1-270.89 ТМ5 Наружные трубопроводы. План на отм.-0.150. Разрез 1-1. Спецификация
Разработан: Харьковский Промстройниипроект
Харьковский Сантехпроект
Утверждён:12.07.1989 Сантехниипроект (10)
Расположен в:Техническая документация Строительство Справочные документы Типовые строительные конструкции, изделия и узлы Общероссийский строительный каталог Промышленные предприятия, здания и сооружения Здания и сооружения санитарно-технические Теплоснабжение Котельные установки Закрытые системы теплоснабжения Топливо - каменные и бурые угли
Заменяет собой:
Типовой проект 903-1-270.89Типовой проект 903-1-270.89Типовой проект 903-1-270.89Типовой проект 903-1-270.89Типовой проект 903-1-270.89Типовой проект 903-1-270.89Типовой проект 903-1-270.89Типовой проект 903-1-270.89Типовой проект 903-1-270.89Типовой проект 903-1-270.89Типовой проект 903-1-270.89Типовой проект 903-1-270.89Типовой проект 903-1-270.89Типовой проект 903-1-270.89Типовой проект 903-1-270.89Типовой проект 903-1-270.89Типовой проект 903-1-270.89Типовой проект 903-1-270.89Типовой проект 903-1-270.89Типовой проект 903-1-270.89Типовой проект 903-1-270.89Типовой проект 903-1-270.89Типовой проект 903-1-270.89Типовой проект 903-1-270.89Типовой проект 903-1-270.89Типовой проект 903-1-270.89Типовой проект 903-1-270.89Типовой проект 903-1-270.89Типовой проект 903-1-270.89Типовой проект 903-1-270.89Типовой проект 903-1-270.89Типовой проект 903-1-270.89Типовой проект 903-1-270.89Типовой проект 903-1-270.89Типовой проект 903-1-270.89Типовой проект 903-1-270.89Типовой проект 903-1-270.89Типовой проект 903-1-270.89Типовой проект 903-1-270.89Типовой проект 903-1-270.89Типовой проект 903-1-270.89Типовой проект 903-1-270.89Типовой проект 903-1-270.89Типовой проект 903-1-270.89Типовой проект 903-1-270.89Типовой проект 903-1-270.89Типовой проект 903-1-270.89Типовой проект 903-1-270.89Типовой проект 903-1-270.89Типовой проект 903-1-270.89Типовой проект 903-1-270.89Типовой проект 903-1-270.89Типовой проект 903-1-270.89Типовой проект 903-1-270.89Типовой проект 903-1-270.89

© 2013 Ёшкин Кот :-) Карта сайта