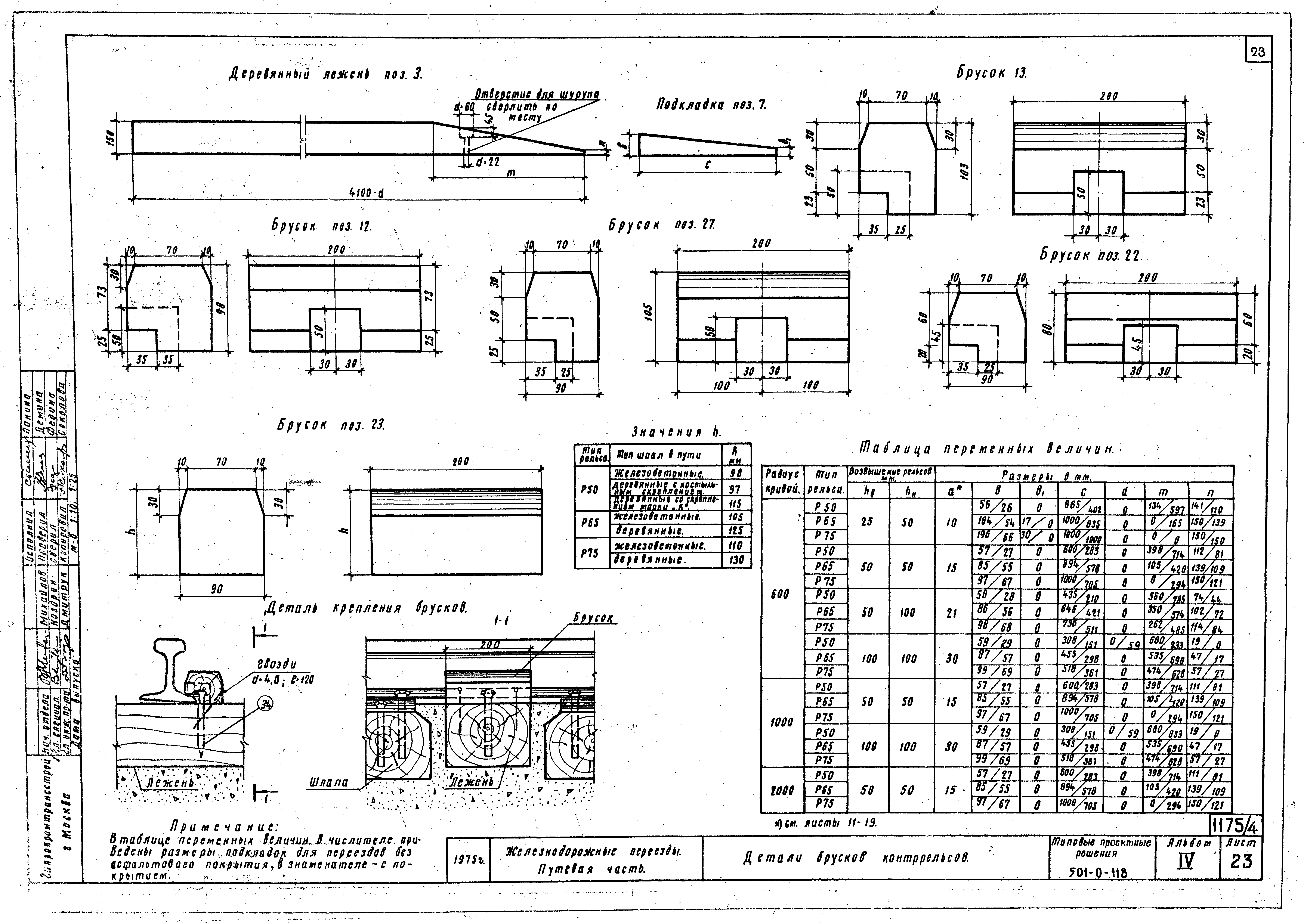
Скачать Типовые проектные решения 501-0-118 Альбом IV. Устройство переездов на кривыхДата актуализации: 10.08.2017 Типовые проектные решения 501-0-118
Альбом IV. Устройство переездов на кривых| Обозначение: | Типовые проектные решения 501-0-118 | | Обозначение англ: | 501-0-118 | | Статус: | cправочные материалы, мп, тпр | | Название рус.: | Альбом IV. Устройство переездов на кривых | | Дата добавления в базу: | 01.09.2013 | | Дата актуализации: | 05.05.2017 | | Разработан: | Гипропромтрансстрой
| | Утверждён: | 21.12.1978 МПС (Ministry of Railroads М-41470)
| | Расположен в: |
|
                      
|