Информационная система
«Ёшкин Кот»

Скачать базу одним архивом
Скачать обновления
История создания базы
Карта сайта

Скачать Типовой проект 903-9-13сп.86 Альбом IV. Передвижная стремянка. Рабочие чертежи (из ТП 903-9-12сп.86)

Дата актуализации: 10.08.2017

Типовой проект 903-9-13сп.86

Альбом IV. Передвижная стремянка. Рабочие чертежи (из ТП 903-9-12сп.86)

Обозначение: Типовой проект 903-9-13сп.86
Обозначение англ: 903-9-13сп.86
Статус:не определен законодательством
Название рус.:Альбом IV. Передвижная стремянка. Рабочие чертежи (из ТП 903-9-12сп.86)
Дата добавления в базу:01.09.2013
Дата актуализации:05.05.2017
Дата введения:18.06.1985
Оглавление:ТП 903-9-12сп.86 Титульный лист
ТП 903-9-12сп.86 Содержание
ТП 903-9-12сп.86 1132.00.000 Стремянка передвижная
ТП 903-9-12сп.86 1132.00.000 СБ Стремянка передвижная. Сборочный чертеж
ТП 903-9-12сп.86 1132.00.000 ВС Ведомость спецификаций
ТП 903-9-12сп.86 1132.00.000 ВП Ведомость покупных изделий
ТП 903-9-12сп.86 1132.00.000 ТУ Технические условия
ТП 903-9-12сп.86 1132.00.000 ПС Паспорт
ТП 903-9-12сп.86 1132.00.001 Прокладка
ТП 903-9-12сп.86 1132.00.002 Прокладка
ТП 903-9-12сп.86 1132.00.003 Прокладка
ТП 903-9-12сп.86 1132.00.004 Бобышка
ТП 903-9-12сп.86 1132.00.005 Болт
ТП 903-9-12сп.86 1132.00.006 Прокладка
ТП 903-9-12сп.86 1132.00.009 Прокладка
ТП 903-9-12сп.86 1132.00.011 Подкос
ТП 903-9-12сп.86 1132.00.100 Болт специальный
ТП 903-9-12сп.86 1132.00.100 СБ Болт специальный. Сборочный чертеж
ТП 903-9-12сп.86 1132.00.101 Флажок
ТП 903-9-12сп.86 1132.00.102 Шайба
ТП 903-9-12сп.86 1132.00.103 Звено переходное
ТП 903-9-12сп.86 1132.00.104 Болт
ТП 903-9-12сп.86 1132.00.200 Кронштейн
ТП 903-9-12сп.86 1132.00.201 Ребро
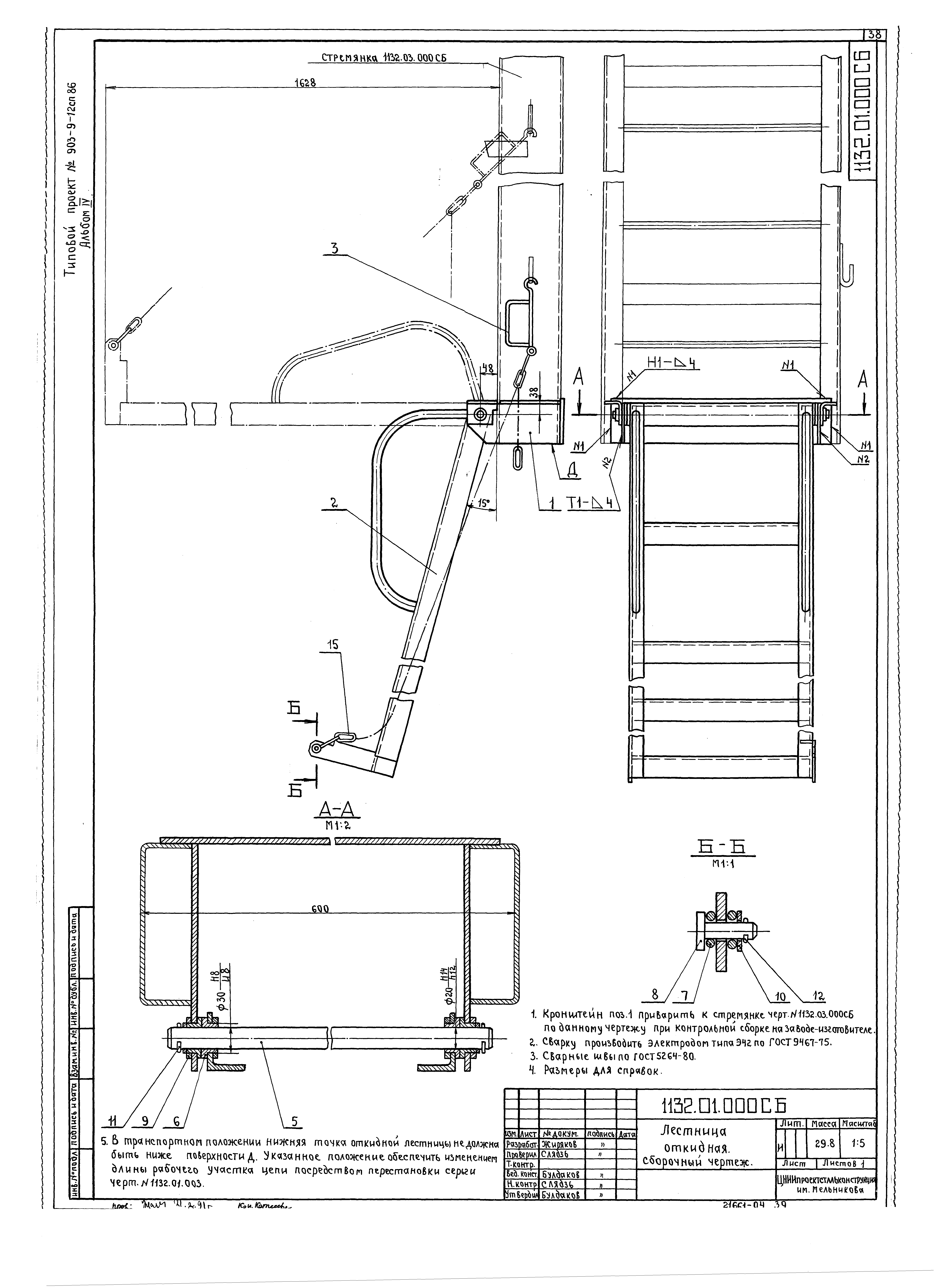
ТП 903-9-12сп.86 1132.01.000 Лестница откидная
ТП 903-9-12сп.86 1132.01.000 СБ Лестница откидная. Сборочный чертеж
ТП 903-9-12сп.86 1132.01.001 Ось
ТП 903-9-12сп.86 1132.01.002 Втулка
ТП 903-9-12сп.86 1132.01.003 Серьга
ТП 903-9-12сп.86 1132.01.004 Палец
ТП 903-9-12сп.86 1132.01.005 Шайба
ТП 903-9-12сп.86 1132.01.100 Кронштейн
ТП 903-9-12сп.86 1132.01.100 СБ Кронштейн. Сборочный чертеж
ТП 903-9-12сп.86 1132.01.102 Площадка
ТП 903-9-12сп.86 1132.01.103 Уголок
ТП 903-9-12сп.86 1132.01.104 Ребро
ТП 903-9-12сп.86 1132.01.200 Лестница
ТП 903-9-12сп.86 1132.01.200 СБ Сборочный чертеж
ТП 903-9-12сп.86 1132.01.201 Стойка
ТП 903-9-12сп.86 1132.01.204 Поручень
ТП 903-9-12сп.86 1132.01.205 Накладка
ТП 903-9-12сп.86 1132.01.206 Кронштейн
ТП 903-9-12сп.86 1132.01.300 Зацеп
ТП 903-9-12сп.86 1132.01.301 Ручка
ТП 903-9-12сп.86 1132.01.302 Крюк
ТП 903-9-12сп.86 1132.02.000 Ограждение
ТП 903-9-12сп.86 1132.02.000 СБ Ограждение. Сборочный чертеж
ТП 903-9-12сп.86 1132.02.001 Хомут
ТП 903-9-12сп.86 1132.02.002 Хомут
ТП 903-9-12сп.86 1132.03.000 Стремянка
ТП 903-9-12сп.86 1132.03.000 СБ Стремянка. Сборочный чертеж
ТП 903-9-12сп.86 1132.03.001 Хомут
ТП 903-9-12сп.86 1132.03.002 Хомут
ТП 903-9-12сп.86 1132.03.003 Скоба
ТП 903-9-12сп.86 1132.03.100 Лестница
ТП 903-9-12сп.86 1132.03.100 СБ Лестница. Сборочный чертеж
ТП 903-9-12сп.86 1132.03.101 Ступенька
ТП 903-9-12сп.86 1132.03.102 Подкладка
ТП 903-9-12сп.86 1132.03.103 Уголок
ТП 903-9-12сп.86 1132.03.200 Площадка
ТП 903-9-12сп.86 1132.03.200 СБ Сборочный чертеж
ТП 903-9-12сп.86 1132.03.201 Ребро
ТП 903-9-12сп.86 1132.04.000 Ограничитель
ТП 903-9-12сп.86 1132.04.000 СБ Ограничитель. Сборочный чертеж
ТП 903-9-12сп.86 1132.04.001 Ребро
ТП 903-9-12сп.86 1132.04.002 Уголок
ТП 903-9-12сп.86 1132.05.000 Ролик горизонтальный
ТП 903-9-12сп.86 1132.05.000 СБ Ролик горизонтальный. Сборочный чертеж
ТП 903-9-12сп.86 1132.05.001 Ролик
ТП 903-9-12сп.86 1132.05.002 Гайка
ТП 903-9-12сп.86 1132.05.003 Шайба
ТП 903-9-12сп.86 1132.05.004 Ось
ТП 903-9-12сп.86 1132.05.100 Кронштейн
ТП 903-9-12сп.86 1132.05.100 СБ Кронштейн. Сборочный чертеж
ТП 903-9-12сп.86 1132.05.101 Ребро
ТП 903-9-12сп.86 1132.05.103 Ребро
ТП 903-9-12сп.86 1132.06.000 Площадка выдвижная
ТП 903-9-12сп.86 1132.06.000 СБ Площадка выдвижная. Сборочный чертеж
ТП 903-9-12сп.86 1132.06.001 Заклепка
ТП 903-9-12сп.86 1132.06.002 Болт сферический
ТП 903-9-12сп.86 1132.06.003 Рукоятка
ТП 903-9-12сп.86 1132.06.100 Рама
ТП 903-9-12сп.86 1132.06.100 СБ Рама. Сборочный чертеж
ТП 903-9-12сп.86 1132.06.101 Ребро
ТП 903-9-12сп.86 1132.06.102 Косынка
ТП 903-9-12сп.86 1132.06.103 Планка
ТП 903-9-12сп.86 1132.07.000 Фиксатор
ТП 903-9-12сп.86 1132.07.000 СБ Фиксатор. Сборочный чертеж
ТП 903-9-12сп.86 1132.07.001 Кольцо
ТП 903-9-12сп.86 1132.07.002 Рукоятка
ТП 903-9-12сп.86 1132.07.003 Винт
ТП 903-9-12сп.86 1132.07.004 Плита
ТП 903-9-12сп.86 1132.07.005 Шайба
ТП 903-9-12сп.86 1132.07.006 Прокладка
ТП 903-9-12сп.86 1132.08.000 Ролик горизонтальный
ТП 903-9-12сп.86 1132.08.000 СБ Ролик горизонтальный. Сборочный чертеж
ТП 903-9-12сп.86 1132.08.001 Прокладка
ТП 903-9-12сп.86 1132.08.002 Ось
ТП 903-9-12сп.86 1132.08.100 Кронштейн
ТП 903-9-12сп.86 1132.08.100 СБ Кронштейн. Сборочный чертеж
ТП 903-9-12сп.86 1132.08.101 Щека
ТП 903-9-12сп.86 1132.11.000 Каретка
ТП 903-9-12сп.86 1132.11.000 СБ Каретка. Сборочный чертеж
ТП 903-9-12сп.86 1132.11.001 Плита
ТП 903-9-12сп.86 1132.11.100 Ролик опорный
ТП 903-9-12сп.86 1132.11.100 СБ Ролик опорный. Сборочный чертеж
ТП 903-9-12сп.86 1132.11.101 Фланец
ТП 903-9-12сп.86 1132.11.102 Ось
ТП 903-9-12сп.86 1132.11.103 Крышка
ТП 903-9-12сп.86 1132.11.104 Крышка
ТП 903-9-12сп.86 1132.11.105 Прокладка
ТП 903-9-12сп.86 1132.11.106 Кольцо
ТП 903-9-12сп.86 1132.11.107 Винт
ТП 903-9-12сп.86 1132.11.108 Болт
ТП 903-9-12сп.86 1132.11.109 Гайка
ТП 903-9-12сп.86 1132.11.111 Пробка
ТП 903-9-12сп.86 1132.11.112 Шайба
ТП 903-9-12сп.86 1132.11.113 Втулка
ТП 903-9-12сп.86 1132.11.114 Ролик
ТП 903-9-12сп.86 1132.11.120 Масленка
ТП 903-9-12сп.86 1132.11.121 Корпус
ТП 903-9-12сп.86 1132.11.122 Втулка
ТП 903-9-12сп.86 1132.11.123 Втулка
ТП 903-9-12сп.86 1132.11.124 Винт
ТП 903-9-12сп.86 1132.11.200 Ролик нижний
ТП 903-9-12сп.86 1132.11.200 СБ Ролик нижний. Сборочный чертеж
ТП 903-9-12сп.86 1132.11.201 Ось
ТП 903-9-12сп.86 1132.11.202 Ролик
ТП 903-9-12сп.86 1132.11.203 Болт
ТП 903-9-12сп.86 1132.11.300 Шестерня паразитная
ТП 903-9-12сп.86 1132.11.300 СБ Шестерня паразитная. Сборочный чертеж
ТП 903-9-12сп.86 1132.11.301 Шестерня
ТП 903-9-12сп.86 1132.11.400 Привод ручной
ТП 903-9-12сп.86 1132.11.400 СБ Привод ручной. Сборочный чертеж
ТП 903-9-12сп.86 1132.11.401 Шпонка
ТП 903-9-12сп.86 1132.11.402 Фланец
ТП 903-9-12сп.86 1132.11.403 Ось
ТП 903-9-12сп.86 1132.11.404 Ось
ТП 903-9-12сп.86 1132.11.405 Труба
ТП 903-9-12сп.86 1132.11.406 Шестерня ведущая
ТП 903-9-12сп.86 1132.11.407 Эксцентрик
ТП 903-9-12сп.86 1132.11.408 Штырь
ТП 903-9-12сп.86 1132.11.420 Рычаг
ТП 903-9-12сп.86 1132.11.421 Ребро
ТП 903-9-12сп.86 1132.11.422 Планка
ТП 903-9-12сп.86 1132.11.500 Фиксатор
ТП 903-9-12сп.86 1132.11.500 СБ Фиксатор. Сборочный чертеж
ТП 903-9-12сп.86 1132.12.000 Кронштейн
ТП 903-9-12сп.86 1132.12.000 СБ Кронштейн. Сборочный чертеж
ТП 903-9-12сп.86 1132.12.001 Упор
ТП 903-9-12сп.86 1132.12.004 Ребро
ТП 903-9-12сп.86 1132.12.005 Ребро
ТП 903-9-12сп.86 1132.12.006 Косынка
ТП 903-9-12сп.86 1132.12.008 Раскос
Разработан: ЦНИИпроектстальконструкция
Утверждён:18.06.1985 Минэнерго СССР (USSR Minenergo 58)
Расположен в:Техническая документация Строительство Справочные документы Типовые строительные конструкции, изделия и узлы Общероссийский строительный каталог Промышленные предприятия, здания и сооружения Здания и сооружения санитарно-технические Теплоснабжение Здания и сооружения разные
Типовой проект 903-9-13сп.86Типовой проект 903-9-13сп.86Типовой проект 903-9-13сп.86Типовой проект 903-9-13сп.86Типовой проект 903-9-13сп.86Типовой проект 903-9-13сп.86Типовой проект 903-9-13сп.86Типовой проект 903-9-13сп.86Типовой проект 903-9-13сп.86Типовой проект 903-9-13сп.86Типовой проект 903-9-13сп.86Типовой проект 903-9-13сп.86Типовой проект 903-9-13сп.86Типовой проект 903-9-13сп.86Типовой проект 903-9-13сп.86Типовой проект 903-9-13сп.86Типовой проект 903-9-13сп.86Типовой проект 903-9-13сп.86Типовой проект 903-9-13сп.86Типовой проект 903-9-13сп.86Типовой проект 903-9-13сп.86Типовой проект 903-9-13сп.86Типовой проект 903-9-13сп.86Типовой проект 903-9-13сп.86Типовой проект 903-9-13сп.86Типовой проект 903-9-13сп.86Типовой проект 903-9-13сп.86Типовой проект 903-9-13сп.86Типовой проект 903-9-13сп.86Типовой проект 903-9-13сп.86Типовой проект 903-9-13сп.86Типовой проект 903-9-13сп.86Типовой проект 903-9-13сп.86Типовой проект 903-9-13сп.86Типовой проект 903-9-13сп.86Типовой проект 903-9-13сп.86Типовой проект 903-9-13сп.86Типовой проект 903-9-13сп.86Типовой проект 903-9-13сп.86Типовой проект 903-9-13сп.86Типовой проект 903-9-13сп.86Типовой проект 903-9-13сп.86Типовой проект 903-9-13сп.86Типовой проект 903-9-13сп.86Типовой проект 903-9-13сп.86Типовой проект 903-9-13сп.86Типовой проект 903-9-13сп.86Типовой проект 903-9-13сп.86Типовой проект 903-9-13сп.86Типовой проект 903-9-13сп.86Типовой проект 903-9-13сп.86Типовой проект 903-9-13сп.86Типовой проект 903-9-13сп.86Типовой проект 903-9-13сп.86Типовой проект 903-9-13сп.86Типовой проект 903-9-13сп.86Типовой проект 903-9-13сп.86Типовой проект 903-9-13сп.86Типовой проект 903-9-13сп.86Типовой проект 903-9-13сп.86Типовой проект 903-9-13сп.86Типовой проект 903-9-13сп.86Типовой проект 903-9-13сп.86Типовой проект 903-9-13сп.86Типовой проект 903-9-13сп.86Типовой проект 903-9-13сп.86Типовой проект 903-9-13сп.86Типовой проект 903-9-13сп.86Типовой проект 903-9-13сп.86Типовой проект 903-9-13сп.86Типовой проект 903-9-13сп.86Типовой проект 903-9-13сп.86Типовой проект 903-9-13сп.86Типовой проект 903-9-13сп.86Типовой проект 903-9-13сп.86Типовой проект 903-9-13сп.86Типовой проект 903-9-13сп.86Типовой проект 903-9-13сп.86Типовой проект 903-9-13сп.86Типовой проект 903-9-13сп.86Типовой проект 903-9-13сп.86Типовой проект 903-9-13сп.86Типовой проект 903-9-13сп.86Типовой проект 903-9-13сп.86

© 2013 Ёшкин Кот :-) Карта сайта