Информационная система
«Ёшкин Кот»

Скачать базу одним архивом
Скачать обновления
История создания базы
Карта сайта

Скачать Типовой проект 901-5-38.87 Альбом 3. Сборные железобетонные конструкции и арматурные изделия

Дата актуализации: 10.08.2017

Типовой проект 901-5-38.87

Альбом 3. Сборные железобетонные конструкции и арматурные изделия

Обозначение: Типовой проект 901-5-38.87
Обозначение англ: 901-5-38.87
Статус:не определен законодательством
Название рус.:Альбом 3. Сборные железобетонные конструкции и арматурные изделия
Дата добавления в базу:01.09.2013
Дата актуализации:05.05.2017
Дата введения:01.05.1987
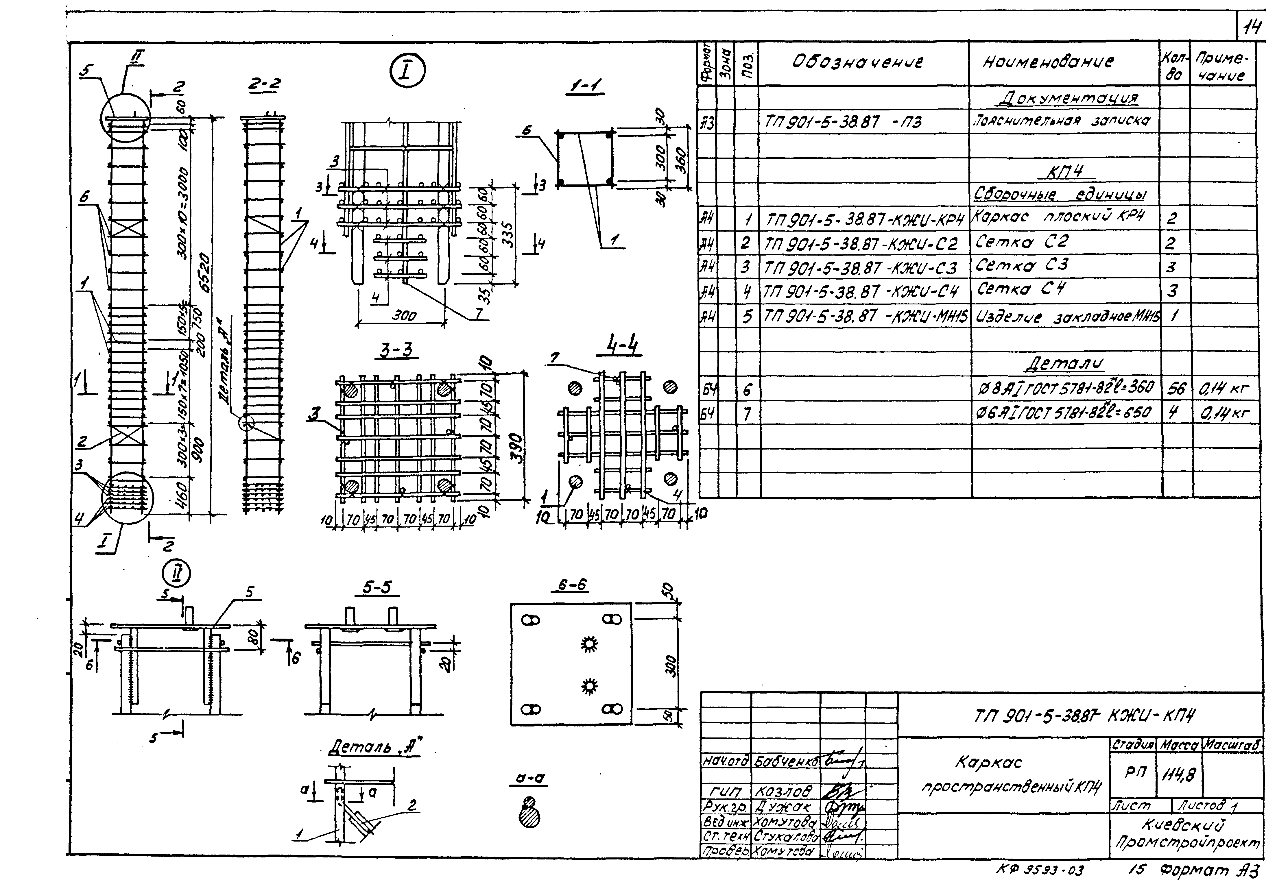
Оглавление:Содержание
Пояснительная записка
Колонна железобетонная К1
Колонна железобетонная К2
Колонна железобетонная К3
Колонна железобетонная К4
Колонны железобетонные. Узлы К1…К4
Каркас пространственный КП1
Каркас пространственный КП2
Каркас пространственный КП3
Каркас пространственный КП4
Каркас плоский КР1
Каркас плоский КР2
Каркас плоский КР3
Каркас плоский КР4
Сетка С1
Сетка С2
Сетка С3
Сетка С4
Изделие закладное МН1
Изделие закладное МН2
Изделие закладное МН3
Изделие закладное МН4
Изделие закладное МН5
Изделие закладное МН6
Изделие закладное МН7
Изделие закладное МН8
Изделие закладное МН9
Изделие закладное МН10
Изделие закладное МН11
Изделие закладное МН12
Изделие закладное МН13
Изделие закладное МН14
Изделие закладное МН15
Изделие соединительное МС1
Изделие соединительное МС2
Изделие соединительное МС3
Изделие соединительное МС4
Изделия соединительные МС5, МС6
Изделие соединительное МС7
Разработан: Киевский Промстройпроект
Утверждён:29.04.1986 Госстрой СССР (Государственный комитет Совета Министров СССР по делам строительства) (USSR Gosstroy А4-25)
Расположен в:Техническая документация Строительство Справочные документы Типовые строительные конструкции, изделия и узлы Общероссийский строительный каталог Промышленные предприятия, здания и сооружения Здания и сооружения санитарно-технические Водоснабжение Водонапорные башни Железобетонные
Типовой проект 901-5-38.87Типовой проект 901-5-38.87Типовой проект 901-5-38.87Типовой проект 901-5-38.87Типовой проект 901-5-38.87Типовой проект 901-5-38.87Типовой проект 901-5-38.87Типовой проект 901-5-38.87Типовой проект 901-5-38.87Типовой проект 901-5-38.87Типовой проект 901-5-38.87Типовой проект 901-5-38.87Типовой проект 901-5-38.87Типовой проект 901-5-38.87Типовой проект 901-5-38.87Типовой проект 901-5-38.87Типовой проект 901-5-38.87Типовой проект 901-5-38.87Типовой проект 901-5-38.87Типовой проект 901-5-38.87Типовой проект 901-5-38.87Типовой проект 901-5-38.87Типовой проект 901-5-38.87Типовой проект 901-5-38.87Типовой проект 901-5-38.87Типовой проект 901-5-38.87Типовой проект 901-5-38.87Типовой проект 901-5-38.87Типовой проект 901-5-38.87Типовой проект 901-5-38.87Типовой проект 901-5-38.87

© 2013 Ёшкин Кот :-) Карта сайта