| ||||||||||||||||||||||||||
Скачать Серия 3.820-6 Выпуск 1/80. Портальные оголовки трубчатых сооружений и открытых регуляторовДата актуализации: 10.08.2017
|
| Обозначение: | Серия 3.820-6 |
| Обозначение англ: | Series 3.820-6 |
| Статус: | не определен законодательством |
| Название рус.: | Выпуск 1/80. Портальные оголовки трубчатых сооружений и открытых регуляторов |
| Дата добавления в базу: | 01.09.2013 |
| Дата актуализации: | 05.05.2017 |
| Дата введения: | 01.08.1980 |
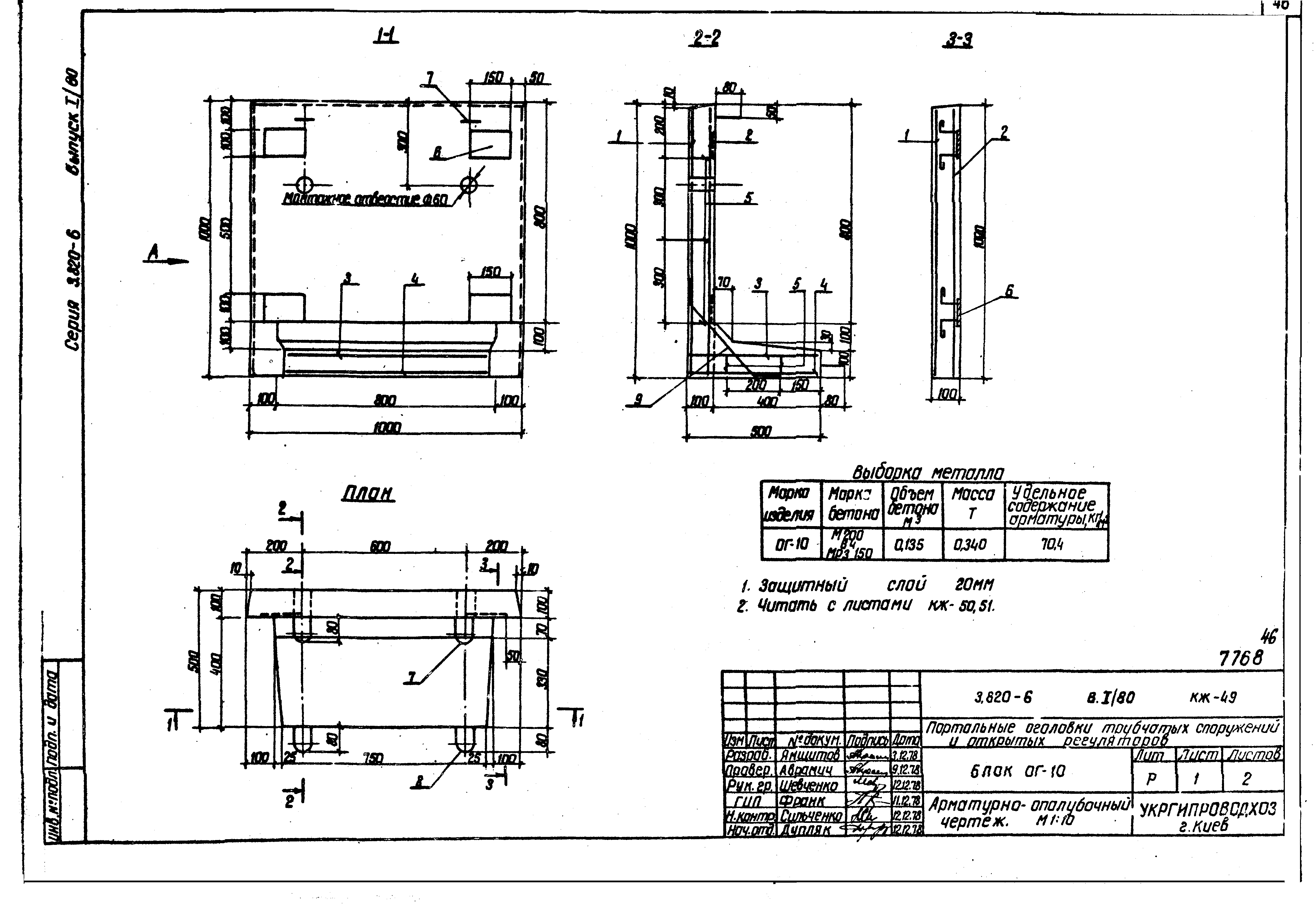
| Оглавление: | Содержание альбома Пояснительная записка Технико-зкономические показатели Блок ОП-6. Арматурно-опалубочный чертеж Блок ОП-6. То же Блок ОП-6. Спецификация Блок ОП-8. Арматурно-опалубочный чертеж Блок ОП-8. То же Блок ОП-8. Спецификация Блок ОП-10. Арматурно-опалубочный чертеж Блок ОП-10. То же Блок ОП-10. Спецификация Блок ДР-6 (Д-6). Арматурно-опалубочный чертеж Блок ДР-6 (Д-6). То же Блок ДР-6 (Д-6). Спецификация Блок ДР-8 (Д-8). Арматурно-опалубочный чертеж Блок ДР-8 (Д-8). То же Блок ДР-8 (Д-8). Спецификация Блок ДР-10 (Д-10). Арматурно-опалубочный чертеж Блок ДР-10 (Д-10). То же Блок ДР-10 (Д-10). Спецификация Блок ДР-12 (Д-12). Арматурно-опалубочный чертеж Блок ДР-12 (Д-12). То же Блок ДР-12 (Д-12). Спецификация Блок ДР-14 (Д-14). Арматурно-опалубочный чертеж Блок ДР-14 (Д-14). То же Блок ДР-14 (Д-14). Спецификация Блок ДР-15 (Д-15). Арматурно-опалубочный чертеж Блок ДР-15 (Д-15). То же Блок ДР-15 (Д-15). Спецификация Блок ДР-16 (Д-16). Арматурно-опалубочный чертеж Блок ДР-16 (Д-16). То же Блок ДР-16 (Д-16). Спецификация Блок ОП-8А. Арматурно-опалубочный чертеж Блок ОП-8А. То же Блок ОП-8А. Спецификация Блок ОП-10А. Арматурно-опалубочный чертеж Блок ОП-10А. То же Блок ОП-10А. Спецификация Блок ДП-12. Арматурно-опалубочный чертеж Блок ДП-12. То же Блок ДП-12. Спецификация Блок ДП-14. Арматурно-опалубочный чертеж Блок ДП-14. То же Блок ДП-14. Спецификация Блок ДП-15. Арматурно-опалубочный чертеж Блок ДП-15. То же Блок ДП-15. Спецификация Блок ДП-16. Арматурно-опалубочный чертеж Блок ДП-16. То же Блок ДП-16. Спецификация Блок ОГ-10. Арматурно-опалубочный чертеж Блок ОГ-10. То же Блок ОГ-10. Спецификация Блок ОГ-18. Арматурно-опалубочный чертеж Блок ОГ-18. То же Блок ОГ-18. Спецификация Блок ОГ-23. Арматурно-опалубочный чертеж Блок ОГ-23. То же Блок ОГ-23. Спецификация Блок ОГ-28. Арматурно-опалубочный чертеж Блок ОГ-28. То же Блок ОГ-28. Спецификация Блок ОГ-33. Арматурно-опалубочный чертеж Блок ОГ-33. То же Блок ОГ-33. Спецификация Блок ОП-6. Сетка арматурная С(8/6 - 200/200)/(1800 х 5800) Блок ОП-6. Сетка арматурная С(8/6 - 200/200)/(800 х 1400) Блок ОП-8. Сетка арматурная С(8/6 - 200/200)/(1800 х 5800) Блок ОП-8А. Сетка арматурная С(8/6 - 200/200)/(1800 х 5800) Блок ОП-8. Сетка арматурная С(8/6 - 200/200)/(400 х 1400) Блок ОП-10. Сетка арматурная С(8/6 - 200/200)/(1800 х 5800) Блок ОП-10. Сетка арматурная С(8/6 - 200/200)/(300 х 1600) Блок ДР-6 (Д-6). Сетка арматурная С(6/6 - 200/200)/(1600 х 1800) Блок ДР-6 (Д-6). Сетка арматурная С(6/6 - 200/200)/(400 х 1600) Блок ДР-8 (Д-8). Сетка арматурная С(6/6 - 200/200)/(400 х 1600) Блок ДР-6 (Д-6). Сетка арматурная С(6/6 - 200/200)/(400 х 1400) Блок ДР-8 (Д-8). Сетка арматурная С(6/6 - 200/200)/(400 х 1400) Блок ДР-10 (Д-10). Сетка арматурная С(6/6 - 200/200)/(400 х 1400) Блок ДР-6 (Д-6). Сетка арматурная С(6/8 - 200/200)/(400 х 1400) Блок ДР-8 (Д-8). Сетка арматурная С(6/6 - 200/200)/(1600 х 2000) Блок ДР-8 (Д-8). Сетка арматурная С(6/6 - 200/200)/(400 х 1600) Блок ДР-10 (Д-10). Сетка арматурная С(8/6 - 200/200)/(1800 х 2600) Блок ДР-10 (Д-10). Сетка арматурная С(6/6 - 200/200)/(800 х 1800) Блок ДР-10 (Д-10). Сетка арматурная С(8/6 - 200/200)/(400 х 2000) Блок ДР-12 (Д-12). Сетка арматурная С(8/6 - 200/200)/(400 х 2000) Блок ДР-12 (Д-12). Сетка арматурная С(8/6 - 200/200)/(2200 х 2800) Блок ДР-12 (Д-12). Сетка арматурная С(6/6 - 200/200)/(600 х 2200) Блок ДР-12 (Д-12). Сетка арматурная С(6/6 - 200/200)/(400 х 2000) Блок ДР-14 (Д-14). Сетка арматурная С(6/6 - 200/200)/(400 х 2000) Блок ДР-15 (Д-15). Сетка арматурная С(6/6 - 200/200)/(400 х 2000) Блок ДР-16 (Д-16). Сетка арматурная С(6/6 - 200/200)/(400 х 2000) Блок ДР-14 (Д-14). Сетка арматурная С(10/6 - 200/200)/(2200 х 3200) Блок ДР-14 (Д-14). Сетка арматурная С(6/6 - 200/200)/(1000 х 2200) Блок ДР-14 (Д-14). Сетка арматурная С(10/6 - 200/200)/(400 х 2400) Блок ДР-15 (Д-15). Сетка арматурная С(10/6 - 200/200)/(400 х 2400) Блок ДР-16 (Д-16). Сетка арматурная С(10/6 - 200/200)/(400 х 2400) Блок ДР-15 (Д-15). Сетка арматурная С(10/6 - 200/200)/(2200 х 3200) Блок ДР-15 (Д-15). Сетка арматурная С(6/6 - 200/200)/(800 х 2200) Блок ДР-16 (Д-16). Сетка арматурная С(10/6 - 200/200)/(2200 х 3200) Блок ДР-16 (Д-16). Сетка арматурная С(6/6 - 200/200)/(600 х 2200) Блок ОП-8А. Сетка арматурная С(6/6 - 200/200)/(1400 х 1800) Блок ОП-10А. Сетка арматурная С(8/6 - 200/200)/(1800 х 5800) Блок ДП-12. Сетка арматурная С(8/6 - 200/200)/(2000 х 2000) Блок ДП-12. Сетка арматурная С(8/6 - 200/200)/(2000 х 2200) Блок ДП-14. Сетка арматурная С(8/6 - 200/200)/(2200 х 2800) Блок ДП-15. Сетка арматурная С(10/6 - 200/200)/(2200 х 2800) Блок ДП-16. Сетка арматурная С(10/6 - 200/200)/(2200 х 2800) Блок ОГ-10. Сетка арматурная С(6/6 - 200/200)/(800 х 800) Блок ОГ-10. Сетка арматурная С(6/6 - 200/200)/(400 х 600) Блок ОГ-18. Сетка арматурная С(6/6 - 150/200)/(800 х 2850) Блок ОГ-18. Сетка арматурная С(6/6 - 200/200)/(800 х 2800) Блок ОГ-18. Сетка арматурная С(6/6 - 150/200)/(1600 х 2850) Блок ОГ-18. Сетка арматурная С(6/6 - 200/200)/(1600 х 2800) Блок ОГ-23. Сетка арматурная С(10/6 - 150/200)/(1350 х 2200) Блок ОГ-23. Сетка арматурная С(6/6 - 200/200)/(1400 х 2200) Блок ОГ-23. Сетка арматурная С(10/6 - 150/200)/(1000 х 1350) Блок ОГ-23. Сетка арматурная С(6/6 - 200/200)/(1000 х 1400) Блок ОГ-28. Сетка арматурная С(16/8 - 150/200)/(1800 х 2600) Блок ОГ-28. Сетка арматурная С(8/8 - 200/200)/(1800 х 2600) Блок ОГ-28. Сетка арматурная С(16/8 - 150/200)/(1200 х 1800) Блок ОГ-28. Сетка арматурная С(8/8 - 200/200)/(1200 х 1800) Блок ОГ-33. Сетка арматурная С(18/8 - 150/200)/(1400 х 1800) Блок ОГ-33. Сетка арматурная С(8/8 - 200/200)/(1400 х 1800) Блок ОГ-33. Сетка арматурная С(18/8 - 150/200)/(1800 х 3200) Блок ОГ-33. Сетка арматурная С(8/8 - 200/200)/(1800 х 3200) Блок ОП-6, блок ОП-8, блок ОП-10, блок ОП-8А, блок ОП-10А. Каркас плоский КР1 Блок ОП-6, блок ОП-8, блок ОП-10, блок ОП-8А, блок ОП-10А. Каркас плоский КР2 Блок ОП-6. Каркас плоский КР3 Блок ОП-6. Каркас плоский КР4 Блок ОП-8. Каркас плоский КР3 Блок ОП-8. Каркас плоский КР4 Блок ОП-10. Каркас плоский КР3 Блок ОП-10. Каркас плоский КР4 Блок ДР-6 (Д-6), блок ДР-8 (Д-8), блок ДР-10 (Д-10). Каркас плоский КР1, КР2 Блок ДР-12 (Д-12). Каркас плоский КР1, КР2 Блок ДР-14 (Д-14), блок ДР-15 (Д-15), блок ДР-16 (Д-16). Каркас плоский КР1, КР2 Блок ОП-8А, блок ОП-10А. Каркас плоский КР3 Блок ДП-12. Каркас плоский КР1 Блок ДП-12. Каркас плоский КР2 Блок ДП-14, блок ДП-15, блок ДП-16. Каркас плоский КР1 Блок ДП-14, блок ДП-15, блок ДП-16. Каркас плоский КР2 Блок ОГ-10. Каркас плоский КР1 Блок ОГ-18. Каркас плоский КР1 Блок ОГ-23. Каркас плоский КР1 Блок ОГ-28, блок ОГ-33. Каркас плоский КР1 Блок ОГ-10, блок ОГ-18, блок ОГ-23, блок ОГ-28, блок ОГ-33. Стержни одиночные Блок ОП-6, блок ОП-8, блок ОП-10, блок ОП-8А, блок ОП-10А. Сборочный чертеж. Закладная деталь МН1 Блок ОГ-10, блок ОГ-18, блок ОГ-23. Сборочный чертеж. Закладная деталь МН1 Блоки: ДР-8 (Д-8), ДР-10 (Д-10), ДР-12 (Д-12), ДР-14 (Д-14), ДР-15 (Д-15), ДР-16 (Д-16), ДП-12, ДП-14, ДП-15, ДП-16, ОГ-28, ОГ-33. Сборочный чертеж. Закладная деталь МН1 Блоки: ОГ-10, ОГ-18, ОГ-23, ОГ-28, ОГ-33. Петли строповочные УП1-2, УП1-6, УП1-8, УП1-10, УП1-12 Блоки: ОП-6, ОП-8, ОП-10, ОП-8А, ОП-10А, ДР-6 (Д-6), ДР-8 (Д-8), ДР-10 (Д-10), ДР-12 (Д-12), ДР-14 (Д-14), ДР-15 (Д-15), ДР-16 (Д-16), ДП-12, ДП-14, ДП-15, ДП-16, ОГ-10, ОГ-18, ОГ-23, ОГ-28, ОГ-33. Петли строповочные УП2-1, УП2-4, УП2-5, УП2-6, УП2-7, УП2-8 Выборка стали |
| Разработан: | Укргипроводхоз Минводхоза Украинской ССР Гипроводхоз |
| Утверждён: | 22.11.1979 Минводхоз СССР (USSR Minvodkhoz 359) |
| Расположен в: |
















































































































