Информационная система
«Ёшкин Кот»

Скачать базу одним архивом
Скачать обновления
История создания базы
Карта сайта

Скачать Типовой проект 901-3-199.85 Альбом 1. Пояснительная записка (из ТП 901-3-202.85)

Дата актуализации: 10.08.2017

Типовой проект 901-3-199.85

Альбом 1. Пояснительная записка (из ТП 901-3-202.85)

Обозначение: Типовой проект 901-3-199.85
Обозначение англ: 901-3-199.85
Статус:не определен законодательством
Название рус.:Альбом 1. Пояснительная записка (из ТП 901-3-202.85)
Дата добавления в базу:01.10.2014
Дата актуализации:05.05.2017
Дата введения:04.12.1984
Оглавление:ПЗ-1 Введение
ПЗ-1 Технологическая часть
ПЗ-1 Назначение и область применения
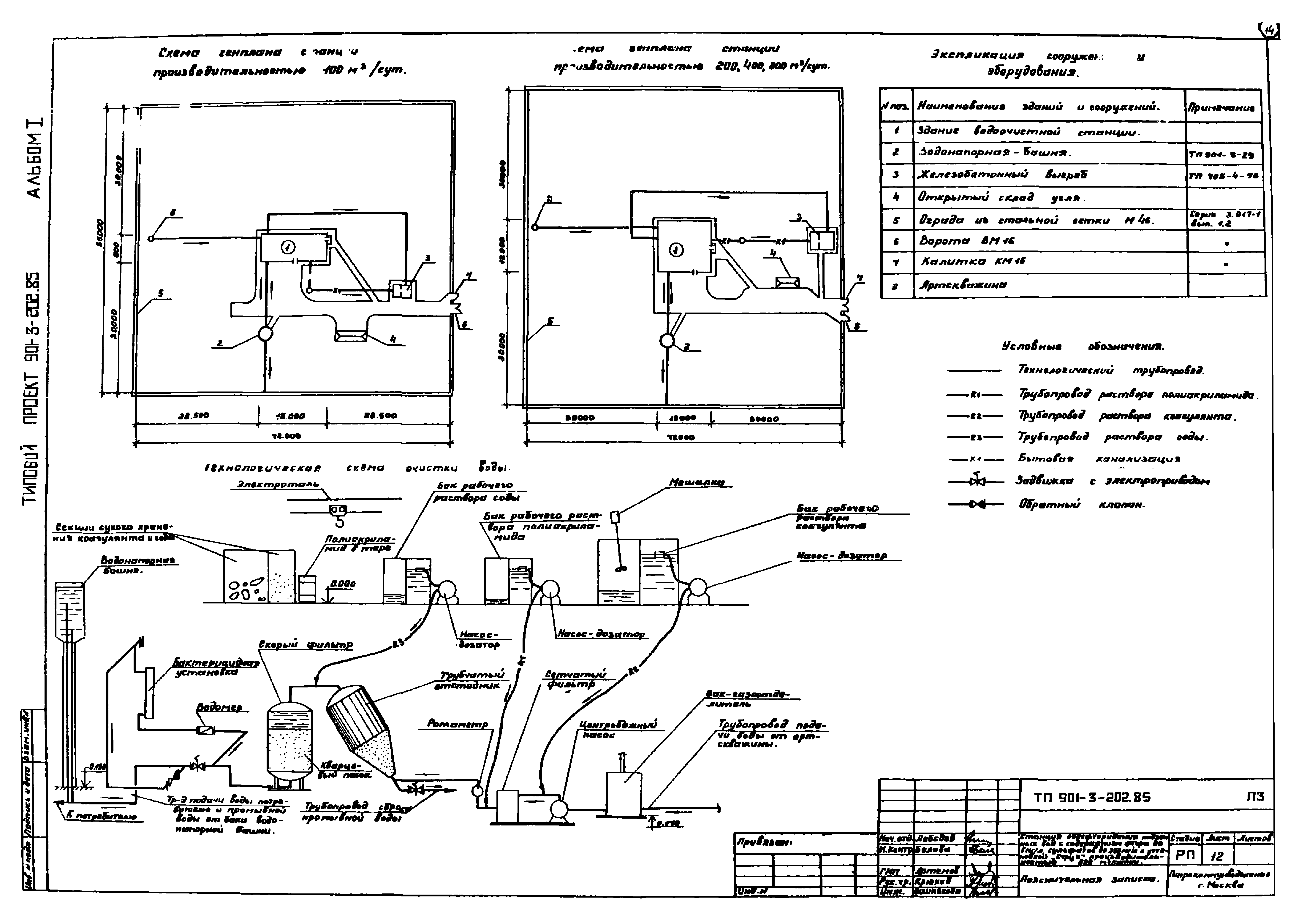
ПЗ-1 Технологическая схема очистки воды
ПЗ-2 Общекомпоновочное решение площадки водосточной станции обесфторивания
ПЗ-2 Компоновка здания водоочистной станции
ПЗ-2 Характеристика и расчетные параметры основного оборудования
ПЗ-4 Реагентное хозяйство
ПЗ-5 Обеззараживание
ПЗ-5 Регенерация скорого фильтра и трубчатого отстойника
ПЗ-6 Внутренний водопровод и канализация
ПЗ-6 Дренаж станции
ПЗ-6 Водонапорная башня
ПЗ-7 Указания по привязке проекта
ПЗ-7 Архитектурно-строительная часть
ПЗ-7 Общие сведения
ПЗ-7 Условия и область применения
ПЗ-8 Объемно-планировочные и конструктивные решения
ПЗ-8 Соображения по производству работ
ПЗ-8 Теплотехническая часть
ПЗ-8 Отопление
ПЗ-8 Вентиляция
ПЗ-8 Котельная
ПЗ-9 Электротехническая часть. Общая часть
ПЗ-9 Электрооборудование
ПЗ-9 Электрическое освещение
ПЗ-10 Зануление
ПЗ-10 Автоматизация технологического процесса
ПЗ-10 Режим работы и штатное расписание
ПЗ-10 Технико-экономические показатели
ПЗ-11 Эксплуатационные затраты
ПЗ-12 Технологическая схема очистки воды. Схемы генплана станций
Разработан: Гипрокоммунводоканал Минжилкомхоза РСФСР
Утверждён:22.11.1984 МЖКХ РСФСР (20-ТД)
Расположен в:Техническая документация Строительство Справочные документы Типовые строительные конструкции, изделия и узлы Общероссийский строительный каталог Промышленные предприятия, здания и сооружения Здания и сооружения санитарно-технические Водоснабжение Сооружения и установки по подготовке питьевой воды Станции обесфторивания воды
Типовой проект 901-3-199.85Типовой проект 901-3-199.85Типовой проект 901-3-199.85Типовой проект 901-3-199.85Типовой проект 901-3-199.85Типовой проект 901-3-199.85Типовой проект 901-3-199.85Типовой проект 901-3-199.85Типовой проект 901-3-199.85Типовой проект 901-3-199.85Типовой проект 901-3-199.85Типовой проект 901-3-199.85Типовой проект 901-3-199.85Типовой проект 901-3-199.85Типовой проект 901-3-199.85

© 2013 Ёшкин Кот :-) Карта сайта