Информационная система
«Ёшкин Кот»

Скачать базу одним архивом
Скачать обновления
История создания базы
Карта сайта

Скачать Типовой проект 901-3-212.85 Альбом 3. Строительные изделия

Дата актуализации: 10.08.2017

Типовой проект 901-3-212.85

Альбом 3. Строительные изделия

Обозначение: Типовой проект 901-3-212.85
Обозначение англ: 901-3-212.85
Статус:не определен законодательством
Название рус.:Альбом 3. Строительные изделия
Дата добавления в базу:01.09.2013
Дата актуализации:05.05.2017
Дата введения:26.09.1985
Оглавление:Панель стеновая (ПС1…ПС12)
Панель стеновая (ПС1…ПС12). Сборочный чертеж
Ведомость расхода стали на дополнительные закладные изделия на элемент, кг
Панель стеновая (ПС13)
Плита перекрытия (П2)
Плита перекрытия (П3)
Изделие закладное (МН-7а). Изделие закладное (МН-12а)
Изделие закладное (МН-13а). Каркас плоский (Кр-1а, Кр-2а)
Каркас плоский (Кр-12а). Каркас плоский (Кр-13а)
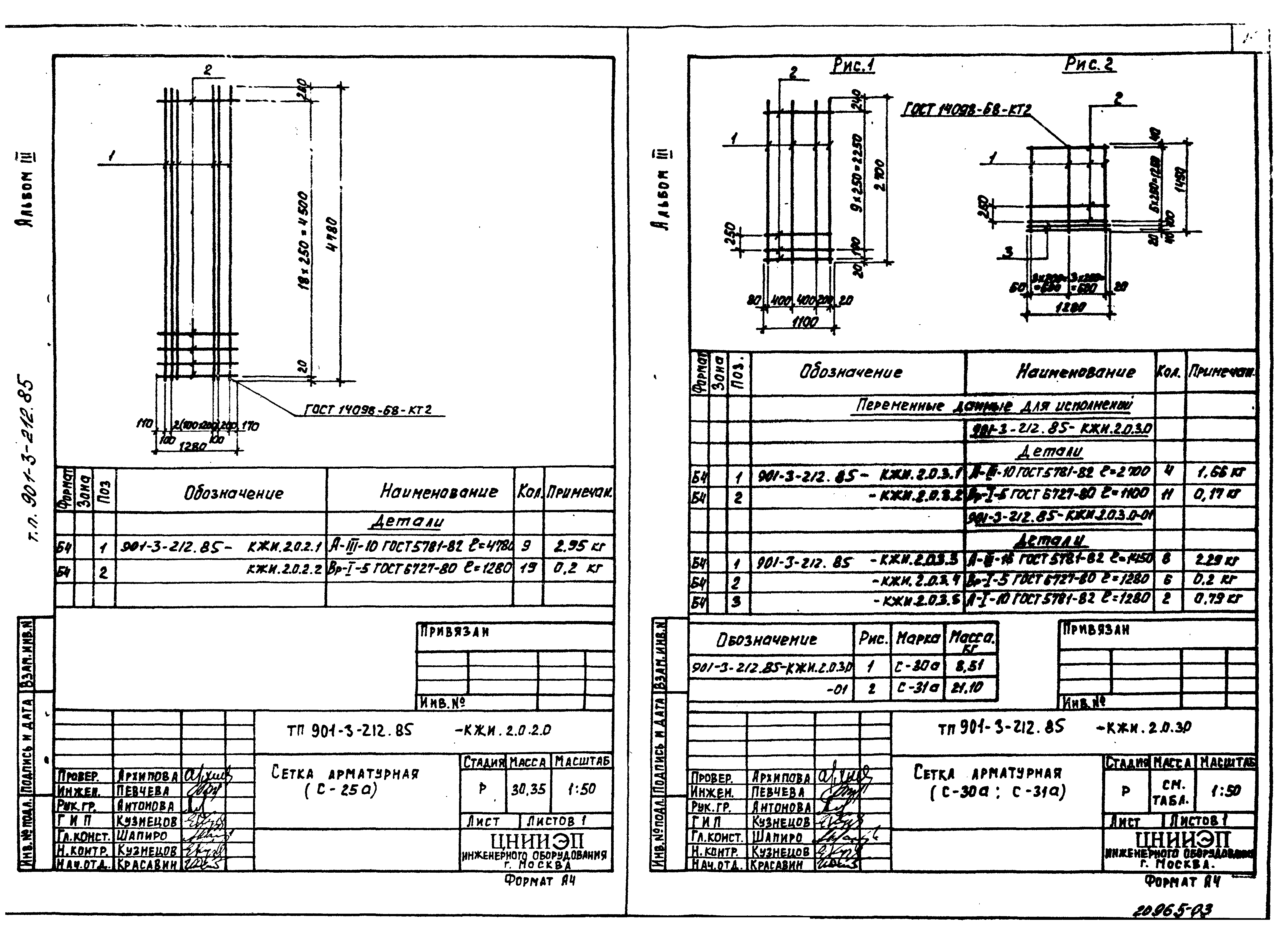
Каркас плоский (Кр-17а). Сетка арматурная (С8)
Сетка арматурная (С-25а). Сетка арматурная (С-30а, С-31а)
Щит стальной (Щ1). Щит стальной (Щ2)
Каркас пространственный (КП1, КП2)
Каркас пространственный (КП3, КП4)
Сетка арматурная (СК1). Сетка арматурная (СК2)
Сетка арматурная (СК3). Каркас плоский (Кр1, Кр2)
Сетка арматурная (С1, С2, С9)
Сетка арматурная (С3, С4, С5, С6, C10)
Сетка арматурная (С7, C11)
Разработан: ЦНИИЭП иженерного оборудования
Утверждён:06.05.1980 Госгражданстрой (Gosgrazhdanstroy 120)
Расположен в:Техническая документация Строительство Справочные документы Типовые строительные конструкции, изделия и узлы Общероссийский строительный каталог Промышленные предприятия, здания и сооружения Здания и сооружения санитарно-технические Водоснабжение Сооружения и установки по обеззараживанию воды Сооружения обработки и повторного использования воды для промывки фильтров
Типовой проект 901-3-212.85Типовой проект 901-3-212.85Типовой проект 901-3-212.85Типовой проект 901-3-212.85Типовой проект 901-3-212.85Типовой проект 901-3-212.85Типовой проект 901-3-212.85Типовой проект 901-3-212.85Типовой проект 901-3-212.85Типовой проект 901-3-212.85Типовой проект 901-3-212.85Типовой проект 901-3-212.85Типовой проект 901-3-212.85Типовой проект 901-3-212.85Типовой проект 901-3-212.85Типовой проект 901-3-212.85Типовой проект 901-3-212.85Типовой проект 901-3-212.85Типовой проект 901-3-212.85Типовой проект 901-3-212.85Типовой проект 901-3-212.85Типовой проект 901-3-212.85Типовой проект 901-3-212.85Типовой проект 901-3-212.85Типовой проект 901-3-212.85Типовой проект 901-3-212.85

© 2013 Ёшкин Кот :-) Карта сайта